Maison à construire à Longpont-sur-Orge (91310)
Images
Description
VENTE : maison de 5 pièces (90 m²) à Longpont-sur-Orge
IDÉALEMENT SITUÉE - MAISON 5 PIÈCES NEUVE
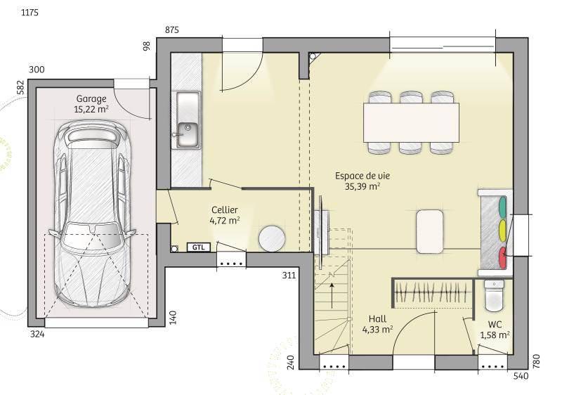
Proche du RER C (station Saint-Michel-sur-Orge, 20 min de Paris), votre agence Maisons Balency Ormoy est heureuse de vous proposer cette maison de 5 pièces de 90 m² et de 399 m² de terrain en vente idéalement située dans Longpont-sur-Orge (91310).
Il s'agit d'une maison de 2 niveaux. Son intérieur se divise en trois chambres, une cuisine et une salle de bains. Cette maison est neuve.
La maison se trouve dans un secteur attractif. Il y a l'École Maternelle Lormoy et l'École Élémentaire Lormoy à moins de 10 minutes à pied et deux crèches. Côté transports, on trouve le RER C, D et B ainsi que 20 gares à moins de 10 minutes en voiture. On trouve un tennis, une boulangerie, quatre commerces, un supermarché et deux épiceries dans les environs.
Son prix de vente est de 341 896 €.
Prenez contact au (Numéro supprimé) pour tout renseignement sur la maison. Maisons Balency Ormoy est là pour vous accompagner dans tous vos projets immobiliers.
Annonce proposée par un Agent Commercial Partenaire.
Logement susceptibles de vous intéresser
Nous vous proposons de découvrir aussi cette sélection de logements situés à moins de 10km de Longpont-sur-Orge et qui seraient susceptibles de vous intéresser.
Longpont-sur-Orge
TERRAINÀ vendre : Terrain à bâtir – Longpont-sur-Orge (91)Vous recherchez un cadre de vie agréable, verdoyant et proche de toutes les commodités ?Découvrez ce terrain à bâtir de 249 m², entièrement viabilisé, situé dans un lotissement calme et résidentiel sur la commune très recherchée de Longpont-sur-Orge.👉 Les atouts du terrain :Surface : 249 m²Terrain viabilisé, prêt à construireSitué dans un lotissement récent et harmonieuxEnvironnement calme, familial et verdoyantProximité immédiate des écoles, commerces, transports et axes routiers (N20, N104)Idéal pour primo-accédants, secundo-accédants ou investisseursCe terrain offre une opportunité rare de réaliser votre maison sur mesure dans une commune prisée du nord de l’Essonne, alliant tranquillité, confort et qualité de vie.Avec Maisons Balency – Groupe Hexaôm, 1er constructeur de maisons individuelles en France, bénéficiez d’un accompagnement complet et personnalisé.Nos constructions respectent la réglementation environnementale RE2020, garantissant performance énergétique, confort et durabilité.📍 Contactez dès maintenant notre agence d’Ormoy :Maisons BALENCY – Agence d’Ormoy23 chemin de Tournenfils, 91540 Ormoy📞 (Numéro supprimé)(Terrains proposés par nos partenaires fonciers, sous réserve des disponibilités à la date de diffusion.)Annonce proposée par un Agent Commercial Partenaire.
Longpont-sur-Orge
TERRAINÀ vendre : Terrain à bâtir – Longpont-sur-Orge (91)Vous recherchez un cadre de vie agréable, verdoyant et proche de toutes les commodités ?Découvrez ce terrain à bâtir de 399 m², entièrement viabilisé, situé dans un lotissement calme et résidentiel sur la commune très recherchée de Longpont-sur-Orge.👉 Les atouts du terrain :Surface : 399 m²Terrain viabilisé, prêt à construireSitué dans un lotissement récent et harmonieuxEnvironnement calme, familial et verdoyantProximité immédiate des écoles, commerces, transports et axes routiers (N20, N104)Idéal pour primo-accédants, secundo-accédants ou investisseursCe terrain offre une opportunité rare de réaliser votre maison sur mesure dans une commune prisée du nord de l’Essonne, alliant tranquillité, confort et qualité de vie.Avec Maisons Balency – Groupe Hexaôm, 1er constructeur de maisons individuelles en France, bénéficiez d’un accompagnement complet et personnalisé.Nos constructions respectent la réglementation environnementale RE2020, garantissant performance énergétique, confort et durabilité.📍 Contactez dès maintenant notre agence d’Ormoy :Maisons BALENCY – Agence d’Ormoy23 chemin de Tournenfils, 91540 Ormoy📞 (Numéro supprimé)(Terrains proposés par nos partenaires fonciers, sous réserve des disponibilités à la date de diffusion.)Annonce proposée par un Agent Commercial Partenaire.
Longpont-sur-Orge
TERRAIN ET MAISONMaison F4 (82 m²) en vente à Longpont-sur-OrgeIDÉALEMENT SITUÉE – MAISON 4 PIÈCES NEUVEÀ vendre : à proximité de la station Saint-Michel-sur-Orge (Paris à 20 min avec le RER C), idéalement située dans Longpont-sur-Orge (91310), votre agence Maisons Balency Ormoy est heureuse de vous proposer cette maison de 4 pièces de 82 m².Cette maison compte 2 niveaux. Elle offre trois chambres, une cuisine et une salle de bains. Cette maison est neuve.Le terrain du bien est de 249 m².La maison est située dans un secteur convoité. L’École Maternelle Lormoy et l’École Élémentaire Lormoy se trouvent à moins de 10 minutes à pied, tout comme deux crèches. Niveau transports, il y a les lignes C, D et B du RER ainsi que 20 gares à moins de 10 minutes en voiture. On trouve un tennis, une boulangerie, quatre commerces, un supermarché et deux épiceries à proximité.Elle est à vendre pour la somme de 318 889 €.N’hésitez pas à prendre contact avec notre agence au (Numéro supprimé) pour toute question sur la maison. Maisons Balency Ormoy est là pour vous accompagner dans tous vos projets immobiliers.Annonce proposée par un Agent Commercial Partenaire.
Longpont-sur-Orge
TERRAIN ET MAISONVENTE : maison T4 (78 m²) à Longpont-sur-OrgeIDÉALEMENT SITUÉE – MAISON 4 PIÈCES NEUVEEn vente : à deux pas de la station Saint-Michel-sur-Orge du RER C (20 min de Paris), Maisons Balency Ormoy vous présente, idéalement située dans Longpont-sur-Orge (91310), cette maison de 4 pièces de 78 m². Son intérieur compte trois chambres, une cuisine et une salle de bains.Le terrain de la propriété s’étend sur 249 m².C’est une maison de 2 niveaux. Elle est neuve.Cette maison se situe dans un quartier recherché. Il y a l’École Maternelle Lormoy et l’École Élémentaire Lormoy à moins de 10 minutes à pied et deux structures d’accueil pour la petite enfance. Niveau transports en commun, on trouve le RER C, D et B ainsi que 20 gares à moins de 10 minutes en voiture. Il y a un tennis, une boulangerie, quatre commerces, un supermarché et deux épiceries à quelques minutes de la maison.Elle est à vendre pour la somme de 320 297 €.Contactez Aïda AGNAOU au (Numéro supprimé) pour tout renseignement sur la maison, sur les modalités de vente ou sur les démarches à suivre. Maisons Balency Ormoy vous accompagne à toutes les étapes de l’achat et dans tous vos projets immobiliers.Annonce proposée par un Agent Commercial Partenaire.
Longpont-sur-Orge
TERRAIN ET MAISONMaison F5 (98 m²) à vendre à Longpont-sur-OrgeIDÉALEMENT SITUÉE – MAISON 5 PIÈCES NEUVEEn vente : au pied de la station Saint-Michel-sur-Orge du RER C (20 min de Paris), idéalement située dans Longpont-sur-Orge (91310), nous vous proposons cette maison de 5 pièces de 98 m². Son intérieur dispose de quatre chambres, d’une cuisine et d’une salle de bains.Le terrain de la maison est de 249 m².Cette maison possède 2 niveaux. Elle est neuve.La maison se situe dans un secteur attractif. L’École Maternelle Lormoy et l’École Élémentaire Lormoy sont implantées à moins de 10 minutes à pied, tout comme deux crèches. Côté transports en commun, on trouve les lignes C, D et B du RER ainsi que 20 gares à moins de 10 minutes en voiture. Il y a un tennis, une boulangerie, quatre commerces, un supermarché et deux épiceries dans les environs.Son prix de vente est de 345 161 €.Prenez contact avec nous au (Numéro supprimé) pour obtenir de plus amples informations sur la maison ou sur les démarches à suivre. Maisons Balency Ormoy est là pour vous accompagner dans tous vos projets immobiliers.Annonce proposée par un Agent Commercial Partenaire.
Longpont-sur-Orge
TERRAIN ET MAISONMaison de 5 pièces (96 m²) à vendre à Longpont-sur-OrgeIDÉALEMENT SITUÉE – MAISON 5 PIÈCES NEUVEÀ quelques minutes de la station Saint-Michel-sur-Orge (Paris à 20 min par le RER C), découvrez cette maison de 5 pièces de 96 m² et de 249 m² de terrain en vente idéalement située dans Longpont-sur-Orge (91310). Son intérieur dispose de quatre chambres, d’une cuisine et d’une salle de bains.Cette maison possède 2 niveaux. Elle est neuve.Cette maison est située dans un secteur convoité. L’École Maternelle Lormoy et l’École Élémentaire Lormoy se trouvent à moins de 10 minutes à pied, tout comme deux crèches. Niveau transports, il y a les lignes C, D et B du RER ainsi que 20 gares à moins de 10 minutes en voiture. On trouve un tennis, une boulangerie, quatre commerces, un supermarché et deux épiceries à proximité.Son prix de vente est de 338 530 €.Contactez nous au (Numéro supprimé) pour toute information sur la maison, sur les démarches à suivre ou sur les modalités de vente.Annonce proposée par un Agent Commercial Partenaire.
Longpont-sur-Orge
TERRAIN ET MAISONVENTE d’une maison de 5 pièces (89 m²) à Longpont-sur-OrgeIDÉALEMENT SITUÉE – MAISON 5 PIÈCES NEUVEÀ quelques minutes de la station Saint-Michel-sur-Orge du RER C (20 min de Paris), nous sommes heureux de vous proposer en vente, idéalement située dans Longpont-sur-Orge (91310), cette maison de 5 pièces de 89 m².Cette maison possède 2 niveaux. Son intérieur dispose de trois chambres, d’une cuisine et de deux salles de bains. La maison est neuve.Le terrain de la propriété est de 249 m².Cette maison se situe dans un secteur convoité. L’École Maternelle Lormoy et l’École Élémentaire Lormoy se trouvent à moins de 10 minutes à pied, tout comme deux structures d’accueil pour la petite enfance. Niveau transports en commun, il y a le RER C, D et B ainsi que 20 gares à moins de 10 minutes en voiture. Il y a un tennis, une boulangerie, quatre commerces, un supermarché et deux épiceries à quelques minutes.Son prix de vente est de 319 753 €.Contactez notre agence au (Numéro supprimé) pour toute question sur la maison, sur les modalités de vente ou sur les démarches à suivre. Maisons Balency Ormoy vous accompagne à toutes les étapes de votre projet et dans tous vos projets immobiliers.Annonce proposée par un Agent Commercial Partenaire.
Longpont-sur-Orge
TERRAIN ET MAISONLongpont-sur-Orge : maison de 5 pièces (90 m²) à vendreIDÉALEMENT SITUÉE – MAISON 5 PIÈCES NEUVEÀ vendre : à côté du RER C (station Saint-Michel-sur-Orge, 20 min de Paris), votre agence Maisons Balency Ormoy est ravie de vous présenter, idéalement située dans Longpont-sur-Orge (91310), cette maison de 5 pièces de 90 m². Elle offre trois chambres, une cuisine et une salle de bains.Le terrain de la propriété est de 249 m².Il s’agit d’une maison de 2 niveaux. Elle est neuve.Cette maison est située dans un secteur attractif. Il y a l’École Maternelle Lormoy et l’École Élémentaire Lormoy à moins de 10 minutes à pied et deux crèches. Niveau transports en commun, on trouve le RER C, D et B ainsi que 20 gares à moins de 10 minutes en voiture. Il y a un tennis, une boulangerie, quatre commerces, un supermarché et deux épiceries dans les environs.Son prix de vente est de 332 896 €.Prenez contact avec notre constructeur au (Numéro supprimé) pour plus d’informations sur la maison, sur les démarches à suivre ou sur les modalités de vente.Annonce proposée par un Agent Commercial Partenaire.
Longpont-sur-Orge
TERRAIN ET MAISONVENTE : maison de 5 pièces (90 m²) à Longpont-sur-OrgeIDÉALEMENT SITUÉE – MAISON 5 PIÈCES NEUVEProche du RER C (station Saint-Michel-sur-Orge, 20 min de Paris), votre agence Maisons Balency Ormoy est heureuse de vous proposer cette maison de 5 pièces de 90 m² et de 399 m² de terrain en vente idéalement située dans Longpont-sur-Orge (91310).Il s’agit d’une maison de 2 niveaux. Son intérieur se divise en trois chambres, une cuisine et une salle de bains. Cette maison est neuve.La maison se trouve dans un secteur attractif. Il y a l’École Maternelle Lormoy et l’École Élémentaire Lormoy à moins de 10 minutes à pied et deux crèches. Côté transports, on trouve le RER C, D et B ainsi que 20 gares à moins de 10 minutes en voiture. On trouve un tennis, une boulangerie, quatre commerces, un supermarché et deux épiceries dans les environs.Son prix de vente est de 341 896 €.Prenez contact au (Numéro supprimé) pour tout renseignement sur la maison. Maisons Balency Ormoy est là pour vous accompagner dans tous vos projets immobiliers.Annonce proposée par un Agent Commercial Partenaire.
L’actualité immobilière à Longpont-sur-Orge
27/11/2023
02/11/2023
30/10/2023
20/10/2023
16/10/2023
16/10/2023