Maison à construire à Mennecy (91540)
Images
Description
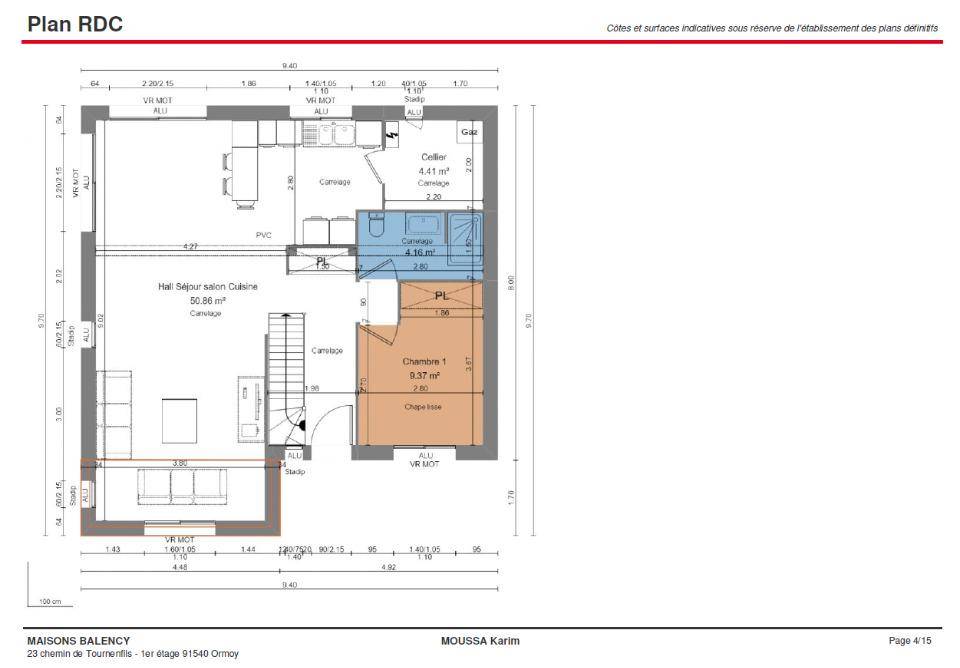
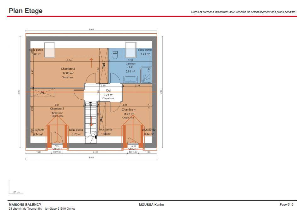
PROCHE MENNECY, à 1h15 de PARIS (RER D) : Demeure en R+COMBLES Design de 100 m² à bâtir sur un terrain de 1003 m²
Faites confiance aux Maisons Balency d'Ormoy pour vous réaliser une maison contemporaine de 4 chambres et de 2 salles-de-bains au sein d'un secteur verdoyant de l'Île de France ; le projet est envisageable à partir de 246 000 € (terrain hors frais annexes + maison).
Vous profiterez d'un environnement résidentiel recherché, proche des commodités d'Évry-Courcouronnes : écoles, collège et commerces accessibles en quelques minutes, centres commerciaux et cinéma à environ 10 min, tout comme la gare RER D de Mennecy.
Nos équipes vous accompagnent pour concevoir une maison sur mesure, ou adapter l'un de nos modèles existants selon vos envies et votre style de vie. Toutes nos réalisations respectent les dernières normes RE2020, gage de performance énergétique et de confort durable.
Contactez notre agence d'Ormoy dès aujourd'hui au (Numéro supprimé) afin que nous vous aiguillions dans votre projet, de la recherche foncière à la remise des clés !
Maisons Balency - Agence d'Ormoy
23 chemin de Tournenfils, 91540 Ormoy
Annonce proposée par un Agent Commercial Partenaire.
Logement susceptibles de vous intéresser
Nous vous proposons de découvrir aussi cette sélection de logements situés à moins de 10km de Mennecy et qui seraient susceptibles de vous intéresser.
Corbeil-Essonnes
TERRAIN ET MAISONVENTE : maison de 7 pièces (120 m²) à Corbeil-EssonnesMAISON 7 PIÈCES NEUVEEn vente : à proximité du RER D (40 min de Paris), à Corbeil-Essonnes (91100), Maisons France Confort Magny-le-Hongre vous propose cette maison de 7 pièces de 120 m² et de 664 m² de terrain. Elle est composée de cinq chambres, d’une cuisine et de deux salles de bains.C’est une maison de 2 niveaux. Elle est neuve.Des écoles (de la maternelle au lycée) se trouvent à moins de 10 minutes à pied. Côté transports en commun, il y a la station de RER Corbeil-Essonnes (ligne D) ainsi que deux gares (Corbeil-Essonnes et Essonnes Robinson) à proximité. On trouve un bassin de natation, un tennis, des commerces, des boulangeries, deux supermarchés, des épiceries et deux bureaux de poste dans les environs. Le marché Place du Comte Haymon anime le quartier.Son prix de vente est de 383 000 €.Contactez Alan RUBAL (tél : (Numéro supprimé)) pour obtenir de plus amples informations sur la maison, sur les modalités de vente ou sur les démarches à suivre.Annonce proposée par un Agent Commercial Partenaire.
Corbeil-Essonnes
TERRAIN ET MAISONVENTE : maison de 5 pièces (90 m²) à Corbeil-EssonnesMAISON 5 PIÈCES NEUVEEn vente : à proximité du RER D (40 min de Paris), nous vous proposons cette maison de 5 pièces de 90 m² et de 664 m² de terrain à Corbeil-Essonnes (91100). Son intérieur compte trois chambres, une cuisine et une salle de bains.C’est une maison de 2 niveaux. Elle est neuve.Des écoles du primaire et du secondaire sont implantées à moins de 10 minutes à pied. Niveau transports en commun, il y a la station de RER Corbeil-Essonnes (ligne D) ainsi que deux gares (Corbeil-Essonnes et Essonnes Robinson) à quelques pas du bien. On trouve un bassin de natation, un tennis, des commerces, des boulangeries, deux supermarchés, des épiceries et des boucheries-charcuteries à quelques minutes. Enfin, le marché Place du Comte Haymon anime le quartier.Son prix de vente est de 329 000 €.N’hésitez pas à prendre contact avec Alan RUBAL ((Numéro supprimé)) pour plus de renseignements sur cette maison.Annonce proposée par un Agent Commercial Partenaire.
Corbeil-Essonnes
TERRAIN ET MAISONVENTE : maison F3 (60 m²) à Corbeil-EssonnesMAISON 3 PIÈCES NEUVEÀ quelques minutes du RER D (40 min de Paris), Maisons France Confort Magny-le-Hongre vous présente cette maison de 3 pièces de plain-pied de 60 m² et de 664 m² de terrain à Corbeil-Essonnes (91100).Conçue de plain-pied, elle comporte une chambre, une cuisine et une salle de bains. Cette maison est neuve.Il y a tous les types d’établissements scolaires à moins de 10 minutes à pied. Niveau transports, on trouve la station de RER Corbeil-Essonnes (ligne D) ainsi que deux gares (Corbeil-Essonnes et Essonnes Robinson) à proximité. Il y a un bassin de natation, un tennis, des commerces, des boulangeries, deux supermarchés, des épiceries et des boucheries-charcuteries à quelques minutes. Enfin, le marché Place du Comte Haymon anime les environs.Elle est à vendre pour la somme de 275 000 €.Contactez notre agence (RUBAL Alan : (Numéro supprimé)) pour toute information sur la maison ou sur les modalités de vente.Annonce proposée par un Agent Commercial Partenaire.
Corbeil-Essonnes
TERRAIN ET MAISONVENTE : maison de 5 pièces (85 m²) à Corbeil-EssonnesMAISON 5 PIÈCES NEUVEÀ 380 m du RER D (40 min de Paris), notre agence Maisons France Confort Magny-le-Hongre est ravie de vous présenter à vendre à Corbeil-Essonnes (91100), cette maison de 5 pièces de 85 m². Elle comporte trois chambres, une cuisine et deux salles de bains.Le terrain du bien s’étend sur 664 m².Cette maison compte 2 niveaux. Elle est neuve.Tous les types d’écoles (de la maternelle au lycée) sont implantés à moins de 10 minutes à pied. Côté transports en commun, il y a la station de RER Corbeil-Essonnes (ligne D) ainsi que deux gares (Corbeil-Essonnes et Essonnes Robinson) à proximité. On trouve un bassin de natation, un tennis, des commerces, des boulangeries, deux supermarchés, des boucheries-charcuteries et deux bureaux de poste dans les environs. Enfin, le marché Place du Comte Haymon anime les environs.Elle est à vendre pour la somme de 320 000 €.Contactez Alan RUBAL ((Numéro supprimé)) pour obtenir de plus amples informations sur cette propriété, sur les modalités de vente ou sur les démarches à suivre.Annonce proposée par un Agent Commercial Partenaire.
Chevannes
TERRAINÀ vendre : Terrain à bâtir – Chevannes (91)Vous souhaitez construire votre maison dans un cadre paisible, verdoyant et familial ?Découvrez ce terrain à bâtir en lot arrière de 433 m², non viabilisé, situé sur la charmante commune de Chevannes, à proximité de Mennecy et d’Écharcon.👉 Les atouts du terrain :Surface : 433 m²Terrain en lot arrière, garantissant calme, intimité et tranquillitéTerrain non viabilisé (viabilisation à prévoir)Environnement résidentiel, verdoyant et recherchéÀ proximité des écoles, commerces et axes routiers principaux (A6, N104)Idéal pour primo-accédants, secundo-accédants ou investisseursCe terrain offre un cadre de vie privilégié, parfait pour un projet de maison sur mesure, dans une commune agréable du sud Essonne, alliant nature, sérénité et confort de vie.Faites confiance à Maisons Balency – Groupe Hexaôm, 1er constructeur de maisons individuelles en France, pour concrétiser votre projet.Nos maisons respectent la réglementation environnementale RE2020, gage de performance énergétique, confort et durabilité.📍 Contactez dès maintenant notre agence d’Ormoy :Maisons BALENCY – Agence d’Ormoy23 chemin de Tournenfils, 91540 Ormoy📞 (Numéro supprimé)(Terrains proposés par nos partenaires fonciers, sous réserve des disponibilités à la date de diffusion.)Annonce proposée par un Agent Commercial Partenaire.
Chevannes
TERRAIN ET MAISONChevannes : maison de 6 pièces (89 m²) en venteIDÉALEMENT SITUÉE – MAISON 6 PIÈCES NEUVEÀ quelques minutes de la station Corbeil-Essonnes (Paris à 40 min par le RER D), laissez vous charmer par cette maison de 6 pièces de 89 m² en vente idéalement située dans Chevannes (91750).Cette maison comporte 2 niveaux. Son intérieur propose quatre chambres, une cuisine et une salle de bains. Cette maison est neuve.Le terrain de la propriété s’étend sur 433 m².La maison est située dans un secteur prisé. L’École Élémentaire le Centre et l’École Maternelle de la Plaine sont implantées à moins de 10 minutes à pied. Côté transports, il y a la ligne de RER D (Mennecy) ainsi que 13 gares à moins de 10 minutes en voiture. On trouve une bibliothèque, un tennis, une boucherie-charcuterie et une épicerie dans les environs.Elle est à vendre pour la somme de 284 864 €.Contactez notre agence au (Numéro supprimé) pour toute question sur la maison.Annonce proposée par un Agent Commercial Partenaire.
Chevannes
TERRAIN ET MAISONVENTE d’une maison de 5 pièces (89 m²) à ChevannesIDÉALEMENT SITUÉE – MAISON 5 PIÈCES NEUVEÀ deux pas de la station Corbeil-Essonnes du RER D (40 min de Paris), venez découvrir cette maison de 5 pièces de 89 m² et de 433 m² de terrain idéalement située dans Chevannes (91750). Son intérieur dispose de trois chambres, d’une cuisine et de deux salles de bains.C’est une maison de 2 niveaux. Elle est neuve.La maison est située dans un secteur prisé. L’École Élémentaire le Centre et l’École Maternelle de la Plaine sont implantées à moins de 10 minutes à pied. Côté transports, il y a la ligne de RER D (Mennecy) ainsi que 13 gares à moins de 10 minutes en voiture. On trouve une bibliothèque, un tennis, une épicerie et une boucherie-charcuterie à proximité.Son prix de vente est de 288 864 €.Prenez contact avec notre agence au (Numéro supprimé) pour toute question sur la maison, sur les modalités de vente ou sur les démarches à suivre. Donnez vie à vos projets immobiliers avec Maisons Balency Ormoy.Annonce proposée par un Agent Commercial Partenaire.
Mennecy
TERRAINÀ vendre : Terrain à bâtir – Proche Mennecy (91)Vous souhaitez construire votre maison dans un cadre paisible, verdoyant et familial ?Découvrez ce terrain à bâtir en lot arrière de 433 m², non viabilisé, situé sur la charmante commune de Chevannes, à proximité de Mennecy et d’Écharcon.👉 Les atouts du terrain :Surface : 433 m²Terrain en lot arrière, garantissant calme, intimité et tranquillitéTerrain non viabilisé (viabilisation à prévoir)Environnement résidentiel, verdoyant et recherchéÀ proximité des écoles, commerces et axes routiers principaux (A6, N104)Idéal pour primo-accédants, secundo-accédants ou investisseursCe terrain offre un cadre de vie privilégié, parfait pour un projet de maison sur mesure, dans une commune agréable du sud Essonne, alliant nature, sérénité et confort de vie.Faites confiance à Maisons Balency – Groupe Hexaôm, 1er constructeur de maisons individuelles en France, pour concrétiser votre projet.Nos maisons respectent la réglementation environnementale RE2020, gage de performance énergétique, confort et durabilité.📍 Contactez dès maintenant notre agence d’Ormoy :Maisons BALENCY – Agence d’Ormoy23 chemin de Tournenfils, 91540 Ormoy📞 (Numéro supprimé)(Terrains proposés par nos partenaires fonciers, sous réserve des disponibilités à la date de diffusion.)Annonce proposée par un Agent Commercial Partenaire.
Mennecy
TERRAIN ET MAISONVENTE d’une maison T5 (89 m²) à ChevannesIDÉALEMENT SITUÉE – MAISON 5 PIÈCES NEUVEEn vente : à deux pas de la station Corbeil-Essonnes (Paris à 40 min par le RER D), Maisons Balency Ormoy vous propose cette maison de 5 pièces de 89 m² et de 433 m² de terrain idéalement située dans Chevannes (91750).Cette maison possède 2 niveaux. Elle est composée de trois chambres, d’une cuisine et de deux salles de bains. La maison est neuve.Cette maison se trouve dans un quartier convoité. L’École Élémentaire le Centre et l’École Maternelle de la Plaine sont implantées à moins de 10 minutes à pied. Niveau transports en commun, on trouve la ligne de RER D (Mennecy) ainsi que 13 gares à moins de 10 minutes en voiture. Il y a une bibliothèque, un tennis, une boucherie-charcuterie et une épicerie dans les environs.Son prix de vente est de 288 864 €.Contactez notre agence au (Numéro supprimé) pour toute question sur la propriété.Annonce proposée par un Agent Commercial Partenaire.
L’actualité immobilière à Mennecy
27/11/2023
02/11/2023
30/10/2023
20/10/2023
16/10/2023
16/10/2023