Maison à construire à Milly-la-Forêt (91490)
Images
Description
VENTE : maison de 6 pièces (136 m²) à Oncy-sur-École
EMPLACEMENT PRIVILÉGIÉ - MAISON 6 PIÈCES NEUVE
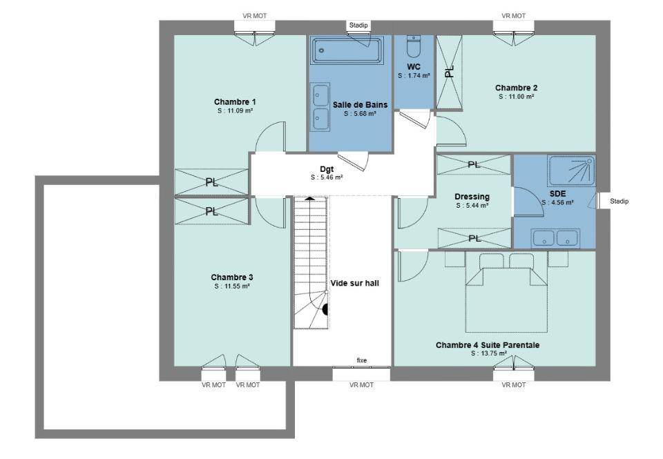
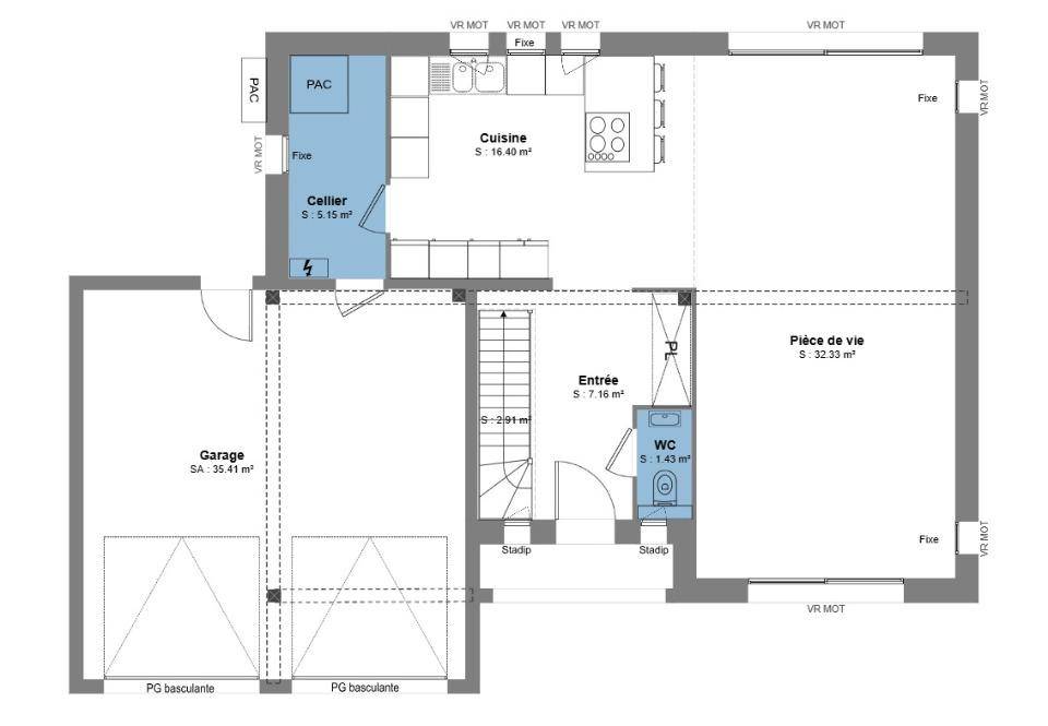
En vente à quelques kilomètres d'Évry-Courcouronnes, découvrez, bénéficiant d'un emplacement d'exception dans Oncy-sur-École (91490), cette maison de 6 pièces de 136 m².
Il s'agit d'une maison de 2 niveaux. Son intérieur dispose de quatre chambres, d'une cuisine et de deux salles de bains. Cette maison est neuve.
Le terrain de la propriété s'étend sur 696 m².
La maison se situe dans un quartier prisé. Il y a l'École Maternelle École Publique et l'École Élémentaire René Descartes à moins de 10 minutes à pied. Niveau transports, on trouve la ligne de RER D (Maisse) ainsi que quatre gares à moins de 10 minutes en voiture.
Elle est à vendre pour la somme de 465 €.
Contactez notre agence au (Numéro supprimé) pour obtenir de plus amples renseignements sur le bien. Maisons Balency Ormoy vous accompagne dans toutes vos démarches et dans tous vos projets immobiliers.
Annonce proposée par un Agent Commercial Partenaire.
Logement susceptibles de vous intéresser
Nous vous proposons de découvrir aussi cette sélection de logements situés à moins de 10km de Milly-la-Forêt et qui seraient susceptibles de vous intéresser.
Saint-Martin-en-Bière
TERRAINFaçade 9,88m s'élargissant à 12m au droit de la construction projetéeProfondeur environ 56mPrix : 125000 €.Sur ce terrain de 655 m² à SAINT-MARTIN-EN-BIERE, Maisons Clairval vous propose de réaliser votre projet de construction de maison individuelle.Maisons Clairval propose de construire votre maison neuve avec toutes les prestations suivantes :- Plan sur-mesure et personnalisé de 2 à 6 chambres- Mode de chauffage au choix- Grands choix d'équipements et de prestations- Matériaux de qualité selon les normes en vigueur- Accompagnement dans le choix et l’acquisition du terrain- Construction conforme à la nouvelle RE 2020Demandez une étude gratuite et personnalisée de votre projet de construction sur ce terrain !Contactez Nicolas REBOUL au (Numéro supprimé) ou au (Numéro supprimé) (Maisons Clairval – Agence de Villemoisson).Prix hors frais de notaire. Terrain sélectionné et vu pour vous sous réserve de disponibilité et au prix indiqué par notre partenaire foncier. Conditions et visuels non contractuels.Cette annonce a été créée et diffusée avec le logiciel VITAHOME.
Vayres-sur-Essonne
TERRAINIdéalement situé, entre ETAMPES (12km) et Milly la Foret (4km) proche de toutes les commodités, écoles et à quelques minutes en voiture de la gare RER.Prix : 135000 €.Sur ce terrain de 634 m² à VAYRES-SUR-ESSONNE, Maisons Clairval vous propose de réaliser votre projet de construction de maison individuelle.Maisons Clairval propose de construire votre maison neuve avec toutes les prestations suivantes :- Plan sur-mesure et personnalisé de 2 à 6 chambres- Mode de chauffage au choix- Grands choix d'équipements et de prestations- Matériaux de qualité selon les normes en vigueur- Accompagnement dans le choix et l’acquisition du terrain- Construction conforme à la nouvelle RE 2020Demandez une étude gratuite et personnalisée de votre projet de construction sur ce terrain !Contactez Nicolas REBOUL au (Numéro supprimé) ou au (Numéro supprimé) (Maisons Clairval – Agence de Villemoisson).Prix hors frais de notaire. Terrain sélectionné et vu pour vous sous réserve de disponibilité et au prix indiqué par notre partenaire foncier. Conditions et visuels non contractuels.Cette annonce a été créée et diffusée avec le logiciel VITAHOME.
Dannemois
TERRAIN(Numéro supprimé) — Les maisons CLAIRVAL vous proposent ce terrain de 432 m², situé à Dannemois, charmant village du sud Essonne à deux pas de Milly-la-Forêt. Vous profiterez d'un cadre de vie agréable, mêlant tranquillité et praticité grâce aux commerces, écoles et services disponibles dans les communes voisines. Les gares RER proches ainsi que les axes routiers facilitent vos déplacements vers Évry et Paris, tout en restant dans un environnement naturel préservé, au cœur du Parc du Gâtinais.Ce terrain plat et bien orienté constitue une opportunité idéale pour concevoir une maison lumineuse, confortable et économe, conforme à la norme RE2020. Votre projet sera étudié sur mesure, avec un large choix de prestations : aménagements intérieurs personnalisés, solutions énergétiques performantes, menuiseries modernes et option d'isolation par l'extérieur.📞 Contactez-nous dès aujourd'hui pour organiser une visite et concrétiser votre projet de vie à Dannemois !Prix : 141000 €.Sur ce terrain de 432 m² à DANNEMOIS, Maisons Clairval vous propose de réaliser votre projet de construction de maison individuelle.Demandez une étude gratuite et personnalisée de votre projet de construction sur ce terrain !Contactez John BOUT au (Numéro supprimé) ou au (Numéro supprimé) (Maisons Clairval – Agence de Rouvres).Prix hors frais de notaire. Terrain sélectionné et vu pour vous sous réserve de disponibilité et au prix indiqué par notre partenaire foncier. Conditions et visuels non contractuels.Cette annonce a été créée et diffusée avec le logiciel VITAHOME.
Arbonne-la-Forêt
TERRAINVENTE : terrain de 600 m² à Arbonne-la-ForêtPROCHE D’ÉVRY-COURCOURONNESÀ Arbonne-la-Forêt (77630) en vente à quelques kilomètres d’Évry-Courcouronnes, imaginez la maison de vos rêves sur ce terrain de 600 m². L’École Élémentaire Louis-Antoine de Saint Just et l’École Maternelle Kergomard sont implantées à moins de 10 minutes à pied.Il est proposé à l’achat pour 135 000 €. Prenez contact avec David CORDIER ((Numéro supprimé)) pour toute question sur le terrain et sur les modalités de vente. Maisons France Confort Melun vous accompagne à toutes les étapes de votre projet et dans toutes vos démarches.Annonce proposée par un Agent Commercial Partenaire.
Maisse
TERRAINEric Mouthon Conseiller Commercial (Numéro supprimé) Étude gratuite et personnalisée sur rendez-vous.Commerces, écoles et gare RER D à proximité, quartier calme et résidentiel en lisière de forêt, terrain à bâtir plat et en lot avant de 404 m2 avec façade de 17m. VIABILISÉ (eau, électricité, tout à l’égout), pas de bâtiments de France. A visiter sans tarder !
Maisse
TERRAINEric Mouthon Conseiller Commercial (Numéro supprimé) Étude gratuite et personnalisée sur rendez-vous.Beau terrain à bâtir d’une surface de 395 m² clos, avec une façade de 15.48m.
Vayres-sur-Essonne
TERRAINEric Mouthon Conseiller Commercial (Numéro supprimé) Étude gratuite et personnalisée sur rendez-vous.Très beau terrain à Batir d’environ 600m2 avec une facade d’environ 24m dans rue paisible sur la commune de Vayres sur Essonne. Clos sur trois coté. Portail existant.
Vayres-sur-Essonne
TERRAIN ET MAISONEric Mouthon Conseiller Commercial (Numéro supprimé) Étude gratuite et personnalisée sur rendez-vous.Agencement Flexible : 4 chambres lumineuses et des plans entièrement personnalisables pour un espace de vie qui vous ressemble. Performance RE 2020 : Une solution thermique et acoustique de pointe, garantissant un confort d’été supérieur (idéal contre la chaleur) et des économies d’énergie. Plancher Chauffant pour une chaleur douce et uniforme, sans radiateur encombrant. Volets Roulants (VR) motorisés et centralisé. Saisissez cette opportunité de bâtir une maison intelligente, éco-performante et sur mesure, dans un environnement paisible.
Maisse
TERRAIN ET MAISONEric Mouthon Conseiller Commercial (Numéro supprimé) Étude gratuite et personnalisée sur rendez-vous.Agencement Flexible : 4 chambres lumineuses et des plans entièrement personnalisables pour un espace de vie qui vous ressemble. Performance RE 2020 : Une solution thermique et acoustique de pointe, garantissant un confort d’été supérieur (idéal contre la chaleur) et des économies d’énergie. Plancher Chauffant pour une chaleur douce et uniforme, sans radiateur encombrant. Volets Roulants (VR) motorisés et centralisé. Saisissez cette opportunité de bâtir une maison intelligente, éco-performante et sur mesure, dans un environnement paisible.
L’actualité immobilière à Milly-la-Forêt
27/11/2023
02/11/2023
30/10/2023
20/10/2023
16/10/2023
16/10/2023