Terrain à vendre

Maison à construire à Ormoy (91540)

311986 €
90 m²
Ormoy
Essonne (91)
TERRAIN ET MAISON
Réf externe: 3593922
Annonce publiée le 14 décembre 2025

Images

Description

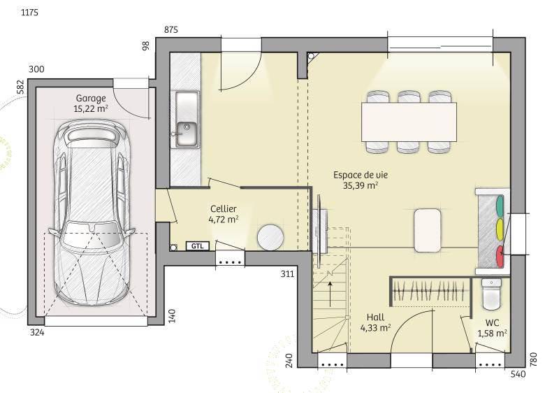
VENTE d'une maison de 5 pièces (90 m²) à Ormoy
MAISON 5 PIÈCES NEUVE 
À proximité du RER D (station Corbeil-Essonnes, 40 min de Paris), nous sommes heureux de vous proposer cette maison de 5 pièces de 90 m² et de 319 m² de terrain à Ormoy (91540). Elle offre trois chambres, une cuisine et une salle de bains.
Cette maison possède 2 niveaux. Elle est neuve.
L'École Primaire Saint-Jacques, l'École Maternelle de l'Aune et l'École Élémentaire Louis Pasteur se trouvent à moins de 10 minutes à pied, tout comme une structure d'accueil pour les enfants en bas âge. Niveau transports en commun, il y a la ligne de RER D (Le Plessis-Chenet) ainsi que 17 gares à moins de 10 minutes en voiture. On trouve des commerces, quatre boulangeries, un supermarché, une supérette et deux boucheries-charcuteries dans les environs.
Elle est à vendre pour la somme de 311 986 €.
Prenez contact avec notre agence (DELOHEN Anne : (Numéro supprimé)) pour plus d'informations sur cette maison ou sur les démarches à suivre.


Annonce proposée par un Agent Commercial Partenaire.

CONTACTER

Logement susceptibles de vous intéresser

118 000 € 378 €/m²
312 m²

Le Coudray-Montceaux

TERRAIN

Opportunité foncière rare : bâtissez votre futur foyer dans un écrin de verdure préservéSitué dans un secteur privilégié PROCHE DU COUDRAY MONTCEAUX ce hameau recherché offre un cadre de vie d’exception alliant sérénité et commodités urbaines. Maisons Balency, premier constructeur de maisons individuelles en France, depuis plus de 100 ans vous accompagne dans la réalisation de votre projet de construction sur-mesure.Un emplacement stratégiqueLe secteur bénéficie d’une accessibilité remarquable, idéale pour les actifs cherchant à concilier vie professionnelle et calme résidentiel :Accès direct et rapide aux axes A6 et N104.Gare du RER D à proximité (Paris en environ 50 minutes).Lignes de bus (3631, 3421) assurant la liaison vers Melun.La vie de famille au coeur du projetL’atout majeur de ce hameau réside dans la proximité immédiate de l’éducation : l’école maternelle et élémentaire Joaquim de Château Villard est située directement au sein du hameau. Un avantage « coup de coeur » permettant aux enfants d’étudier en toute sécurité à deux pas de la maison. Les collèges et lycées sont desservis par des transports scolaires réguliers.Un quotidien facilité par les servicesProfitez d’une offre commerciale complète à moins de 10 minutes :Centres commerciaux de Villiers-en-Bière (Carrefour) et Grand Frais.Proximité immédiate des pôles d’excellence de Bois Sénart et Carré Sénart.Des conditions financières et techniques exceptionnellesRéaliser votre projet dans ce secteur, c’est bénéficier d’avantages économiques rares pour optimiser votre budget :Éligibilité PTZ (Zone A) : Profitez de conditions de financement avantageuses.Fiscalité réduite : Frais de notaire réduits, exonération totale de la part communale de la taxe d’aménagement et de la taxe de raccordement à l’égout (PFAC).Prêt à bâtir : Terrains entièrement viabilisés (y compris la fibre optique) avec les clôtures sur rue déjà réalisées.Votre projet de vie avec l’expertise Maisons BalencyEn

119 000 € 335 €/m²
355 m²

Le Coudray-Montceaux

TERRAIN

Opportunité foncière rare : bâtissez votre futur foyer dans un écrin de verdure préservéSitué dans un secteur privilégié PROCHE DU COUDRAY MONTCEAUX ce hameau recherché offre un cadre de vie d’exception alliant sérénité et commodités urbaines. Maisons Balency, premier constructeur de maisons individuelles en France, depuis plus de 100 ans vous accompagne dans la réalisation de votre projet de construction sur-mesure.Un emplacement stratégiqueLe secteur bénéficie d’une accessibilité remarquable, idéale pour les actifs cherchant à concilier vie professionnelle et calme résidentiel :Accès direct et rapide aux axes A6 et N104.Gare du RER D à proximité (Paris en environ 50 minutes).Lignes de bus (3631, 3421) assurant la liaison vers Melun.La vie de famille au coeur du projetL’atout majeur de ce hameau réside dans la proximité immédiate de l’éducation : l’école maternelle et élémentaire Joaquim de Château Villard est située directement au sein du hameau. Un avantage « coup de coeur » permettant aux enfants d’étudier en toute sécurité à deux pas de la maison. Les collèges et lycées sont desservis par des transports scolaires réguliers.Un quotidien facilité par les servicesProfitez d’une offre commerciale complète à moins de 10 minutes :Centres commerciaux de Villiers-en-Bière (Carrefour) et Grand Frais.Proximité immédiate des pôles d’excellence de Bois Sénart et Carré Sénart.Des conditions financières et techniques exceptionnellesRéaliser votre projet dans ce secteur, c’est bénéficier d’avantages économiques rares pour optimiser votre budget :Éligibilité PTZ (Zone A) : Profitez de conditions de financement avantageuses.Fiscalité réduite : Frais de notaire réduits, exonération totale de la part communale de la taxe d’aménagement et de la taxe de raccordement à l’égout (PFAC).Prêt à bâtir : Terrains entièrement viabilisés (y compris la fibre optique) avec les clôtures sur rue déjà réalisées.Votre projet de vie avec l’expertise Maisons BalencyEn

114 000 € 437 €/m²
261 m²

Le Coudray-Montceaux

TERRAIN

Opportunité foncière rare : bâtissez votre futur foyer dans un écrin de verdure préservéSitué dans un secteur privilégié PROCHE DU COUDRAY MONTCEAUX ce hameau recherché offre un cadre de vie d’exception alliant sérénité et commodités urbaines. Maisons Balency, premier constructeur de maisons individuelles en France, depuis plus de 100 ans vous accompagne dans la réalisation de votre projet de construction sur-mesure.Un emplacement stratégiqueLe secteur bénéficie d’une accessibilité remarquable, idéale pour les actifs cherchant à concilier vie professionnelle et calme résidentiel :Accès direct et rapide aux axes A6 et N104.Gare du RER D à proximité (Paris en environ 50 minutes).Lignes de bus (3631, 3421) assurant la liaison vers Melun.La vie de famille au coeur du projetL’atout majeur de ce hameau réside dans la proximité immédiate de l’éducation : l’école maternelle et élémentaire Joaquim de Château Villard est située directement au sein du hameau. Un avantage « coup de coeur » permettant aux enfants d’étudier en toute sécurité à deux pas de la maison. Les collèges et lycées sont desservis par des transports scolaires réguliers.Un quotidien facilité par les servicesProfitez d’une offre commerciale complète à moins de 10 minutes :Centres commerciaux de Villiers-en-Bière (Carrefour) et Grand Frais.Proximité immédiate des pôles d’excellence de Bois Sénart et Carré Sénart.Des conditions financières et techniques exceptionnellesRéaliser votre projet dans ce secteur, c’est bénéficier d’avantages économiques rares pour optimiser votre budget :Éligibilité PTZ (Zone A) : Profitez de conditions de financement avantageuses.Fiscalité réduite : Frais de notaire réduits, exonération totale de la part communale de la taxe d’aménagement et de la taxe de raccordement à l’égout (PFAC).Prêt à bâtir : Terrains entièrement viabilisés (y compris la fibre optique) avec les clôtures sur rue déjà réalisées.Votre projet de vie avec l’expertise Maisons BalencyEn

112 000 € 455 €/m²
246 m²

Le Coudray-Montceaux

TERRAIN

Opportunité foncière rare : bâtissez votre futur foyer dans un écrin de verdure préservéSitué dans un secteur privilégié PROCHE DU COUDRAY MONTCEAUX ce hameau recherché offre un cadre de vie d’exception alliant sérénité et commodités urbaines. Maisons Balency, premier constructeur de maisons individuelles en France, depuis plus de 100 ans vous accompagne dans la réalisation de votre projet de construction sur-mesure.Un emplacement stratégiqueLe secteur bénéficie d’une accessibilité remarquable, idéale pour les actifs cherchant à concilier vie professionnelle et calme résidentiel :Accès direct et rapide aux axes A6 et N104.Gare du RER D à proximité (Paris en environ 50 minutes).Lignes de bus (3631, 3421) assurant la liaison vers Melun.La vie de famille au coeur du projetL’atout majeur de ce hameau réside dans la proximité immédiate de l’éducation : l’école maternelle et élémentaire Joaquim de Château Villard est située directement au sein du hameau. Un avantage « coup de coeur » permettant aux enfants d’étudier en toute sécurité à deux pas de la maison. Les collèges et lycées sont desservis par des transports scolaires réguliers.Un quotidien facilité par les servicesProfitez d’une offre commerciale complète à moins de 10 minutes :Centres commerciaux de Villiers-en-Bière (Carrefour) et Grand Frais.Proximité immédiate des pôles d’excellence de Bois Sénart et Carré Sénart.Des conditions financières et techniques exceptionnellesRéaliser votre projet dans ce secteur, c’est bénéficier d’avantages économiques rares pour optimiser votre budget :Éligibilité PTZ (Zone A) : Profitez de conditions de financement avantageuses.Fiscalité réduite : Frais de notaire réduits, exonération totale de la part communale de la taxe d’aménagement et de la taxe de raccordement à l’égout (PFAC).Prêt à bâtir : Terrains entièrement viabilisés (y compris la fibre optique) avec les clôtures sur rue déjà réalisées.Votre projet de vie avec l’expertise Maisons BalencyEn

120 000 € 326 €/m²
368 m²

Le Coudray-Montceaux

TERRAIN

Opportunité foncière rare : bâtissez votre futur foyer dans un écrin de verdure préservéSitué dans un secteur privilégié PROCHE DU COUDRAY MONTCEAUX ce hameau recherché offre un cadre de vie d’exception alliant sérénité et commodités urbaines. Maisons Balency, premier constructeur de maisons individuelles en France, depuis plus de 100 ans vous accompagne dans la réalisation de votre projet de construction sur-mesure.Un emplacement stratégiqueLe secteur bénéficie d’une accessibilité remarquable, idéale pour les actifs cherchant à concilier vie professionnelle et calme résidentiel :Accès direct et rapide aux axes A6 et N104.Gare du RER D à proximité (Paris en environ 50 minutes).Lignes de bus (3631, 3421) assurant la liaison vers Melun.La vie de famille au coeur du projetL’atout majeur de ce hameau réside dans la proximité immédiate de l’éducation : l’école maternelle et élémentaire Joaquim de Château Villard est située directement au sein du hameau. Un avantage « coup de coeur » permettant aux enfants d’étudier en toute sécurité à deux pas de la maison. Les collèges et lycées sont desservis par des transports scolaires réguliers.Un quotidien facilité par les servicesProfitez d’une offre commerciale complète à moins de 10 minutes :Centres commerciaux de Villiers-en-Bière (Carrefour) et Grand Frais.Proximité immédiate des pôles d’excellence de Bois Sénart et Carré Sénart.Des conditions financières et techniques exceptionnellesRéaliser votre projet dans ce secteur, c’est bénéficier d’avantages économiques rares pour optimiser votre budget :Éligibilité PTZ (Zone A) : Profitez de conditions de financement avantageuses.Fiscalité réduite : Frais de notaire réduits, exonération totale de la part communale de la taxe d’aménagement et de la taxe de raccordement à l’égout (PFAC).Prêt à bâtir : Terrains entièrement viabilisés (y compris la fibre optique) avec les clôtures sur rue déjà réalisées.Votre projet de vie avec l’expertise Maisons BalencyEn

119 000 € 342 €/m²
348 m²

Le Coudray-Montceaux

TERRAIN

Opportunité foncière rare : bâtissez votre futur foyer dans un écrin de verdure préservéSitué dans un secteur privilégié PROCHE DU COUDRAY MONTCEAUX ce hameau recherché offre un cadre de vie d’exception alliant sérénité et commodités urbaines. Maisons Balency, premier constructeur de maisons individuelles en France, depuis plus de 100 ans vous accompagne dans la réalisation de votre projet de construction sur-mesure.Un emplacement stratégiqueLe secteur bénéficie d’une accessibilité remarquable, idéale pour les actifs cherchant à concilier vie professionnelle et calme résidentiel :Accès direct et rapide aux axes A6 et N104.Gare du RER D à proximité (Paris en environ 50 minutes).Lignes de bus (3631, 3421) assurant la liaison vers Melun.La vie de famille au coeur du projetL’atout majeur de ce hameau réside dans la proximité immédiate de l’éducation : l’école maternelle et élémentaire Joaquim de Château Villard est située directement au sein du hameau. Un avantage « coup de coeur » permettant aux enfants d’étudier en toute sécurité à deux pas de la maison. Les collèges et lycées sont desservis par des transports scolaires réguliers.Un quotidien facilité par les servicesProfitez d’une offre commerciale complète à moins de 10 minutes :Centres commerciaux de Villiers-en-Bière (Carrefour) et Grand Frais.Proximité immédiate des pôles d’excellence de Bois Sénart et Carré Sénart.Des conditions financières et techniques exceptionnellesRéaliser votre projet dans ce secteur, c’est bénéficier d’avantages économiques rares pour optimiser votre budget :Éligibilité PTZ (Zone A) : Profitez de conditions de financement avantageuses.Fiscalité réduite : Frais de notaire réduits, exonération totale de la part communale de la taxe d’aménagement et de la taxe de raccordement à l’égout (PFAC).Prêt à bâtir : Terrains entièrement viabilisés (y compris la fibre optique) avec les clôtures sur rue déjà réalisées.Votre projet de vie avec l’expertise Maisons BalencyEn

415 000 €
160 m²

Le Coudray-Montceaux

TERRAIN ET MAISON

Opportunité foncière rare : bâtissez votre futur foyer dans un écrin de verdure préservéPROPOSTION TERRAIN + CONSTRUCTION RE2020 ECONOME EN ENERGIE MAISONS BALENCY Situé dans un secteur privilégié PROCHE DU COUDRAY MONTCEAUX ce hameau recherché offre un cadre de vie d’exception alliant sérénité et commodités urbaines. Maisons Balency, premier constructeur de maisons individuelles en France, depuis plus de 100 ans vous accompagne dans la réalisation de votre projet de construction sur-mesure.Un emplacement stratégiqueLe secteur bénéficie d’une accessibilité remarquable, idéale pour les actifs cherchant à concilier vie professionnelle et calme résidentiel :Accès direct et rapide aux axes A6 et N104.Gare du RER D à proximité (Paris en environ 50 minutes).Lignes de bus (3631, 3421) assurant la liaison vers Melun.La vie de famille au coeur du projetL’atout majeur de ce hameau réside dans la proximité immédiate de l’éducation : l’école maternelle et élémentaire Joaquim de Château Villard est située directement au sein du hameau. Un avantage « coup de coeur » permettant aux enfants d’étudier en toute sécurité à deux pas de la maison. Les collèges et lycées sont desservis par des transports scolaires réguliers.Un quotidien facilité par les servicesProfitez d’une offre commerciale complète à moins de 10 minutes :Centres commerciaux de Villiers-en-Bière (Carrefour) et Grand Frais.Proximité immédiate des pôles d’excellence de Bois Sénart et Carré Sénart.Des conditions financières et techniques exceptionnellesRéaliser votre projet dans ce secteur, c’est bénéficier d’avantages économiques rares pour optimiser votre budget :Éligibilité PTZ (Zone A) : Profitez de conditions de financement avantageuses.Fiscalité réduite : Frais de notaire réduits, exonération totale de la part communale de la taxe d’aménagement et de la taxe de raccordement à l’égout (PFAC).Prêt à bâtir : Terrains entièrement viabilisés (y compris la fibre optique) avec les clôtures

125 000 € 282 €/m²
443 m²

Le Coudray-Montceaux

TERRAIN

Opportunité foncière rare : bâtissez votre futur foyer dans un écrin de verdure préservéSitué dans un secteur privilégié PROCHE DU COUDRAY MONTCEAUX ce hameau recherché offre un cadre de vie d’exception alliant sérénité et commodités urbaines. Maisons Balency, premier constructeur de maisons individuelles en France, depuis plus de 100 ans vous accompagne dans la réalisation de votre projet de construction sur-mesure.Un emplacement stratégiqueLe secteur bénéficie d’une accessibilité remarquable, idéale pour les actifs cherchant à concilier vie professionnelle et calme résidentiel :Accès direct et rapide aux axes A6 et N104.Gare du RER D à proximité (Paris en environ 50 minutes).Lignes de bus (3631, 3421) assurant la liaison vers Melun.La vie de famille au coeur du projetL’atout majeur de ce hameau réside dans la proximité immédiate de l’éducation : l’école maternelle et élémentaire Joaquim de Château Villard est située directement au sein du hameau. Un avantage « coup de coeur » permettant aux enfants d’étudier en toute sécurité à deux pas de la maison. Les collèges et lycées sont desservis par des transports scolaires réguliers.Un quotidien facilité par les servicesProfitez d’une offre commerciale complète à moins de 10 minutes :Centres commerciaux de Villiers-en-Bière (Carrefour) et Grand Frais.Proximité immédiate des pôles d’excellence de Bois Sénart et Carré Sénart.Des conditions financières et techniques exceptionnellesRéaliser votre projet dans ce secteur, c’est bénéficier d’avantages économiques rares pour optimiser votre budget :Éligibilité PTZ (Zone A) : Profitez de conditions de financement avantageuses.Fiscalité réduite : Frais de notaire réduits, exonération totale de la part communale de la taxe d’aménagement et de la taxe de raccordement à l’égout (PFAC).Prêt à bâtir : Terrains entièrement viabilisés (y compris la fibre optique) avec les clôtures sur rue déjà réalisées.Votre projet de vie avec l’expertise Maisons BalencyEn

120 000 € 363 €/m²
331 m²

Le Coudray-Montceaux

TERRAIN

Opportunité foncière rare : bâtissez votre futur foyer dans un écrin de verdure préservéSitué dans un secteur privilégié PROCHE DU COUDRAY MONTCEAUX ce hameau recherché offre un cadre de vie d’exception alliant sérénité et commodités urbaines. Maisons Balency, premier constructeur de maisons individuelles en France, depuis plus de 100 ans vous accompagne dans la réalisation de votre projet de construction sur-mesure.Un emplacement stratégiqueLe secteur bénéficie d’une accessibilité remarquable, idéale pour les actifs cherchant à concilier vie professionnelle et calme résidentiel :Accès direct et rapide aux axes A6 et N104.Gare du RER D à proximité (Paris en environ 50 minutes).Lignes de bus (3631, 3421) assurant la liaison vers Melun.La vie de famille au coeur du projetL’atout majeur de ce hameau réside dans la proximité immédiate de l’éducation : l’école maternelle et élémentaire Joaquim de Château Villard est située directement au sein du hameau. Un avantage « coup de coeur » permettant aux enfants d’étudier en toute sécurité à deux pas de la maison. Les collèges et lycées sont desservis par des transports scolaires réguliers.Un quotidien facilité par les servicesProfitez d’une offre commerciale complète à moins de 10 minutes :Centres commerciaux de Villiers-en-Bière (Carrefour) et Grand Frais.Proximité immédiate des pôles d’excellence de Bois Sénart et Carré Sénart.Des conditions financières et techniques exceptionnellesRéaliser votre projet dans ce secteur, c’est bénéficier d’avantages économiques rares pour optimiser votre budget :Éligibilité PTZ (Zone A) : Profitez de conditions de financement avantageuses.Fiscalité réduite : Frais de notaire réduits, exonération totale de la part communale de la taxe d’aménagement et de la taxe de raccordement à l’égout (PFAC).Prêt à bâtir : Terrains entièrement viabilisés (y compris la fibre optique) avec les clôtures sur rue déjà réalisées.Votre projet de vie avec l’expertise Maisons BalencyEn

L’actualité immobilière à Ormoy

Image du post Pourquoi acheter un terrain en lotissement ? 27/11/2023
Lire l’article
Pourquoi acheter un terrain en lotissement ?
Image du post Vendre son terrain à un promoteur : comment procéder ? 02/11/2023
Lire l’article
Vendre son terrain à un promoteur : comment procéder ?
Image du post Diviser le terrain de sa maison pour le vendre : pourquoi et comment ? 30/10/2023
Lire l’article
Diviser le terrain de sa maison pour le vendre : pourquoi et comment ?
Image du post Acheter un terrain viabilisé : quels avantages ? 20/10/2023
Lire l’article
Acheter un terrain viabilisé : quels avantages ?
Image du post Les 7 étapes incontournables pour bien vendre votre terrain constructible 16/10/2023
Lire l’article
Les 7 étapes incontournables pour bien vendre votre terrain constructible
Image du post 5 points clés à vérifier pour l’achat d’un terrain constructible  16/10/2023
Lire l’article
5 points clés à vérifier pour l’achat d’un terrain constructible