Maison à construire à Palaiseau (91120)
Images
Description
Eric Mouthon Conseiller Commercial (Numéro supprimé) Étude gratuite et personnalisée sur rendez-vous.
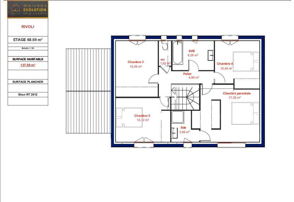
Agencement Flexible :4 chambres lumineuses et des plans entièrement personnalisables pour un espace de vie qui vous ressemble. Performance RE 2020 : Une solution thermique et acoustique de pointe, garantissant un confort d'été supérieur (idéal contre la chaleur) et des économies d'énergie. Plancher Chauffant pour une chaleur douce et uniforme, sans radiateur encombrant. Volets Roulants (VR) motorisés et centralisé. Saisissez cette opportunité de bâtir une maison intelligente, éco-performante et sur mesure, dans un environnement paisible.
Logement susceptibles de vous intéresser
Nous vous proposons de découvrir aussi cette sélection de logements situés à moins de 10km de Palaiseau et qui seraient susceptibles de vous intéresser.
Villemoisson-sur-Orge
TERRAINEn plein quartier pavillonnaire, TERRAIN constructible de 335m2 en lot avant et avec une façade de 13,50 mètres. Non viabilisé et libre de constructeur !Cette annonce référence 309804 vous est présentée par votre agent commercial BSK Immobilier VICTOR BARTOLOMEU (EI) immatriculé au RSAC de CRETEIL (94000) sous le numéro 51746100000039.Prix du bien : 170 000,00 €Les honoraires d’agence sont à la charge du vendeur.Les informations sur les risques auxquels ce bien est exposé sont disponibles sur le site Géorisques : www.georisques.gouv.fr
Villemoisson-sur-Orge
TERRAINAu calme en zone pavillonnaire, TERRAIN constructible de 380m2 en lot avant, plat et avec une façade de 8,5 mètres. Non viabilisé.Cette annonce référence 309806 vous est présentée par votre agent commercial BSK Immobilier VICTOR BARTOLOMEU (EI) immatriculé au RSAC de CRETEIL (94000) sous le numéro 51746100000039.Prix du bien : 189 000,00 €Les honoraires d’agence sont à la charge du vendeur.Les informations sur les risques auxquels ce bien est exposé sont disponibles sur le site Géorisques : www.georisques.gouv.fr
Villemoisson-sur-Orge
TERRAINAu calme en zone pavillonnaire, TERRAIN constructible de 427m2 plat et en lot arrière, avec une façade de 17,64m2. Non viabilisé !Cette annonce référence 309807 vous est présentée par votre agent commercial BSK Immobilier VICTOR BARTOLOMEU (EI) immatriculé au RSAC de CRETEIL (94000) sous le numéro 51746100000039.Prix du bien : 210 000,00 €Les honoraires d’agence sont à la charge du vendeur.Les informations sur les risques auxquels ce bien est exposé sont disponibles sur le site Géorisques : www.georisques.gouv.fr
Bièvres
TERRAINEric Mouthon Conseiller Commercial (Numéro supprimé) Étude gratuite et personnalisée sur rendez-vous.En plein centre ville de Bièvres avec commerces, écoles et RER à pied, terrain constructible parfaitement plat de 281 m² avec facade de 15 mètres sur rue. Il se situe en zone centre village du PLU de la commune de Bièvres, soit la zone UA. il offre une emprise au sol d’environ 100 m² sur R+1+combles.Viabilisé sur la rue avec eau+electricité+gaz. Petite maison à démolir.Orientation SUD-OUEST.Etude de sol G1 réalisée.
Palaiseau
TERRAINEric Mouthon Conseiller Commercial (Numéro supprimé) Étude gratuite et personnalisée sur rendez-vous.Situé sur les hauteurs de Palaiseau, à la limite d’Igny (quartier Gommonvilliers), ce terrain plat et arboré de 436 m² offre un environnement paisible, une belle vue dégagée sur le sud de Paris.
Montlhéry
TERRAINEric Mouthon Conseiller Commercial MaisonsEvolution (Numéro supprimé) Étude gratuite et personnalisée sur rendez-vous.Situé sur les hauteurs de Montlhéry, dans un secteur calme et recherché, venez découvrir ce terrain à bâtir de 531 m² offrant une façade de 14,26 mètres.
Bièvres
TERRAIN ET MAISONEric Mouthon Conseiller Commercial (Numéro supprimé) Étude gratuite et personnalisée sur rendez-vous.Agencement Flexible :5 chambres lumineuses et des plans entièrement personnalisables pour un espace de vie qui vous ressemble. Performance RE 2020 : Une solution thermique et acoustique de pointe, garantissant un confort d’été supérieur (idéal contre la chaleur) et des économies d’énergie. Plancher Chauffant pour une chaleur douce et uniforme, sans radiateur encombrant. Volets Roulants (VR) motorisés et centralisé. Saisissez cette opportunité de bâtir une maison intelligente, éco-performante et sur mesure, dans un environnement paisible.
Palaiseau
TERRAIN ET MAISONEric Mouthon Conseiller Commercial (Numéro supprimé) Étude gratuite et personnalisée sur rendez-vous.Agencement Flexible :4 chambres lumineuses et des plans entièrement personnalisables pour un espace de vie qui vous ressemble. Performance RE 2020 : Une solution thermique et acoustique de pointe, garantissant un confort d’été supérieur (idéal contre la chaleur) et des économies d’énergie. Plancher Chauffant pour une chaleur douce et uniforme, sans radiateur encombrant. Volets Roulants (VR) motorisés et centralisé. Saisissez cette opportunité de bâtir une maison intelligente, éco-performante et sur mesure, dans un environnement paisible.
Montlhéry
TERRAIN ET MAISONEric Mouthon Conseiller Commercial MaisonsEvolution (Numéro supprimé) Étude gratuite et personnalisée sur rendez-vous.Situé sur les hauteurs de Montlhéry, dans un secteur calme et recherché, venez découvrir ce terrain à bâtir de 531 m² offrant une façade de 14,26 mètres.Agencement Flexible :4 chambres lumineuses et des plans entièrement personnalisables pour un espace de vie qui vous ressemble. Performance RE 2020 : Une solution thermique et acoustique de pointe, garantissant un confort d’été supérieur (idéal contre la chaleur) et des économies d’énergie. Plancher Chauffant pour une chaleur douce et uniforme, sans radiateur encombrant. Volets Roulants (VR) motorisés et centralisé. Saisissez cette opportunité de bâtir une maison intelligente, éco-performante et sur mesure, dans un environnement paisible.
L’actualité immobilière à Palaiseau
27/11/2023
02/11/2023
30/10/2023
20/10/2023
16/10/2023
16/10/2023