Maison à construire à Prunay-sur-Essonne (91720)
Images
Description
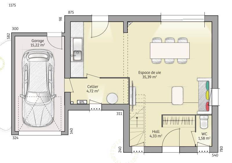
VENTE d'une maison de 5 pièces (90 m²) à Prunay-sur-Essonne
EMPLACEMENT PRIVILÉGIÉ - MAISON 5 PIÈCES NEUVE
En vente à quelques kilomètres de Corbeil-Essonnes, nous sommes ravis de vous présenter, bénéficiant d'un emplacement privilégié dans Prunay-sur-Essonne (91720), cette maison de 5 pièces de 90 m² et de 733 m² de terrain. Son intérieur inclut trois chambres, une cuisine et une salle de bains.
Cette maison possède 2 niveaux. Elle est neuve.
Cette maison se situe dans un quartier recherché. L'École Élémentaire Publique est implantée à moins de 10 minutes à pied. Côté transports en commun, on trouve la ligne de RER D (Boigneville) ainsi que cinq gares à moins de 10 minutes en voiture. Il y a un commerce et une boucherie-charcuterie dans les environs.
Son prix de vente est de 293 400 €.
Prenez contact avec Anne DELOHEN ((Numéro supprimé)) pour toute information sur la maison ou sur les démarches à suivre. Faites de vos projets immobiliers une réalité avec Maisons France Confort Nemours.
Annonce proposée par un Agent Commercial Partenaire.
Logement susceptibles de vous intéresser
Nous vous proposons de découvrir aussi cette sélection de logements situés à moins de 10km de Prunay-sur-Essonne et qui seraient susceptibles de vous intéresser.
Champmotteux
TERRAINCHAMPMOTTEUX, est un charmant village authentique situé à quelques minutes d’Etampes de ses commerces et de ses collèges et lycées, mais aussi à 5 minutes de la gare de Gironville (Paris de gare Lyon) et à proximité des grands axes routiers, autoroute A6 et N20.Prix : 75800 €.Sur ce terrain de 450 m² à CHAMPMOTTEUX, Maisons Clairval vous propose de réaliser votre projet de construction de maison individuelle.Maisons Clairval propose de construire votre maison neuve avec toutes les prestations suivantes :- Plan sur-mesure et personnalisé de 2 à 6 chambres- Mode de chauffage au choix- Grands choix d'équipements et de prestations- Matériaux de qualité selon les normes en vigueur- Accompagnement dans le choix et l’acquisition du terrain- Construction conforme à la nouvelle RE 2020Demandez une étude gratuite et personnalisée de votre projet de construction sur ce terrain !Contactez Nicolas REBOUL au (Numéro supprimé) ou au (Numéro supprimé) (Maisons Clairval – Agence de Villemoisson).Prix hors frais de notaire. Terrain sélectionné et vu pour vous sous réserve de disponibilité et au prix indiqué par notre partenaire foncier. Conditions et visuels non contractuels.Cette annonce a été créée et diffusée avec le logiciel VITAHOME.
Vayres-sur-Essonne
TERRAINIdéalement situé, entre ETAMPES (12km) et Milly la Foret (4km) proche de toutes les commodités, écoles et à quelques minutes en voiture de la gare RER.Prix : 135000 €.Sur ce terrain de 634 m² à VAYRES-SUR-ESSONNE, Maisons Clairval vous propose de réaliser votre projet de construction de maison individuelle.Maisons Clairval propose de construire votre maison neuve avec toutes les prestations suivantes :- Plan sur-mesure et personnalisé de 2 à 6 chambres- Mode de chauffage au choix- Grands choix d'équipements et de prestations- Matériaux de qualité selon les normes en vigueur- Accompagnement dans le choix et l’acquisition du terrain- Construction conforme à la nouvelle RE 2020Demandez une étude gratuite et personnalisée de votre projet de construction sur ce terrain !Contactez Nicolas REBOUL au (Numéro supprimé) ou au (Numéro supprimé) (Maisons Clairval – Agence de Villemoisson).Prix hors frais de notaire. Terrain sélectionné et vu pour vous sous réserve de disponibilité et au prix indiqué par notre partenaire foncier. Conditions et visuels non contractuels.Cette annonce a été créée et diffusée avec le logiciel VITAHOME.
Brouy
TERRAIN(Numéro supprimé) — Les maisons CLAIRVAL vous proposent ce terrain de 836 m² situé à Fenneville, un charmant village à seulement 6 km de Brouy et à 25 km d’Étampes, avec un accès rapide aux commodités, commerces, écoles et transports vers Paris.Ce terrain spacieux et bien orienté vous permettra d’envisager la construction de la maison de vos rêves, lumineuse, confortable, économique et conforme à la réglementation RE2020.Nous concevons avec vous un projet sur mesure, aux plans personnalisables, avec isolation par l’extérieur en option, prestations au choix (carrelage, sanitaires, menuiseries…), et contrôle intelligent de l’environnement (volets, éclairage, chauffage…).📞 Organisez une visite et imaginez votre projet sur ce beau terrain.Prix : 60000 €.Sur ce terrain de 836 m² à BROUY, Maisons Clairval vous propose de réaliser votre projet de construction de maison individuelle.Demandez une étude gratuite et personnalisée de votre projet de construction sur ce terrain !Contactez John BOUT au (Numéro supprimé) ou au (Numéro supprimé) (Maisons Clairval – Agence de Rouvres).Prix hors frais de notaire. Terrain sélectionné et vu pour vous sous réserve de disponibilité et au prix indiqué par notre partenaire foncier. Conditions et visuels non contractuels.Cette annonce a été créée et diffusée avec le logiciel VITAHOME.
Maisse
TERRAINEric Mouthon Conseiller Commercial (Numéro supprimé) Étude gratuite et personnalisée sur rendez-vous.Commerces, écoles et gare RER D à proximité, quartier calme et résidentiel en lisière de forêt, terrain à bâtir plat et en lot avant de 404 m2 avec façade de 17m. VIABILISÉ (eau, électricité, tout à l’égout), pas de bâtiments de France. A visiter sans tarder !
Maisse
TERRAINEric Mouthon Conseiller Commercial (Numéro supprimé) Étude gratuite et personnalisée sur rendez-vous.Beau terrain à bâtir d’une surface de 395 m² clos, avec une façade de 15.48m.
Vayres-sur-Essonne
TERRAINEric Mouthon Conseiller Commercial (Numéro supprimé) Étude gratuite et personnalisée sur rendez-vous.Très beau terrain à Batir d’environ 600m2 avec une facade d’environ 24m dans rue paisible sur la commune de Vayres sur Essonne. Clos sur trois coté. Portail existant.
Vayres-sur-Essonne
TERRAIN ET MAISONEric Mouthon Conseiller Commercial (Numéro supprimé) Étude gratuite et personnalisée sur rendez-vous.Agencement Flexible : 4 chambres lumineuses et des plans entièrement personnalisables pour un espace de vie qui vous ressemble. Performance RE 2020 : Une solution thermique et acoustique de pointe, garantissant un confort d’été supérieur (idéal contre la chaleur) et des économies d’énergie. Plancher Chauffant pour une chaleur douce et uniforme, sans radiateur encombrant. Volets Roulants (VR) motorisés et centralisé. Saisissez cette opportunité de bâtir une maison intelligente, éco-performante et sur mesure, dans un environnement paisible.
Maisse
TERRAIN ET MAISONEric Mouthon Conseiller Commercial (Numéro supprimé) Étude gratuite et personnalisée sur rendez-vous.Agencement Flexible : 4 chambres lumineuses et des plans entièrement personnalisables pour un espace de vie qui vous ressemble. Performance RE 2020 : Une solution thermique et acoustique de pointe, garantissant un confort d’été supérieur (idéal contre la chaleur) et des économies d’énergie. Plancher Chauffant pour une chaleur douce et uniforme, sans radiateur encombrant. Volets Roulants (VR) motorisés et centralisé. Saisissez cette opportunité de bâtir une maison intelligente, éco-performante et sur mesure, dans un environnement paisible.
Prunay-sur-Essonne
TERRAINVENTE d’un terrain de 733 m² à Prunay-sur-EssonneEMPLACEMENT PRIVILÉGIÉ – VUE SANS VIS-À-VISGrand terrain à vendre à deux pas de Corbeil-Essonnes. De 733 m², ce terrain se situe bénéficiant d’un emplacement d’exception dans Prunay-sur-Essonne (91720). Il profite d’une vue sans vis-à-vis. Dans un quartier convoité, ce terrain est proche des commerces et des écoles. L’École Élémentaire Publique se trouve à moins de 10 minutes à pied. Niveau transports, il y a la ligne de RER D (Boigneville) ainsi que cinq gares à moins de 10 minutes en voiture. On trouve un commerce et une boucherie-charcuterie à quelques minutes à peine.Son prix de vente est de 115 500 €. Contactez notre agence (Anne DELOHEN : (Numéro supprimé)) pour tout renseignement sur le terrain, sur les démarches à suivre ou sur les modalités de vente. Maisons France Confort Nemours est là pour vous accompagner à toutes les étapes de votre projet.Annonce proposée par un Agent Commercial Partenaire.
L’actualité immobilière à Prunay-sur-Essonne
27/11/2023
02/11/2023
30/10/2023
20/10/2023
16/10/2023
16/10/2023