Maison à construire à Saintry-sur-Seine (91250)
Images
Description
Saintry-sur-Seine (91250), proche RER D :
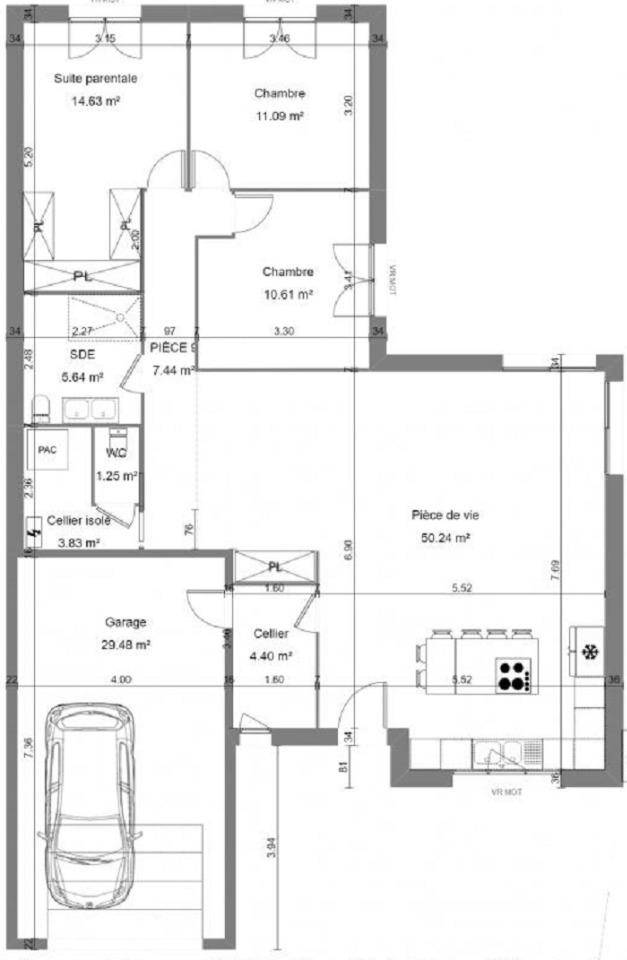
PLAIN-PIED de 100 m² à bâtir sur un terrain VIABILISÉ de 414 m²
Faites confiances aux Maisons Balency de la ville d'Ormoy pour vous réaliser une maison pratique, tant pour un jeune couple, que pour une famille en devenir, ou que pour de frais retraités : elle sera respectueuse des dernières normes environnementales RE2020, vous garantissant un score DPE A ou B.
Le maison que nous vous proposons ici contient 6 pièces.
À Saintry et dans les villes alentours, vous bénéficierez de la proximité de plusieurs commodités ; en effet la poste locale et la bibliothèque municipale sont joignables à seulement quelques pas, tout comme une pharmacie ainsi qu'un supermarché (5 minutes de voiture).
La gare de Corbeil-Essonnes (RER D) est, quant à elle, située à 6 minutes de route, et permet de rejoindre Paris Gare de Lyon en trois quarts d'heure ; vous pourrez aussi emprunter la gare Moulin-Galant (ligne D) localisée à quelques kilomètres.
Ce projet "Terrain + Maison" (hors finitions) est estimé à 395 000 €, prix de départ ; pour le débuter dans des conditions optimales, n'hésitez pas à nous contacter au (Numéro supprimé) !
Maisons BALENCY - Agence d'Ormoy
23 chemin de Tournenfils
91540 ORMOY
Annonce proposée par un Agent Commercial Partenaire.
Logement susceptibles de vous intéresser
Nous vous proposons de découvrir aussi cette sélection de logements situés à moins de 10km de Saintry-sur-Seine et qui seraient susceptibles de vous intéresser.
Corbeil-Essonnes
TERRAIN ET MAISONTerrain de 959 m², hors lotissement, avec une belle façade de plus de 24 m, viabilité sur rue, très belle exposition sans vis a vis, non mitoyen,Ecoles, collège, Gare RER D à moins de 5 min à pieds dernier lot disponible de cette surface.Maison neuve sur mesure à étage de 145 m² habitables avec 6 chambres, dont une suite parentale, séjour traversant, isolation renforcé, PAC air/eau, volets roulants crépusculaires, avec garantie 10 ans et dommage ouvrage (DO) comprise dans le prix.prix ferme et définitive dès la signature du contrat, possibilité de bénéficier du prêt a taux zéro (PTZ),Etude de financement, Plans et visite possible sur simple demande.contact : (Numéro supprimé)Contactez nous au (Numéro supprimé) (Maisons Clairval ).Prix avec assurance dommages-ouvrage comprise, VRD non compris, terrain non viabilisé, adaptation non comprise, assainissement non compris, frais de notaire non compris, taxes non comprises, frais divers non compris. Terrain sélectionné et vu pour vous sous réserve de disponibilité et au prix indiqué par notre partenaire foncier. Conditions et visuels non contractuels.Cette annonce a été créée et diffusée avec le logiciel VITAHOME.
Saintry-sur-Seine
TERRAIN ET MAISONTerrain de 414 m², hors lotissement, avec une belle façade de plus de 58 m, totalement viabilisé, très belle exposition sans vis a vis, non mitoyen,Ecoles à moins de 5 min à pieds dernier lot disponible.Maison neuve sur mesure à étage de 120 m² habitables avec 5 chambres, dont une suite parentale, séjour traversant, isolation renforcé, PAC air/eau, volets roulants crépusculaires, avec garantie 10 ans et dommage ouvrage (DO) comprise dans le prix.prix ferme et définitive dès la signature du contrat, possibilité de bénéficier du prêt a taux zéro (PTZ),Etude de financement, Plans et visite possible sur simple demande.contact : (Numéro supprimé)Contactez nous au (Numéro supprimé) (Maisons Clairval).Prix avec assurance dommages-ouvrage comprise, VRD non compris, terrain viabilisé, adaptation non comprise, assainissement non compris, frais de notaire non compris, taxes non comprises, frais divers non compris. Terrain sélectionné et vu pour vous sous réserve de disponibilité et au prix indiqué par notre partenaire foncier. Conditions et visuels non contractuels.Cette annonce a été créée et diffusée avec le logiciel VITAHOME.
Saintry-sur-Seine
TERRAIN ET MAISONTerrain de 414 m², hors lotissement, avec une belle façade de plus de 15 m, viabilité sur rue, très belle exposition sans vis a vis, non mitoyen,Ecoles à moins de 5 min à pieds dernier lot.Maison neuve sur mesure à étage de 112 m² habitables avec 4 chambres, dont une suite parentale, séjour traversant, isolation renforcé, PAC air/eau, volets roulants crépusculaires, avec garantie 10 ans et dommage ouvrage (DO) comprise dans le prix.prix ferme et définitive dès la signature du contrat, possibilité de bénéficier du prêt a taux zéro (PTZ),Etude de financement, Plans et visite possible sur simple demande.contact : (Numéro supprimé)Contactez nous au (Numéro supprimé) (Maisons Clairval).Prix avec assurance dommages-ouvrage comprise, VRD non compris, terrain viabilisé, adaptation non comprise, assainissement non compris, frais de notaire non compris, taxes non comprises, frais divers non compris. Terrain sélectionné et vu pour vous sous réserve de disponibilité et au prix indiqué par notre partenaire foncier. Conditions et visuels non contractuels.Cette annonce a été créée et diffusée avec le logiciel VITAHOME.
Corbeil-Essonnes
TERRAIN ET MAISONTerrain de 959 m², hors lotissement, avec une belle façade de plus de 24 m, viabilité sur rue, très belle exposition sans vis a vis, non mitoyen,Ecoles, collège, Gare RER D à moins de 5 min à pieds dernier lot disponible de cette surface.Maison neuve sur mesure à étage de 95 m² habitables avec 4 chambres, dont une suite parentale, séjour traversant, isolation renforcé, PAC air/eau, volets roulants crépusculaires, avec garantie 10 ans et dommage ouvrage (DO) comprise dans le prix.prix ferme et définitive dès la signature du contrat, possibilité de bénéficier du prêt a taux zéro (PTZ),Etude de financement, Plans et visite possible sur simple demande.contact : (Numéro supprimé)Contactez nous au (Numéro supprimé) (Maisons Clairval ).Prix avec assurance dommages-ouvrage comprise, VRD non compris, terrain non viabilisé, adaptation non comprise, assainissement non compris, frais de notaire non compris, taxes non comprises, frais divers non compris. Terrain sélectionné et vu pour vous sous réserve de disponibilité et au prix indiqué par notre partenaire foncier. Conditions et visuels non contractuels.Cette annonce a été créée et diffusée avec le logiciel VITAHOME.
Mennecy
TERRAIN ET MAISONTerrain de 702 m², à 5 km de la ville de Menecy, hors lotissement, avec une belle façade de plus de 19 m, viabilité sur rue, très belle exposition sans vis a vis, non mitoyen,Ecoles, collège, Gare RER D à moins de 5 min à pieds dernier lot disponible de cette surface.Maison neuve sur mesure sur deux niveaux de 100 m² habitables avec 4 chambres, dont une suite parentale, séjour traversant, isolation renforcé, PAC air/eau, volets roulants crépusculaires, avec garantie 10 ans et dommage ouvrage (DO) comprise dans le prix.prix ferme et définitive dès la signature du contrat, possibilité de bénéficier du prêt a taux zéro (PTZ),Etude de financement, Plans et visite possible sur simple demande.contact : (Numéro supprimé)Contactez Nous au (Numéro supprimé) (Maisons Clairval).Prix avec assurance dommages-ouvrage comprise, VRD non compris, terrain viabilisé, adaptation non comprise, assainissement non compris, frais de notaire non compris, taxes non comprises, frais divers non compris. Terrain sélectionné et vu pour vous sous réserve de disponibilité et au prix indiqué par notre partenaire foncier. Conditions et visuels non contractuels.Cette annonce a été créée et diffusée avec le logiciel VITAHOME.
Saint-Pierre-du-Perray
TERRAIN ET MAISONTerrain de 274 m², hors lotissement, avec une belle façade, viabilité sur rue, tres belle exposition sans vis a vis, Ecoles, collège et centre ville à quelques minutes à pieds dernier lot disponible sur la rue.Maison neuve sur mesure à étage de 115 m² habitables avec 4 chambres, séjour traversant, isolation renforcé, PAC air/eau, volets roulants crépusculaires, avec garantie 10 ans et dommage ouvrage (DO) comprise dans le prix.prix ferme et définitive dès la signature du contrat, possibilité de bénéficier du prêt a taux zéro (PTZ),Etude de financement, Plans et visite possible sur simple demande.contact : (Numéro supprimé)Contactez nous au (Numéro supprimé) (Maisons Clairval).Prix avec assurance dommages-ouvrage comprise, VRD non compris, terrain non viabilisé, adaptation non comprise, assainissement non compris, frais de notaire non compris, taxes non comprises, frais divers non compris. Terrain sélectionné et vu pour vous sous réserve de disponibilité et au prix indiqué par notre partenaire foncier. Conditions et visuels non contractuels.Cette annonce a été créée et diffusée avec le logiciel VITAHOME.
Saint-Pierre-du-Perray
TERRAIN ET MAISONTerrain de 274 m², hors lotissement, avec une belle façade, viabilité sur rue, tres belle exposition sans vis a vis, Ecoles, collège et centre ville à quelques minutes à pieds dernier lot disponible sur la rue.Maison neuve sur mesure à étage de 95 m² habitables avec 3 chambres, séjour traversant, isolation renforcé, PAC air/eau, volets roulants crépusculaires, avec garantie 10 ans et dommage ouvrage (DO) comprise dans le prix.prix ferme et définitive dès la signature du contrat, possibilité de bénéficier du prêt a taux zéro (PTZ),Etude de financement, Plans et visite possible sur simple demande.contact : (Numéro supprimé)Contactez nous au (Numéro supprimé) (Maisons Clairval).Prix avec assurance dommages-ouvrage comprise, VRD non compris, terrain non viabilisé, adaptation non comprise, assainissement non compris, frais de notaire non compris, taxes non comprises, frais divers non compris. Terrain sélectionné et vu pour vous sous réserve de disponibilité et au prix indiqué par notre partenaire foncier. Conditions et visuels non contractuels.Cette annonce a été créée et diffusée avec le logiciel VITAHOME.
Mennecy
TERRAINTerrain de 702 m², à 5 km de la ville de Menecy, hors lotissement, avec une belle façade de plus de 21 m, viabilité sur rue, très belle exposition sans vis a vis, non mitoyen,Ecoles, collège, Gare RER D à moins de 5 min à pieds dernier lot disponible de cette surface.possibilité de construire une Maison neuve sur mesure sur deux niveaux de 100 m² habitables avec 4 chambres, dont une suite parentale, séjour traversant, isolation renforcé, PAC air/eau, volets roulants crépusculaires, avec garantie 10 ans et dommage ouvrage (DO) comprise dans le prix.prix ferme et définitive dès la signature du contrat, possibilité de bénéficier du prêt a taux zéro (PTZ),Etude de financement, Plans et visite possible sur simple demande.contact : (Numéro supprimé)Prix : 129000 €.Sur ce terrain de 702 m² à MENNECY, Maisons Clairval vous propose de réaliser votre projet de construction de maison individuelle.Demandez une étude gratuite et personnalisée de votre projet de construction sur ce terrain !Contactez Houssine BAHARI au (Numéro supprimé) ou au (Numéro supprimé) (Maisons Clairval – Agence de Rouvres).Prix hors frais de notaire. Terrain sélectionné et vu pour vous sous réserve de disponibilité et au prix indiqué par notre partenaire foncier. Conditions et visuels non contractuels.Cette annonce a été créée et diffusée avec le logiciel VITAHOME.
Corbeil-Essonnes
TERRAIN ET MAISONVENTE : maison de 7 pièces (120 m²) à Corbeil-EssonnesMAISON 7 PIÈCES NEUVEEn vente : à proximité du RER D (40 min de Paris), à Corbeil-Essonnes (91100), Maisons France Confort Magny-le-Hongre vous propose cette maison de 7 pièces de 120 m² et de 664 m² de terrain. Elle est composée de cinq chambres, d’une cuisine et de deux salles de bains.C’est une maison de 2 niveaux. Elle est neuve.Des écoles (de la maternelle au lycée) se trouvent à moins de 10 minutes à pied. Côté transports en commun, il y a la station de RER Corbeil-Essonnes (ligne D) ainsi que deux gares (Corbeil-Essonnes et Essonnes Robinson) à proximité. On trouve un bassin de natation, un tennis, des commerces, des boulangeries, deux supermarchés, des épiceries et deux bureaux de poste dans les environs. Le marché Place du Comte Haymon anime le quartier.Son prix de vente est de 383 000 €.Contactez Alan RUBAL (tél : (Numéro supprimé)) pour obtenir de plus amples informations sur la maison, sur les modalités de vente ou sur les démarches à suivre.Annonce proposée par un Agent Commercial Partenaire.
L’actualité immobilière à Saintry-sur-Seine
27/11/2023
02/11/2023
30/10/2023
20/10/2023
16/10/2023
16/10/2023