Maison à construire à Saint-Escobille (91410)
Images
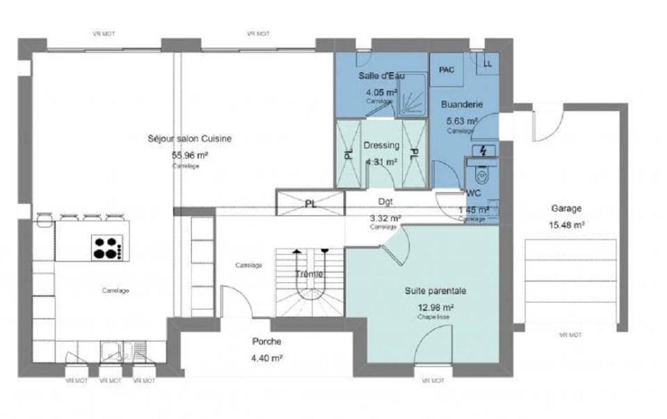
Description
Saint-Escobille (91410), en Île de France, à partir de 379 000 € !
Demeure Design de 150 m² à bâtir sur un grand terrain viabilisé de 623 m².
Saisissez une opportunité rare avec les Maisons Balency d'Ormoy !
Nous vous proposons la construction d'une charmante demeure de 6 pièces, avec toiture-terrasse, à bâtir sur un vaste terrain profond de plus de 36 mètres.
Cette habitation, à l'image de tous nos modèles de maisons, est conçue selon les dernières normes environnementales RE2020, vous garantissant ainsi un DPE A ou B.
Située dans un village de charme de l'Essonne, à proximité immédiate des écoles, de la mairie, du stade municipal et de la salle polyvalente, cette adresse bénéficie également de la proximité des commerces et services de Dourdan et Étampes, toutes deux desservies par la ligne C du RER et par la ligne N du Transilien. Vous profitez ainsi d'un cadre de vie paisible à la campagne tout en restant connecté aux bassins d'emploi de l'Île-de-France.
Contactez Maisons Balency - Agence d'Ormoy, 23 chemin de Tournenfils, 91540 Ormoy, au (Numéro supprimé) pour en savoir plus.
Annonce proposée par un Agent Commercial Partenaire.
Logement susceptibles de vous intéresser
Nous vous proposons de découvrir aussi cette sélection de logements situés à moins de 10km de Saint-Escobille et qui seraient susceptibles de vous intéresser.
Boutervilliers
TERRAINAu cœur du village de Boutervilliers, a 10 min d’ÉtampesPrix : 104000 €.Sur ce terrain de 792 m² à BOUTERVILLIERS, Maisons Clairval vous propose de réaliser votre projet de construction de maison individuelle.Maisons Clairval propose de construire votre maison neuve avec toutes les prestations suivantes :- Plan sur-mesure et personnalisé de 2 à 6 chambres- Mode de chauffage au choix- Grands choix d'équipements et de prestations- Matériaux de qualité selon les normes en vigueur- Accompagnement dans le choix et l’acquisition du terrain- Construction conforme à la nouvelle RE 2020Demandez une étude gratuite et personnalisée de votre projet de construction sur ce terrain !Contactez Nicolas REBOUL au (Numéro supprimé) ou au (Numéro supprimé) (Maisons Clairval – Agence de Villemoisson).Prix hors frais de notaire. Terrain sélectionné et vu pour vous sous réserve de disponibilité et au prix indiqué par notre partenaire foncier. Conditions et visuels non contractuels.Cette annonce a été créée et diffusée avec le logiciel VITAHOME.
Richarville
TERRAINPrix : 80000 €.Sur ce terrain de 421 m² à RICHARVILLE, Maisons Clairval vous propose de réaliser votre projet de construction de maison individuelle.Maisons Clairval propose de construire votre maison neuve avec toutes les prestations suivantes :- Plan sur-mesure et personnalisé de 2 à 6 chambres- Mode de chauffage au choix- Grands choix d'équipements et de prestations- Matériaux de qualité selon les normes en vigueur- Accompagnement dans le choix et l’acquisition du terrain- Construction conforme à la nouvelle RE 2020Demandez une étude gratuite et personnalisée de votre projet de construction sur ce terrain !Contactez Nicolas REBOUL au (Numéro supprimé) ou au (Numéro supprimé) (Maisons Clairval – Agence de Villemoisson).Prix hors frais de notaire. Terrain sélectionné et vu pour vous sous réserve de disponibilité et au prix indiqué par notre partenaire foncier. Conditions et visuels non contractuels.Cette annonce a été créée et diffusée avec le logiciel VITAHOME.
Richarville
TERRAINRicharville : terrain de 421 m² à vendreÀ Richarville (91410) à quelques minutes de la station Dourdan du RER C (55 min de Paris), donnez vie à la maison de vos rêves sur ce terrain de 421 m². L’École Élémentaire École Publique est implantée à moins de 10 minutes à pied. Niveau transports en commun, on trouve la ligne de RER C (Dourdan) ainsi que les gares Dourdan, Dourdan La Forêt et Sermaise à moins de 10 minutes en voiture.Il est à vendre pour la somme de 90 000 €. Prenez contact avec notre agence (Sabrina AUGUSTINE : (Numéro supprimé)) pour obtenir de plus amples renseignements sur le terrain, sur les démarches à suivre ou sur les modalités de vente. Maisons France Confort Ris-Orangis vous accompagne dans tous vos projets immobiliers et dans toutes vos démarches.
La Forêt-le-Roi
TERRAINTerrain de 1 463 m² à vendre à La Forêt-le-RoiPROCHE DE SAINTE-GENEVIÈVE-DES-BOISÀ côté du RER C (station Sermaise, 50 min de Paris) à La Forêt-le-Roi (91410), grand terrain. L’École Maternelle École Publique est implantée à moins de 10 minutes à pied. Niveau transports en commun, il y a la ligne de RER C (Sermaise) ainsi que cinq gares à moins de 10 minutes en voiture. On trouve une bibliothèque et deux commerces à proximité.Son prix de vente est de 149 000 €. Contactez notre agence (Sabrina AUGUSTINE : (Numéro supprimé)) pour tout renseignement sur ce terrain, sur les démarches à suivre ou sur les modalités de vente. Donnez vie à vos projets immobiliers avec Maisons France Confort Ris-Orangis.
Richarville
TERRAIN ET MAISONVENTE : maison de 6 pièces (109 m²) à RicharvilleMAISON 6 PIÈCES NEUVEÀ proximité de la station Dourdan du RER C (55 min de Paris), en vente à Richarville (91410), Maisons France Confort Ris-Orangis vous propose cette maison de 6 pièces de 109 m² et de 421 m² de terrain.C’est une maison de 2 niveaux. Son intérieur est composé de quatre chambres, d’une cuisine et de deux salles de bains. La maison est neuve.L’École Élémentaire École Publique est implantée à moins de 10 minutes à pied. Côté transports en commun, on trouve la ligne de RER C (Dourdan) ainsi que les gares Dourdan, Dourdan La Forêt et Sermaise à moins de 10 minutes en voiture.Elle est à vendre pour la somme de 290 000 €.Contactez notre agence (AUGUSTINE Sabrina : (Numéro supprimé)) pour plus de renseignements sur cette maison, sur les démarches à suivre ou sur les modalités de vente. Maisons France Confort Ris-Orangis vous accompagne à toutes les étapes de l’achat et dans tous vos projets immobiliers.
Richarville
TERRAIN ET MAISONRicharville : maison de 5 pièces (90 m²) en ventePROCHE DE SAINTE-GENEVIÈVE-DES-BOIS – MAISON 5 PIÈCES NEUVEEn vente : à proximité de la station Dourdan du RER C (55 min de Paris), nous sommes heureux de vous proposer cette maison de 5 pièces de plain-pied de 90 m² et de 421 m² de terrain à Richarville (91410). Elle compte trois chambres, une cuisine et une salle de bains.Cette maison est neuve.L’École Élémentaire École Publique est implantée à moins de 10 minutes à pied. Côté transports, on trouve la ligne de RER C (Dourdan) ainsi que trois gares (Dourdan, Dourdan La Forêt et Sermaise) à moins de 10 minutes en voiture.Elle est proposée à l’achat pour 270 900 €.N’hésitez pas à prendre contact avec Sabrina AUGUSTINE ((Numéro supprimé)) pour toute information sur cette propriété, sur les démarches à suivre ou sur les modalités de vente. Maisons France Confort Ris-Orangis vous accompagne dans tous vos projets immobiliers et à toutes les étapes de l’achat.
Richarville
TERRAIN ET MAISONVENTE : maison T6 (105 m²) à RicharvilleMAISON 6 PIÈCES NEUVE – PROCHE DE SAINTE-GENEVIÈVE-DES-BOISÀ quelques minutes de la station Dourdan (Paris à 55 min par le RER C), nous vous présentons cette maison de 6 pièces de 105 m² et de 421 m² de terrain en vente à Richarville (91410). Son intérieur inclut quatre chambres, une cuisine et deux salles de bains.Cette maison compte 2 niveaux. Elle est neuve.On trouve l’École Élémentaire École Publique à moins de 10 minutes à pied. Niveau transports en commun, il y a la ligne de RER C (Dourdan) ainsi que les gares Dourdan, Dourdan La Forêt et Sermaise à moins de 10 minutes en voiture.Elle est à vendre pour la somme de 285 600 €.Contactez Sabrina AUGUSTINE (tél : (Numéro supprimé)) pour toute information sur la maison, sur les modalités de vente ou sur les démarches à suivre. Maisons France Confort Ris-Orangis est là pour vous accompagner à toutes les étapes de votre projet.
Richarville
TERRAIN ET MAISONVENTE d’une maison de 7 pièces (120 m²) à RicharvillePROCHE DE SAINTE-GENEVIÈVE-DES-BOIS – MAISON 7 PIÈCES NEUVEAu pied de la station Dourdan du RER C (55 min de Paris), Maisons France Confort Ris-Orangis vous propose à vendre à Richarville (91410), cette maison de 7 pièces de 120 m² et de 421 m² de terrain. Son intérieur inclut cinq chambres, une cuisine et deux salles de bains.Cette maison compte 2 niveaux. Elle est neuve.Il y a l’École Élémentaire École Publique à moins de 10 minutes à pied. Niveau transports en commun, on trouve la ligne de RER C (Dourdan) ainsi que trois gares (Dourdan, Dourdan La Forêt et Sermaise) à moins de 10 minutes en voiture.Elle est proposée à l’achat pour 315 600 €.Contactez Sabrina AUGUSTINE (tél : (Numéro supprimé)) pour plus d’informations sur cette maison, sur les démarches à suivre ou sur les modalités de vente. Maisons France Confort Ris-Orangis est là pour vous accompagner à toutes les étapes de l’achat.
La Forêt-le-Roi
TERRAIN ET MAISONVENTE : maison de 6 pièces (140 m²) à La Forêt-le-RoiPROCHE DE SAINTE-GENEVIÈVE-DES-BOIS – MAISON 6 PIÈCES NEUVEÀ vendre : à quelques minutes de la station Sermaise du RER C (50 min de Paris), Maisons France Confort Ris-Orangis vous présente cette maison de 6 pièces de plain-pied de 140 m² et de 1 463 m² de terrain à La Forêt-le-Roi (91410). Elle dispose de cinq chambres, d’une cuisine et de deux salles de bains.La maison est neuve.On trouve l’École Maternelle École Publique à moins de 10 minutes à pied. Côté transports, il y a la ligne de RER C (Sermaise) ainsi que cinq gares à moins de 10 minutes en voiture. Il y a une bibliothèque et deux commerces à proximité du bien.Elle est proposée à l’achat pour 398 000 €.N’hésitez pas à prendre contact avec Sabrina AUGUSTINE (tél : (Numéro supprimé)) pour obtenir de plus amples renseignements sur la maison.
L’actualité immobilière à Saint-Escobille
27/11/2023
02/11/2023
30/10/2023
20/10/2023
16/10/2023
16/10/2023