Maison à construire à Saint-Pierre-du-Perray (91280)
Images
Description
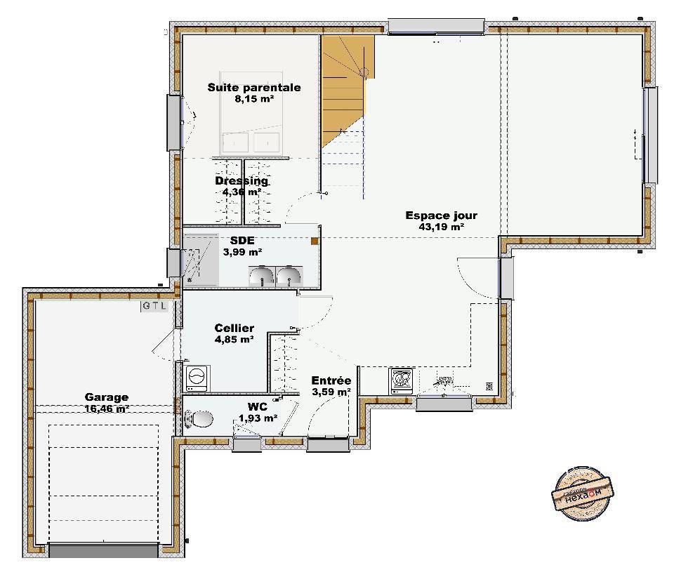
VENTE : maison T6 (114 m²) à Saint-Pierre-du-Perray
MAISON BOIS 6 PIÈCES NEUVE - PROCHE DE PARIS
À proximité de la station Corbeil-Essonnes (Paris à 40 min par le RER D), laissez vous charmer par cette maison bois de 6 pièces de 114 m² et de 500 m² de terrain à vendre à Saint-Pierre-du-Perray (91280). Elle est composée de cinq chambres, d'une cuisine et de deux salles de bains.
C'est une maison de 2 niveaux. Elle est neuve.
Des écoles maternelles et élémentaires sont implantées à moins de 10 minutes à pied, tout comme une crèche. Niveau transports, il y a la ligne de RER D (Corbeil-Essonnes) ainsi que 21 gares à moins de 10 minutes en voiture. On trouve une bibliothèque et deux tennis dans les environs.
Elle est à vendre pour la somme de 487 530 €.
N'hésitez pas à prendre contact avec notre agence au (Numéro supprimé) pour toute information sur la maison. Concrétisez vos projets immobiliers avec Maisons Balency Ormoy.
Annonce proposée par un Agent Commercial Partenaire.
Logement susceptibles de vous intéresser
Nous vous proposons de découvrir aussi cette sélection de logements situés à moins de 10km de Saint-Pierre-du-Perray et qui seraient susceptibles de vous intéresser.
Saintry-sur-Seine
TERRAIN ET MAISONTerrain de 414 m², hors lotissement, avec une belle façade de plus de 58 m, totalement viabilisé, très belle exposition sans vis a vis, non mitoyen,Ecoles à moins de 5 min à pieds dernier lot disponible.Maison neuve sur mesure à étage de 120 m² habitables avec 5 chambres, dont une suite parentale, séjour traversant, isolation renforcé, PAC air/eau, volets roulants crépusculaires, avec garantie 10 ans et dommage ouvrage (DO) comprise dans le prix.prix ferme et définitive dès la signature du contrat, possibilité de bénéficier du prêt a taux zéro (PTZ),Etude de financement, Plans et visite possible sur simple demande.contact : (Numéro supprimé)Contactez nous au (Numéro supprimé) (Maisons Clairval).Prix avec assurance dommages-ouvrage comprise, VRD non compris, terrain viabilisé, adaptation non comprise, assainissement non compris, frais de notaire non compris, taxes non comprises, frais divers non compris. Terrain sélectionné et vu pour vous sous réserve de disponibilité et au prix indiqué par notre partenaire foncier. Conditions et visuels non contractuels.Cette annonce a été créée et diffusée avec le logiciel VITAHOME.
Saintry-sur-Seine
TERRAIN ET MAISONTerrain de 414 m², hors lotissement, avec une belle façade de plus de 15 m, viabilité sur rue, très belle exposition sans vis a vis, non mitoyen,Ecoles à moins de 5 min à pieds dernier lot.Maison neuve sur mesure à étage de 112 m² habitables avec 4 chambres, dont une suite parentale, séjour traversant, isolation renforcé, PAC air/eau, volets roulants crépusculaires, avec garantie 10 ans et dommage ouvrage (DO) comprise dans le prix.prix ferme et définitive dès la signature du contrat, possibilité de bénéficier du prêt a taux zéro (PTZ),Etude de financement, Plans et visite possible sur simple demande.contact : (Numéro supprimé)Contactez nous au (Numéro supprimé) (Maisons Clairval).Prix avec assurance dommages-ouvrage comprise, VRD non compris, terrain viabilisé, adaptation non comprise, assainissement non compris, frais de notaire non compris, taxes non comprises, frais divers non compris. Terrain sélectionné et vu pour vous sous réserve de disponibilité et au prix indiqué par notre partenaire foncier. Conditions et visuels non contractuels.Cette annonce a été créée et diffusée avec le logiciel VITAHOME.
Corbeil-Essonnes
TERRAIN ET MAISONTerrain de 959 m², hors lotissement, avec une belle façade de plus de 24 m, viabilité sur rue, très belle exposition sans vis a vis, non mitoyen,Ecoles, collège, Gare RER D à moins de 5 min à pieds dernier lot disponible de cette surface.Maison neuve sur mesure à étage de 145 m² habitables avec 6 chambres, dont une suite parentale, séjour traversant, isolation renforcé, PAC air/eau, volets roulants crépusculaires, avec garantie 10 ans et dommage ouvrage (DO) comprise dans le prix.prix ferme et définitive dès la signature du contrat, possibilité de bénéficier du prêt a taux zéro (PTZ),Etude de financement, Plans et visite possible sur simple demande.contact : (Numéro supprimé)Contactez nous au (Numéro supprimé) (Maisons Clairval ).Prix avec assurance dommages-ouvrage comprise, VRD non compris, terrain non viabilisé, adaptation non comprise, assainissement non compris, frais de notaire non compris, taxes non comprises, frais divers non compris. Terrain sélectionné et vu pour vous sous réserve de disponibilité et au prix indiqué par notre partenaire foncier. Conditions et visuels non contractuels.Cette annonce a été créée et diffusée avec le logiciel VITAHOME.
Corbeil-Essonnes
TERRAIN ET MAISONTerrain de 959 m², hors lotissement, avec une belle façade de plus de 24 m, viabilité sur rue, très belle exposition sans vis a vis, non mitoyen,Ecoles, collège, Gare RER D à moins de 5 min à pieds dernier lot disponible de cette surface.Maison neuve sur mesure à étage de 95 m² habitables avec 4 chambres, dont une suite parentale, séjour traversant, isolation renforcé, PAC air/eau, volets roulants crépusculaires, avec garantie 10 ans et dommage ouvrage (DO) comprise dans le prix.prix ferme et définitive dès la signature du contrat, possibilité de bénéficier du prêt a taux zéro (PTZ),Etude de financement, Plans et visite possible sur simple demande.contact : (Numéro supprimé)Contactez nous au (Numéro supprimé) (Maisons Clairval ).Prix avec assurance dommages-ouvrage comprise, VRD non compris, terrain non viabilisé, adaptation non comprise, assainissement non compris, frais de notaire non compris, taxes non comprises, frais divers non compris. Terrain sélectionné et vu pour vous sous réserve de disponibilité et au prix indiqué par notre partenaire foncier. Conditions et visuels non contractuels.Cette annonce a été créée et diffusée avec le logiciel VITAHOME.
Mennecy
TERRAIN ET MAISONTerrain de 702 m², à 5 km de la ville de Menecy, hors lotissement, avec une belle façade de plus de 19 m, viabilité sur rue, très belle exposition sans vis a vis, non mitoyen,Ecoles, collège, Gare RER D à moins de 5 min à pieds dernier lot disponible de cette surface.Maison neuve sur mesure sur deux niveaux de 100 m² habitables avec 4 chambres, dont une suite parentale, séjour traversant, isolation renforcé, PAC air/eau, volets roulants crépusculaires, avec garantie 10 ans et dommage ouvrage (DO) comprise dans le prix.prix ferme et définitive dès la signature du contrat, possibilité de bénéficier du prêt a taux zéro (PTZ),Etude de financement, Plans et visite possible sur simple demande.contact : (Numéro supprimé)Contactez Nous au (Numéro supprimé) (Maisons Clairval).Prix avec assurance dommages-ouvrage comprise, VRD non compris, terrain viabilisé, adaptation non comprise, assainissement non compris, frais de notaire non compris, taxes non comprises, frais divers non compris. Terrain sélectionné et vu pour vous sous réserve de disponibilité et au prix indiqué par notre partenaire foncier. Conditions et visuels non contractuels.Cette annonce a été créée et diffusée avec le logiciel VITAHOME.
Saint-Pierre-du-Perray
TERRAIN ET MAISONTerrain de 274 m², hors lotissement, avec une belle façade, viabilité sur rue, tres belle exposition sans vis a vis, Ecoles, collège et centre ville à quelques minutes à pieds dernier lot disponible sur la rue.Maison neuve sur mesure à étage de 115 m² habitables avec 4 chambres, séjour traversant, isolation renforcé, PAC air/eau, volets roulants crépusculaires, avec garantie 10 ans et dommage ouvrage (DO) comprise dans le prix.prix ferme et définitive dès la signature du contrat, possibilité de bénéficier du prêt a taux zéro (PTZ),Etude de financement, Plans et visite possible sur simple demande.contact : (Numéro supprimé)Contactez nous au (Numéro supprimé) (Maisons Clairval).Prix avec assurance dommages-ouvrage comprise, VRD non compris, terrain non viabilisé, adaptation non comprise, assainissement non compris, frais de notaire non compris, taxes non comprises, frais divers non compris. Terrain sélectionné et vu pour vous sous réserve de disponibilité et au prix indiqué par notre partenaire foncier. Conditions et visuels non contractuels.Cette annonce a été créée et diffusée avec le logiciel VITAHOME.
Saint-Pierre-du-Perray
TERRAIN ET MAISONTerrain de 274 m², hors lotissement, avec une belle façade, viabilité sur rue, tres belle exposition sans vis a vis, Ecoles, collège et centre ville à quelques minutes à pieds dernier lot disponible sur la rue.Maison neuve sur mesure à étage de 95 m² habitables avec 3 chambres, séjour traversant, isolation renforcé, PAC air/eau, volets roulants crépusculaires, avec garantie 10 ans et dommage ouvrage (DO) comprise dans le prix.prix ferme et définitive dès la signature du contrat, possibilité de bénéficier du prêt a taux zéro (PTZ),Etude de financement, Plans et visite possible sur simple demande.contact : (Numéro supprimé)Contactez nous au (Numéro supprimé) (Maisons Clairval).Prix avec assurance dommages-ouvrage comprise, VRD non compris, terrain non viabilisé, adaptation non comprise, assainissement non compris, frais de notaire non compris, taxes non comprises, frais divers non compris. Terrain sélectionné et vu pour vous sous réserve de disponibilité et au prix indiqué par notre partenaire foncier. Conditions et visuels non contractuels.Cette annonce a été créée et diffusée avec le logiciel VITAHOME.
Lieusaint
TERRAINTerrain de 419 m² à vendre à Tigery PROCHE DE PARISProche de la station Corbeil-Essonnes du RER D (40 min de Paris) à Tigery (91250), terrain de 419 m². Il est prêt à accueillir votre résidence principale ou secondaire pour toute la famille. On trouve l’École Primaire les Ormes et l’École Primaire le Clos à moins de 10 minutes à pied. Niveau transports en commun, il y a la ligne de RER D (Corbeil-Essonnes) ainsi que 23 gares à moins de 10 minutes en voiture. Il y a un tennis, deux boulangeries, trois commerces et un supermarché à proximité.Ce terrain est à vendre pour la somme de 138 000 €. N’hésitez pas à prendre contact avec notre agence (David CORDIER : (Numéro supprimé)) pour toute information sur ce terrain, sur les modalités de vente ou sur les démarches à suivre. Donnez vie à vos projets immobiliers avec Maisons France Confort Melun.Annonce proposée par un Agent Commercial Partenaire.
Lieusaint
TERRAIN ET MAISONVENTE : maison F6 (89 m²) à TigeryPROCHE DE PARIS – MAISON 6 PIÈCES NEUVEÀ côté de la station Corbeil-Essonnes (Paris à 40 min avec le RER D), en vente à Tigery (91250), notre agence Maisons France Confort Melun est ravie de vous présenter cette maison de 6 pièces de 89 m² et de 419 m² de terrain. Son intérieur offre quatre chambres, une cuisine et une salle de bains.Cette maison possède 2 niveaux. Elle est neuve.Il y a l’École Primaire les Ormes et l’École Primaire le Clos à moins de 10 minutes à pied. Niveau transports, on trouve la ligne de RER D (Corbeil-Essonnes) ainsi que 23 gares à moins de 10 minutes en voiture. Il y a un tennis, deux boulangeries, trois commerces et un supermarché à proximité du bien.Elle est proposée à l’achat pour 319 000 €.N’hésitez pas à prendre contact avec notre agence (David CORDIER : (Numéro supprimé)) pour toute question sur cette maison ou sur les modalités de vente. Maisons France Confort Melun vous accompagne dans tous vos projets immobiliers et dans toutes vos démarches.Annonce proposée par un Agent Commercial Partenaire.
L’actualité immobilière à Saint-Pierre-du-Perray
27/11/2023
02/11/2023
30/10/2023
20/10/2023
16/10/2023
16/10/2023