Maison à construire à Villejust (91140)
Images
Description
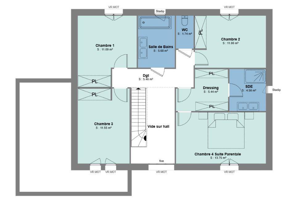
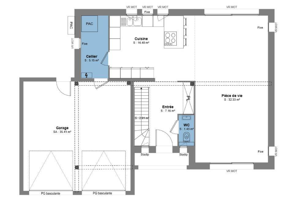
Villejust (91140), au coeur de l'Essonne : Construisez une Harmonieuse Demeure de 136 m² avec Les Maisons Balency d'Ormoy
À partir de 519 000 €, devenez propriétaire d'une maison comprenant 4 chambres et 2 salles de bains, à bâtir sur un vaste terrain de 890 m² idéalement situé à Villejust, dans l'Essonne. Ce projet, envisagé par Les Maisons Balency d'Ormoy, filiale du Groupe Hexaôm, 1er constructeur de maisons individuelles en France, vous offre la liberté de créer une maison totalement sur-mesure ou d'adapter l'un de nos modèles issus de nos catalogues, selon vos envies et votre mode de vie.
Nos constructions respectent les dernières normes RE2020, garantissant une performance énergétique optimale et un DPE de classe A ou B. Villejust bénéficie d'un cadre de vie recherché, à proximité immédiate de Palaiseau et Massy, accessibles en une quinzaine de minutes. Les gares RER B et C de Massy-Palaiseau permettent de rejoindre Paris en environ 30 minutes. Vous profiterez également des commodités locales : écoles, commerces de proximité, centre commercial Villebon 2, ainsi que du Parc Naturel de la Vallée de Chevreuse, situé à quelques minutes.
Notre équipe des Maisons Balency d'Ormoy vous accompagne de la recherche foncière jusqu'à la remise des clés, pour un projet maîtrisé et personnalisé.
Contactez-nous dès aujourd'hui au (Numéro supprimé) pour donner vie à votre maison idéale à Villejust.
Annonce proposée par un Agent Commercial Partenaire.
Logement susceptibles de vous intéresser
Nous vous proposons de découvrir aussi cette sélection de logements situés à moins de 10km de Villejust et qui seraient susceptibles de vous intéresser.
Villejust
TERRAINVaste Terrain à bâtir de 890 m² situé à Villejust (91140) et disponible au prix de 249 000 €À Villejust, au coeur de l’Essonne, découvrez ce superbe terrain à bâtir offrant 23 mètres de façade.Situé dans un environnement calme et verdoyant, ce terrain offre un cadre de vie recherché, à proximité immédiate des commodités : école maternelle et primaire de Villejust à quelques minutes, centre commercial de Courtaboeuf et Intermarché de Villebon-sur-Yvette accessibles rapidement, ainsi que le complexe sportif de Palaiseau à moins de dix minutes.Villejust bénéficie d’une excellente situation géographique, à une vingtaine de minutes de Massy et des Ulis, et environ trente minutes de Paris. La gare RER B de Massy-Palaiseau permet de rejoindre la capitale en moins de 30 minutes, tandis que l’accès rapide à la N118 et à l’A10 facilite tous vos déplacements.Avec Maisons Balency, du Groupe Hexaôm – 1er constructeur de maisons individuelles en France -, donnez vie à une maison sur mesure répondant à vos envies, ou personnalisez l’un de nos nombreux modèles issus de notre catalogue. Toutes nos réalisations respectent les dernières normes RE2020, garantissant des performances énergétiques exemplaires et un confort durable (DPE A ou B).Maisons BALENCY – Agence d’Ormoy23 chemin de Tournenfils – 91540 ORMOY📞 (Numéro supprimé)Annonce proposée par un Agent Commercial Partenaire.
Villejust
TERRAIN ET MAISONSuperbe Trianon Familial Haut-de-Gamme de 150 m² à bâtir à Villejust (91140), sur un vaste terrain de 890 m², à partir de 519 000 €À Villejust, charmante commune verdoyante de l’Essonne, profitez de l’opportunité de construire votre future maison de 150 m² sur un vaste terrain de 890 m². Située dans un cadre résidentiel recherché, cette parcelle offre un environnement paisible tout en restant proche des commodités : écoles, commerces de proximité et infrastructures sportives de Villejust accessibles en quelques minutes. Le centre commercial Villebon 2 se trouve à environ 10 minutes, tout comme la zone d’activités de Courtaboeuf.À proximité, la gare RER B de Massy-Palaiseau permet de rejoindre Paris en une trentaine de minutes. Les villes de Palaiseau et Orsay sont accessibles en une dizaine de minutes, tandis qu’Évry et Versailles se situent à environ vingt minutes, offrant ainsi un confort de vie idéal entre nature et dynamisme urbain.Avec Maisons Balency, marque du Groupe Hexaôm, premier constructeur de maisons individuelles en France, concevez une maison qui vous ressemble. Nous proposons des modèles personnalisables issus de notre catalogue ou une conception sur mesure, selon vos envies. Toutes nos réalisations respectent les exigences de la réglementation environnementale RE2020, garantissant un excellent niveau de performance énergétique (DPE A ou B).Maisons BALENCY – Agence d’Ormoy23 chemin de Tournenfils, 91540 ORMOY(Numéro supprimé)Annonce proposée par un Agent Commercial Partenaire.
Villejust
TERRAIN ET MAISONVaste Maison Traditionnelle de 150 m² à bâtir à Villejust (91140), sur un très grand terrain de 890 m², à partir de 539 000 €À Villejust, charmante commune verdoyante de l’Essonne, profitez de l’opportunité de construire votre future maison de familiale de 4 chambres et de 2 salles-de-bains, sur un très beau terrain de 890 m². Située dans un cadre résidentiel recherché, cette parcelle offre un environnement paisible tout en restant proche des commodités : écoles, commerces de proximité et infrastructures sportives de Villejust accessibles en quelques minutes. Le centre commercial Villebon 2 se trouve à environ 10 minutes, tout comme la zone d’activités de Courtaboeuf.À proximité, la gare RER B de Massy-Palaiseau permet de rejoindre Paris en une trentaine de minutes. Les villes de Palaiseau et Orsay sont accessibles en une dizaine de minutes, tandis qu’Évry et Versailles se situent à environ vingt minutes, offrant ainsi un confort de vie idéal entre nature et dynamisme urbain.Avec Maisons Balency, marque du Groupe Hexaôm, premier constructeur de maisons individuelles en France, concevez une maison qui vous ressemble. Nous proposons des modèles personnalisables issus de notre catalogue ou une conception sur mesure, selon vos envies. Toutes nos réalisations respectent les exigences de la réglementation environnementale RE2020, garantissant un excellent niveau de performance énergétique (DPE A ou B).Maisons BALENCY – Agence d’Ormoy23 chemin de Tournenfils, 91540 ORMOY(Numéro supprimé)Annonce proposée par un Agent Commercial Partenaire.
Villejust
TERRAIN ET MAISONMaison Design à bâtir à Villejust (91140) – à partir de 474 000 €100 m² habitables sur un vaste et rare terrain de 890 m²Découvrez cette belle opportunité de construction à Villejust, charmante commune verdoyante de l’Essonne, à seulement quelques minutes de Massy et de Palaiseau. Sur un vaste terrain profond de 46 mètres, réalisez votre maison design de 4 chambres et de 2 salles de bains, moderne, lumineuse et pensée selon vos envies. Chez Les Maisons Balency d’Ormoy, nous concevons des habitations totalement sur-mesure ou personnalisons l’un de nos modèles issus de nos catalogues, toujours dans le respect des normes environnementales RE2020, assurant ainsi un excellent DPE (A ou B).Villejust offre un cadre de vie paisible tout en restant proche de toutes commodités : écoles, commerces, structures sportives et restaurants sont accessibles en quelques minutes. Le centre commercial Villebon 2 se rejoint en environ 10 minutes, tout comme la gare RER B de Massy-Palaiseau, permettant de rejoindre Paris en moins de 30 minutes. L’accès rapide à l’A10 et à la N118 facilite les déplacements vers Versailles, Orsay ou Évry.Membre du Groupe Hexaôm, 1er constructeur de maisons individuelles en France, notre agence des Maisons Balency d’Ormoy vous accompagne à chaque étape de votre projet de la recherche du terrain à la remise des clés de votre future maison.📞 Contactez-nous dès aujourd’hui au (Numéro supprimé) pour donner vie à votre projet de construction à Villejust.Annonce proposée par un Agent Commercial Partenaire.
Villejust
TERRAIN ET MAISONVillejust (91140), au coeur de l’Essonne : Construisez une Harmonieuse Demeure de 136 m² avec Les Maisons Balency d’OrmoyÀ partir de 519 000 €, devenez propriétaire d’une maison comprenant 4 chambres et 2 salles de bains, à bâtir sur un vaste terrain de 890 m² idéalement situé à Villejust, dans l’Essonne. Ce projet, envisagé par Les Maisons Balency d’Ormoy, filiale du Groupe Hexaôm, 1er constructeur de maisons individuelles en France, vous offre la liberté de créer une maison totalement sur-mesure ou d’adapter l’un de nos modèles issus de nos catalogues, selon vos envies et votre mode de vie.Nos constructions respectent les dernières normes RE2020, garantissant une performance énergétique optimale et un DPE de classe A ou B. Villejust bénéficie d’un cadre de vie recherché, à proximité immédiate de Palaiseau et Massy, accessibles en une quinzaine de minutes. Les gares RER B et C de Massy-Palaiseau permettent de rejoindre Paris en environ 30 minutes. Vous profiterez également des commodités locales : écoles, commerces de proximité, centre commercial Villebon 2, ainsi que du Parc Naturel de la Vallée de Chevreuse, situé à quelques minutes.Notre équipe des Maisons Balency d’Ormoy vous accompagne de la recherche foncière jusqu’à la remise des clés, pour un projet maîtrisé et personnalisé.Contactez-nous dès aujourd’hui au (Numéro supprimé) pour donner vie à votre maison idéale à Villejust.Annonce proposée par un Agent Commercial Partenaire.
Villejust
TERRAIN ET MAISON🏡 Maison Environnementale en Bois à Villejust (91140) – à partir de 596 000 €À construire : Belle maison en ossature bois de 114 m², sur un terrain constructible de 890 m², idéalement situé à Villejust, dans l’Essonne.Une opportunité rare de concilier esthétique, confort et performance énergétique !Maisons BALENCY Ormoy vous propose une maison écologique et économique, conçue pour aller au-delà des standards actuels :🪵 Ossature bois : matériau naturel, bilan carbone positif, issu de forêts éco-gérées🌿 Isolation renforcée intérieure et extérieure (R = 6,56 m².C°/W) – aucune déperdition thermique🔇 Confort acoustique et thermique optimal, été comme hiver♻️ 65 % de déchets en moins sur le chantier💧 80 % de consommation d’eau en moins à la conception⚡ 60 % d’impact climatique en moins qu’une maison traditionnelle🏗️ Montage rapide : murs préfabriqués livrés et assemblés en une journée🇫🇷 Fabrication française certifiéeGrâce à une conception optimisée et une isolation performante, cette maison bois vous garantit un habitat durable, confortable et économique, tout en contribuant activement à la transition énergétique.Maisons BALENCY Ormoy vous accompagne à chaque étape :- Étude et conception sur mesure- Aide à la recherche du terrain- Accompagnement administratif complet📞 Contactez Maisons BALENCY Ormoy au (Numéro supprimé) pour découvrir notre ligne bois et concrétiser votre projet de vie !Annonce proposée par un Agent Commercial Partenaire.
Villemoisson-sur-Orge
TERRAINVENTE d’un terrain de 500 m² à Villemoisson-sur-OrgeQUARTIER RECHERCHÉ – PROCHE DE PARISAu pied du RER C (station Épinay-sur-Orge, 15 min de Paris) à Villemoisson-sur-Orge (91360), terrain de 500 m². Il est prêt à accueillir la maison de vos rêves pour toute la famille. Dans un secteur prisé, le terrain situé dans un quartier recherché est proche des commerces et des écoles. Il y a le Collège Blaise Pascal, l’École Maternelle Emile Bouton, l’École Élémentaire Emile Bouton et l’École Primaire les Erables à moins de 10 minutes à pied. Niveau transports, on trouve les lignes C, D et B du RER ainsi que 27 gares à moins de 10 minutes en voiture. Il y a un tennis, des commerces, quatre boulangeries, deux supermarchés, un bureau de poste et des épiceries à quelques minutes.Son prix de vente est de 212 000 €. Prenez contact avec notre agence (Anne DELOHEN : (Numéro supprimé)) pour plus d’informations sur le terrain ou sur les démarches à suivre.Annonce proposée par un Agent Commercial Partenaire.
Villemoisson-sur-Orge
TERRAIN ET MAISONMaison de 6 pièces (109 m²) à vendre à Villemoisson-sur-OrgeQUARTIER RECHERCHÉ – MAISON 6 PIÈCES NEUVEÀ proximité de la station Épinay-sur-Orge (Paris à 15 min avec le RER C), nous vous présentons cette maison de 6 pièces de 109 m² et de 500 m² de terrain à vendre dans un quartier attractif de Villemoisson-sur-Orge (91360). Son intérieur est composé de quatre chambres, d’une cuisine et de deux salles de bains.Il s’agit d’une maison de 2 niveaux. Elle est neuve.Cette maison se trouve dans un secteur prisé. Le Collège Blaise Pascal, l’École Maternelle Emile Bouton, l’École Élémentaire Emile Bouton et l’École Primaire les Erables sont implantés à moins de 10 minutes à pied. Niveau transports, on trouve trois lignes de RER (C, D et B) ainsi que 27 gares à moins de 10 minutes en voiture. Il y a un tennis, des commerces, quatre boulangeries, deux supermarchés, des épiceries et un bureau de poste dans les environs.Elle est à vendre pour la somme de 403 600 €.Contactez notre agence (DELOHEN Anne : (Numéro supprimé)) pour tout renseignement sur la maison.Annonce proposée par un Agent Commercial Partenaire.
Villemoisson-sur-Orge
TERRAIN ET MAISONVillemoisson-sur-Orge : maison T6 (105 m²) à vendreQUARTIER RECHERCHÉ – MAISON 6 PIÈCES NEUVEEn vente : proche du RER C (station Épinay-sur-Orge, 15 min de Paris), votre agence Maisons France Confort Nemours est ravie de vous présenter, située dans un quartier recherché de Villemoisson-sur-Orge (91360), cette maison de 6 pièces de 105 m².Il s’agit d’une maison de 2 niveaux. Son intérieur se divise en quatre chambres, une cuisine et deux salles de bains. Cette maison est neuve.Le terrain de la propriété s’étend sur 500 m².Cette maison se situe dans un secteur attractif. Le Collège Blaise Pascal, l’École Maternelle Emile Bouton, l’École Élémentaire Emile Bouton et l’École Primaire les Erables sont implantés à moins de 10 minutes à pied. Côté transports en commun, il y a les lignes de RER C, D et B ainsi que 27 gares à moins de 10 minutes en voiture. Il y a un tennis, des commerces, quatre boulangeries, deux supermarchés, un bureau de poste et des épiceries à proximité.Elle est proposée à l’achat pour 438 900 €.N’hésitez pas à prendre contact avec Anne DELOHEN ((Numéro supprimé)) pour plus de renseignements sur la propriété, sur les modalités de vente ou sur les démarches à suivre. Maisons France Confort Nemours est là pour vous accompagner dans tous vos projets immobiliers.Annonce proposée par un Agent Commercial Partenaire.
L’actualité immobilière à Villejust
27/11/2023
02/11/2023
30/10/2023
20/10/2023
16/10/2023
16/10/2023