Maison à construire à Villejust (91140)
Images
Description
Harmonie Élégante - Votre future maison à Villejust (91140)
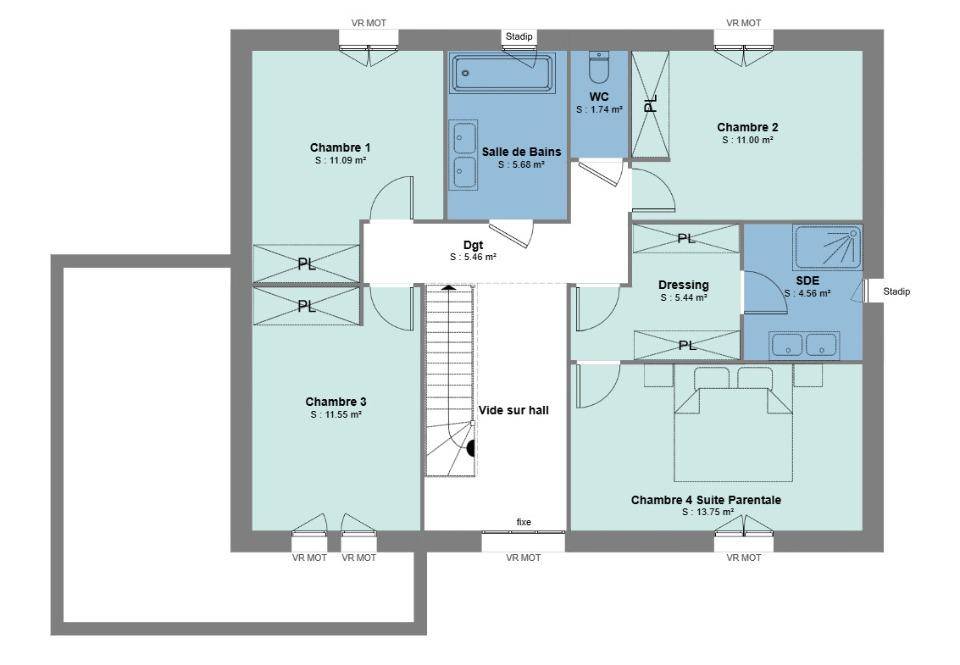
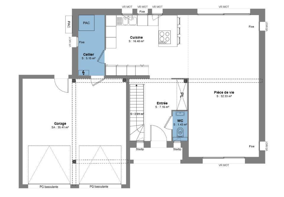
Demeure de 4 chambres à bâtir sur un lot avant de 404 m²
Découvrez le modèle Harmonie Élégante, une maison contemporaine à étage (R+1) de 136 m², imaginée par Les Maisons Balency d'Ormoy et envisageable sur un terrain de 404 m² à Villejust, dans l'Essonne. À partir de 469 000 € (terrain + maison hors frais annexes), ce projet allie design, confort et performance énergétique.
Située dans un environnement résidentiel calme, cette future demeure bénéficie d'un emplacement privilégié, proche de la gare RER B d'Orsay-Ville et de la gare de Massy-Palaiseau permettant de rejoindre Paris en moins de 30 minutes. À proximité immédiate se trouvent le centre commercial Villebon 2, les écoles de Villejust et Palaiseau, ainsi que plusieurs établissements de santé et équipements sportifs accessibles en quelques minutes. Les grandes villes de Massy et Orsay sont également toutes proches, rendant la vie quotidienne pratique et agréable.
Chez Les Maisons Balency d'Ormoy, chaque projet est unique : nous concevons des maisons totalement sur-mesure ou adaptons nos modèles existants selon vos envies. Toutes nos réalisations respectent les dernières normes RE2020, assurant une excellente performance énergétique (DPE A ou B).
Faites confiance à l'expertise d'un constructeur reconnu, membre du Groupe Hexaôm, 1er constructeur de maisons individuelles en France. Notre équipe d'Ormoy vous accompagne dans toutes les étapes de votre projet, de la recherche foncière jusqu'à la remise des clés.
📞 Contact : Maisons Balency d'Ormoy - (Numéro supprimé)
Annonce proposée par un Agent Commercial Partenaire.
Logement susceptibles de vous intéresser
Nous vous proposons de découvrir aussi cette sélection de logements situés à moins de 10km de Villejust et qui seraient susceptibles de vous intéresser.
Épinay-sur-Orge
TERRAINTerrain à Bâtir de 315 m² env à vendre à Épinay-sur-OrgePROCHE GARE – SANS VIS-À-VIS, Facade environ 13 ml, À Épinay-sur-Orge (91360) au pied du RER C (15 min de Paris), donnez vie à la maison de vos rêves sur ce terrain de 315 m²env. Ce terrain, avec une exposition est/Ouest, profite d’une vue sans vis-à-vis. Non loin de la gare, dans le centre ville, ce terrain est proche des écoles et des commerces. Il y a cinq établissements scolaires à moins de 10 minutes à pied. Niveau transports, on trouve la ligne de RER C (Épinay-Sur-Orge) Et le tram T12 à pied. Il y a une bibliothèque, deux tennis, quatre boulangeries, des commerces, un supermarché, des boucheries charcuteries et un bureau de poste dans les environs.Ce terrain est proposé à l’achat pour 192 000 €. N’hésitez pas à prendre contact avec notre agence Maisons Balency Domexpo sud de la ville du Bois (Jean Jacques PROCUREUR : (Numéro supprimé) ou (Numéro supprimé) pour tout renseignement sur le terrain.A découvrir sans plus tarder !
Savigny-sur-Orge
TERRAINVENTE d’un terrain de 300 m² à Savigny-sur-OrgeÀ Savigny-sur-Orge (91600) à 600 m du RER C (15 min de Paris), projetez la maison de vos rêves sur ce terrain de 300 m². Il bénéficie d’une exposition sud-ouest. Le terrain est proche des commerces et des écoles. Il y a des établissements scolaires (de la maternelle au lycée) à moins de 10 minutes à pied. Niveau transports en commun, on trouve la station de RER Savigny-Sur-Orge (ligne C) ainsi que la gare Savigny-sur-Orge à proximité. Il y a une bibliothèque, des boulangeries, des commerces, trois supermarchés, une supérette et des épiceries dans les environs.Ce terrain est proposé à l’achat pour 200 000 €. Contactez notre agence (BOUSELSELA Yassine : (Numéro supprimé)) pour toute question sur le terrain, sur les démarches à suivre ou sur les modalités de vente. Maisons France Confort Limay vous accompagne dans tous vos projets immobiliers et à toutes les étapes de votre projet.
Arpajon
TERRAIN ET MAISONMaison de 6 pièces (109 m²) en vente à ArpajonMAISON 6 PIÈCES NEUVE À quelques minutes du RER C (30 min de Paris), nous sommes ravis de vous présenter cette maison de 6 pièces de 109 m² et de 343 m² de terrain en vente à Arpajon (91290).C’est une maison de 2 niveaux. Elle propose quatre chambres, une cuisine et deux salles de bains. Cette maison est neuve.Il y a plusieurs établissements scolaires (maternelle, élémentaire, primaire et lycée) à moins de 10 minutes à pied, tout comme une structure d’accueil pour les enfants en bas âge. Niveau transports en commun, on trouve la station de RER Arpajon (ligne C) ainsi que la gare Arpajon dans les alentours. Il y a une bibliothèque, un tennis, des commerces, des boulangeries, deux supermarchés, deux poissonneries et deux supérettes à quelques minutes de la maison. Enfin, le marché Place du marché anime le quartier chaque vendredi matin.Elle est à vendre pour la somme de 346 596 €.N’hésitez pas à prendre contact avec notre agence (Anne DELOHEN : (Numéro supprimé)) pour toute question sur ce bien, sur les démarches à suivre ou sur les modalités de vente. Concrétisez vos projets immobiliers avec Maisons France Confort Nemours.Annonce proposée par un Agent Commercial Partenaire.
Épinay-sur-Orge
TERRAIN ET MAISONVENTE d’une maison de 5 pièces (109 m²) à Épinay-sur-OrgePROCHE GARE – MAISON 5 PIÈCES NEUVEÀ 740 m du RER C (15 min de Paris), Maisons Balency La Ville-du-Bois vous propose en vente, dans Épinay-sur-Orge (91360), proche de la gare, cette maison de 5 pièces de 109 m² + garage et de 315 m² de terrain env. Elle dispose de quatre chambres, d’une pièce de vie, une salles de bains, ou deux en option si suite parentale, un cellier et un Garage.Cette maison comporte 2 niveaux. Elle est neuve RE2020 Toute dernière Génération.Il y a cinq établissements scolaires à moins de 10 minutes à pied. Niveau transports, on trouve la ligne de RER C et TRAM T12 (Épinay-Sur-Orge) ainsi que les gares Épinay-sur-Orge et Petit Vaux à quelques pas du bien. On trouve une bibliothèque, deux tennis, quatre boulangeries, des commerces, un supermarché, des boucheries-charcuteries et un bureau de poste à proximité de la maison.Elle est proposée à l’achat pour 405 960 €. ( hors frais de notaire prévoir env 16500€) hors décoration et aménagementsMaison à très basse consommation, Réalisation en brique de terre cuite, isolation intérieure renforcée bio ressourcée, pompe à chaleur, domotique… toutes assurances comprises » dommage ouvrage »…, Frais d’architecte inclusContactez votre conseiller Jean Jacques des maisons BALENCY agence de la ville du bois au (Numéro supprimé) ou au (Numéro supprimé)(Réalisation sur Mesure exclusive des Maisons Balency agence de La ville du Bois Domexpo Sud )
Orsay
TERRAIN ET MAISONVENTE : maison Neuve 4 chambre +Garage (110 m² + Garage) à 9 min en voiture de la gare du Guichet à Orsay siyué sur la commune de NozayParis à 20 min (RER B Orsay ou C, Sainte-Geneviève-des-Bois) – À découvrir bénéficiant d’un emplacement privilégié dans Nozay (91620) À dix minutes : RER (lignes C et B), gares, établissements scolaires, bibliothèque, tennis, commerces, boulangeries, boucherie-charcuterie et bureau de posteCoté maison :Cette réalisation à très basse consommation est réalisée en brique de terre cuite, isolation intérieure renforcée bio ressourcée, pompe à chaleur, Plancher chauffant, Menuiseries en aluminium, domotique… toutes assurances comprises » dommage ouvrage » frais d’architectes inclus …, Elle est à vendre pour la somme de 459 211 €. hors frais de notaire ( prévoir env 18000€), hors frais annexes et décoration Prenez contact avec Jean Jacques PROCUREUR ((Numéro supprimé)) ou (Numéro supprimé) Maisons Balency Domexpo sud de la Ville du Bois pour tout renseignement sur le terrain et sur les modalités de vente.
Savigny-sur-Orge
TERRAIN ET MAISONVENTE d’une maison T4 (85 m²) à Savigny-sur-OrgeEMPLACEMENT PRIVILÉGIÉ – VUE SANS VIS-À-VISEn vente : à deux pas du RER C (15 min de Paris), bénéficiant d’un emplacement privilégié dans Savigny-sur-Orge (91600), nous sommes ravis de vous présenter cette maison de 4 pièces de 85 m² sans vis-à-vis. Conçue de plain-pied, elle compte trois chambres, une cuisine et une salle de bains.Le terrain de cette maison de plain-pied s’étend sur 300 m².La maison est neuve.Cette maison est située dans un secteur convoité. Des écoles de tous niveaux (de la maternelle au lycée) se trouvent à moins de 10 minutes à pied. Niveau transports en commun, il y a la station de RER Savigny-Sur-Orge (ligne C) ainsi que la gare Savigny-sur-Orge dans un rayon de 1 km. On trouve une bibliothèque, des boulangeries, des commerces, trois supermarchés, une supérette et des épiceries dans les environs.Elle est proposée à l’achat pour 348 000 €.N’hésitez pas à prendre contact avec notre agence (BOUSELSELA Yassine : (Numéro supprimé)) pour tout renseignement sur la maison ou sur les démarches à suivre. Maisons France Confort Limay est là pour vous accompagner dans tous vos projets immobiliers.
Savigny-sur-Orge
TERRAIN ET MAISONVENTE d’une maison T6 (91 m²) à Savigny-sur-OrgeIDÉALEMENT SITUÉE – MAISON 6 PIÈCES NEUVEEn vente : à côté du RER C (15 min de Paris), idéalement située dans Savigny-sur-Orge (91600), Maisons France Confort Limay vous présente cette maison de 6 pièces de 91 m² et de 300 m² de terrain sans vis-à-vis. Elle est composée de quatre chambres, d’une cuisine et d’une salle de bains.C’est une maison de 2 niveaux. Elle est neuve.La maison se situe dans un secteur prisé. Il y a des écoles de tous niveaux (de la maternelle au lycée) à moins de 10 minutes à pied. Niveau transports, on trouve la station de RER Savigny-Sur-Orge (ligne C) ainsi que la gare Savigny-sur-Orge à proximité. Il y a une bibliothèque, des boulangeries, des commerces, trois supermarchés, des épiceries et un bureau de poste à quelques minutes à peine.Elle est proposée à l’achat pour 385 000 €.N’hésitez pas à prendre contact avec notre agence (BOUSELSELA Yassine : (Numéro supprimé)) pour tout renseignement sur la maison.
Arpajon
TERRAIN ET MAISONArpajon : maison de 5 pièces (97 m²) en venteMAISON 5 PIÈCES NEUVEÀ vendre : à quelques minutes du RER C (30 min de Paris), à Arpajon (91290), venez découvrir cette maison de 5 pièces de 97 m² et de 314 m² de terrain. Elle se divise en quatre chambres, une cuisine et deux salles de bains.Cette maison comporte 2 niveaux. Elle est neuve.Plusieurs établissements scolaires (maternelle, élémentaire, primaire et lycée) sont implantés à moins de 10 minutes à pied, tout comme une crèche. Niveau transports en commun, on trouve la station de RER Arpajon (ligne C) ainsi que la gare Arpajon à quelques pas du bien. Il y a une bibliothèque, un tennis, des commerces, des boulangeries, deux supermarchés, des épiceries et deux supérettes à quelques minutes. Enfin, le marché Place du marché a lieu tous les vendredis matin.Elle est proposée à l’achat pour 414 900 €.Contactez notre agence (DELOHEN Anne : (Numéro supprimé)) pour toute question sur cette maison, sur les modalités de vente ou sur les démarches à suivre. Faites de vos projets immobiliers une réalité avec Maisons France Confort Nemours.Annonce proposée par un Agent Commercial Partenaire.
Épinay-sur-Orge
TERRAIN ET MAISONMaison de pièces (110 m²) à vendre à Épinay-sur-OrgePROCHE GARE RER e TRAM T12- MAISON 5 PIÈCES NEUVE En vente : à deux pas du RER C (15 min de Paris), laissez vous charmer par, dans Épinay-sur-Orge (91360), proche de la gare, cette maison de 4 pièces de 110 m² et de 315 m² de terrain. Son intérieur est composé de quatre chambres dont une suite parentale en RDC, Une pièce de vie de 45m² très lumineuse avec de larges baies vitrées et de deux salles de bains.Il s’agit d’une maison de 2 niveaux. Elle est neuve RE2020 toute dernière génération.Cinq établissements scolaires sont implantés à moins de 10 minutes à pied. Niveau transports, on trouve la ligne de RER C et TRAM T12(Épinay-Sur-Orge) ainsi que deux gares (Épinay-sur-Orge et Petit Vaux) dans un rayon de 1 km. Il y a une bibliothèque, deux tennis, quatre boulangeries, des commerces, un supermarché, trois épiceries et des boucheries charcuteries à quelques minutes.Elle est proposée à l’achat pour 459 228 €. ( hors frais de notaire prévoir env 16500€) hors décoration et aménagementsMaison à très basse consommation, Réalisation en brique de terre cuite, isolation intérieure renforcée bio ressourcée, pompe à chaleur, plancher chauffant, domotique… toutes assurances comprises » dommage ouvrage »…, Frais d’architecte inclusContactez votre conseiller Jean Jacques des maisons BALENCY agence de la ville du bois au (Numéro supprimé) ou au (Numéro supprimé)(Réalisation sur Mesure exclusive des Maisons Balency agence de La ville du Bois Domexpo Sud )
L’actualité immobilière à Villejust
27/11/2023
02/11/2023
30/10/2023
20/10/2023
16/10/2023
16/10/2023