Maison à construire à Villemoisson-sur-Orge (91360)
Images
Description
Maison contemporaine à construire à Villemoisson-sur-Orge (91360) - À partir de 379 000 €
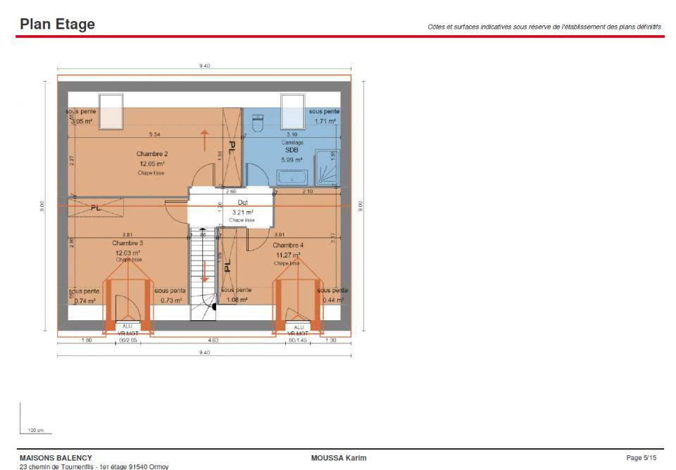
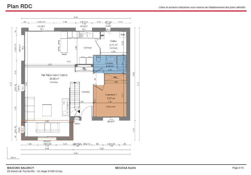
À Villemoisson-sur-Orge, dans un cadre résidentiel calme et recherché de l'Essonne, découvrez ce projet de maison design de 100 m² en R+combles à édifier sur un terrain de 260 m². Proposée à partir de 379 000 € (terrain hors frais annexes + maison), cette construction alliera esthétisme et performances énergétiques, tout en étant conforme aux dernières normes RE2020, garantissant ainsi un DPE A ou B.
Maisons Balency, membre du Groupe Hexaôm, 1er constructeur de maisons individuelles en France, vous accompagne pour concevoir une habitation entièrement personnalisée ou issue de nos modèles adaptables selon vos envies et votre mode de vie.
Le secteur bénéficie d'un excellent environnement : écoles, commerces et services à proximité immédiate. Le collège Jean Mermoz et le groupe scolaire Paul Fort sont accessibles en quelques minutes, tout comme le centre commercial de Sainte-Geneviève-des-Bois et ses nombreuses enseignes. La gare de Sainte-Geneviève-des-Bois (RER C) permet de rejoindre Paris en moins d'une heure. Les villes de Savigny-sur-Orge et Évry-Courcouronnes se trouvent à environ 15 à 20 minutes, offrant un accès pratique à de vastes zones d'emploi et de loisirs.
Ce projet est une opportunité rare de bâtir une maison moderne et économe dans une commune agréable, bien desservie et proche de la capitale.
Maisons BALENCY - Agence d'Ormoy
23 chemin de Tournenfils, 91540 Ormoy
📞 (Numéro supprimé)
Annonce proposée par un Agent Commercial Partenaire.
Logement susceptibles de vous intéresser
Nous vous proposons de découvrir aussi cette sélection de logements situés à moins de 10km de Villemoisson-sur-Orge et qui seraient susceptibles de vous intéresser.
Marcoussis
TERRAIN ET MAISONEric Mouthon Conseiller Commercial (Numéro supprimé) Étude gratuite et personnalisée sur rendez-vous.Maison Neuve RE 2020 PROCHE CENTRE VILLEDécouvrez ce terrain plat en lot avant de 250m² situé dans une ville qui a su conserver son authenticité et sa tranquillité. Cadre de Vie Idéal : Écoles sur place et environnement calme. Agencement Flexible : 3 chambres lumineuses un garage et des plans entièrement personnalisables pour un espace de vie qui vous ressemble. Performance RE 2020 : Une solution thermique et acoustique de pointe, garantissant un confort d’été supérieur (idéal contre la chaleur) et des économies d’énergie. Plancher Chauffant pour une chaleur douce et uniforme, sans radiateur encombrant. Volets Roulants (VR) motorisés et centralisé. Saisissez cette opportunité de bâtir une maison intelligente, éco-performante et sur mesure, dans un environnement paisible.
Nozay
TERRAIN ET MAISONEric Mouthon Conseiller Commercial (Numéro supprimé) Étude gratuite et personnalisée sur rendez-vous.Maison Neuve RE 2020 à Nozay.Découvrez ce terrain viabilisé de 232m² dans un village qui a su conserver son authenticité et sa tranquillité. Cadre de Vie Idéal : Écoles sur place et environnement calme. Agencement Flexible : 3 chambres lumineuses et des plans entièrement personnalisables pour un espace de vie qui vous ressemble. Performance RE 2020 : Une solution thermique et acoustique de pointe, garantissant un confort d’été supérieur (idéal contre la chaleur) et des économies d’énergie. Plancher Chauffant pour une chaleur douce et uniforme, sans radiateur encombrant. Volets Roulants (VR) motorisés et centralisé. Saisissez cette opportunité de bâtir une maison intelligente, éco-performante et sur mesure, dans un environnement paisible.
Marcoussis
TERRAINEric Mouthon Conseiller Commercial (Numéro supprimé).Terrain plat en lot avant situé dans une rue calme proche du centre ville écoles et commerces, avec ses 11m de façade c’est idéal pour un projet d’environ 100m2.
Nozay
TERRAINEric Mouthon conseiller commercial (Numéro supprimé).Terrain en lot avant de 232m² situé à Nozay dans une rue calme quartier pavillonnaire.
Villemoisson-sur-Orge
TERRAINVillemoisson-sur-Orge (91360), proche du CENTRE-VILLE pour 249 000 € : Superbe Terrain constructible de 863 m² localisé à deux pas du RER C, des commerces et des écoles !Devenez propriétaire d’un terrain situé à seulement 6 minutes en voiture de la gare RER C de Sainte-Geneviève-des-Bois (Paris accessible en moins de 30 minutes).Vous serez, de plus, à 5 minutes en voiture d’un centre commercial ainsi qu’à 12 minutes à pied de la gare d’Épinay-sur-Orge. Plusieurs écoles se trouvent à 15 minutes de marche.Dans notre agence d’Ormoy des Maisons Balency, nous vous proposons des constructions sur-mesure conformes aux dernières normes RE2020. Que vous souhaitiez une construction unique ou que vous vouliez adapter un modèle de notre catalogue, tout est possible dans notre agence !Contactez-nous dès maintenant au (Numéro supprimé) pour une recherche foncière gratuite et démarrez votre projet dans des conditions optimales.Annonce proposée par un Agent Commercial Partenaire.
Villemoisson-sur-Orge
TERRAINVillemoisson-sur-Orge (91360), à 40 minutes de PARIS (RER C) : Terrain à Bâtir de 260 m² Devenez propriétaire de ce magnifique terrain de 260 m², idéal pour concrétiser votre projet de maison individuelle. Situé dans un environnement calme et résidentiel, il bénéficie d’un cadre verdoyant tout en restant proche de toutes les commodités essentielles : écoles (École élémentaire Jules Ferry, Collège Blaise Pascal), commerces du centre-ville, supermarchés et services accessibles en quelques minutes seulement. La gare de Sainte-Geneviève-des-Bois, à proximité, permet de rejoindre Paris en environ 35 minutes via la ligne C du RER.À moins de 30 minutes d’Évry-Courcouronnes et d’une quarantaine de minutes de Paris, ce terrain offre un emplacement privilégié pour ceux qui souhaitent allier confort, accessibilité et qualité de vie.Maisons Balency, du Groupe Hexaôm, 1er constructeur de maisons individuelles en France, vous accompagne dans la réalisation de votre futur logement, qu’il s’agisse d’un modèle sur mesure ou d’une adaptation parmi nos collections existantes. Toutes nos constructions respectent les exigences de la réglementation RE2020, garantissant un confort optimal et une performance énergétique classée DPE A ou B.Maisons BALENCY – Agence d’Ormoy23 chemin de Tournenfils – 91540 Ormoy📞 (Numéro supprimé)Annonce proposée par un Agent Commercial Partenaire.
Villemoisson-sur-Orge
TERRAIN ET MAISONVillemoisson-sur-Orge (91360) : Superbe Demeure Contemporaine de 150 m² à bâtir sur un spacieux terrain partiellement viabilisé de 863 m², localisé à deux pas des écoles, des commerces et du RER C !Paris accessible en 30 minutes.Découvrez cette superbe opportunité ! Sur un terrain constructible situé à seulement 15 minutes à pied de l’école, 5 minutes en voiture d’un supermarché et 6 minutes de la gare RER C de Sainte-Geneviève-des-Bois, faites construire votre demeure contemporaine avec toiture-terrasse. Le projet est envisageable à partir de 559 000 € (terrain hors frais annexes + maison).Chez Maisons Balency, notre agence d’Ormoy vous propose des projets totalement sur-mesure conformes aux normes RE2020. Nos créations personnalisées ou basées sur des modèles catalogués sauront répondre à toutes vos attentes 🏠. Contactez-nous au (Numéro supprimé) pour une recherche foncière gratuite et démarrez votre projet dans des conditions idéales ✨!Annonce proposée par un Agent Commercial Partenaire.
Villemoisson-sur-Orge
TERRAIN ET MAISONVillemoisson-sur-Orge, proche CENTRE-VILLE (91360) : PLAIN-PIED EN L de 90 m² situé sur un spacieux terrain de 863 m² à deux pas des commodités, ainsi que de la gare de Sainte-Geneviève-des-Bois (Paris accessible en 30 minutes).Découvrez ce charmant modèle de maison de 5 pièces à construire sur un spacieux terrain à partir de 404 000 € (terrain hors frais annexes + maison) ! À seulement 15 min à pied d’une école, 5 min en voiture d’un centre commercial et 6 min de la gare RER C de Sainte-Geneviève-des-Bois, vous rejoindrez Paris en moins de 30 min 🚆.Chez Maisons Balency, notre agence d’Ormoy vous propose des maisons sur-mesure, respectant les normes RE2020, ou l’adaptation de nos modèles existants. Contactez-nous vite au (Numéro supprimé) pour une recherche foncière gratuite et démarrer votre projet dans les meilleures conditions ! ✨Annonce proposée par un Agent Commercial Partenaire.
Villemoisson-sur-Orge
TERRAIN ET MAISONDemeure Environnementale en Bois de 114 m² à bâtir à Saint-Escobille (91410), à partir de 596 000 € !Devenez propriétaire d’une superbe maison haut-de-gamme à bâtir sur un terrain de 823 m². Ce modèle « CUBIK » des Maisons Balency d’Ormoy est envisageable sur un terrain constructible de 623 m² situé à Saint-Escobille (91410), au coeur de l’Essonne.Alliant design contemporain, performance énergétique et respect de l’environnement, cette maison de 114 m² offre un confort durable et une conception pensée pour l’avenir :Les atouts de la construction bois BALENCY :- Isolation intérieure et extérieure ultra-performante (R = 6,56 m².C°/W)- 2 fois plus isolant que le béton ou la brique- Aucun pont thermique, confort été comme hiver- Chantier rapide : murs montés en 1 journée- 65 % de déchets en moins sur le chantier- 60 % d’impact en moins sur le climat qu’une maison traditionnelle- 80 % de consommation d’eau en moins à la conception- Bois issus de forêts éco-gérées, bilan carbone positif- Matériau naturel sans contrainte d’entretien- Fabrication et qualité certifiées 100 % françaisesGrâce à une conception optimisée, votre maison sera écologique, économique et durable, tout en vous permettant de réaliser des économies d’énergie significatives.Appelez-nous au (Numéro supprimé) pour découvrir nos modèles, nos terrains disponibles et bénéficier d’un accompagnement complet dans votre projet : recherche foncière, démarches administratives et construction de la maison.Annonce proposée par un Agent Commercial Partenaire.
L’actualité immobilière à Villemoisson-sur-Orge
27/11/2023
02/11/2023
30/10/2023
20/10/2023
16/10/2023
16/10/2023