Maison à construire à Yerres (91330)
Images
Description
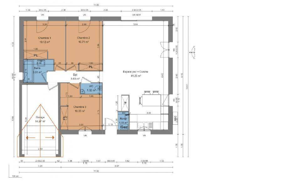
YERRES (91330), proche RER D : PLAIN-PIED TRADITIONNEL des Maisons Balency d'Ormoy à bâtir sur un terrain viabilisé de 610 m² !
Devenez propriétaire(s) dans le Val d'Yerres en faisant construire sur une belle parcelle une jolie maison pratique de 3 chambres, convenant tant à un jeune couple avec enfant, qu'à de frais retraités.
Le projet terrain + construction (hors frais annexes et frais de notaire) est envisageable dès 423 000 €, avec une possibilité de personnalisation complète selon vos aspirations et votre budget.
À Yerres, vous bénéficierez d'un cadre de vie privilégié à deux pas des commerces (Carrefour City, NaturéO, boulangeries locales), de la Propriété Caillebotte et de la Forêt de Sénart. Le centre commercial Valdoly est également situé à proximité, offrant une quinzaine de minutes d'accès. À moins de 10 minutes, vous trouverez les écoles primaires et le gymnase municipal. L'Église Saint-Honest, monument local, est visible depuis le coeur de ville.
La gare de Yerres est desservie par le RER D permettant de rejoindre notamment Paris-Gare-de-Lyon en moins d'une demi-heure.
Que vous souhaitiez cette maison sans modification ou une version très personnalisée, elle suivra les dernières normes environnementales RE2020 (et aura un score DPE A ou B).
Appelez-nous sans plus attendre au (Numéro supprimé) !
Maisons BALENCY, Agence d'Ormoy, du Groupe Hexaôm, 1er constructeur de maisons individuelles en France. Pour toute étude ou projet personnalisé : Agence d'Ormoy, 23 chemin de Tournenfils, 91540 Ormoy.
Annonce proposée par un Agent Commercial Partenaire.
Logement susceptibles de vous intéresser
Nous vous proposons de découvrir aussi cette sélection de logements situés à moins de 10km de Yerres et qui seraient susceptibles de vous intéresser.
Ormesson-sur-Marne
TERRAIN ET MAISONA ORMESSON-SUR-MARNE sur un terrain de 480 m², Maisons Clairval vous propose de réaliser cette maison neuve d'une surface de 120 m² habitables avec 4 chambres + garage, voir deux maisons de 120 m² chacune, idéal pour un projet familial ou investissement avec vu sur le domaine du château sans vis à vis. Situé au cœur d'un secteur résidentiel très prisé et recherché pour son calme absolu, ce terrain offre une opportunité de construction unique.Profitez d'un équilibre parfait entre tranquillité et vie pratique.Cadre de vie verdoyant : À proximité immédiate de la forêt et des espaces naturels, offrant un environnement privilégié.Secteur familial : Proximité directe avec les groupes scolaires, les commerces et les installations sportives/culturelles.Accessibilité : Excellente desserte des axes routiers (A4/N4) et des transports en commun (lignes de bus) permettant de rejoindre rapidement le RER A.Un emplacement idéal pour un projet de vie sur mesure, alliant la sérénité d'un quartier pavillonnaire à tous les avantages de la vie quotidienne.Demandez une étude gratuite et personnalisée de votre projet de construction au (Numéro supprimé)!Contactez Nous au (Numéro supprimé) (Maisons Clairval).Prix avec assurance dommages-ouvrage comprise, VRD non compris, terrain viabilisé, adaptation non comprise, assainissement non compris, frais de notaire non compris, taxes non comprises, frais divers non compris. Terrain sélectionné et vu pour vous sous réserve de disponibilité et au prix indiqué par notre partenaire foncier. Conditions et visuels non contractuels.Cette annonce a été créée et diffusée avec le logiciel VITAHOME.
Ormesson-sur-Marne
TERRAIN ET MAISONTerrain de 485 m², hors lotissement, avec une belle façade de plus de 21 m, viabilité sur rue, très belle exposition sans vis a vis, non mitoyen, toutes les commodités à pieds. dernier lot disponible dans quartier très recherché avec une vue sur la château.Maison neuve sur mesure Plain Pied de 120 m² habitables avec 4 chambres, dont une suite parentale, séjour traversant, isolation renforcé, PAC air/eau, volets roulants crépusculaires, avec garantie 10 ans et dommage ouvrage (DO) comprise dans le prix.prix ferme et définitive dès la signature du contrat, possibilité de bénéficier du prêt a taux zéro (PTZ),Etude de financement, Plans et visite possible sur simple demande.contact : (Numéro supprimé)Contactez nous au (Numéro supprimé)(Maisons Clairval).Prix avec assurance dommages-ouvrage comprise, VRD non compris, terrain viabilisé, adaptation non comprise, assainissement non compris, frais de notaire non compris, taxes non comprises, frais divers non compris. Terrain sélectionné et vu pour vous sous réserve de disponibilité et au prix indiqué par notre partenaire foncier. Conditions et visuels non contractuels.Cette annonce a été créée et diffusée avec le logiciel VITAHOME.
Servon
TERRAIN ET MAISONMaison T7 (120 m²) en vente à ServonMAISON 7 PIÈCES NEUVE – PROCHE DE PARISÀ vendre : à proximité de la station Boussy-Saint-Antoine du RER D (30 min de Paris), Maisons France Confort Magny-le-Hongre vous présente cette maison de 7 pièces de 120 m² et de 600 m² de terrain à Servon (77170).Cette maison possède 2 niveaux. Elle offre cinq chambres, une cuisine et deux salles de bains. Cette maison est neuve.Il y a l’École Primaire la Butte Aux Bergers à moins de 10 minutes à pied. Niveau transports en commun, on trouve trois lignes de RER (D, A et E) ainsi que sept gares à moins de 10 minutes en voiture. Il y a un tennis, une bibliothèque, des boulangeries, des commerces, un supermarché, un bureau de poste et une boucherie-charcuterie à proximité de la maison.Elle est à vendre pour la somme de 401 000 €.Prenez contact avec Alan RUBAL (tél : (Numéro supprimé)) pour plus d’informations sur la maison. Maisons France Confort Magny-le-Hongre vous accompagne dans tous vos projets immobiliers et dans toutes vos démarches.Annonce proposée par un Agent Commercial Partenaire.
Servon
TERRAIN ET MAISONMaison T8 (160 m²) en vente à ServonPROCHE DE PARIS – MAISON 8 PIÈCES NEUVEÀ vendre : à côté de la station Boussy-Saint-Antoine du RER D (30 min de Paris), à Servon (77170), nous sommes ravis de vous proposer cette maison de 8 pièces de 160 m² et de 600 m² de terrain. Son intérieur dispose de cinq chambres, d’une cuisine et de six salles de bains.C’est une maison de 2 niveaux. Elle est neuve.Il y a l’École Primaire la Butte Aux Bergers à moins de 10 minutes à pied. Niveau transports, on trouve les lignes de RER D, A et E ainsi que sept gares à moins de 10 minutes en voiture. On trouve un tennis, une bibliothèque, des boulangeries, des commerces, un supermarché, une boucherie-charcuterie et un bureau de poste à proximité.Elle est à vendre pour la somme de 473 000 €.N’hésitez pas à prendre contact avec notre agence (Alan RUBAL : (Numéro supprimé)) pour obtenir de plus amples renseignements sur ce bien, sur les démarches à suivre ou sur les modalités de vente. Donnez vie à vos projets immobiliers avec Maisons France Confort Magny-le-Hongre.Annonce proposée par un Agent Commercial Partenaire.
Servon
TERRAIN ET MAISONMaison de 5 pièces (100 m²) à vendre à ServonMAISON 5 PIÈCES NEUVE – PROCHE DE PARISÀ côté de la station Boussy-Saint-Antoine (Paris à 30 min par le RER D), Maisons France Confort Magny-le-Hongre vous propose cette maison de 5 pièces de 100 m² et de 600 m² de terrain à Servon (77170). Elle compte trois chambres, une cuisine et une salle de bains.Cette maison possède 2 niveaux. Elle est neuve.L’École Primaire la Butte Aux Bergers est implantée à moins de 10 minutes à pied. Niveau transports en commun, on trouve les lignes de RER D, A et E ainsi que sept gares à moins de 10 minutes en voiture. Il y a un tennis, une bibliothèque, des boulangeries, des commerces, un supermarché, un bureau de poste et une boucherie-charcuterie à proximité du logement.Elle est à vendre pour la somme de 365 000 €.N’hésitez pas à prendre contact avec Alan RUBAL ((Numéro supprimé)) pour plus d’informations sur la maison. Concrétisez vos projets immobiliers avec Maisons France Confort Magny-le-Hongre.Annonce proposée par un Agent Commercial Partenaire.
Athis-Mons
TERRAINSecteur calme et recherché à proximité du RER C.Rare sur le secteur.Prix : 227000 €.Sur ce terrain de 460 m² à ATHIS-MONS, Maisons Clairval vous propose de réaliser votre projet de construction de maison individuelle.Maisons Clairval propose de construire votre maison neuve avec toutes les prestations suivantes :- Plan sur-mesure et personnalisé de 2 à 6 chambres- Mode de chauffage au choix- Grands choix d'équipements et de prestations- Matériaux de qualité selon les normes en vigueur- Accompagnement dans le choix et l’acquisition du terrain- Construction conforme à la nouvelle RE 2020Demandez une étude gratuite et personnalisée de votre projet de construction sur ce terrain !Contactez Nicolas REBOUL au (Numéro supprimé) ou au (Numéro supprimé) (Maisons Clairval – Agence de Villemoisson).Prix hors frais de notaire. Terrain sélectionné et vu pour vous sous réserve de disponibilité et au prix indiqué par notre partenaire foncier. Conditions et visuels non contractuels.Cette annonce a été créée et diffusée avec le logiciel VITAHOME.
Boussy-Saint-Antoine
TERRAINProfitez du PTZ en zone A pour financer votre projetPrix : 149000 €.Sur ce terrain de 657 m² à BOUSSY-SAINT-ANTOINE, Maisons Clairval vous propose de réaliser votre projet de construction de maison individuelle.Maisons Clairval propose de construire votre maison neuve avec toutes les prestations suivantes :- Plan sur-mesure et personnalisé de 2 à 6 chambres- Mode de chauffage au choix- Grands choix d'équipements et de prestations- Matériaux de qualité selon les normes en vigueur- Accompagnement dans le choix et l’acquisition du terrain- Construction conforme à la nouvelle RE 2020Demandez une étude gratuite et personnalisée de votre projet de construction sur ce terrain !Contactez Nicolas REBOUL au (Numéro supprimé) ou au (Numéro supprimé) (Maisons Clairval – Agence de Villemoisson).Prix hors frais de notaire. Terrain sélectionné et vu pour vous sous réserve de disponibilité et au prix indiqué par notre partenaire foncier. Conditions et visuels non contractuels.Cette annonce a été créée et diffusée avec le logiciel VITAHOME.
Brunoy
TERRAINConstruction possible de 101 m² en R+1+combles.Prix : 130000 €.Sur ce terrain de 353 m² à BRUNOY, Maisons Clairval vous propose de réaliser votre projet de construction de maison individuelle.Maisons Clairval propose de construire votre maison neuve avec toutes les prestations suivantes :- Plan sur-mesure et personnalisé de 2 à 6 chambres- Mode de chauffage au choix- Grands choix d'équipements et de prestations- Matériaux de qualité selon les normes en vigueur- Accompagnement dans le choix et l’acquisition du terrain- Construction conforme à la nouvelle RE 2020Demandez une étude gratuite et personnalisée de votre projet de construction sur ce terrain !Contactez Nicolas REBOUL au (Numéro supprimé) ou au (Numéro supprimé) (Maisons Clairval – Agence de Villemoisson).Prix hors frais de notaire. Terrain sélectionné et vu pour vous sous réserve de disponibilité et au prix indiqué par notre partenaire foncier. Conditions et visuels non contractuels.Cette annonce a été créée et diffusée avec le logiciel VITAHOME.
Créteil
TERRAINEnvironnement paisible et verdoyantProximité immédiate des écoles, commerces, transports et des bords de MarneUne belle opportunité à saisir dans l'un des quartiers les plus prisés de Créteil.Dans un environnement recherché, à deux pas du village de Créteil et des bords de MarnePrix : 460000 €.Sur ce terrain de 383 m² à CRETEIL, Maisons Clairval vous propose de réaliser votre projet de construction de maison individuelle.Maisons Clairval propose de construire votre maison neuve avec toutes les prestations suivantes :- Plan sur-mesure et personnalisé de 2 à 6 chambres- Mode de chauffage au choix- Grands choix d'équipements et de prestations- Matériaux de qualité selon les normes en vigueur- Accompagnement dans le choix et l’acquisition du terrain- Construction conforme à la nouvelle RE 2020Demandez une étude gratuite et personnalisée de votre projet de construction sur ce terrain !Contactez Nicolas REBOUL au (Numéro supprimé) ou au (Numéro supprimé) (Maisons Clairval – Agence de Villemoisson).Prix hors frais de notaire. Terrain sélectionné et vu pour vous sous réserve de disponibilité et au prix indiqué par notre partenaire foncier. Conditions et visuels non contractuels.Cette annonce a été créée et diffusée avec le logiciel VITAHOME.
L’actualité immobilière à Yerres
27/11/2023
02/11/2023
30/10/2023
20/10/2023
16/10/2023
16/10/2023