Maison à construire à Acquigny (27400)
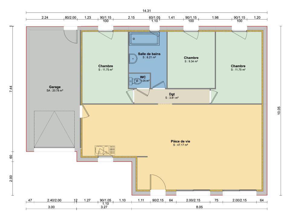
Images
Description
VENTE d'une maison T5 (90 m²) à Acquigny
MAISON 5 PIÈCES NEUVE - PROCHE D'ÉVREUX
À quelques kilomètres d'Évreux, venez découvrir cette maison de 5 pièces de plain-pied de 90 m² à vendre à Acquigny (27400). Elle se divise en trois chambres, une cuisine et une salle de bains.
Le terrain de la propriété est de 690 m².
Cette maison est neuve.
L'École Primaire Arc En Ciel est implantée à moins de 10 minutes à pied. Côté transports, on trouve la gare Saint-Pierre-du-Vauvray à moins de 10 minutes en voiture. Les autoroutes A154 et A13 et la nationale N154 sont accessibles à moins de 5 km. Il y a deux tennis, deux boulangeries, un commerce, une boucherie-charcuterie, une supérette et un bureau de poste dans les environs.
Elle est proposée à l'achat pour 244 500 €.
Prenez contact avec notre agence (XAVIER ALVES Kévin : (Numéro supprimé)) pour plus d'informations sur la maison, sur les modalités de vente et sur les démarches à suivre. Maisons Balency Boos vous accompagne à toutes les étapes de l'achat et dans tous vos projets immobiliers.
Annonce proposée par un Agent Commercial Partenaire.
Logement susceptibles de vous intéresser
Nous vous proposons de découvrir aussi cette sélection de logements situés à moins de 10km de Acquigny et qui seraient susceptibles de vous intéresser.
Incarville
TERRAINSur la commune de INCARVILLE, dans un quartier résidentiel, terrain à bâtir prêt à accueillir votre future maison individuelle
Incarville
TERRAIN ET MAISONVENTE : maison de 6 pièces (151 m²) à IncarvilleMAISON 6 PIÈCES NEUVE – PROCHE DE ROUENEn vente : à 21 km de Rouen, Les Maisons Extraco Pont-de-l’Arche vous propose à Incarville (27400), cette maison de 6 pièces de 151 m². Elle inclut cinq chambres, une cuisine et deux salles de bains.Le terrain de la maison est de 732 m².Cette maison compte 2 niveaux. Elle est neuve.Il y a des écoles maternelles et élémentaires dans le quartier. Niveau transports, on trouve trois gares (Saint-Pierre-du-Vauvray, Val-de-Reuil et Pont-de-l’Arche) à moins de 10 minutes en voiture. On trouve un accès à l’autoroute A154 à 1 km. Il y a un tennis, quatre commerces, une boulangerie et deux épiceries à proximité du bien.Elle est proposée à l’achat pour 377 300 €.Contactez Peter MORIN ((Numéro supprimé)) pour toute information sur cette maison, sur les démarches à suivre ou sur les modalités de vente. Concrétisez vos projets immobiliers avec Les Maisons Extraco Pont-de-l’Arche.
Incarville
TERRAIN ET MAISONVENTE d’une maison T6 (139 m²) à IncarvillePROCHE DE ROUEN – MAISON 6 PIÈCES NEUVEÀ vendre à quelques kilomètres de Rouen, nous vous présentons à Incarville (27400), cette maison de 6 pièces de 139 m². Elle propose quatre chambres, une cuisine et deux salles de bains.Le terrain de la maison s’étend sur 732 m².Il s’agit d’une maison de 2 niveaux. Elle est neuve.Des écoles maternelles et élémentaires sont implantées dans le quartier. Niveau transports, il y a les gares Saint-Pierre-du-Vauvray, Val-de-Reuil et Pont-de-l’Arche à moins de 10 minutes en voiture. On trouve un accès à l’autoroute A154 à 1 km. On trouve un tennis, quatre commerces, une boulangerie et deux épiceries dans les environs.Son prix de vente est de 388 900 €.Contactez notre agence (MORIN Peter : (Numéro supprimé)) pour toute question sur cette maison.
Incarville
TERRAIN ET MAISONVENTE : maison F6 (149 m²) à IncarvillePROCHE DE ROUEN – MAISON 6 PIÈCES NEUVEÀ quelques kilomètres de Rouen, nous vous proposons cette maison de 6 pièces de 149 m² en vente à Incarville (27400).Il s’agit d’une maison de 2 niveaux. Elle compte quatre chambres, une cuisine et deux salles de bains. La maison est neuve.Le terrain du bien est de 732 m².On trouve des écoles maternelles et élémentaires dans le quartier. Niveau transports en commun, il y a trois gares (Saint-Pierre-du-Vauvray, Val-de-Reuil et Pont-de-l’Arche) à moins de 10 minutes en voiture. Il y a un accès à l’autoroute A154 à 1 km. On trouve un tennis, quatre commerces, une boulangerie et deux épiceries à quelques minutes à peine.Elle est à vendre pour la somme de 392 600 €.Contactez notre agence (Peter MORIN : (Numéro supprimé)) pour toute question sur la maison.
Saint-Étienne-du-Vauvray
TERRAINSaint-Étienne-du-Vauvray : terrain de 573 m² en venteEMPLACEMENT PRIVILÉGIÉ – VUE DÉGAGÉEÀ Saint-Étienne-du-Vauvray (27430) à vendre à quelques kilomètres de Rouen, projetez la maison de vos rêves sur ce terrain de 573 m². Il profite d’une vue dégagée. Dans un secteur convoité, le terrain bénéficiant d’un emplacement d’exception est proche des écoles et des commerces. Une école primaire est implantée dans le quartier. Côté transports, il y a trois gares (Saint-Pierre-du-Vauvray, Val-de-Reuil et Pont-de-l’Arche) à moins de 10 minutes en voiture. Les autoroutes A13 et A154 et la nationale N154 sont accessibles à moins de 9 km. On trouve un commerce dans les environs.Son prix de vente est de 79 000 €. Contactez notre agence (Julien THOMAS : (Numéro supprimé)) pour plus de renseignements sur le terrain, sur les démarches à suivre ou sur les modalités de vente. Les Maisons Extraco Pont-de-l’Arche est là pour vous accompagner dans tous vos projets immobiliers.
Saint-Étienne-du-Vauvray
TERRAIN ET MAISONVENTE : maison T4 (71 m²) à Saint-Étienne-du-VauvrayEMPLACEMENT PRIVILÉGIÉ – MAISON 4 PIÈCES NEUVEÀ vendre à deux pas de Rouen, venez découvrir cette maison de 4 pièces de 71 m² et de 573 m² de terrain avec vue dégagée bénéficiant d’un emplacement d’exception dans Saint-Étienne-du-Vauvray (27430). Elle dispose de trois chambres, d’une cuisine et d’une salle de bains.Cette maison est de plain-pied. Elle est neuve.Cette maison se trouve dans un secteur prisé. Une école primaire y est implantée. Niveau transports en commun, il y a trois gares (Saint-Pierre-du-Vauvray, Val-de-Reuil et Pont-de-l’Arche) à moins de 10 minutes en voiture. Les autoroutes A13 et A154 et la nationale N154 sont accessibles à moins de 9 km. On trouve un commerce à quelques minutes.Elle est proposée à l’achat pour 200 008 €.Contactez Julien THOMAS ((Numéro supprimé)) pour toute information sur la maison. Les Maisons Extraco Pont-de-l’Arche vous accompagne dans tous vos projets immobiliers et à toutes les étapes de l’achat.
Saint-Étienne-du-Vauvray
TERRAIN ET MAISONVENTE d’une maison T5 (92 m²) à Saint-Étienne-du-VauvrayEMPLACEMENT PRIVILÉGIÉ – MAISON 5 PIÈCES NEUVEÀ vendre : à 24 km de Rouen, bénéficiant d’un emplacement d’exception dans Saint-Étienne-du-Vauvray (27430), Les Maisons Extraco Pont-de-l’Arche vous propose cette maison de 5 pièces de plain-pied de 92 m². Conçue de plain-pied, elle est composée de quatre chambres, d’une cuisine et d’une salle de bains.Le terrain de cette maison s’étend sur 573 m².Cette maison est neuve.La maison est située dans un secteur prisé. Une école primaire y est implantée. Côté transports, il y a trois gares (Saint-Pierre-du-Vauvray, Val-de-Reuil et Pont-de-l’Arche) à moins de 10 minutes en voiture. Les autoroutes A13 et A154 et la nationale N154 sont accessibles à moins de 9 km. On trouve un commerce dans les environs.Son prix de vente est de 233 608 €.Contactez Julien THOMAS (tél : (Numéro supprimé)) pour toute question sur la propriété, sur les démarches à suivre ou sur les modalités de vente. Les Maisons Extraco Pont-de-l’Arche est là pour vous accompagner à toutes les étapes de l’achat.
Saint-Étienne-du-Vauvray
TERRAIN ET MAISONVENTE : maison de 5 pièces (114 m²) à Saint-Étienne-du-VauvrayEMPLACEMENT PRIVILÉGIÉ – MAISON 5 PIÈCES NEUVEEn vente : localisée à deux pas de Rouen, Les Maisons Extraco Pont-de-l’Arche vous propose cette maison de 5 pièces de plain-pied de 114 m² bénéficiant d’un emplacement privilégié dans Saint-Étienne-du-Vauvray (27430). Elle comporte quatre chambres, une cuisine et une salle de bains.Le terrain de la propriété est de 573 m².La maison est neuve.La maison se situe dans un quartier prisé. On y trouve une école primaire. Côté transports en commun, on trouve les gares Saint-Pierre-du-Vauvray, Val-de-Reuil et Pont-de-l’Arche à moins de 10 minutes en voiture. Les autoroutes A13 et A154 et la nationale N154 sont accessibles à moins de 9 km. Il y a un commerce à proximité du logement.Elle est à vendre pour la somme de 241 108 €.Contactez Julien THOMAS (tél : (Numéro supprimé)) pour obtenir de plus amples informations sur la maison ou sur les modalités de vente.
Le Boulay-Morin
TERRAINTerrain de 525 m² à vendre au Boulay-MorinPROCHE D’ÉVREUXGrand terrain à quelques kilomètres d’Évreux. De 525 m², ce terrain se situe dans Le Boulay-Morin (27930). Il y a des écoles primaires dans le quartier. Niveau transports, on trouve la gare Évreux Normandie à moins de 10 minutes en voiture. Les nationales N154 et N13 sont accessibles à moins de 8 km.Il est à vendre pour la somme de 59 000 €. Prenez contact avec Karen DELELIS (tél : (Numéro supprimé)) pour obtenir de plus amples informations sur ce terrain ou sur les modalités de vente. Concrétisez vos projets immobiliers avec Maisons Balency Gravigny.Annonce proposée par un Agent Commercial Partenaire.
L’actualité immobilière à Acquigny
27/11/2023
02/11/2023
30/10/2023
20/10/2023
16/10/2023
16/10/2023