Maison à construire à Amfreville-sur-Iton (27400)
Images
Description
Amfreville-sur-Iton : maison F5 (120 m²) en vente
MAISON 5 PIÈCES NEUVE - PROCHE D'ÉVREUX
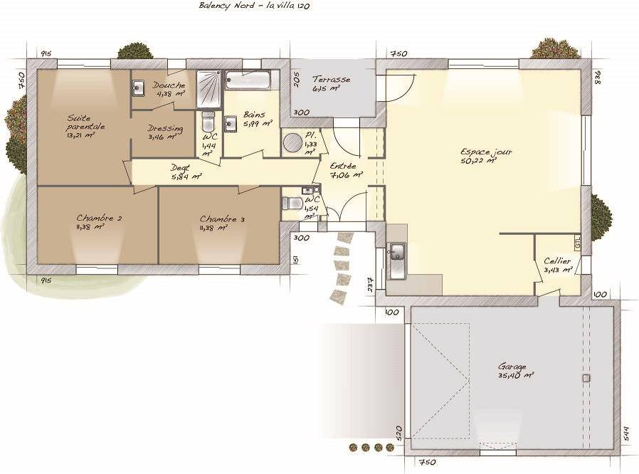
En vente : Jolie maison de plain pied de 120 m² habitables, spacieuse et lumineuse. Elle se compose d'un espace nuit bien séparé des pièces de vies par une entrée avec rangements et placards. 3 chambres dont une suite parentale avec dressing et salle deau privative, et une seconde salle de bain. Vous trouverez également 2 WC indépendants, une grande cuisine ouverte sur séjour avec des baies coulissantes, et un cellier donnant sur un grand garage.
Prestations de qualités ; plancher chauffant, matériaux haut de gamme et finitions soignées.
Prenez contact avec Karen GOHIER ((Numéro supprimé)) pour tout renseignement sur ce modèle.
Annonce proposée par un Agent Commercial Partenaire.
Logement susceptibles de vous intéresser
Nous vous proposons de découvrir aussi cette sélection de logements situés à moins de 10km de Amfreville-sur-Iton et qui seraient susceptibles de vous intéresser.
Sacquenville
TERRAIN ET MAISONSacquenville : maison de 7 pièces (160 m²) à vendreEMPLACEMENT PRIVILÉGIÉ – En vente à quelques kilomètres d’Évreux, bénéficiant d’un emplacement privilégié dans Sacquenville (27930), nous sommes ravis de vous proposer cette maison de 7 pièces de 160 m² et de 1 053 m² de terrain. Elle dispose de quatre chambres dont une suite parentale , d’une cuisine ouverte sur l’espace de vie, deux salles de bains d’un cellier et d’un garage.Cette maison compte 2 niveaux. Elle est neuve.Il est proposé à l’achat pour 377 806 €.Prenez contact avec notre agence (GATINAULT Fanny : (Numéro supprimé)) pour obtenir de plus amples renseignements sur la maison. Concrétisez vos projets immobiliers avec Maisons Balency Louviers.Annonce proposée par un Agent Commercial Partenaire.
Sacquenville
TERRAINVENTE : terrain de 826 m² à SacquenvilleEMPLACEMENT PRIVILÉGIÉ – PROCHE D’ÉVREUXÀ vendre à deux pas d’Évreux à Sacquenville (27930), grand terrain. Il est prêt à accueillir votre projet immobilier pour toute la famille. Ce terrain, avec une exposition nord-est, donne sur un jardin. Ce terrain est situé dans un secteur convoité. On y trouve une école primaire. Terrain viabiliséSon prix de vente est de 55 000 €. Prenez contact avec Fanny GATINAULT (tél : (Numéro supprimé)) pour tout renseignement sur ce terrain. Maisons Balency Louviers vous accompagne dans tous vos projets immobiliers et à toutes les étapes de l’achat.Annonce proposée par un Agent Commercial Partenaire.
Sacquenville
TERRAIN ET MAISONSacquenville : maison T4 (60 m²) en venteEMPLACEMENT PRIVILÉGIÉ – Située à deux pas d’Évreux, venez découvrir cette maison de 4 pièces de plain-pied de 60 m². Elle inclut deux chambres, une cuisine ouverte sur l’espace de vie et une salle de bains.Le terrain du bien est de 826 m².La maison est neuve idéale pour un investissement locatif ou un premier achat. Son prix de vente est de 159 315 €.N’hésitez pas à prendre contact avec notre agence (GATINAULT Fanny : (Numéro supprimé)) pour toute information sur la propriété. Maisons Balency Louviers vous accompagne dans toutes vos démarches et dans tous vos projets immobiliers.Annonce proposée par un Agent Commercial Partenaire.
Sacquenville
TERRAINTerrain de 902 m² en vente à SacquenvilleEMPLACEMENT PRIVILÉGIÉ – PROCHE D’ÉVREUXÀ 9 km d’Évreux à Sacquenville (27930), grand terrain. Il est prêt à accueillir la maison de vos rêves pour toute la famille. Ce terrain, orienté au sud-est, donne sur un jardin, il est viabilisé. Une école primaire y est implantée. Il est proposé à l’achat pour 55 000 €. Contactez notre agence (GATINAULT Fanny : (Numéro supprimé)) pour toute information sur ce terrain, sur les démarches à suivre et sur les modalités de vente.Annonce proposée par un Agent Commercial Partenaire.
Sacquenville
TERRAIN ET MAISONSacquenville : maison F6 (100 m²) à vendreEMPLACEMENT PRIVILÉGIÉ -Située à quelques kilomètres d’Évreux, Maisons Balency Louviers vous présente, ce projet bénéficiant ‘un emplacement d’exception dans Sacquenville (27930), cette maison de 6 pièces de 100 m². Elle comporte quatre chambres dont une suite parentale , une cuisine ouverte sur l’espace de vie, d’un cellier, deux salles de bains et d’un garage.Le terrain du bien s’étend sur 902 m².Il s’agit d’une maison de 2 niveaux. La maison se situe dans un secteur recherché. Une école primaire y est implantée. Elle est à vendre pour la somme de 256 637 €.N’hésitez pas à prendre contact avec Fanny GATINAULT ((Numéro supprimé)) pour tout renseignement sur la maison ou sur les modalités de vente.Annonce proposée par un Agent Commercial Partenaire.
Sacquenville
TERRAIN ET MAISONMaison F6 (128 m²) en vente à SacquenvilleEMPLACEMENT PRIVILÉGIÉ – À 9 km d’Évreux, laissez vous charmer par cette maison de 6 pièces de 128 m² bénéficiant d’un emplacement privilégié dans Sacquenville (27930).Cette maison comporte 2 niveaux. Elle offre quatre chambres dont une suite parentale, une cuisine ouverte sur l’espace de vie, deux salles de bains, un cellier et d’un garage. La maison est neuve.Le terrain de la propriété s’étend sur 902 m².Ce bien se trouve dans un quartier attractif. Une école primaire y est implantée. Côté transports en commun, il y a la gare Évreux Normandie à moins de 10 minutes en voiture. Les nationales N13 et N154 sont accessibles à moins de 8 km. On trouve deux épiceries dans les environs.Son prix de vente est de 304 449 €.Prenez contact avec Fanny GATINAULT (tél : (Numéro supprimé)) pour tout renseignement sur la maison, sur les modalités de vente ou sur les démarches à suivre. Maisons Balency Louviers est là pour vous accompagner à toutes les étapes de votre projet.Annonce proposée par un Agent Commercial Partenaire.
Sacquenville
TERRAINVENTE d’un terrain de 1 053 m² à SacquenvilleEMPLACEMENT PRIVILÉGIÉ – PROCHE D’ÉVREUXÀ Sacquenville (27930) à 9 km d’Évreux, découvrez ce terrain de 1 053 m². Ce terrain, orienté sud-ouest, donne sur un jardin.Le terrain est viabilisé. Son prix de vente est de 55 000 €. Contactez Fanny GATINAULT (tél : (Numéro supprimé)) pour toute question sur ce terrain, sur les démarches à suivre ou sur les modalités de vente.Annonce proposée par un Agent Commercial Partenaire.
Sacquenville
TERRAIN ET MAISONVENTE : maison de 8 pièces (145 m²) à SacquenvilleEMPLACEMENT PRIVILÉGIÉ – En vente : à 9 km d’Évreux, Maisons Balency Louviers vous présente cette maison de 8 pièces de 145 m² et de 1 053 m² de terrain bénéficiant d’un emplacement privilégié dans Sacquenville (27930).Cette maison compte 2 niveaux. Son intérieur se divise en cinq chambres dont une suite parentale, une cuisine ouverte sur l’espace de vie, d’un cellier, trois salles de bains et d’un garage. Cette maison est neuve.Ce bien est situé dans un secteur convoité. Une école primaire y est implantée. Il est à vendre pour la somme de 342 137 €.Contactez Fanny GATINAULT ((Numéro supprimé)) pour toute question sur la maison ou sur les modalités de vente. Maisons Balency Louviers vous accompagne dans toutes vos démarches et dans tous vos projets immobiliers.Annonce proposée par un Agent Commercial Partenaire.
Sacquenville
TERRAIN ET MAISONMaison de 4 pièces (50 m²) à vendre à SacquenvilleEMPLACEMENT PRIVILÉGIÉ -À vendre : située à quelques kilomètres d’Évreux, bénéficiant d’un emplacement privilégié dans Sacquenville (27930), venez découvrir cette maison de 4 pièces de plain-pied de 50 m² et de 1 053 m² de terrain.Conçue de plain-pied, elle inclut deux chambres, une cuisine ouverte sur l’espace de vie, une salle de bains et d’un garage . La maison est neuve.Cette maison se situe dans un secteur recherché. Une école primaire y est implantée. Son prix de vente est de 159 299 €.Prenez contact avec notre agence (GATINAULT Fanny : (Numéro supprimé)) pour toute information sur la maison, sur les démarches à suivre ou sur les modalités de vente. Maisons Balency Louviers vous accompagne à toutes les étapes de votre projet et dans tous vos projets immobiliers.Annonce proposée par un Agent Commercial Partenaire.
L’actualité immobilière à Amfreville-sur-Iton
27/11/2023
02/11/2023
30/10/2023
20/10/2023
16/10/2023
16/10/2023