Maison à construire à Angerville-la-Campagne (27930)
Images
Description
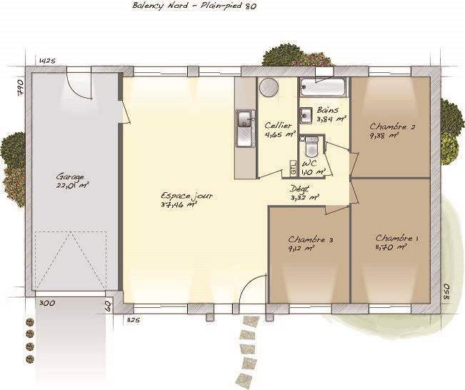
VENTE d'une maison T5 (80 m²) à Angerville-la-Campagne
MAISON 5 PIÈCES NEUVE - PROCHE D'ÉVREUX
En vente : située à quelques kilomètres d'Évreux, nous vous proposons cette maison de 5 pièces de plain-pied de 80 m² à Angerville-la-Campagne (27930).
Elle inclut trois chambres, une cuisine et une salle de bains. La maison est neuve.
Le terrain de la propriété s'étend sur 433 m².
Il y a l'École Primaire Alphonse Cosme à moins de 10 minutes à pied. Niveau transports, on trouve deux gares (Évreux Normandie et La Bonneville-sur-Iton) à moins de 10 minutes en voiture. Les nationales N13 et N154 sont accessibles à moins de 4 km. Il y a un commerce à proximité du bien.
Elle est à vendre pour la somme de 227 713 €.
Prenez contact avec Karen DELELIS (tél : (Numéro supprimé)) pour obtenir de plus amples informations sur cette maison ou sur les démarches à suivre. Maisons Balency Gravigny vous accompagne dans tous vos projets immobiliers et à toutes les étapes de l'achat.
Annonce proposée par un Agent Commercial Partenaire.
Logement susceptibles de vous intéresser
Nous vous proposons de découvrir aussi cette sélection de logements situés à moins de 10km de Angerville-la-Campagne et qui seraient susceptibles de vous intéresser.
Le Plessis-Grohan
TERRAIN ET MAISONVENTE d’une maison de 4 pièces (84 m²) au Plessis-GrohanIDÉALEMENT SITUÉE – MAISON 4 PIÈCES NEUVEÀ 8 km d’Évreux, découvrez cette maison de 4 pièces de plain-pied de 84 m² à vendre, idéalement située dans Le Plessis-Grohan (27180).Conçue de plain-pied, elle compte trois chambres, une cuisine et une salle de bains. Cette maison est neuve.Le terrain du bien est de 544 m².Le bien est situé dans un secteur recherché. Une école élémentaire y est implantée. Côté transports en commun, on trouve les gares Évreux Normandie et La Bonneville-sur-Iton à moins de 10 minutes en voiture. Les nationales N154 et N13 sont accessibles à moins de 7 km.Il est à vendre pour la somme de 183 200 €.N’hésitez pas à prendre contact avec notre agence (SONMEZ Oumayma : (Numéro supprimé)) pour toute question sur la maison, sur les modalités de vente ou sur les démarches à suivre. Concrétisez vos projets immobiliers avec Les Maisons Extraco Gravigny.
Guichainville
TERRAIN ET MAISONVENTE d’une maison F5 (86 m²) à GuichainvilleQUARTIER RECHERCHÉ – MAISON 5 PIÈCES NEUVEEn vente : localisée à deux pas d’Évreux, située dans un secteur convoité de Guichainville (27930), nous sommes heureux de vous présenter cette maison de 5 pièces de 86 m² et de 524 m² de terrain.Cette maison possède 2 niveaux. Elle comporte trois chambres, une cuisine et une salle de bains. Cette maison est neuve.Cette propriété se situe dans un quartier attractif. On y trouve des établissements scolaires maternelles et élémentaires. Côté transports, on trouve la gare Évreux Normandie à moins de 10 minutes en voiture. Les nationales N13 et N154 sont accessibles à moins de 3 km. Il y a un tennis, cinq commerces et une boulangerie dans les environs.Son prix de vente est de 199 600 €.Prenez contact avec Oumayma SONMEZ ((Numéro supprimé)) pour toute information sur la maison, sur les modalités de vente ou sur les démarches à suivre. Les Maisons Extraco Gravigny vous accompagne à toutes les étapes de votre projet et dans tous vos projets immobiliers.
Évreux
TERRAIN ET MAISONVENTE : maison F6 (120 m²) à ÉvreuxEMPLACEMENT PRIVILÉGIÉ – MAISON 6 PIÈCES NEUVENous sommes ravis de vous proposer cette maison de 6 pièces de 120 m² et de 512 m² de terrain en vente bénéficiant d’un emplacement d’exception dans Évreux (27000). Son intérieur compte quatre chambres, une cuisine et deux salles de bains.Il s’agit d’une maison de 2 niveaux. Elle est neuve.Cette maison est située dans un secteur attractif. Il y a plusieurs écoles (maternelle, élémentaire, primaire et collège) à moins de 10 minutes à pied, tout comme deux structures d’accueil pour la petite enfance. Côté transports en commun, on trouve la gare Évreux Normandie à quelques pas de la maison. Les nationales N13 et N154 sont accessibles à moins de 4 km. Il y a une bibliothèque, un bowling, des commerces, des boulangeries, un supermarché, une poissonnerie et deux supérettes à proximité de la maison. Enfin, 2 marchés animent les environs.Son prix de vente est de 267 800 €.Contactez notre agence (Oumayma SONMEZ : (Numéro supprimé)) pour toute question sur la maison.
Aulnay-sur-Iton
TERRAIN ET MAISONVENTE d’une maison de 5 pièces (85 m²) à Aulnay-sur-ItonIDÉALEMENT SITUÉE – MAISON 5 PIÈCES NEUVEÀ quelques kilomètres d’Évreux, votre agence Les Maisons Extraco Gravigny est heureuse de vous proposer cette maison de 5 pièces de 85 m² et de 1 002 m² de terrain idéalement située dans Aulnay-sur-Iton (27180). Elle est composée de quatre chambres, d’une cuisine et de deux salles de bains.Il s’agit d’une maison de 2 niveaux. Elle est neuve.Le bien se trouve dans un quartier recherché. L’École Primaire Paul Vezain est implantée à moins de 10 minutes à pied. Niveau transports, on trouve les gares La Bonneville-sur-Iton, Évreux Normandie et Conches-en-Ouche à moins de 10 minutes en voiture. Les nationales N13 et N154 sont accessibles à moins de 10 km. Il y a deux tennis à quelques minutes du bien.Son prix de vente est de 190 500 €.Prenez contact avec Oumayma SONMEZ (tél : (Numéro supprimé)) pour plus de renseignements sur la maison. Les Maisons Extraco Gravigny vous accompagne à toutes les étapes de votre projet et dans toutes vos démarches.
Guichainville
TERRAIN ET MAISONVENTE : maison T4 (82 m²) à GuichainvilleQUARTIER RECHERCHÉ – MAISON 4 PIÈCES NEUVEÀ vendre à deux pas d’Évreux, nous sommes heureux de vous proposer cette maison de 4 pièces de plain-pied de 82 m² située dans un quartier prisé de Guichainville (27930).Elle se divise en trois chambres, une cuisine et une salle de bains. La maison est neuve.Le terrain du bien est de 524 m².Cette maison est située dans un secteur convoité. On y trouve des établissements scolaires primaires. Côté transports en commun, il y a la gare Évreux Normandie à moins de 10 minutes en voiture. Les nationales N13 et N154 sont accessibles à moins de 3 km. On trouve un tennis, cinq commerces et une boulangerie à proximité.Elle est à vendre pour la somme de 204 800 €.N’hésitez pas à prendre contact avec notre agence (Oumayma SONMEZ : (Numéro supprimé)) pour plus d’informations sur la maison, sur les démarches à suivre ou sur les modalités de vente.
Aulnay-sur-Iton
TERRAINVENTE d’un terrain de 1 002 m² à Aulnay-sur-ItonIDÉALEMENT SITUÉ – PROCHE D’ÉVREUXÀ Aulnay-sur-Iton (27180) à vendre à quelques kilomètres d’Évreux, découvrez ce terrain de 1 002 m². Ce terrain, avec vue sur espace vert, est exposé au sud-ouest. Dans un secteur attractif, le terrain idéalement situé est proche des écoles et des commerces. L’École Primaire Paul Vezain est implantée à moins de 10 minutes à pied. Niveau transports, il y a les gares La Bonneville-sur-Iton, Évreux Normandie et Conches-en-Ouche à moins de 10 minutes en voiture. Les nationales N13 et N154 sont accessibles à moins de 10 km. On trouve deux tennis à quelques minutes à peine.Ce terrain est à vendre pour la somme de 45 000 €. N’hésitez pas à prendre contact avec Oumayma SONMEZ (tél : (Numéro supprimé)) pour obtenir de plus amples renseignements sur le terrain. Concrétisez vos projets immobiliers avec Les Maisons Extraco Gravigny.
Jumelles
TERRAIN ET MAISONVENTE : maison de 5 pièces (92 m²) à JumellesEMPLACEMENT PRIVILÉGIÉ – MAISON 5 PIÈCES NEUVEEn vente à quelques kilomètres d’Évreux, laissez vous charmer par, bénéficiant d’un emplacement d’exception dans Jumelles (27220), cette maison de 5 pièces de plain-pied de 92 m². Elle propose quatre chambres, une cuisine et une salle de bains.Le terrain de la maison s’étend sur 565 m².Cette maison est neuve.La maison est située dans un secteur recherché. Plusieurs écoles (maternelle, élémentaire, primaire et collège) se trouvent à moins de 10 minutes en voiture. Les nationales N154 et N13 sont accessibles à moins de 10 km. Il y a des tennis, une bibliothèque, des commerces, trois supermarchés, des boulangeries, trois supérettes et un bureau de poste à proximité du logement. Enfin, le marché Place Gambetta anime le quartier tous les vendredis matin.Son prix de vente est de 202 800 €.Contactez Oumayma SONMEZ ((Numéro supprimé)) pour plus d’informations sur la propriété. Donnez vie à vos projets immobiliers avec Les Maisons Extraco Gravigny.
Jumelles
TERRAINTerrain de 565 m² à vendre à JumellesEMPLACEMENT PRIVILÉGIÉ – PROCHE D’ÉVREUXÀ Jumelles (27220) à quelques kilomètres d’Évreux, projetez la maison de vos rêves sur ce terrain de 565 m². Il donne sur un espace vert et bénéficie d’une exposition sud-ouest. Dans un secteur attractif, ce terrain bénéficiant d’un emplacement d’exception est proche des écoles et des commerces. Plusieurs établissements scolaires (maternelle, élémentaire, primaire et collège) sont implantés à moins de 10 minutes en voiture. Les nationales N154 et N13 sont accessibles à moins de 10 km. On trouve des tennis, une bibliothèque, des commerces, trois supermarchés, des boulangeries, un bureau de poste et deux épiceries dans les environs. Le marché Place Gambetta a lieu tous les vendredis matin.Son prix de vente est de 49 900 €. Contactez notre agence (Oumayma SONMEZ : (Numéro supprimé)) pour plus d’informations sur le terrain, sur les modalités de vente ou sur les démarches à suivre. Les Maisons Extraco Gravigny vous accompagne à toutes les étapes de l’achat et dans tous vos projets immobiliers.
Fauville
TERRAIN ET MAISONVENTE d’une maison F4 (84 m²) à FauvilleIDÉALEMENT SITUÉE – MAISON 4 PIÈCES NEUVEÀ vendre à quelques kilomètres d’Évreux, idéalement située dans Fauville (27930), Les Maisons Extraco Gravigny vous propose cette maison de 4 pièces de plain-pied de 84 m² et de 1 106 m² de terrain.Son intérieur inclut trois chambres, une cuisine et une salle de bains. La maison est neuve.Cette maison se situe dans un secteur attractif. Le lycée École de Production Education et Formation Usin’eure est implanté à moins de 10 minutes à pied. Côté transports en commun, on trouve la gare Évreux Normandie à moins de 10 minutes en voiture. La nationale N154 est accessible à 1 km.Elle est proposée à l’achat pour 210 200 €.N’hésitez pas à prendre contact avec notre agence (Oumayma SONMEZ : (Numéro supprimé)) pour plus d’informations sur la maison, sur les modalités de vente ou sur les démarches à suivre.
L’actualité immobilière à Angerville-la-Campagne
27/11/2023
02/11/2023
30/10/2023
20/10/2023
16/10/2023
16/10/2023