Maison à construire à Aviron (27930)
Images
Description
GAMME BOIS
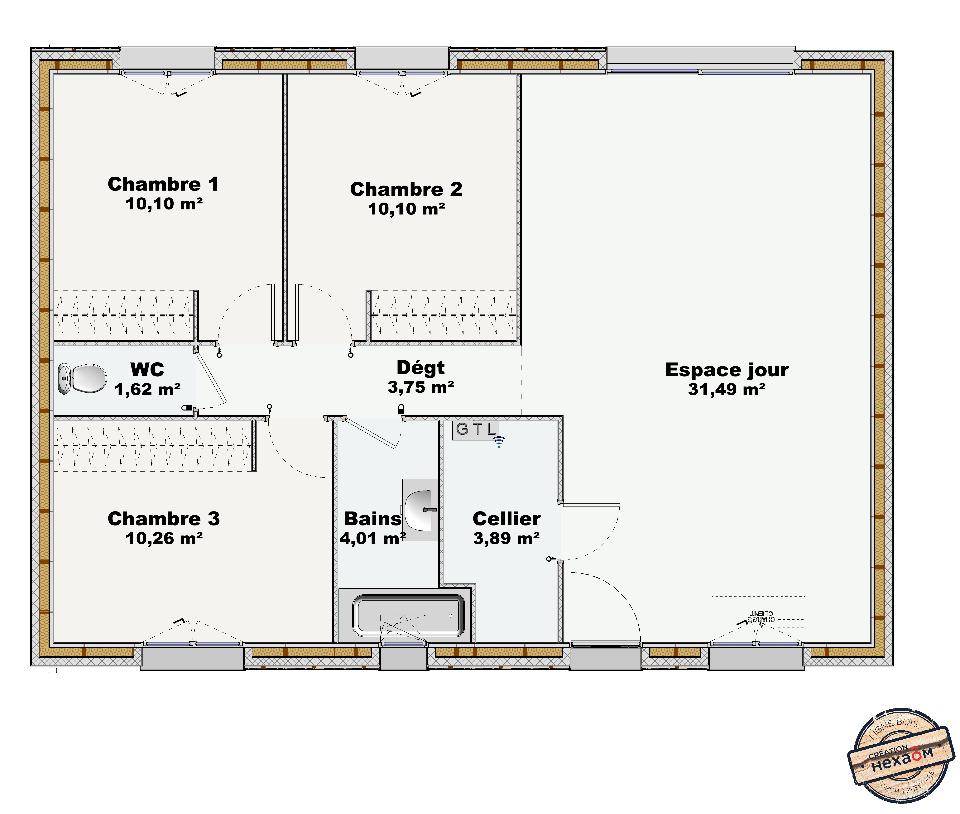
VENTE d'une maison T4 (75 m²) à Aviron
PROCHE D'ÉVREUX - MAISON 4 PIÈCES NEUVE
À vendre : localisée à 5 km d'Évreux, à Aviron (27930), nous vous présentons cette maison de 4 pièces de plain-pied de 75 m². Conçue de plain-pied, elle offre trois chambres, une cuisine ouverte sur le séjour et une salle de bains.
Le terrain de la propriété est de 230 m².
La maison est neuve.
Une école primaire est implantée dans le quartier. Niveau transports en commun, il y a deux gares (Évreux Normandie et La Bonneville-sur-Iton) à moins de 10 minutes en voiture. Les nationales N13 et N154 sont accessibles à moins de 4 km.
Elle est proposée à l'achat pour 199 900 €.
Contactez notre agence (KTARI Aurélie : (Numéro supprimé)) pour toute question sur cette propriété, sur les modalités de vente ou sur les démarches à suivre. Les Maisons Extraco Gravigny est là pour vous accompagner à toutes les étapes de votre projet.
Logement susceptibles de vous intéresser
Nous vous proposons de découvrir aussi cette sélection de logements situés à moins de 10km de Aviron et qui seraient susceptibles de vous intéresser.
Guichainville
TERRAIN ET MAISONVENTE d’une maison F6 (120 m²) à GuichainvilleMAISON 6 PIÈCES NEUVE – PROCHE D’ÉVREUXÀ vendre : à deux pas d’Évreux, nous sommes ravis de vous présenter cette maison de 6 pièces de 120 m² à Guichainville (27930). Elle propose quatre chambres, une cuisine ouverte sur le séjour, deux salles de bains, un cellier et un garage.Le terrain du bien s’étend sur 516 m².Cette maison comporte 2 niveaux. Elle est neuve.Des établissements scolaires primaires sont implantés dans le quartier. Côté transports, il y a la gare Évreux Normandie à moins de 10 minutes en voiture. Les nationales N13 et N154 sont accessibles à moins de 3 km. On trouve un tennis, plusieurs commerces et une boulangerie à quelques minutes du logement.Son prix de vente est de 289 000 €.Contactez Aurélie KTARI (tél : (Numéro supprimé)) pour plus de renseignements sur la maison ou sur les modalités de vente.
Angerville-la-Campagne
TERRAIN ET MAISONVENTE : maison F5 (100 m²) à Angerville-la-CampagnePROCHE D’ÉVREUX – MAISON 5 PIÈCES NEUVEÀ vendre : localisée à quelques kilomètres d’Évreux, à Angerville-la-Campagne (27930), venez découvrir cette maison de 5 pièces de 100 m² et de 445 m² de terrain. Son intérieur inclut quatre chambres, une cuisine ouverte sur le séjour, deux salles de bains, un cellier et un garage.C’est une maison de 2 niveaux. Elle est neuve.On trouve l’École Primaire Alphonse Cosme à moins de 10 minutes à pied. Niveau transports en commun, il y a les gares Évreux Normandie et La Bonneville-sur-Iton à moins de 10 minutes en voiture. Les nationales N13 et N154 sont accessibles à moins de 4 km. On trouve un commerce à quelques minutes.Elle est à vendre pour la somme de 235 000 €.N’hésitez pas à prendre contact avec notre agence (Aurélie KTARI : (Numéro supprimé)) pour tout renseignement sur cette maison ou sur les démarches à suivre. Les Maisons Extraco Gravigny vous accompagne dans tous vos projets immobiliers et à toutes les étapes de l’achat.
Aviron
TERRAIN ET MAISONMaison F6 (143 m²) à vendre à AvironMAISON 6 PIÈCES NEUVE – PROCHE D’ÉVREUXÀ vendre : située à quelques kilomètres d’Évreux, nous sommes ravis de vous proposer cette maison de 6 pièces de 143 m² à Aviron (27930).Cette maison comporte 2 niveaux. Son intérieur propose quatre chambres, une cuisine ouverte sur le séjour, deux salles de bains, un cellier et un garage. La maison est neuve.Le terrain du bien est de 230 m².Il y a une école primaire dans le quartier. Niveau transports, on trouve les gares Évreux Normandie et La Bonneville-sur-Iton à moins de 10 minutes en voiture. Les nationales N13 et N154 sont accessibles à moins de 4 km.Son prix de vente est de 389 000 €.N’hésitez pas à prendre contact avec notre agence (Aurélie KTARI : (Numéro supprimé)) pour toute information sur cette propriété, sur les démarches à suivre ou sur les modalités de vente. Donnez vie à vos projets immobiliers avec Les Maisons Extraco Gravigny.
Reuilly
TERRAIN ET MAISONVENTE : maison de 4 pièces (110 m²) à ReuillyEMPLACEMENT PRIVILÉGIÉ – MAISON 4 PIÈCES NEUVEÀ vendre : située à quelques kilomètres d’Évreux, nous vous proposons cette maison de 4 pièces de plain-pied de 110 m², bénéficiant d’un emplacement privilégié dans Reuilly (27930). Elle propose deux chambres, une cuisine et une salle de bains.Le terrain de cette maison est de 1 272 m².La maison est neuve.La maison est située dans un secteur recherché. Une école élémentaire y est implantée. Niveau transports en commun, il y a la gare Évreux Normandie à moins de 10 minutes en voiture. L’autoroute A13 et les nationales N154 et N13 sont accessibles à moins de 10 km. On trouve un tennis dans les environs.Son prix de vente est de 267 510 €.N’hésitez pas à prendre contact avec Benjamin GRZESKOWIAK ((Numéro supprimé)) pour toute information sur la propriété ou sur les démarches à suivre. Les Maisons Extraco Gravigny est là pour vous accompagner dans tous vos projets immobiliers.
Reuilly
TERRAINTerrain de 1 272 m² à vendre à ReuillyEMPLACEMENT PRIVILÉGIÉ – PROCHE D’ÉVREUXGrand terrain en vente à 9 km d’Évreux. De 1 272 m², ce terrain se situe bénéficiant d’un emplacement d’exception dans Reuilly (27930). Il est exposé au sud. Dans un quartier recherché, ce terrain est proche des commerces et des écoles. Une école élémentaire est implantée dans le quartier. Niveau transports en commun, on trouve la gare Évreux Normandie à moins de 10 minutes en voiture. L’autoroute A13 et les nationales N154 et N13 sont accessibles à moins de 10 km. Il y a un tennis dans les environs.Il est à vendre pour la somme de 65 000 €. Prenez contact avec notre agence (GRZESKOWIAK Benjamin : (Numéro supprimé)) pour obtenir de plus amples renseignements sur le terrain.
Le Vieil-Évreux
TERRAIN ET MAISONVENTE d’une maison de 4 pièces (120 m²) au Vieil-ÉvreuxIDÉALEMENT SITUÉE – MAISON 4 PIÈCES NEUVEEn vente : localisée à deux pas d’Évreux, nous sommes ravis de vous proposer cette maison de 4 pièces de plain-pied de 120 m² et de 848 m² de terrain idéalement située dans Le Vieil-Évreux (27930). Son intérieur propose trois chambres, une cuisine et deux salles de bains.Cette maison est neuve.Cette maison se trouve dans un secteur prisé. Une école maternelle y est implantée. Niveau transports, il y a la gare Évreux Normandie à moins de 10 minutes en voiture. Les nationales N13 et N154 sont accessibles à moins de 4 km. On trouve un commerce à quelques minutes du bien.Son prix de vente est de 289 500 €.N’hésitez pas à prendre contact avec notre agence (Benjamin GRZESKOWIAK : (Numéro supprimé)) pour tout renseignement sur la maison.
Angerville-la-Campagne
TERRAIN ET MAISONVENTE d’une maison F4 (93 m²) à Angerville-la-CampagnePROCHE D’ÉVREUX – MAISON 4 PIÈCES NEUVEÀ vendre à quelques kilomètres d’Évreux, nous vous présentons cette maison de 4 pièces de plain-pied de 93 m² à Angerville-la-Campagne (27930).Elle propose trois chambres, une cuisine ouverte sur un séjour et une salle de bains. La maison est neuve.Le terrain du bien est de 445 m².On trouve l’École Primaire Alphonse Cosme à moins de 10 minutes à pied. Niveau transports, il y a deux gares (Évreux Normandie et La Bonneville-sur-Iton) à moins de 10 minutes en voiture. Les nationales N13 et N154 sont accessibles à moins de 4 km. On trouve un commerce dans les environs.Elle est à vendre pour la somme de 209 000 €.Prenez contact avec notre agence (KTARI Aurélie : (Numéro supprimé)) pour obtenir de plus amples informations sur cette maison ou sur les modalités de vente. Les Maisons Extraco Gravigny vous accompagne à toutes les étapes de votre projet et dans toutes vos démarches.
Guichainville
TERRAIN ET MAISONMaison de 5 pièces (95 m²) en vente à GuichainvilleMAISON 5 PIÈCES NEUVE – PROCHE D’ÉVREUXÀ vendre : à 5 km d’Évreux, à Guichainville (27930), Les Maisons Extraco Gravigny vous propose cette maison de 5 pièces de plain-pied de 95 m².Conçue de plain-pied, elle offre quatre chambres, une cuisine ouverte sur le séjour et une salle de bains. Cette maison est neuve.Le terrain de la propriété est de 516 m².On trouve des écoles primaires dans le quartier. Niveau transports en commun, il y a la gare Évreux Normandie à moins de 10 minutes en voiture. Les nationales N13 et N154 sont accessibles à moins de 3 km. On trouve un tennis, cinq commerces et une boulangerie à quelques minutes.Elle est proposée à l’achat pour 209 000 €.Contactez notre agence (KTARI Aurélie : (Numéro supprimé)) pour toute information sur la maison ou sur les démarches à suivre. Les Maisons Extraco Gravigny vous accompagne à toutes les étapes de l’achat et dans tous vos projets immobiliers.
Le Vieil-Évreux
TERRAIN ET MAISONVENTE d’une maison T4 (75 m²) au Vieil-ÉvreuxIDÉALEMENT SITUÉE – MAISON 4 PIÈCES NEUVEEn vente à quelques kilomètres d’Évreux, nous vous proposons, idéalement située dans Le Vieil-Évreux (27930), cette maison de 4 pièces de plain-pied de 75 m² et de 848 m² de terrain.Son intérieur dispose de trois chambres, d’une cuisine et d’une salle de bains. La maison est neuve.La maison est située dans un secteur recherché. On y trouve une école maternelle. Côté transports, on trouve la gare Évreux Normandie à moins de 10 minutes en voiture. Les nationales N13 et N154 sont accessibles à moins de 4 km. Il y a un commerce dans les environs.Son prix de vente est de 198 500 €.Contactez notre agence (Benjamin GRZESKOWIAK : (Numéro supprimé)) pour toute question sur la maison ou sur les démarches à suivre. Les Maisons Extraco Gravigny vous accompagne à toutes les étapes de l’achat et dans tous vos projets immobiliers.
L’actualité immobilière à Aviron
27/11/2023
02/11/2023
30/10/2023
20/10/2023
16/10/2023
16/10/2023