Maison à construire à Barquet (27170)
Images
Description
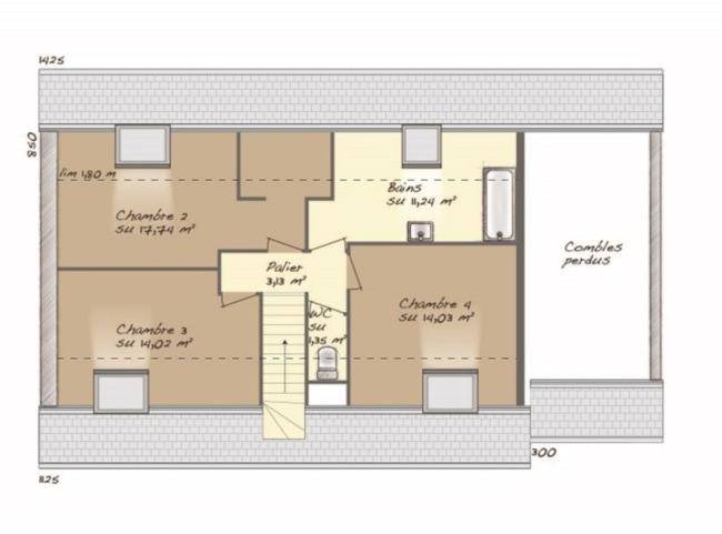
VENTE d'une maison T6 (117 m²) à Barquet
EMPLACEMENT PRIVILÉGIÉ - MAISON 6 PIÈCES NEUVE
À vendre : située à deux pas d'Évreux, Maisons Balency Boos vous présente cette maison de 6 pièces de plain-pied de 117 m² et de 1 659 m² de terrain, bénéficiant d'un emplacement d'exception dans Barquet (27170).
Elle inclut quatre chambres, une cuisine et deux salles de bains. Cette maison est neuve.
La maison se situe dans un quartier recherché. Une école élémentaire y est implantée. Niveau transports en commun, on trouve deux gares (Romilly-la-Puthenaye et Beaumont-le-Roger) à moins de 10 minutes en voiture. La nationale N13 est accessible à 18 km.
Elle est à vendre pour la somme de 253 000 €.
Contactez notre agence (Aurélien LEOVANT : (Numéro supprimé)) pour obtenir de plus amples renseignements sur le bien, sur les démarches à suivre ou sur les modalités de vente. Faites de vos projets immobiliers une réalité avec Maisons Balency Boos.
Annonce proposée par un Agent Commercial Partenaire.
Logement susceptibles de vous intéresser
Nous vous proposons de découvrir aussi cette sélection de logements situés à moins de 10km de Barquet et qui seraient susceptibles de vous intéresser.
Ormes
TERRAINVENTE d’un terrain de 1 000 m² à OrmesPROCHE D’ÉVREUXEn vente à quelques kilomètres d’Évreux à Ormes (27190), grand terrain. Il est prêt à accueillir la maison de vos rêves pour toute la famille. Il y a une école élémentaire dans le quartier. Niveau transports en commun, on trouve deux gares (La Bonneville-sur-Iton et Romilly-la-Puthenaye) à moins de 10 minutes en voiture. La nationale N13 est accessible à 10 km.Son prix de vente est de 38 000 €. Contactez notre agence (GRZESKOWIAK Benjamin : (Numéro supprimé)) pour plus d’informations sur ce terrain ou sur les modalités de vente. Les Maisons Extraco Gravigny vous accompagne dans tous vos projets immobiliers et dans toutes vos démarches.
Ormes
TERRAIN ET MAISONVENTE d’une maison de 3 pièces (65 m²) à OrmesMAISON 3 PIÈCES NEUVE – PROCHE D’ÉVREUXEn vente : localisée à 14 km d’Évreux, nous sommes heureux de vous présenter cette maison de 3 pièces de plain-pied de 65 m² et de 1 000 m² de terrain à Ormes (27190).Conçue de plain-pied, elle compte deux chambres, une cuisine et une salle de bains. La maison est neuve.Une école élémentaire est implantée dans le quartier. Côté transports en commun, il y a deux gares (La Bonneville-sur-Iton et Romilly-la-Puthenaye) à moins de 10 minutes en voiture. Il y a un accès à la nationale N13 à 10 km.Elle est à vendre pour la somme de 151 300 €.Contactez notre agence (Benjamin GRZESKOWIAK : (Numéro supprimé)) pour plus de renseignements sur cette maison.
Ormes
TERRAIN ET MAISONMaison T4 (81 m²) en vente à OrmesMAISON 4 PIÈCES NEUVE – PROCHE D’ÉVREUXEn vente à quelques kilomètres d’Évreux, nous sommes heureux de vous proposer à Ormes (27190), cette maison de 4 pièces de 81 m².C’est une maison de 2 niveaux. Son intérieur inclut deux chambres, une cuisine et une salle de bains. La maison est neuve.Le terrain du bien est de 1 000 m².On trouve une école élémentaire dans le quartier. Côté transports en commun, il y a deux gares (La Bonneville-sur-Iton et Romilly-la-Puthenaye) à moins de 10 minutes en voiture. La nationale N13 est accessible à 10 km.Elle est proposée à l’achat pour 173 512 €.Contactez Benjamin GRZESKOWIAK ((Numéro supprimé)) pour plus d’informations sur la maison. Les Maisons Extraco Gravigny est là pour vous accompagner dans tous vos projets immobiliers.
Ormes
TERRAIN ET MAISONVENTE : maison T3 (99 m²) à OrmesMAISON 3 PIÈCES NEUVE – PROCHE D’ÉVREUXÀ vendre : à quelques kilomètres d’Évreux, à Ormes (27190), notre agence Les Maisons Extraco Gravigny est heureuse de vous présenter cette maison de 3 pièces de plain-pied de 99 m² et de 1 000 m² de terrain. Elle propose trois chambres, une cuisine et deux salles de bains.La maison est neuve.Une école élémentaire est implantée dans le quartier. Côté transports, il y a deux gares (La Bonneville-sur-Iton et Romilly-la-Puthenaye) à moins de 10 minutes en voiture. La nationale N13 est accessible à 10 km.Elle est à vendre pour la somme de 223 000 €.Contactez notre agence (Benjamin GRZESKOWIAK : (Numéro supprimé)) pour plus d’informations sur cette maison ou sur les modalités de vente.
Ormes
TERRAIN ET MAISONMaison F4 (93 m²) à vendre à OrmesMAISON 4 PIÈCES NEUVE – PROCHE D’ÉVREUXEn vente à deux pas d’Évreux, à Ormes (27190), laissez vous charmer par cette maison de 4 pièces de plain-pied de 93 m² et de 1 000 m² de terrain.Conçue de plain-pied, elle se divise en trois chambres, une cuisine et une salle de bains. Cette maison est neuve.Il y a une école élémentaire dans le quartier. Niveau transports, on trouve deux gares (La Bonneville-sur-Iton et Romilly-la-Puthenaye) à moins de 10 minutes en voiture. On trouve un accès à la nationale N13 à 10 km.Son prix de vente est de 177 200 €.Contactez Benjamin GRZESKOWIAK (tél : (Numéro supprimé)) pour toute information sur la maison, sur les démarches à suivre ou sur les modalités de vente. Les Maisons Extraco Gravigny vous accompagne à toutes les étapes de l’achat et dans tous vos projets immobiliers.
Collandres-Quincarnon
TERRAINVENTE d’un terrain de 1 286 m² à Collandres-QuincarnonPROCHE D’ÉVREUXGrand terrain à vendre à quelques kilomètres d’Évreux. De 1 286 m², ce terrain se situe dans Collandres-Quincarnon (27190). Il est orienté plein sud. Ce terrain est proche des écoles et des commerces. Des établissements scolaires de tous types (de la maternelle au lycée) sont implantés à moins de 10 minutes en voiture, tout comme deux structures d’accueil pour les enfants en bas âge à moins de 10 minutes à pied. Côté transports en commun, il y a deux gares (Romilly-la-Puthenaye et Conches-en-Ouche) à moins de 10 minutes en voiture. On trouve des tennis, une bibliothèque, un bassin de natation, des commerces, des boulangeries, quatre supermarchés, une supérette et trois épiceries dans les environs. Le marché Place des Halles anime les environs chaque dimanche matin.Il est proposé à l’achat pour 29 000 €. Prenez contact avec notre agence (GRZESKOWIAK Benjamin : (Numéro supprimé)) pour toute information sur ce terrain, sur les démarches à suivre ou sur les modalités de vente. Les Maisons Extraco Gravigny vous accompagne dans tous vos projets immobiliers et dans toutes vos démarches.
Collandres-Quincarnon
TERRAIN ET MAISONVENTE : maison T5 (137 m²) à Collandres-QuincarnonMAISON 5 PIÈCES NEUVE – PROCHE D’ÉVREUXÀ 21 km d’Évreux, Les Maisons Extraco Gravigny vous présente à vendre à Collandres-Quincarnon (27190), cette maison de 5 pièces de plain-pied de 137 m² et de 1 286 m² de terrain. Elle est composée de quatre chambres, d’une cuisine et de deux salles de bains.La maison est neuve.Des écoles de tous niveaux (de la maternelle au lycée) sont implantées à moins de 10 minutes en voiture, tout comme deux crèches à moins de 10 minutes à pied. Côté transports en commun, on trouve deux gares (Romilly-la-Puthenaye et Conches-en-Ouche) à moins de 10 minutes en voiture. Il y a des tennis, une bibliothèque, un bassin de natation, des commerces, des boulangeries, quatre supermarchés, deux bureaux de poste et quatre boucheries-charcuteries à quelques minutes du bien. Ne manquez pas le marché Place des Halles tous les dimanches matin.Elle est proposée à l’achat pour 268 000 €.Contactez notre agence (GRZESKOWIAK Benjamin : (Numéro supprimé)) pour tout renseignement sur cette maison. Concrétisez vos projets immobiliers avec Les Maisons Extraco Gravigny.
Collandres-Quincarnon
TERRAIN ET MAISONMaison de 4 pièces (120 m²) à vendre à Collandres-QuincarnonPROCHE D’ÉVREUX – MAISON 4 PIÈCES NEUVEEn vente : à deux pas d’Évreux, votre agence Les Maisons Extraco Gravigny est ravie de vous présenter à Collandres-Quincarnon (27190), cette maison de 4 pièces de plain-pied de 120 m² et de 1 286 m² de terrain. Son intérieur est composé de trois chambres, d’une cuisine et de deux salles de bains.Cette maison est neuve.Il y a des établissements scolaires (de la maternelle au lycée) à moins de 10 minutes en voiture, tout comme deux structures d’accueil pour les tout-petits à moins de 10 minutes à pied. Côté transports, on trouve les gares Romilly-la-Puthenaye et Conches-en-Ouche à moins de 10 minutes en voiture. Il y a des tennis, une bibliothèque, un bassin de natation, des commerces, des boulangeries, quatre supermarchés, trois épiceries et quatre boucheries-charcuteries à quelques minutes. Ne manquez pas le marché Place des Halles tous les dimanches matin.Elle est à vendre pour la somme de 278 000 €.Prenez contact avec notre constructeur (Benjamin GRZESKOWIAK : (Numéro supprimé)) pour tout renseignement sur la maison.
Collandres-Quincarnon
TERRAIN ET MAISONCollandres-Quincarnon : maison F5 (147 m²) en ventePROCHE D’ÉVREUX – MAISON 5 PIÈCES NEUVEÀ 21 km d’Évreux, nous sommes ravis de vous présenter cette maison de 5 pièces de 147 m² à Collandres-Quincarnon (27190). Son intérieur comporte quatre chambres, une cuisine et une salle de bains.Le terrain de cette maison s’étend sur 1 286 m².Il s’agit d’une maison de 2 niveaux. Elle est neuve.Des écoles de tous niveaux (de la maternelle au lycée) sont implantées à moins de 10 minutes en voiture, tout comme deux crèches à moins de 10 minutes à pied. Niveau transports, on trouve deux gares (Romilly-la-Puthenaye et Conches-en-Ouche) à moins de 10 minutes en voiture. Il y a des tennis, une bibliothèque, un bassin de natation, des commerces, des boulangeries, quatre supermarchés, une supérette et trois épiceries à quelques minutes de la maison. Ne manquez pas le marché Place des Halles chaque dimanche matin.Elle est à vendre pour la somme de 318 200 €.Contactez notre agence (GRZESKOWIAK Benjamin : (Numéro supprimé)) pour obtenir de plus amples renseignements sur le bien, sur les modalités de vente ou sur les démarches à suivre. Les Maisons Extraco Gravigny est là pour vous accompagner dans tous vos projets immobiliers.
L’actualité immobilière à Barquet
27/11/2023
02/11/2023
30/10/2023
20/10/2023
16/10/2023
16/10/2023