Maison à construire à Beuzeville (27210)
Images
Description
VENTE : maison T5 (76 m²) à Beuzeville
PROCHE DU HAVRE - MAISON 5 PIÈCES NEUVE
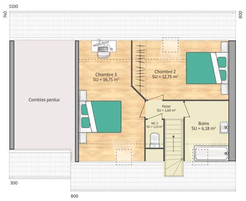
À 11 km de la Manche et à 23 km du Havre, nous sommes heureux de vous proposer cette maison de 5 pièces de 76 m² en vente à Beuzeville (27210). Elle se divise en trois chambres, une cuisine et une salle de bains.
Le terrain du bien est de 605 m².
Cette maison possède 2 niveaux. Elle est neuve.
Trois établissements scolaires sont implantés à moins de 10 minutes à pied,, parmi lesquels le Collège Jacques Brel et l'École Élémentaire Pierre Mendès-France, tout comme une structure d'accueil pour les enfants en bas âge. Les autoroutes A13 et A29 sont accessibles à moins de 9 km. Il y a un tennis, des boulangeries, des commerces, deux supermarchés, quatre boucheries-charcuteries et un bureau de poste dans les environs.
Son prix de vente est de 216 973 €.
Contactez notre agence (LEMONNIER Aurélien : (Numéro supprimé)) pour plus d'informations sur cette maison ou sur les démarches à suivre.
Logement susceptibles de vous intéresser
Nous vous proposons de découvrir aussi cette sélection de logements situés à moins de 10km de Beuzeville et qui seraient susceptibles de vous intéresser.
Quetteville
TERRAINProche Quetteville : terrain de 800 m² à vendreIDÉALEMENT SITUÉ – VUE DÉGAGÉEProche Quetteville (14130), grand terrain. Réalisez-y la maison de vos rêves. Il profite d’une vue dégagée. Il y a l’École Élémentaire Jean Macé à moins de 10 minutes à pied. Les autoroutes A13, A29 et A132 sont accessibles à moins de 10 km.Son prix de vente est de 49 900 €. Contactez Angélique CUVILLIERS (tél : (Numéro supprimé)) pour toute information sur ce terrain. EXTRACO Construction Rénovation Pont-l’Évêque vous accompagne à toutes les étapes de votre projet et dans toutes vos démarches.
Quetteville
TERRAIN ET MAISONOSSATURE BOIS Maison de 4 pièces (83 m²) à vendre à QuettevilleIDÉALEMENT SITUÉE – MAISON 4 PIÈCES NEUVEÀ vendre : idéalement située dans Quetteville (14130), notre agence EXTRACO Construction Rénovation Pont-l’Évêque est ravie de vous présenter cette maison de 4 pièces de plain-pied de 83 m² et de 800 m² de terrain.Son intérieur est composé de trois chambres, d’une cuisine et d’une salle de bains. La maison est neuve.La maison est située dans un quartier attractif. L’École Élémentaire Jean Macé est implantée à moins de 10 minutes à pied. Les autoroutes A13, A29 et A132 sont accessibles à moins de 10 km.Elle est proposée à l’achat pour 214 900 €.Contactez Angélique CUVILLIERS (tél : (Numéro supprimé)) pour plus d’informations sur la maison ou sur les modalités de vente.
Quetteville
TERRAIN ET MAISONVENTE d’une maison de 5 pièces (105 m²) proche QuettevilleIDÉALEMENT SITUÉE – MAISON 5 PIÈCES NEUVEEn vente : idéalement située proche Quetteville (14130), ayez le coup de coeur pour cette maison de 5 pièces de 105 m² et de 800 m² de terrain.Cette maison compte 2 niveaux. Elle compte quatre chambres, une cuisine et deux salles de bains. Cette maison est neuve.Cette maison se situe dans un secteur recherché. Il y a l’École Élémentaire Jean Macé à moins de 10 minutes à pied. Les autoroutes A13, A29 et A132 sont accessibles à moins de 10 km.Elle est proposée à l’achat pour 224 800 €.Contactez Angélique CUVILLIERS ((Numéro supprimé)) pour toute information sur le bien.EXTRACO Construction Rénovation Pont-l’Évêque est là pour vous accompagner dans toutes vos démarches.
Quetteville
TERRAIN ET MAISONVENTE d’une maison F5 (100 m²) à QuettevilleIDÉALEMENT SITUÉE – MAISON 5 PIÈCES NEUVEA vendre idéalement située proche Quetteville (14130), votre agence EXTRACO Construction Rénovation Pont-l’Évêque est heureuse de vous proposer cette maison de 5 pièces de 100 m² et de 800 m² de terrain.Cette maison comporte 2 niveaux. Son intérieur offre quatre chambres, une cuisine et une salle de bains. La maison est neuve.Ce bien est situé dans un quartier recherché. L’École Élémentaire Jean Macé se trouve à moins de 10 minutes à pied. Les autoroutes A13, A29 et A132 sont accessibles à moins de 10 km.Il est proposé à l’achat pour 217 800 €.Prenez contact avec Angélique CUVILLIERS (tél : (Numéro supprimé)) pour toute question sur la maison. EXTRACO Construction Rénovation Pont-l’Évêque est là pour vous accompagner à toutes les étapes de l’achat.
Quetteville
TERRAIN ET MAISONVENTE : maison F5 (85 m²) proche QuettevilleIDÉALEMENT SITUÉE – MAISON 5 PIÈCES NEUVENotre agence EXTRACO Construction Rénovation Pont-l’Évêque est heureuse de vous présenter, idéalement située dans Quetteville (14130), cette maison de 5 pièces de 85 m² et de 800 m² de terrain.C’est une maison de 2 niveaux. Elle propose quatre chambres, une cuisine et deux salles de bains. La maison est neuve.Cette maison se trouve dans un secteur convoité. Il y a l’École Élémentaire Jean Macé à moins de 10 minutes à pied. Les autoroutes A13, A29 et A132 sont accessibles à moins de 10 km.Elle est à vendre pour la somme de 198 600 €.Prenez contact avec notre constructeur (Angélique CUVILLIERS : (Numéro supprimé)) pour toute question sur la propriété ou sur les modalités de vente.
Quetteville
TERRAIN ET MAISONVENTE d’une maison de 4 pièces (88 m²) à QuettevilleIDÉALEMENT SITUÉE – MAISON 4 PIÈCES NEUVEIdéalement située dans Quetteville (14130), EXTRACO Construction Rénovation Pont-l’Évêque vous propose cette maison de 4 pièces de 88 m² et de 800 m² de terrain. Son intérieur inclut trois chambres, une cuisine et une salle de bains.Cette maison compte 2 niveaux. Elle est neuve.Cette maison se situe dans un secteur attractif. On trouve l’École Élémentaire Jean Macé à moins de 10 minutes à pied. Les autoroutes A13, A29 et A132 sont accessibles à moins de 10 km.Elle est proposée à l’achat pour 203 600 €.Prenez contact avec notre agence (CUVILLIERS Angélique : (Numéro supprimé)) pour obtenir de plus amples informations sur le bien ou sur les modalités de vente. EXTRACO Construction Rénovation Pont-l’Évêque est là pour vous accompagner dans tous vos projets immobiliers.
Gonneville-sur-Honfleur
TERRAINVENTE : terrain de 579 m² à Gonneville-sur-HonfleurIDÉALEMENT SITUÉ – PROCHE DU HAVREEn vente à 5 km de la Manche et à 15 km du Havre à Gonneville-sur-Honfleur (14600), grand terrain. Réalisez-y votre résidence principale ou secondaire. Il se situe dans un secteur recherché. Une école primaire y est implantée. On trouve un accès à l’autoroute A29 à 1 km.Il est à vendre pour la somme de 124 000 €. N’hésitez pas à prendre contact avec notre agence (RODRIGUEZ Alexandre : (Numéro supprimé)) pour obtenir de plus amples informations sur ce terrain, sur les modalités de vente ou sur les démarches à suivre.
Gonneville-sur-Honfleur
TERRAIN ET MAISONVENTE d’une maison de 4 pièces (50 m²) à Gonneville-sur-HonfleurIDÉALEMENT SITUÉE – MAISON 4 PIÈCES NEUVEEn vente à 5 km de la Manche et à deux pas du Havre, Maisons France Confort Deauville vous présente, idéalement située dans Gonneville-sur-Honfleur (14600), cette maison de 4 pièces de plain-pied de 50 m² et de 579 m² de terrain. Elle propose deux chambres, une cuisine et une salle de bains.Cette maison est neuve.Cette maison se situe dans un quartier attractif. On y trouve une école primaire. Il y a un accès à l’autoroute A29 à 1 km.Son prix de vente est de 244 500 €.Prenez contact avec notre agence (Alexandre RODRIGUEZ : (Numéro supprimé)) pour toute question sur la maison ou sur les modalités de vente.
Gonneville-sur-Honfleur
TERRAIN ET MAISONMaison F6 (91 m²) à vendre à Gonneville-sur-HonfleurIDÉALEMENT SITUÉE – MAISON 6 PIÈCES NEUVEEn vente : à 5 km de la Manche et à 15 km du Havre, laissez vous charmer par, idéalement située dans Gonneville-sur-Honfleur (14600), cette maison de 6 pièces de 91 m² et de 579 m² de terrain.C’est une maison de 2 niveaux. Elle inclut quatre chambres, une cuisine et une salle de bains. Cette maison est neuve.La maison se trouve dans un secteur convoité. On y trouve une école primaire. Il y a un accès à l’autoroute A29 à 1 km.Elle est à vendre pour la somme de 303 500 €.Contactez notre agence (Alexandre RODRIGUEZ : (Numéro supprimé)) pour tout renseignement sur la maison ou sur les démarches à suivre.
L’actualité immobilière à Beuzeville
27/11/2023
02/11/2023
30/10/2023
20/10/2023
16/10/2023
16/10/2023