Maison à construire à Bosroumois (27670)
Images
Description
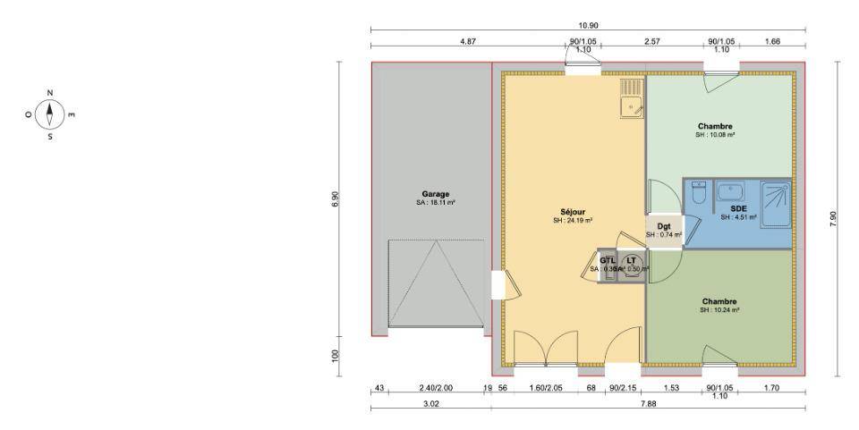
VENTE d'une maison F4 (50 m²) à Bosroumois
EMPLACEMENT PRIVILÉGIÉ - MAISON 4 PIÈCES NEUVE
En vente : à deux pas de Rouen, Maisons Balency Boos vous propose cette maison de 4 pièces de plain-pied de 50 m² et de 500 m² de terrain bénéficiant d'un emplacement privilégié dans Bosroumois (27670). Elle dispose de deux chambres, d'une cuisine et d'une salle de bains.
La maison est neuve.
La maison se trouve dans un secteur prisé. L'École Élémentaire René Bellanger et l'École Maternelle le Petit Prince sont implantées à moins de 10 minutes à pied. Côté transports en commun, il y a deux gares (Elbeuf-Saint-Aubin et Bourgtheroulde-Thuit-Hébert) à moins de 10 minutes en voiture. Les autoroutes A13 et A139 et la nationale N138 sont accessibles à moins de 10 km. On trouve un tennis, une bibliothèque, deux commerces, une boulangerie, une boucherie-charcuterie, une supérette et un bureau de poste à proximité du bien.
Elle est à vendre pour la somme de 170 000 €.
Contactez Dany LEOVANT (tél : (Numéro supprimé)) pour plus de renseignements sur la maison, sur les modalités de vente ou sur les démarches à suivre.
Annonce proposée par un Agent Commercial Partenaire.
Logement susceptibles de vous intéresser
Nous vous proposons de découvrir aussi cette sélection de logements situés à moins de 10km de Bosroumois et qui seraient susceptibles de vous intéresser.
Saint-Pierre-lès-Elbeuf
TERRAINAccolé à la commune de SAINT PIERRE LES ELBEUF, sur la commune de MARTOT, dans un quartier résidentiel, terrain à bâtir prêt à accueillir votre future maison individuelle
Saint-Pierre-lès-Elbeuf
TERRAIN ET MAISONVENTE d’une maison de 4 pièces (71 m²) accolée à Saint-Pierre-lès-ElbeufPROCHE DE ROUEN – MAISON 4 PIÈCES NEUVEEn vente : située à quelques kilomètres de Rouen, nous sommes ravis de vous proposer accolée à Saint-Pierre-lès-Elbeuf (76320), cette maison de 4 pièces de plain-pied de 71 m² et de 605 m² de terrain. Conçue de plain-pied, elle compte trois chambres, une cuisine et une salle de bains.Cette maison est neuve.Le Collège Jacques-Emile Blanche et le Groupe Scolaire Monod-Camus sont implantés à moins de 10 minutes à pied. Niveau transports, il y a quatre gares à moins de 10 minutes en voiture. Les autoroutes A13 et A139 et la nationale N138 sont accessibles à moins de 8 km. On trouve une bibliothèque, des commerces, quatre supermarchés, deux boulangeries, un bureau de poste et une boucherie-charcuterie à quelques minutes de la maison.Elle est à vendre pour la somme de 207 300 €.N’hésitez pas à prendre contact avec notre agence (MORIN Peter : (Numéro supprimé)) pour tout renseignement sur la maison. Faites de vos projets immobiliers une réalité avec Les Maisons Extraco Pont-de-l’Arche.
Saint-Pierre-lès-Elbeuf
TERRAIN ET MAISONMaison T5 (92 m²) en vente accolée à Saint-Pierre-lès-ElbeufPROCHE DE ROUEN – MAISON 5 PIÈCES NEUVEÀ vendre : à deux pas de Rouen, accolée à Saint-Pierre-lès-Elbeuf (76320), nous vous proposons cette maison de 5 pièces de plain-pied de 92 m² et de 605 m² de terrain.Conçue de plain-pied, elle inclut quatre chambres, une cuisine et une salle de bains. Cette maison est neuve.Il y a le Collège Jacques-Emile Blanche et le Groupe Scolaire Monod-Camus à moins de 10 minutes à pied. Niveau transports, on trouve quatre gares à moins de 10 minutes en voiture. Les autoroutes A13 et A139 et la nationale N138 sont accessibles à moins de 8 km. Il y a une bibliothèque, des commerces, quatre supermarchés, deux boulangeries, une boucherie-charcuterie et un bureau de poste à quelques minutes du logement.Elle est à vendre pour la somme de 241 300 €.Contactez notre agence (Peter MORIN : (Numéro supprimé)) pour tout renseignement sur la maison ou sur les modalités de vente. Les Maisons Extraco Pont-de-l’Arche vous accompagne à toutes les étapes de votre projet et dans tous vos projets immobiliers.
Saint-Pierre-lès-Elbeuf
TERRAIN ET MAISONVENTE : maison de 5 pièces (114 m²) accolée à Saint-Pierre-lès-ElbeufPROCHE DE ROUEN – MAISON 5 PIÈCES NEUVEÀ deux pas de Rouen, ayez le coup de coeur pour à vendre accolée à Saint-Pierre-lès-Elbeuf (76320), cette maison de 5 pièces de plain-pied de 114 m² et de 605 m² de terrain.Conçue de plain-pied, elle est composée de quatre chambres, d’une cuisine et d’une salle de bains. Cette maison est neuve.Le Collège Jacques-Emile Blanche et le Groupe Scolaire Monod-Camus se trouvent à moins de 10 minutes à pied. Côté transports en commun, il y a quatre gares à moins de 10 minutes en voiture. Les autoroutes A13 et A139 et la nationale N138 sont accessibles à moins de 8 km. On trouve une bibliothèque, des commerces, quatre supermarchés, deux boulangeries, un bureau de poste et une boucherie-charcuterie à proximité du logement.Son prix de vente est de 248 800 €.N’hésitez pas à prendre contact avec notre agence (MORIN Peter : (Numéro supprimé)) pour toute question sur la maison.
Saint-Aubin-lès-Elbeuf
TERRAINVENTE : terrain de 903 m² à proximité de Saint-Aubin-lès-ElbeufProche de Rouen – À quelques minutes de Saint-Aubin-lès-Elbeuf (76410) : terrain de 903 m².À proximité : gare (Elbeuf-Saint-Aubin), établissements scolaires, crèche, bibliothèque, boulangeries, commerces, boucheries-charcuteries et bureau de poste. Autoroutes A13 et A139 et nationale N138 accessibles à 6 km.Son prix de vente est de 90 000 €. Contactez notre agence (THOMAS Julien : (Numéro supprimé)) pour toute question sur le terrain. Les Maisons Extraco Pont-de-l’Arche est là pour vous accompagner dans tous vos projets immobiliers.
La Saussaye
TERRAINTerrain de 722 m² à vendre à proximité de La Saussaye, sur la commune de BosroumoisProche de Rouen – À Bosroumois : projetez-vous sur ce terrain en vente de 722 m².Proche gare (Elbeuf-Saint-Aubin), établissements scolaires, crèche, boulangeries et boucherie-charcuterie. Autoroute A13 et nationale N138 accessibles à 10 km.Il est proposé à l’achat pour 90 000 €. Contactez Julien THOMAS (tél : (Numéro supprimé)) pour obtenir de plus amples renseignements sur le terrain, sur les démarches à suivre ou sur les modalités de vente. Faites de vos projets immobiliers une réalité avec Les Maisons Extraco Pont-de-l’Arche.
La Saussaye
TERRAINVENTE : terrain de 903 m² à La SaussayeIDÉALEMENT SITUÉ – VUE DÉGAGÉEÀ La Saussaye (27370) à 22 km de Rouen, venez découvrir ce terrain de 903 m². Il profite d’une vue dégagée. Il se situe dans un secteur attractif. L’École Élémentaire Fleming, l’École Maternelle Louis Pasteur et le Collège André Maurois se trouvent à moins de 10 minutes à pied, tout comme une crèche. Niveau transports, il y a la gare Elbeuf-Saint-Aubin à moins de 10 minutes en voiture. L’autoroute A13 et la nationale N138 sont accessibles à moins de 10 km. On trouve deux boulangeries et une boucherie-charcuterie dans les environs.Ce terrain est à vendre pour la somme de 90 000 €. Contactez Julien THOMAS (tél : (Numéro supprimé)) pour obtenir de plus amples renseignements sur le terrain, sur les modalités de vente et sur les démarches à suivre. Faites de vos projets immobiliers une réalité avec Les Maisons Extraco Pont-de-l’Arche.
Le Thuit de l'Oison
TERRAINTerrain de 722 m² en vente à proximité du Thuit-SignolProche de Rouen – Concrétisez votre projet sur ce terrain à vendre de 722 m² à quelques minutes du Thuit-Signol (27370).Proche gares (Elbeuf-Saint-Aubin et Bourgtheroulde-Thuit-Hébert), écoles, commerces, boulangerie, épicerie, bureau de poste et boucherie-charcuterie. Accès autoroute A13 à 9 km.Il est à vendre pour la somme de 90 000 €. N’hésitez pas à prendre contact avec Julien THOMAS ((Numéro supprimé)) pour obtenir de plus amples informations sur le terrain.
Saint-Aubin-lès-Elbeuf
TERRAIN ET MAISONVENTE d’une maison T4 (75 m²) à proximité de Saint-Aubin-lès-ElbeufProche de Rouen – À quelques minutes de Saint-Aubin-lès-Elbeuf (76410), maison neuve à vendre de 4 pièces, 75 m² sur 903 m² de terrain. Son intérieur se divise en trois chambres, une cuisine et une salle de bains.À dix minutes : gare (Elbeuf-Saint-Aubin), établissements scolaires, crèche, bibliothèque, boulangeries, commerces, bureau de poste et boucheries-charcuteries. Autoroutes A13 et A139 et nationale N138 accessibles à 6 km.Cette maison de 4 pièces est à vendre pour la somme de 229 000 €.N’hésitez pas à prendre contact avec notre agence (Julien THOMAS : (Numéro supprimé)) pour toute information sur la maison ou sur les modalités de vente.
L’actualité immobilière à Bosroumois
27/11/2023
02/11/2023
30/10/2023
20/10/2023
16/10/2023
16/10/2023