Maison à construire à Bosroumois (27670)
Images
Description
Bosroumois : maison de 5 pièces (90 m²) en vente
EMPLACEMENT PRIVILÉGIÉ - MAISON 5 PIÈCES NEUVE
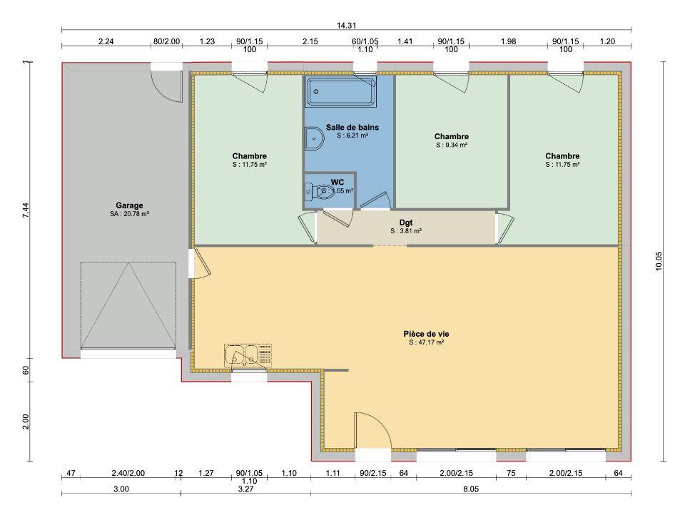
À deux pas de Rouen, à vendre bénéficiant d'un emplacement privilégié dans Bosroumois (27670), nous vous proposons cette maison de 5 pièces de plain-pied de 90 m².
Conçue de plain-pied, elle propose trois chambres, une cuisine et une salle de bains. La maison est neuve.
Le terrain du bien s'étend sur 500 m².
Cette maison est située dans un secteur prisé. L'École Élémentaire René Bellanger et l'École Maternelle le Petit Prince sont implantées à moins de 10 minutes à pied. Niveau transports en commun, on trouve deux gares (Elbeuf-Saint-Aubin et Bourgtheroulde-Thuit-Hébert) à moins de 10 minutes en voiture. Les autoroutes A13 et A139 et la nationale N138 sont accessibles à moins de 10 km. Il y a un tennis, une bibliothèque, deux commerces, une boulangerie, une supérette, un bureau de poste et une boucherie-charcuterie dans les environs.
Elle est proposée à l'achat pour 220 000 €.
Contactez notre agence (LEOVANT Dany : (Numéro supprimé)) pour toute information sur la propriété, sur les modalités de vente ou sur les démarches à suivre.
Annonce proposée par un Agent Commercial Partenaire.
Logement susceptibles de vous intéresser
Nous vous proposons de découvrir aussi cette sélection de logements situés à moins de 10km de Bosroumois et qui seraient susceptibles de vous intéresser.
Saint-Pierre-lès-Elbeuf
TERRAINAccolé à la commune de SAINT PIERRE LES ELBEUF, sur la commune de MARTOT, dans un quartier résidentiel, terrain à bâtir prêt à accueillir votre future maison individuelle
Saint-Pierre-lès-Elbeuf
TERRAIN ET MAISONVENTE d’une maison de 4 pièces (71 m²) accolée à Saint-Pierre-lès-ElbeufPROCHE DE ROUEN – MAISON 4 PIÈCES NEUVEEn vente : située à quelques kilomètres de Rouen, nous sommes ravis de vous proposer accolée à Saint-Pierre-lès-Elbeuf (76320), cette maison de 4 pièces de plain-pied de 71 m² et de 605 m² de terrain. Conçue de plain-pied, elle compte trois chambres, une cuisine et une salle de bains.Cette maison est neuve.Le Collège Jacques-Emile Blanche et le Groupe Scolaire Monod-Camus sont implantés à moins de 10 minutes à pied. Niveau transports, il y a quatre gares à moins de 10 minutes en voiture. Les autoroutes A13 et A139 et la nationale N138 sont accessibles à moins de 8 km. On trouve une bibliothèque, des commerces, quatre supermarchés, deux boulangeries, un bureau de poste et une boucherie-charcuterie à quelques minutes de la maison.Elle est à vendre pour la somme de 207 300 €.N’hésitez pas à prendre contact avec notre agence (MORIN Peter : (Numéro supprimé)) pour tout renseignement sur la maison. Faites de vos projets immobiliers une réalité avec Les Maisons Extraco Pont-de-l’Arche.
Saint-Pierre-lès-Elbeuf
TERRAIN ET MAISONMaison T5 (92 m²) en vente accolée à Saint-Pierre-lès-ElbeufPROCHE DE ROUEN – MAISON 5 PIÈCES NEUVEÀ vendre : à deux pas de Rouen, accolée à Saint-Pierre-lès-Elbeuf (76320), nous vous proposons cette maison de 5 pièces de plain-pied de 92 m² et de 605 m² de terrain.Conçue de plain-pied, elle inclut quatre chambres, une cuisine et une salle de bains. Cette maison est neuve.Il y a le Collège Jacques-Emile Blanche et le Groupe Scolaire Monod-Camus à moins de 10 minutes à pied. Niveau transports, on trouve quatre gares à moins de 10 minutes en voiture. Les autoroutes A13 et A139 et la nationale N138 sont accessibles à moins de 8 km. Il y a une bibliothèque, des commerces, quatre supermarchés, deux boulangeries, une boucherie-charcuterie et un bureau de poste à quelques minutes du logement.Elle est à vendre pour la somme de 241 300 €.Contactez notre agence (Peter MORIN : (Numéro supprimé)) pour tout renseignement sur la maison ou sur les modalités de vente. Les Maisons Extraco Pont-de-l’Arche vous accompagne à toutes les étapes de votre projet et dans tous vos projets immobiliers.
Saint-Pierre-lès-Elbeuf
TERRAIN ET MAISONVENTE : maison de 5 pièces (114 m²) accolée à Saint-Pierre-lès-ElbeufPROCHE DE ROUEN – MAISON 5 PIÈCES NEUVEÀ deux pas de Rouen, ayez le coup de coeur pour à vendre accolée à Saint-Pierre-lès-Elbeuf (76320), cette maison de 5 pièces de plain-pied de 114 m² et de 605 m² de terrain.Conçue de plain-pied, elle est composée de quatre chambres, d’une cuisine et d’une salle de bains. Cette maison est neuve.Le Collège Jacques-Emile Blanche et le Groupe Scolaire Monod-Camus se trouvent à moins de 10 minutes à pied. Côté transports en commun, il y a quatre gares à moins de 10 minutes en voiture. Les autoroutes A13 et A139 et la nationale N138 sont accessibles à moins de 8 km. On trouve une bibliothèque, des commerces, quatre supermarchés, deux boulangeries, un bureau de poste et une boucherie-charcuterie à proximité du logement.Son prix de vente est de 248 800 €.N’hésitez pas à prendre contact avec notre agence (MORIN Peter : (Numéro supprimé)) pour toute question sur la maison.
Saint-Aubin-lès-Elbeuf
TERRAINVENTE : terrain de 903 m² à proximité de Saint-Aubin-lès-ElbeufProche de Rouen – À quelques minutes de Saint-Aubin-lès-Elbeuf (76410) : terrain de 903 m².À proximité : gare (Elbeuf-Saint-Aubin), établissements scolaires, crèche, bibliothèque, boulangeries, commerces, boucheries-charcuteries et bureau de poste. Autoroutes A13 et A139 et nationale N138 accessibles à 6 km.Son prix de vente est de 90 000 €. Contactez notre agence (THOMAS Julien : (Numéro supprimé)) pour toute question sur le terrain. Les Maisons Extraco Pont-de-l’Arche est là pour vous accompagner dans tous vos projets immobiliers.
La Saussaye
TERRAINTerrain de 722 m² à vendre à proximité de La Saussaye, sur la commune de BosroumoisProche de Rouen – À Bosroumois : projetez-vous sur ce terrain en vente de 722 m².Proche gare (Elbeuf-Saint-Aubin), établissements scolaires, crèche, boulangeries et boucherie-charcuterie. Autoroute A13 et nationale N138 accessibles à 10 km.Il est proposé à l’achat pour 90 000 €. Contactez Julien THOMAS (tél : (Numéro supprimé)) pour obtenir de plus amples renseignements sur le terrain, sur les démarches à suivre ou sur les modalités de vente. Faites de vos projets immobiliers une réalité avec Les Maisons Extraco Pont-de-l’Arche.
La Saussaye
TERRAINVENTE : terrain de 903 m² à La SaussayeIDÉALEMENT SITUÉ – VUE DÉGAGÉEÀ La Saussaye (27370) à 22 km de Rouen, venez découvrir ce terrain de 903 m². Il profite d’une vue dégagée. Il se situe dans un secteur attractif. L’École Élémentaire Fleming, l’École Maternelle Louis Pasteur et le Collège André Maurois se trouvent à moins de 10 minutes à pied, tout comme une crèche. Niveau transports, il y a la gare Elbeuf-Saint-Aubin à moins de 10 minutes en voiture. L’autoroute A13 et la nationale N138 sont accessibles à moins de 10 km. On trouve deux boulangeries et une boucherie-charcuterie dans les environs.Ce terrain est à vendre pour la somme de 90 000 €. Contactez Julien THOMAS (tél : (Numéro supprimé)) pour obtenir de plus amples renseignements sur le terrain, sur les modalités de vente et sur les démarches à suivre. Faites de vos projets immobiliers une réalité avec Les Maisons Extraco Pont-de-l’Arche.
Le Thuit de l'Oison
TERRAINTerrain de 722 m² en vente à proximité du Thuit-SignolProche de Rouen – Concrétisez votre projet sur ce terrain à vendre de 722 m² à quelques minutes du Thuit-Signol (27370).Proche gares (Elbeuf-Saint-Aubin et Bourgtheroulde-Thuit-Hébert), écoles, commerces, boulangerie, épicerie, bureau de poste et boucherie-charcuterie. Accès autoroute A13 à 9 km.Il est à vendre pour la somme de 90 000 €. N’hésitez pas à prendre contact avec Julien THOMAS ((Numéro supprimé)) pour obtenir de plus amples informations sur le terrain.
Saint-Aubin-lès-Elbeuf
TERRAIN ET MAISONVENTE d’une maison T4 (75 m²) à proximité de Saint-Aubin-lès-ElbeufProche de Rouen – À quelques minutes de Saint-Aubin-lès-Elbeuf (76410), maison neuve à vendre de 4 pièces, 75 m² sur 903 m² de terrain. Son intérieur se divise en trois chambres, une cuisine et une salle de bains.À dix minutes : gare (Elbeuf-Saint-Aubin), établissements scolaires, crèche, bibliothèque, boulangeries, commerces, bureau de poste et boucheries-charcuteries. Autoroutes A13 et A139 et nationale N138 accessibles à 6 km.Cette maison de 4 pièces est à vendre pour la somme de 229 000 €.N’hésitez pas à prendre contact avec notre agence (Julien THOMAS : (Numéro supprimé)) pour toute information sur la maison ou sur les modalités de vente.
L’actualité immobilière à Bosroumois
27/11/2023
02/11/2023
30/10/2023
20/10/2023
16/10/2023
16/10/2023