Maison à construire à Boulleville (27210)
Images
Description
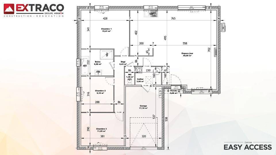
VENTE : maison F4 (98 m²) à Boulleville
IDÉALEMENT SITUÉE - MAISON 4 PIÈCES NEUVE
En vente à 8 km de la Manche et à quelques kilomètres du Havre, laissez vous charmer par, idéalement située dans Boulleville (27210), cette maison de 4 pièces de plain-pied de 98 m². Elle comporte trois chambres, une cuisine et une salle de bains.
Le terrain du bien est de 1 376 m².
La maison est neuve.
Cette maison est située dans un quartier recherché. On y trouve une école élémentaire. Les autoroutes A13 et A29 sont accessibles à moins de 10 km. Il y a un tennis et un commerce dans les environs.
Son prix de vente est de 224 990 €.
Prenez contact avec Cécilia GARCIA ((Numéro supprimé)) pour plus d'informations sur la maison. Concrétisez vos projets immobiliers avec Les Maisons Extraco Pont-Audemer.
Logement susceptibles de vous intéresser
Nous vous proposons de découvrir aussi cette sélection de logements situés à moins de 10km de Boulleville et qui seraient susceptibles de vous intéresser.
Quetteville
TERRAINProche Quetteville : terrain de 800 m² à vendreIDÉALEMENT SITUÉ – VUE DÉGAGÉEProche Quetteville (14130), grand terrain. Réalisez-y la maison de vos rêves. Il profite d’une vue dégagée. Il y a l’École Élémentaire Jean Macé à moins de 10 minutes à pied. Les autoroutes A13, A29 et A132 sont accessibles à moins de 10 km.Son prix de vente est de 49 900 €. Contactez Angélique CUVILLIERS (tél : (Numéro supprimé)) pour toute information sur ce terrain. EXTRACO Construction Rénovation Pont-l’Évêque vous accompagne à toutes les étapes de votre projet et dans toutes vos démarches.
Quetteville
TERRAIN ET MAISONOSSATURE BOIS Maison de 4 pièces (83 m²) à vendre à QuettevilleIDÉALEMENT SITUÉE – MAISON 4 PIÈCES NEUVEÀ vendre : idéalement située dans Quetteville (14130), notre agence EXTRACO Construction Rénovation Pont-l’Évêque est ravie de vous présenter cette maison de 4 pièces de plain-pied de 83 m² et de 800 m² de terrain.Son intérieur est composé de trois chambres, d’une cuisine et d’une salle de bains. La maison est neuve.La maison est située dans un quartier attractif. L’École Élémentaire Jean Macé est implantée à moins de 10 minutes à pied. Les autoroutes A13, A29 et A132 sont accessibles à moins de 10 km.Elle est proposée à l’achat pour 214 900 €.Contactez Angélique CUVILLIERS (tél : (Numéro supprimé)) pour plus d’informations sur la maison ou sur les modalités de vente.
Quetteville
TERRAIN ET MAISONVENTE d’une maison de 5 pièces (105 m²) proche QuettevilleIDÉALEMENT SITUÉE – MAISON 5 PIÈCES NEUVEEn vente : idéalement située proche Quetteville (14130), ayez le coup de coeur pour cette maison de 5 pièces de 105 m² et de 800 m² de terrain.Cette maison compte 2 niveaux. Elle compte quatre chambres, une cuisine et deux salles de bains. Cette maison est neuve.Cette maison se situe dans un secteur recherché. Il y a l’École Élémentaire Jean Macé à moins de 10 minutes à pied. Les autoroutes A13, A29 et A132 sont accessibles à moins de 10 km.Elle est proposée à l’achat pour 224 800 €.Contactez Angélique CUVILLIERS ((Numéro supprimé)) pour toute information sur le bien.EXTRACO Construction Rénovation Pont-l’Évêque est là pour vous accompagner dans toutes vos démarches.
Quetteville
TERRAIN ET MAISONVENTE d’une maison F5 (100 m²) à QuettevilleIDÉALEMENT SITUÉE – MAISON 5 PIÈCES NEUVEA vendre idéalement située proche Quetteville (14130), votre agence EXTRACO Construction Rénovation Pont-l’Évêque est heureuse de vous proposer cette maison de 5 pièces de 100 m² et de 800 m² de terrain.Cette maison comporte 2 niveaux. Son intérieur offre quatre chambres, une cuisine et une salle de bains. La maison est neuve.Ce bien est situé dans un quartier recherché. L’École Élémentaire Jean Macé se trouve à moins de 10 minutes à pied. Les autoroutes A13, A29 et A132 sont accessibles à moins de 10 km.Il est proposé à l’achat pour 217 800 €.Prenez contact avec Angélique CUVILLIERS (tél : (Numéro supprimé)) pour toute question sur la maison. EXTRACO Construction Rénovation Pont-l’Évêque est là pour vous accompagner à toutes les étapes de l’achat.
Quetteville
TERRAIN ET MAISONVENTE : maison F5 (85 m²) proche QuettevilleIDÉALEMENT SITUÉE – MAISON 5 PIÈCES NEUVENotre agence EXTRACO Construction Rénovation Pont-l’Évêque est heureuse de vous présenter, idéalement située dans Quetteville (14130), cette maison de 5 pièces de 85 m² et de 800 m² de terrain.C’est une maison de 2 niveaux. Elle propose quatre chambres, une cuisine et deux salles de bains. La maison est neuve.Cette maison se trouve dans un secteur convoité. Il y a l’École Élémentaire Jean Macé à moins de 10 minutes à pied. Les autoroutes A13, A29 et A132 sont accessibles à moins de 10 km.Elle est à vendre pour la somme de 198 600 €.Prenez contact avec notre constructeur (Angélique CUVILLIERS : (Numéro supprimé)) pour toute question sur la propriété ou sur les modalités de vente.
Quetteville
TERRAIN ET MAISONVENTE d’une maison de 4 pièces (88 m²) à QuettevilleIDÉALEMENT SITUÉE – MAISON 4 PIÈCES NEUVEIdéalement située dans Quetteville (14130), EXTRACO Construction Rénovation Pont-l’Évêque vous propose cette maison de 4 pièces de 88 m² et de 800 m² de terrain. Son intérieur inclut trois chambres, une cuisine et une salle de bains.Cette maison compte 2 niveaux. Elle est neuve.Cette maison se situe dans un secteur attractif. On trouve l’École Élémentaire Jean Macé à moins de 10 minutes à pied. Les autoroutes A13, A29 et A132 sont accessibles à moins de 10 km.Elle est proposée à l’achat pour 203 600 €.Prenez contact avec notre agence (CUVILLIERS Angélique : (Numéro supprimé)) pour obtenir de plus amples informations sur le bien ou sur les modalités de vente. EXTRACO Construction Rénovation Pont-l’Évêque est là pour vous accompagner dans tous vos projets immobiliers.
Beuzeville
TERRAINTerrain de 718 m² en vente à BeuzevilleEn vente à 11 km de la Manche et à 23 km du Havre à Beuzeville (27210), grand terrain. Il est prêt à accueillir votre projet immobilier pour toute la famille. Il bénéficie d’une exposition sud. Le terrain est proche des écoles et des commerces. On trouve trois établissements scolaires à moins de 10 minutes à pied,, comme le Collège Jacques Brel ou l’École Élémentaire Pierre Mendès-France et une structure d’accueil pour les tout-petits. Les autoroutes A13 et A29 sont accessibles à moins de 9 km. Il y a un tennis, des boulangeries, des commerces, deux supermarchés, une épicerie et une supérette à quelques minutes.Il est proposé à l’achat pour 69 500 €. Prenez contact avec notre agence (RODRIGUEZ Alexandre : (Numéro supprimé)) pour toute information sur ce terrain ou sur les modalités de vente.
Beuzeville
TERRAINBeuzeville : terrain de 619 m² en venteIDÉALEMENT SITUÉ À vendre à 11 km de la Manche et à deux pas du Havre à Beuzeville (27210), grand terrain. Il est prêt à accueillir votre projet de construction pour toute la famille. Il est orienté au sud-ouest. Dans un quartier convoité, ce terrain idéalement situé est proche des écoles et des commerces. Trois établissements scolaires sont implantés à moins de 10 minutes à pied,, parmi lesquels le Collège Jacques Brel et l’École Élémentaire Pierre Mendès-France, tout comme une structure d’accueil pour la petite enfance. Les autoroutes A13 et A29 sont accessibles à moins de 9 km. Il y a un tennis, des boulangeries, des commerces, deux supermarchés, un bureau de poste et quatre boucheries-charcuteries dans les environs.Son prix de vente est de 67 900 €. Contactez notre agence (RODRIGUEZ Alexandre : (Numéro supprimé)) pour plus de renseignements sur ce terrain ou sur les modalités de vente. Donnez vie à vos projets immobiliers avec Maisons France Confort Deauville.
Beuzeville
TERRAIN ET MAISONMaison F5 (100 m²) à vendre à BeuzevillePROCHE DU HAVRE – MAISON 5 PIÈCES NEUVEÀ 11 km de la Manche et à 23 km du Havre, nous vous présentons cette maison de 5 pièces de 100 m² et de 718 m² de terrain en vente à Beuzeville (27210). Son intérieur propose trois chambres, une cuisine et une salle de bains.Cette maison compte 2 niveaux. Elle est neuve.Trois établissements scolaires se trouvent à moins de 10 minutes à pied,, parmi lesquels le Collège Jacques Brel et l’École Élémentaire Pierre Mendès-France, tout comme une structure d’accueil pour les tout-petits. Les autoroutes A13 et A29 sont accessibles à moins de 9 km. Il y a un tennis, des boulangeries, des commerces, deux supermarchés, quatre boucheries-charcuteries et un bureau de poste à quelques minutes à peine.Elle est proposée à l’achat pour 275 364 €.Contactez notre agence (RODRIGUEZ Alexandre : (Numéro supprimé)) pour toute information sur le bien, sur les démarches à suivre ou sur les modalités de vente.
L’actualité immobilière à Boulleville
27/11/2023
02/11/2023
30/10/2023
20/10/2023
16/10/2023
16/10/2023