Maison à construire à Breteuil (27160)
Images
Description
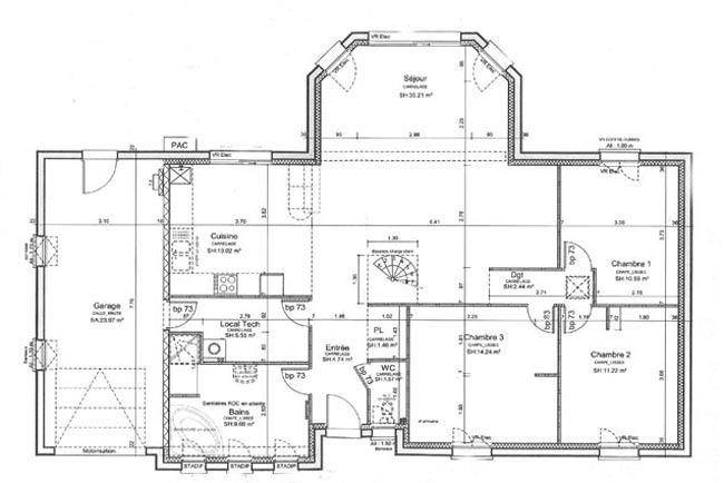
Breteuil : maison de 4 pièces (110 m²) en vente
MAISON 4 PIÈCES NEUVE - PROCHE D'ÉVREUX
À 26 km d'Évreux, notre agence Les Maisons Extraco Gravigny est heureuse de vous proposer en vente à Breteuil (27160), cette maison de 4 pièces de 110 m² et de 3 700 m² de terrain. Son intérieur comporte trois chambres, une cuisine et une salle de bains.
Cette maison compte 2 niveaux. Elle est neuve.
Il y a l'École Primaire Guy de Maupassant et le Collège Evariste Galois à moins de 10 minutes à pied et deux crèches. Les nationales N12 et N154 sont accessibles à moins de 20 km. On trouve un bassin de natation, un tennis, des commerces, quatre boulangeries, un supermarché, un bureau de poste et une supérette dans les environs. Ne manquez pas le marché Place Lafitte chaque mercredi matin.
Elle est proposée à l'achat pour 269 450 €.
Contactez Benjamin GRZESKOWIAK ((Numéro supprimé)) pour toute information sur cette maison. Les Maisons Extraco Gravigny vous accompagne dans toutes vos démarches et à toutes les étapes de votre projet.
Logement susceptibles de vous intéresser
Nous vous proposons de découvrir aussi cette sélection de logements situés à moins de 10km de Breteuil et qui seraient susceptibles de vous intéresser.
Piseux
TERRAINVENTE : terrain de 1 300 m² à PiseuxIDÉALEMENT SITUÉ – PROCHE D’ÉVREUXEn vente à deux pas d’Évreux à Piseux (27130), grand terrain. Dans un secteur recherché, le terrain idéalement situé est proche des commerces et des écoles. Il y a une école primaire dans le quartier. Côté transports, on trouve la gare Verneuil-sur-Avre à moins de 10 minutes en voiture. La nationale N12 est accessible à 6 km.Il est proposé à l’achat pour 42 000 €. Contactez Benjamin GRZESKOWIAK ((Numéro supprimé)) pour toute information sur ce terrain, sur les modalités de vente ou sur les démarches à suivre.
Piseux
TERRAIN ET MAISONPiseux : maison F5 (105 m²) en venteIDÉALEMENT SITUÉE – MAISON 5 PIÈCES NEUVEÀ deux pas d’Évreux, en vente idéalement située dans Piseux (27130), notre agence Les Maisons Extraco Gravigny est heureuse de vous présenter cette maison de 5 pièces de 105 m² et de 1 300 m² de terrain.C’est une maison de 2 niveaux. Son intérieur offre quatre chambres, une cuisine et deux salles de bains. La maison est neuve.La maison est située dans un quartier recherché. Une école primaire y est implantée. Côté transports, il y a la gare Verneuil-sur-Avre à moins de 10 minutes en voiture. Il y a un accès à la nationale N12 à 6 km.Son prix de vente est de 221 300 €.Contactez Benjamin GRZESKOWIAK (tél : (Numéro supprimé)) pour tout renseignement sur le bien, sur les démarches à suivre ou sur les modalités de vente.
Piseux
TERRAIN ET MAISONMaison de 4 pièces (137 m²) à vendre à PiseuxIDÉALEMENT SITUÉE – MAISON 4 PIÈCES NEUVEEn vente à deux pas d’Évreux, idéalement située dans Piseux (27130), nous sommes heureux de vous proposer cette maison de 4 pièces de plain-pied de 137 m² et de 1 300 m² de terrain. Son intérieur se divise en trois chambres, une cuisine et deux salles de bains.Cette maison est neuve.La maison se trouve dans un quartier attractif. On y trouve une école primaire. Niveau transports, il y a la gare Verneuil-sur-Avre à moins de 10 minutes en voiture. La nationale N12 est accessible à 6 km.Son prix de vente est de 290 518 €.N’hésitez pas à prendre contact avec notre agence (Benjamin GRZESKOWIAK : (Numéro supprimé)) pour obtenir de plus amples renseignements sur la propriété. Faites de vos projets immobiliers une réalité avec Les Maisons Extraco Gravigny.
Piseux
TERRAIN ET MAISONPiseux : maison de 4 pièces (93 m²) en venteIDÉALEMENT SITUÉE – MAISON 4 PIÈCES NEUVEÀ 30 km d’Évreux, nous sommes heureux de vous proposer à vendre, idéalement située dans Piseux (27130), cette maison de 4 pièces de plain-pied de 93 m² et de 1 300 m² de terrain. Conçue de plain-pied, elle se divise en trois chambres, une cuisine et une salle de bains.La maison est neuve.Cette maison se trouve dans un quartier convoité. On y trouve une école primaire. Niveau transports en commun, il y a la gare Verneuil-sur-Avre à moins de 10 minutes en voiture. Il y a un accès à la nationale N12 à 6 km.Elle est à vendre pour la somme de 201 030 €.N’hésitez pas à prendre contact avec notre agence (GRZESKOWIAK Benjamin : (Numéro supprimé)) pour obtenir de plus amples informations sur la propriété.
Verneuil d'Avre et d'Iton
TERRAINQuartier recherché, Verneuil d’Avre et d’Iton, commerces, école, gare sur place, ce terrain à bâtir de 1 458 m² bénéficie d’un emplacement en campagne. Il offre un beau potentiel pour la construction d’une maison individuelle. Terrain non viabilisé, prévoir assainissement individuel, CU positif. Ce terrain représente une opportunité dans la région. À VOIR RAPIDEMENT. Les honoraires sont à la charge du vendeur.Les informations sur les risques auxquels ce bien est exposé sont disponibles sur le site Géorisques : www. georisques. gouv. fr.Contactez Isabelle AUVRAY Entrepreneur Individuel à Responsabilité Limitée, Agent commercial OptimHome (RSAC N(Numéro supprimé) Greffe de EVREUX) (Numéro supprimé) (réf. 595096 )
Breteuil
TERRAINVENTE : terrain de 3 700 m² à BreteuilPROCHE D’ÉVREUXÀ 26 km d’Évreux à Breteuil (27160), grand terrain. Réalisez-y la maison de vos rêves. Le terrain est proche des commerces et des écoles. L’École Primaire Guy de Maupassant et le Collège Evariste Galois sont implantés à moins de 10 minutes à pied, tout comme deux crèches. Les nationales N12 et N154 sont accessibles à moins de 20 km. Il y a un bassin de natation, un tennis, des commerces, quatre boulangeries, un supermarché, une supérette et un bureau de poste à quelques minutes à peine. Le marché Place Lafitte a lieu chaque mercredi matin.Son prix de vente est de 68 000 €. Contactez Benjamin GRZESKOWIAK ((Numéro supprimé)) pour tout renseignement sur ce terrain, sur les modalités de vente ou sur les démarches à suivre.
Breteuil
TERRAIN ET MAISONBreteuil : maison F7 (164 m²) à vendrePROCHE D’ÉVREUX – MAISON 7 PIÈCES NEUVEEn vente : à quelques kilomètres d’Évreux, notre agence Les Maisons Extraco Gravigny est ravie de vous présenter cette maison de 7 pièces de 164 m² à Breteuil (27160). Elle offre quatre chambres, une cuisine et deux salles de bains.Le terrain de cette maison est de 3 700 m².C’est une maison de 2 niveaux. Elle est neuve.L’École Primaire Guy de Maupassant et le Collège Evariste Galois sont implantés à moins de 10 minutes à pied, tout comme deux structures d’accueil pour les tout-petits. Les nationales N12 et N154 sont accessibles à moins de 20 km. On trouve un bassin de natation, un tennis, des commerces, quatre boulangeries, un supermarché, une supérette et une boucherie-charcuterie à quelques minutes à peine. Le marché Place Lafitte a lieu chaque mercredi matin.Il est à vendre pour la somme de 362 872 €.Contactez notre constructeur (GRZESKOWIAK Benjamin : (Numéro supprimé)) pour plus d’informations sur la maison.
Breteuil
TERRAIN ET MAISONVENTE : maison de 6 pièces (120 m²) à BreteuilMAISON 6 PIÈCES NEUVE – PROCHE D’ÉVREUXÀ deux pas d’Évreux, à vendre à Breteuil (27160), nous sommes ravis de vous proposer cette maison de 6 pièces de 120 m² et de 3 700 m² de terrain.Cette maison compte 2 niveaux. Son intérieur inclut quatre chambres, une cuisine et deux salles de bains. Cette maison est neuve.On trouve l’École Primaire Guy de Maupassant et le Collège Evariste Galois à moins de 10 minutes à pied et deux structures d’accueil pour la petite enfance. Les nationales N12 et N154 sont accessibles à moins de 20 km. Il y a un bassin de natation, un tennis, des commerces, quatre boulangeries, un supermarché, une boucherie-charcuterie et un bureau de poste à proximité. Le marché Place Lafitte a lieu chaque mercredi matin.Elle est proposée à l’achat pour 285 000 €.N’hésitez pas à prendre contact avec notre agence (GRZESKOWIAK Benjamin : (Numéro supprimé)) pour toute question sur la maison, sur les démarches à suivre ou sur les modalités de vente.
Breteuil
TERRAIN ET MAISONBreteuil : maison de 4 pièces (110 m²) en venteMAISON 4 PIÈCES NEUVE – PROCHE D’ÉVREUXÀ 26 km d’Évreux, notre agence Les Maisons Extraco Gravigny est heureuse de vous proposer en vente à Breteuil (27160), cette maison de 4 pièces de 110 m² et de 3 700 m² de terrain. Son intérieur comporte trois chambres, une cuisine et une salle de bains.Cette maison compte 2 niveaux. Elle est neuve.Il y a l’École Primaire Guy de Maupassant et le Collège Evariste Galois à moins de 10 minutes à pied et deux crèches. Les nationales N12 et N154 sont accessibles à moins de 20 km. On trouve un bassin de natation, un tennis, des commerces, quatre boulangeries, un supermarché, un bureau de poste et une supérette dans les environs. Ne manquez pas le marché Place Lafitte chaque mercredi matin.Elle est proposée à l’achat pour 269 450 €.Contactez Benjamin GRZESKOWIAK ((Numéro supprimé)) pour toute information sur cette maison. Les Maisons Extraco Gravigny vous accompagne dans toutes vos démarches et à toutes les étapes de votre projet.
L’actualité immobilière à Breteuil
27/11/2023
02/11/2023
30/10/2023
20/10/2023
16/10/2023
16/10/2023