Maison à construire à Brionne (27800)
Images
Description
Maison de 6 pièces (89 m²) en vente à Brionne
EMPLACEMENT PRIVILÉGIÉ - MAISON 6 PIÈCES NEUVE
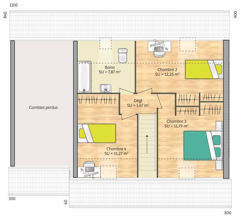
En vente : située à 42 km de la Manche, venez découvrir cette maison de 6 pièces de 89 m² bénéficiant d'un emplacement d'exception dans Brionne (27800). Son intérieur dispose de quatre chambres, d'une cuisine et d'une salle de bains.
Le terrain de la maison s'étend sur 815 m².
Cette maison compte 2 niveaux. Elle est neuve.
Cette propriété se trouve dans un quartier attractif. Il y a l'École Maternelle Georges Brassens, l'École Primaire Privée de la Providence, l'École Élémentaire Louis Pergaud, le Collège Pierre Brossolette et le Lycée Professionnel Augustin Boismard-Lycée des Métiers d'Art, Bois, Tissu, Cuir à moins de 10 minutes à pied. Côté transports, on trouve la gare Brionne à proximité. L'autoroute A28 est accessible à 7 km. Il y a un tennis, une bibliothèque, des commerces, des boulangeries, deux supermarchés, deux boucheries-charcuteries et un bureau de poste dans les environs. Enfin, le marché Place Fremont anime le quartier.
Son prix de vente est de 199 400 €.
Contactez notre agence (LEOVANT Aurélien : (Numéro supprimé)) pour toute information sur la maison.
Annonce proposée par un Agent Commercial Partenaire.
Logement susceptibles de vous intéresser
Nous vous proposons de découvrir aussi cette sélection de logements situés à moins de 10km de Brionne et qui seraient susceptibles de vous intéresser.
Saint-Benoît-des-Ombres
TERRAINVENTE d’un terrain de 1 700 m² à Saint-Benoît-des-OmbresVUE SUR PARCÀ Saint-Benoît-des-Ombres (27450) à vendre à 32 km de la Manche, découvrez ce terrain de 1 700 m². Il donne sur un parc. Il y a des établissements scolaires du primaire et du secondaire à moins de 10 minutes en voiture, tout comme une structure d’accueil pour les tout-petits à moins de 10 minutes à pied. Niveau transports en commun, on trouve deux gares (Glos-Montfort et Brionne) à moins de 10 minutes en voiture. Il y a des tennis, un bassin de natation, une bibliothèque, des commerces, des boulangeries, quatre supermarchés, trois bureaux de poste et des épiceries dans les environs. Enfin, le marché Place Fremont anime les environs.Son prix de vente est de 32 000 €. Contactez notre agence (Juliette PETIT : (Numéro supprimé)) pour obtenir de plus amples informations sur ce terrain. Concrétisez vos projets immobiliers avec Les Maisons Extraco Pont-Audemer.
Saint-Benoît-des-Ombres
TERRAIN ET MAISONVENTE : maison de 4 pièces (71 m²) à Saint-Benoît-des-OmbresMAISON 4 PIÈCES NEUVE – VUE SUR PARCÀ vendre : à 32 km de la Manche, à Saint-Benoît-des-Ombres (27450), votre agence Les Maisons Extraco Pont-Audemer est ravie de vous proposer cette maison de 4 pièces de 71 m² avec vue sur parc.Cette maison de plain-pied est de plain-pied. Son intérieur dispose de deux chambres, d’une cuisine et d’une salle de bains. Cette maison est neuve.Le terrain de la propriété s’étend sur 1 700 m².Des établissements scolaires du primaire et du secondaire se trouvent à moins de 10 minutes en voiture, tout comme une crèche à moins de 10 minutes à pied. Niveau transports, il y a les gares Glos-Montfort et Brionne à moins de 10 minutes en voiture. On trouve des tennis, un bassin de natation, une bibliothèque, des commerces, des boulangeries, quatre supermarchés, des boucheries-charcuteries et des épiceries à quelques minutes à peine. Le marché Place Fremont anime les environs.Elle est proposée à l’achat pour 167 000 €.Contactez notre agence (Juliette PETIT : (Numéro supprimé)) pour plus d’informations sur cette maison. Les Maisons Extraco Pont-Audemer vous accompagne dans toutes vos démarches et à toutes les étapes de votre projet.
Saint-Benoît-des-Ombres
TERRAINSaint-Benoît-des-Ombres : terrain de 1 783 m² en venteEMPLACEMENT PRIVILÉGIÉÀ 32 km de la Manche à Saint-Benoît-des-Ombres (27450), grand terrain. Réalisez-y votre projet immobilier. Il se trouve dans un secteur recherché. Il y a des établissements scolaires du primaire et du secondaire à moins de 10 minutes en voiture, tout comme une structure d’accueil pour les enfants en bas âge à moins de 10 minutes à pied. Niveau transports en commun, on trouve deux gares (Glos-Montfort et Brionne) à moins de 10 minutes en voiture. Il y a des tennis, un bassin de natation, une bibliothèque, des commerces, des boulangeries, quatre supermarchés, trois bureaux de poste et une supérette dans les environs. Le marché Place Fremont anime les environs.Son prix de vente est de 35 000 €. N’hésitez pas à prendre contact avec notre agence (PETIT Juliette : (Numéro supprimé)) pour tout renseignement sur ce terrain.
Saint-Benoît-des-Ombres
TERRAIN ET MAISONVENTE d’une maison T4 (81 m²) à Saint-Benoît-des-OmbresMAISON 4 PIÈCES NEUVEEn vente : à 32 km de la Manche, votre agence Les Maisons Extraco Pont-Audemer est heureuse de vous proposer cette maison de 4 pièces de 81 m² à Saint-Benoît-des-Ombres (27450). Elle inclut deux chambres, une cuisine et une salle de bains.Le terrain du bien est de 1 700 m².Il s’agit d’une maison de 2 niveaux. Elle est neuve.Des écoles du primaire et du secondaire sont implantées à moins de 10 minutes en voiture, tout comme une crèche à moins de 10 minutes à pied. Niveau transports en commun, il y a deux gares (Glos-Montfort et Brionne) à moins de 10 minutes en voiture. On trouve des tennis, un bassin de natation, une bibliothèque, des commerces, des boulangeries, quatre supermarchés, des boucheries-charcuteries et trois bureaux de poste dans les environs. Le marché Place Fremont anime le quartier.Elle est à vendre pour la somme de 191 000 €.Prenez contact avec Juliette PETIT (tél : (Numéro supprimé)) pour toute question sur la maison. Les Maisons Extraco Pont-Audemer vous accompagne dans tous vos projets immobiliers et à toutes les étapes de votre projet.
Saint-Benoît-des-Ombres
TERRAIN ET MAISONVENTE : maison de 5 pièces (114 m²) à Saint-Benoît-des-OmbresEMPLACEMENT PRIVILÉGIÉ – MAISON 5 PIÈCES NEUVEÀ 32 km de la Manche, nous sommes heureux de vous proposer cette maison de 5 pièces de plain-pied de 114 m² bénéficiant d’un emplacement d’exception dans Saint-Benoît-des-Ombres (27450). Son intérieur comporte quatre chambres, une cuisine et une salle de bains.Le terrain de la maison est de 1 783 m².La maison est neuve.Cette maison est située dans un quartier attractif. Tous les types d’établissements scolaires (maternelle, élémentaire et secondaire) se trouvent à moins de 10 minutes en voiture, tout comme une structure d’accueil pour la petite enfance à moins de 10 minutes à pied. Niveau transports en commun, il y a les gares Glos-Montfort et Brionne à moins de 10 minutes en voiture. On trouve des tennis, un bassin de natation, une bibliothèque, des commerces, des boulangeries, quatre supermarchés, des épiceries et trois bureaux de poste à proximité. Le marché Place Fremont anime le quartier.Elle est à vendre pour la somme de 206 000 €.N’hésitez pas à prendre contact avec notre agence (Juliette PETIT : (Numéro supprimé)) pour toute question sur le bien, sur les démarches à suivre ou sur les modalités de vente. Les Maisons Extraco Pont-Audemer vous accompagne dans tous vos projets immobiliers et dans toutes vos démarches.
Saint-Benoît-des-Ombres
TERRAIN ET MAISONVENTE : maison T5 (92 m²) à Saint-Benoît-des-OmbresMAISON 5 PIÈCES NEUVEÀ vendre : localisée à 32 km de la Manche, à Saint-Benoît-des-Ombres (27450), Les Maisons Extraco Pont-Audemer vous propose cette maison de 5 pièces de plain-pied de 92 m² et de 1 700 m² de terrain.Son intérieur dispose de quatre chambres, d’une cuisine et d’une salle de bains. Cette maison est neuve.Des écoles du primaire et du secondaire sont implantées à moins de 10 minutes en voiture, tout comme une structure d’accueil pour les tout-petits à moins de 10 minutes à pied. Niveau transports, on trouve les gares Glos-Montfort et Brionne à moins de 10 minutes en voiture. Il y a des tennis, un bassin de natation, une bibliothèque, des commerces, des boulangeries, quatre supermarchés, une supérette et trois bureaux de poste dans les environs. Enfin, le marché Place Fremont anime les environs.Elle est proposée à l’achat pour 198 000 €.Prenez contact avec Juliette PETIT ((Numéro supprimé)) pour obtenir de plus amples renseignements sur ce bien ou sur les modalités de vente.
Saint-Benoît-des-Ombres
TERRAIN ET MAISONMaison de 6 pièces (114 m²) en vente à Saint-Benoît-des-OmbresEMPLACEMENT PRIVILÉGIÉ – MAISON 6 PIÈCES NEUVEEn vente à 32 km de la Manche, nous vous proposons cette maison de 6 pièces de 114 m² et de 1 783 m² de terrain bénéficiant d’un emplacement d’exception dans Saint-Benoît-des-Ombres (27450). Son intérieur propose cinq chambres, une cuisine et deux salles de bains.Cette maison comporte 2 niveaux. Elle est neuve.La maison est située dans un secteur recherché. Des écoles de tous types (de la maternelle au lycée) sont implantées à moins de 10 minutes en voiture, tout comme une crèche à moins de 10 minutes à pied. Niveau transports en commun, il y a deux gares (Glos-Montfort et Brionne) à moins de 10 minutes en voiture. On trouve des tennis, un bassin de natation, une bibliothèque, des commerces, des boulangeries, quatre supermarchés, des boucheries-charcuteries et une supérette dans les environs. Enfin, le marché Place Fremont anime les environs.Elle est à vendre pour la somme de 217 000 €.Contactez Juliette PETIT (tél : (Numéro supprimé)) pour tout renseignement sur la maison. Concrétisez vos projets immobiliers avec Les Maisons Extraco Pont-Audemer.
Saint-Benoît-des-Ombres
TERRAIN ET MAISONMaison T5 (105 m²) en vente à Saint-Benoît-des-OmbresEMPLACEMENT PRIVILÉGIÉ – MAISON 5 PIÈCES NEUVEÀ 32 km de la Manche, à vendre bénéficiant d’un emplacement privilégié dans Saint-Benoît-des-Ombres (27450), votre agence Les Maisons Extraco Pont-Audemer est heureuse de vous proposer cette maison de 5 pièces de 105 m². Elle propose quatre chambres, une cuisine et deux salles de bains.Le terrain de la propriété est de 1 783 m².Cette maison comporte 2 niveaux. Elle est neuve.Cette maison se trouve dans un quartier prisé. Des écoles de tous types sont implantées à moins de 10 minutes en voiture, tout comme une structure d’accueil pour les tout-petits à moins de 10 minutes à pied. Niveau transports, on trouve les gares Glos-Montfort et Brionne à moins de 10 minutes en voiture. Il y a des tennis, un bassin de natation, une bibliothèque, des commerces, des boulangeries, quatre supermarchés, une supérette et des boucheries-charcuteries à proximité. Le marché Place Fremont anime le quartier.Son prix de vente est de 221 000 €.N’hésitez pas à prendre contact avec notre constructeur (Juliette PETIT : (Numéro supprimé)) pour plus de renseignements sur la maison ou sur les modalités de vente.
La Neuville-du-Bosc
TERRAINTerrain viabilisé – Idéal projet de constructionVous souhaitez vivre dans un environnement calme en toute tranquillité, profiter de votre jardin paisiblement installé au soleil sur votre terrasse. Ce terrain est fait pour vous !Terrain plat d’environ 2 207 m² situé dans un environnement calme et verdoyant à LA NEUVILLE DU BOSC.Ce terrain viabilisé offre un fort potentiel pour la construction de votre future maison individuelle.Caractéristiques :Superficie : environ 2 207 m²Type de terrain : viabiliséSituation : LA NEUVILLE DU BOSCEnvironnement : Campagne, calme, 10mins de Le NeubourgPossibilité de construction : Libre de constructeurCertificat d’urbanisme : Disponible sur demandeBornage : OuiArrêt de bus à 100mVoie verte pour vos ballades à 2 mins en voitureN’hésitez pas à me contacter. Les honoraires sont à la charge du vendeur.Les informations sur les risques auxquels ce bien est exposé sont disponibles sur le site Géorisques : www. georisques. gouv. fr.Réseau Immobilier CAPIFRANCE – Votre agent commercial (RSAC N(Numéro supprimé) – Greffe de BERNAY) Gregory HUET Entrepreneur Individuel (Numéro supprimé) – Réf.928287
L’actualité immobilière à Brionne
27/11/2023
02/11/2023
30/10/2023
20/10/2023
16/10/2023
16/10/2023