Maison à construire à Brionne (27800)
Images
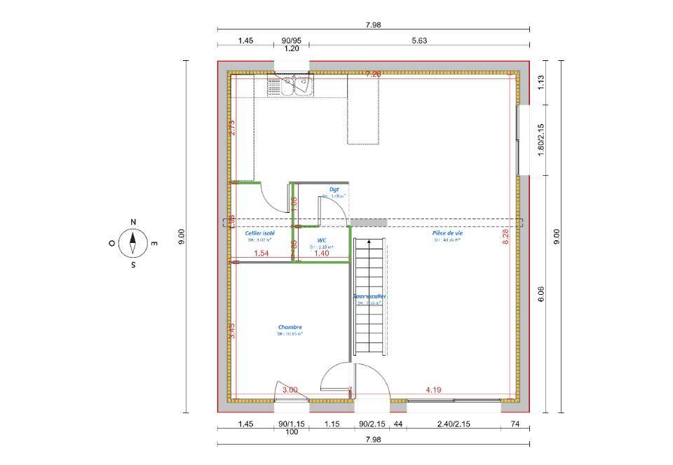
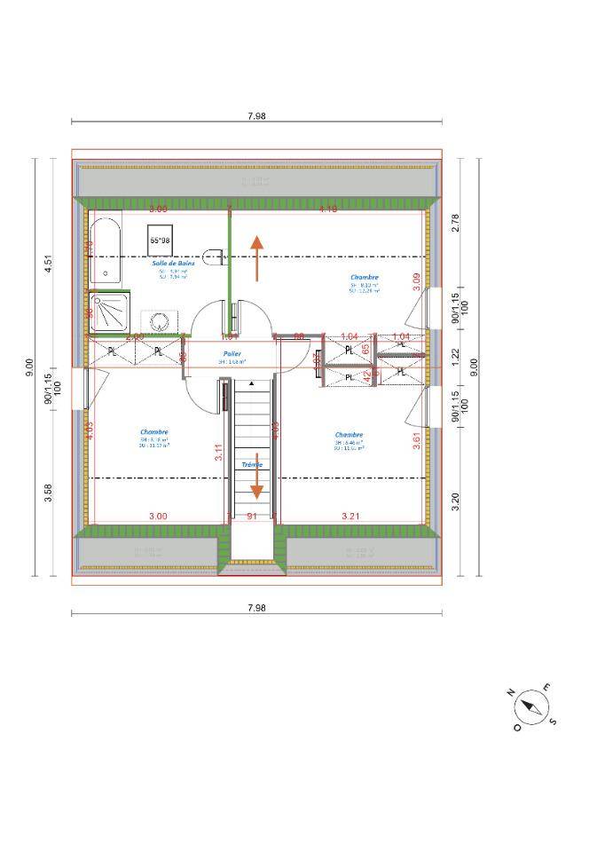
Description
Maison de 89m² habitable
Elle se compose d'une belle pièces de vie ouverte, avec un cellier et une chambre au rdc.
A l'étage 3 chambres et une salle de bain.
Prestations :
Carrelage 45*45
volets roulants encastrée à la maçonnerie + électrique Somfy
Parquet dans les chambres
Pour une étude de votre projet de construction merci de prendre rdv au (Numéro supprimé) Angélique Vaudry
Logement susceptibles de vous intéresser
Nous vous proposons de découvrir aussi cette sélection de logements situés à moins de 10km de Brionne et qui seraient susceptibles de vous intéresser.
Sainte-Opportune-du-Bosc
TERRAINA 5 min de Le Neubourg,A sainte Opportune Du Bosc, proche château du Champs de Bataille,Terrain clos constructible viabilisé de 1300m² à vendre, environnement calme, avec vue dégagée.Cette annonce référence 314275 vous est présentée par votre agent commercial BSK Immobilier MARINE LEVAVASSEUR (EI) immatriculé au RSAC de EVREUX (27000) sous le numéro 84512761200024.Prix du bien : 49 000,00 €Les honoraires d’agence sont à la charge du vendeur.Les informations sur les risques auxquels ce bien est exposé sont disponibles sur le site Géorisques : www.georisques.gouv.fr
Brionne
TERRAIN ET MAISONMaison de 89m² habitableElle se compose d’une belle pièces de vie ouverte, avec un cellier et une chambre au rdc.A l’étage 3 chambres et une salle de bain.Prestations :Carrelage 45*45volets roulants encastrée à la maçonnerie + électrique SomfyParquet dans les chambresPour une étude de votre projet de construction merci de prendre rdv au (Numéro supprimé) Angélique Vaudry
Brionne
TERRAINMaisons France Confort vous propose de réaliser votre maison sur la commune de de St Georges du Vièvre.Dans un lotissement de 17 parcelles. entièrement viabilisée et dépôt de permis immédiat.15 min brionne, 17 min de Pont Audemer, 25 min Beuzeville et 30 min de Bourg-AchardCommune avec tous les commerces ainsi qu’une maison médiale….Vous souhaitez faire une étude de projet de construction, contacter Mme Vaudry pour un 1er rdv (Numéro supprimé)Prix hors frais de notaire. Terrain sélectionné et vu pour vous sous réserve de disponibilité et au prix indiqué par notre partenaire foncier.
Saint-Benoît-des-Ombres
TERRAINTerrain de 1 873 m² en vente à Saint-Benoît-des-OmbresÀ Saint-Benoît-des-Ombres (27450) à vendre à 32 km de la Manche, imaginez la maison de vos rêves sur ce terrain de 1 873 m². Il donne sur un bois. Il y a des écoles de tous types à moins de 10 minutes en voiture, tout comme une structure d’accueil pour les enfants en bas âge à moins de 10 minutes à pied. Niveau transports, on trouve deux gares (Glos-Montfort et Brionne) à moins de 10 minutes en voiture. Il y a des tennis, un bassin de natation, une bibliothèque, des commerces, des boulangeries, quatre supermarchés, une supérette et des boucheries-charcuteries à quelques minutes. Enfin, le marché Place Fremont anime les environs.Son prix de vente est de 35 000 €. Contactez Juliette PETIT (tél : (Numéro supprimé)) pour toute information sur ce terrain ou sur les modalités de vente. Les Maisons Extraco Pont-Audemer est là pour vous accompagner à toutes les étapes de votre projet.
Saint-Benoît-des-Ombres
TERRAIN ET MAISONVENTE d’une maison T5 (114 m²) à Saint-Benoît-des-OmbresMAISON 5 PIÈCES NEUVEEn vente : située à 32 km de la Manche, à Saint-Benoît-des-Ombres (27450), nous sommes heureux de vous proposer cette maison de 5 pièces de plain-pied de 114 m². Conçue de plain-pied, elle dispose de quatre chambres, d’une cuisine et d’une salle de bains.Le terrain du bien s’étend sur 1 873 m².Cette maison est neuve.Des écoles de tous types (de la maternelle au lycée) sont implantées à moins de 10 minutes en voiture, tout comme une structure d’accueil pour les enfants en bas âge à moins de 10 minutes à pied. Niveau transports en commun, il y a deux gares (Glos-Montfort et Brionne) à moins de 10 minutes en voiture. On trouve des tennis, un bassin de natation, une bibliothèque, des commerces, des boulangeries, quatre supermarchés, des boucheries-charcuteries et trois bureaux de poste à proximité. Enfin, le marché Place Fremont anime les environs.Elle est à vendre pour la somme de 206 000 €.Prenez contact avec Juliette PETIT ((Numéro supprimé)) pour obtenir de plus amples informations sur le bien.
Saint-Benoît-des-Ombres
TERRAIN ET MAISONSaint-Benoît-des-Ombres : maison F4 (81 m²) à vendreMAISON 4 PIÈCES NEUVEÀ vendre : située à 32 km de la Manche, découvrez cette maison de 4 pièces de 81 m² avec vue sur bois à Saint-Benoît-des-Ombres (27450).Il s’agit d’une maison de 2 niveaux. Elle dispose de deux chambres, d’une cuisine et d’une salle de bains. La maison est neuve.Le terrain de la propriété s’étend sur 1 873 m².Il y a des établissements scolaires de tous types (de la maternelle au lycée) à moins de 10 minutes en voiture, tout comme une structure d’accueil pour les enfants en bas âge à moins de 10 minutes à pied. Niveau transports, on trouve les gares Glos-Montfort et Brionne à moins de 10 minutes en voiture. Il y a des tennis, un bassin de natation, une bibliothèque, des commerces, des boulangeries, quatre supermarchés, une supérette et des boucheries-charcuteries à proximité. Le marché Place Fremont anime le quartier.Elle est à vendre pour la somme de 194 000 €.Contactez notre agence (PETIT Juliette : (Numéro supprimé)) pour toute information sur cette maison.
Saint-Benoît-des-Ombres
TERRAIN ET MAISONSaint-Benoît-des-Ombres : maison T3 (99 m²) en venteMAISON 3 PIÈCES NEUVEÀ 32 km de la Manche, notre agence Les Maisons Extraco Pont-Audemer est ravie de vous proposer cette maison de 3 pièces de plain-pied de 99 m² et de 1 873 m² de terrain en vente à Saint-Benoît-des-Ombres (27450).Elle dispose de trois chambres, d’une cuisine et de deux salles de bains. La maison est neuve.Tous les types d’établissements scolaires se trouvent à moins de 10 minutes en voiture, tout comme une crèche à moins de 10 minutes à pied. Côté transports en commun, il y a les gares Glos-Montfort et Brionne à moins de 10 minutes en voiture. On trouve des tennis, un bassin de natation, une bibliothèque, des commerces, des boulangeries, quatre supermarchés, des épiceries et des boucheries-charcuteries dans les environs. Le marché Place Fremont anime les environs.Elle est à vendre pour la somme de 233 000 €.Prenez contact avec Juliette PETIT (tél : (Numéro supprimé)) pour obtenir de plus amples renseignements sur la maison. Donnez vie à vos projets immobiliers avec Les Maisons Extraco Pont-Audemer.
Brionne
TERRAIN ET MAISONVENTE : maison de 4 pièces (50 m²) à BrionneEMPLACEMENT PRIVILÉGIÉ – MAISON 4 PIÈCES NEUVEEn vente : située à 42 km de la Manche, notre agence Maisons Balency Boos est ravie de vous présenter cette maison de 4 pièces de plain-pied de 50 m² et de 815 m² de terrain, bénéficiant d’un emplacement privilégié dans Brionne (27800). Elle compte deux chambres, une cuisine et une salle de bains.La maison est neuve.Ce bien est situé dans un quartier prisé. On trouve l’École Maternelle Georges Brassens, l’École Primaire Privée de la Providence, l’École Élémentaire Louis Pergaud, le Collège Pierre Brossolette et le Lycée Professionnel Augustin Boismard-Lycée des Métiers d’Art, Bois, Tissu, Cuir à moins de 10 minutes à pied. Niveau transports, il y a la gare Brionne dans les environs. Il y a un accès à l’autoroute A28 à 7 km. On trouve un tennis, une bibliothèque, des commerces, des boulangeries, deux supermarchés, un bureau de poste et deux boucheries-charcuteries à quelques minutes à peine. Le marché Place Fremont anime le quartier.Son prix de vente est de 137 000 €.Contactez notre agence (Aurélien LEOVANT : (Numéro supprimé)) pour obtenir de plus amples informations sur la maison ou sur les démarches à suivre. Maisons Balency Boos est là pour vous accompagner dans tous vos projets immobiliers.Annonce proposée par un Agent Commercial Partenaire.
Brionne
TERRAIN ET MAISONMaison de 6 pièces (89 m²) en vente à BrionneEMPLACEMENT PRIVILÉGIÉ – MAISON 6 PIÈCES NEUVEEn vente : située à 42 km de la Manche, venez découvrir cette maison de 6 pièces de 89 m² bénéficiant d’un emplacement d’exception dans Brionne (27800). Son intérieur dispose de quatre chambres, d’une cuisine et d’une salle de bains.Le terrain de la maison s’étend sur 815 m².Cette maison compte 2 niveaux. Elle est neuve.Cette propriété se trouve dans un quartier attractif. Il y a l’École Maternelle Georges Brassens, l’École Primaire Privée de la Providence, l’École Élémentaire Louis Pergaud, le Collège Pierre Brossolette et le Lycée Professionnel Augustin Boismard-Lycée des Métiers d’Art, Bois, Tissu, Cuir à moins de 10 minutes à pied. Côté transports, on trouve la gare Brionne à proximité. L’autoroute A28 est accessible à 7 km. Il y a un tennis, une bibliothèque, des commerces, des boulangeries, deux supermarchés, deux boucheries-charcuteries et un bureau de poste dans les environs. Enfin, le marché Place Fremont anime le quartier.Son prix de vente est de 199 400 €.Contactez notre agence (LEOVANT Aurélien : (Numéro supprimé)) pour toute information sur la maison.Annonce proposée par un Agent Commercial Partenaire.
L’actualité immobilière à Brionne
27/11/2023
02/11/2023
30/10/2023
20/10/2023
16/10/2023
16/10/2023