Maison à construire à Bueil (27730)
Images
Description
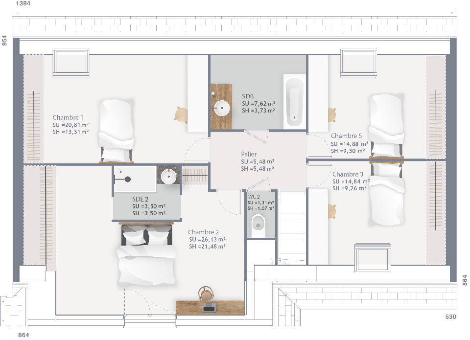
VENTE d'une maison F7 (150 m²) à Bueil
IDÉALEMENT SITUÉE - MAISON 7 PIÈCES NEUVE
À vendre : située à deux pas d'Évreux, venez découvrir cette maison de 7 pièces de 150 m² idéalement située dans Bueil (27730). Son intérieur inclut cinq chambres, une cuisine et deux salles de bains.
Le terrain de la propriété est de 1 260 m².
Il s'agit d'une maison de 2 niveaux. Elle est neuve.
Cette maison se trouve dans un secteur attractif. Il y a l'École Maternelle Jérôme Bossuyt et l'École Primaire Paul Delabre à moins de 10 minutes à pied. Côté transports, on trouve la gare Bueil juste à côté. La nationale N13 est accessible à 9 km. Il y a deux commerces, une boulangerie et un supermarché dans les environs.
Son prix de vente est de 380 743 €.
Contactez Murielle DEBART (tél : (Numéro supprimé)) pour toute question sur la maison. Maisons France Confort Vernon vous accompagne dans tous vos projets immobiliers et dans toutes vos démarches.
Logement susceptibles de vous intéresser
Nous vous proposons de découvrir aussi cette sélection de logements situés à moins de 10km de Bueil et qui seraient susceptibles de vous intéresser.
Oulins
TERRAIN ET MAISONMaison F3 (65 m²) à vendre à OulinsMAISON 3 PIÈCES NEUVE – PROCHE BREVALEn vente à 31 km d’Évreux, nous vous proposons cette maison de 3 pièces de plain-pied de 65 m² et de 313 m² de terrain à Oulins (28260).Son intérieur inclut deux chambres, une cuisine ouverte sur le séjour et une salle de bains. Cette maison est neuve.L’École Primaire Michel Brunel est implantée à moins de 10 minutes à pied. Niveau transports, on trouve deux gares (Bueil et Bréval) à moins de 10 minutes en voiture. L’autoroute A13 et les nationales N12, N154 et N13 sont accessibles à moins de 18 km. Il y a une boulangerie et plusieurs commerces dans les environs.Elle est à vendre pour la somme de 191 900 €.Prenez contact avec Aurélie KTARI (tél : (Numéro supprimé)) pour tout renseignement sur la maison, sur les démarches à suivre ou sur les modalités de vente. Les Maisons Extraco Gravigny vous accompagne dans tous vos projets immobiliers et à toutes les étapes de l’achat.
Oulins
TERRAIN ET MAISONVENTE : maison F5 (105 m²) à OulinsPROCHE BREVAL – MAISON 5 PIÈCES NEUVEÀ vendre à 31 km d’Évreux, Les Maisons Extraco Gravigny vous propose à Oulins (28260), cette maison de 5 pièces de 105 m² et de 313 m² de terrain. Son intérieur inclut quatre chambres, une cuisine ouverte sur le séjour, deux salles de bains, un cellier et un garage.Cette maison possède 2 niveaux. Elle est neuve.Il y a l’École Primaire Michel Brunel à moins de 10 minutes à pied. Niveau transports en commun, on trouve les gares Bueil et Bréval à moins de 10 minutes en voiture. L’autoroute A13 et les nationales N12, N154 et N13 sont accessibles à moins de 18 km. Il y a une boulangerie et huit commerces dans les environs.Son prix de vente est de 245 900 €.Contactez notre agence (KTARI Aurélie : (Numéro supprimé)) pour plus de renseignements sur cette maison. Les Maisons Extraco Gravigny vous accompagne dans tous vos projets immobiliers et à toutes les étapes de l’achat.
Oulins
TERRAIN ET MAISONGAMME BOISVENTE : maison F5 (97 m²) à OulinsPROCHE BREVAL – MAISON 5 PIÈCES NEUVEEn vente : à deux pas d’Évreux, notre agence Les Maisons Extraco Gravigny est heureuse de vous présenter cette maison de 5 pièces de 97 m² à Oulins (28260). Son intérieur dispose de quatre chambres, d’une cuisine ouverte sur le séjour, deux salles de bains, un cellier et un garage.Le terrain de cette maison est de 313 m².C’est une maison de 2 niveaux. Elle est neuve.Il y a l’École Primaire Michel Brunel à moins de 10 minutes à pied. Niveau transports en commun, on trouve deux gares (Bueil et Bréval) à moins de 10 minutes en voiture. L’autoroute A13 et les nationales N12, N154 et N13 sont accessibles à moins de 18 km. Il y a une boulangerie et plusieurs commerces dans les environs.Elle est à vendre pour la somme de 299 000 €.N’hésitez pas à prendre contact avec notre constructeur (KTARI Aurélie : (Numéro supprimé)) pour toute question sur cette maison.
Oulins
TERRAIN ET MAISONMaison de 6 pièces (211 m²) en vente à OulinsMAISON 6 PIÈCES NEUVE – PROCHE BREVALÀ deux pas d’Évreux, nous sommes heureux de vous présenter en vente à Oulins (28260), cette maison de 6 pièces de 211 m². Son intérieur est composé de quatre chambres, d’une cuisine ouverte sur le séjour, trois salles de bains, un cellier et un garage.Le terrain de la maison s’étend sur 313 m².C’est une maison de 2 niveaux. Elle est neuve.L’École Primaire Michel Brunel est implantée à moins de 10 minutes à pied. Côté transports en commun, on trouve deux gares (Bueil et Bréval) à moins de 10 minutes en voiture. L’autoroute A13 et les nationales N12, N154 et N13 sont accessibles à moins de 18 km. Il y a une boulangerie et des commerces à proximité de la maison.Son prix de vente est de 529 000 €.N’hésitez pas à prendre contact avec Aurélie KTARI (tél : (Numéro supprimé)) pour plus de renseignements sur cette maison, sur les démarches à suivre ou sur les modalités de vente.
Aigleville
TERRAINAigleville : terrain de 1 009 m² à vendreEMPLACEMENT PRIVILÉGIÉ – À deux pas de Pacy sur Eure à Aigleville (27120), grand terrain. Il donne sur un jardin et est exposé au sud-est. La nationale N13 est accessible à 1 km. On trouve un commerce à quelques minutes de la propriété.Ce terrain est proposé à l’achat pour 126 158 €. Prenez contact avec Fanny GATINAULT (tél : (Numéro supprimé)) pour tout renseignement sur ce terrain. Donnez vie à vos projets immobiliers avec Maisons Balency Louviers.Annonce proposée par un Agent Commercial Partenaire.
Aigleville
TERRAIN ET MAISONAigleville : maison T5 (120 m²) en venteEMPLACEMENT PRIVILÉGIÉ – Localisée à deux pas de Pacy sur eure , bénéficiant d’un emplacement privilégié dans Aigleville (27120), votre agence Maisons Balency Louviers est heureuse de vous proposer cette maison de 5 pièces de plain-pied de 120 m² et de 1 009 m² de terrain.Conçue de plain-pied, elle dispose de trois chambres dont une suite parentale, d’une cuisine ouverte sur l’espace de vie , d’un cellier donnant sur le garage et de deux salles de bains. La maison est neuve.Cette maison se situe dans un secteur attractif. Son prix de vente est de 397 493 €.N’hésitez pas à prendre contact avec notre agence (GATINAULT Fanny : (Numéro supprimé)) pour tout renseignement sur la maison ou sur les modalités de vente. Maisons Balency Louviers est là pour vous accompagner à toutes les étapes de votre projet.Annonce proposée par un Agent Commercial Partenaire.
Aigleville
TERRAIN ET MAISONVENTE d’une maison de 5 pièces (95 m²) à AiglevilleEMPLACEMENT PRIVILÉGIÉ – Nous sommes ravis de vous présenter cette maison de 5 pièces de plain-pied de 95 m² et de 1 009 m² de terrain bénéficiant d’un emplacement d’exception dans Aigleville (27120). Son intérieur se divise en quatre chambres, une cuisine ouverte sur l’espace de vie, d’un cellier donnant sur le garage et une salle de bains.Cette maison est neuve alliant le confort, la modernité et la performance énergétique. Elle est à vendre pour la somme de 277 295 €.Prenez contact avec Fanny GATINAULT ((Numéro supprimé)) pour toute information sur la maison ou sur les démarches à suivre. Maisons Balency Louviers est là pour vous accompagner dans tous vos projets immobiliers.Annonce proposée par un Agent Commercial Partenaire.
Aigleville
TERRAINVENTE : terrain de 972 m² à 10 min de Pacy-sur-EureEMPLACEMENT PRIVILÉGIÉ – En vente à deux pas de Pacy-sur-Eure (27120), grand terrain. Il est prêt à accueillir votre projet immobilier pour toute la famille. Ce terrain, exposé sud-ouest, donne sur un jardin. Son prix de vente est de 121 807 €. N’hésitez pas à prendre contact avec Fanny GATINAULT ((Numéro supprimé)) pour plus d’informations sur le terrain, sur les modalités de vente ou sur les démarches à suivre. Concrétisez vos projets immobiliers avec Maisons Balency Louviers.Annonce proposée par un Agent Commercial Partenaire.
Aigleville
TERRAIN ET MAISONEMPLACEMENT PRIVILÉGIÉ – MAISON 7 PIÈCES NEUVE Localisée à quelques kilomètres de Pacy sur Eure sur la commune AIGLEVILLE, nous vous proposons cette maison de 7 pièces de 125 m² bénéficiant d’un emplacement d’exception .C’est une maison de 2 niveaux. Son intérieur est composé de quatre chambres dont une suite parentale, d’une cuisine ouverte sur l’espace de vie, d’un cellier donnant sur la garage et de trois salles de bains. La maison est neuve.Le terrain du bien est de 972 m².Elle est proposée à l’achat pour 386 070 €.N’hésitez pas à prendre contact avec notre agence (GATINAULT Fanny : (Numéro supprimé)) pour obtenir de plus amples informations sur la maison.Annonce proposée par un Agent Commercial Partenaire.
L’actualité immobilière à Bueil
27/11/2023
02/11/2023
30/10/2023
20/10/2023
16/10/2023
16/10/2023