Maison à construire à Burey (27190)
Images
Description
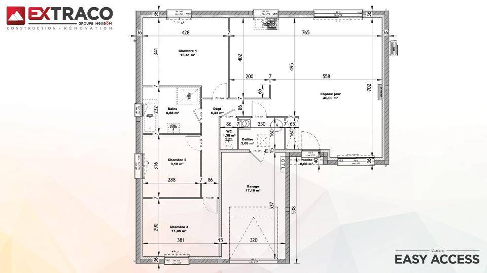
Maison F4 (98 m²) à vendre à Burey
IDÉALEMENT SITUÉE - MAISON 4 PIÈCES NEUVE
En vente : localisée à quelques kilomètres d'Évreux, idéalement située dans Burey (27190), Les Maisons Extraco Gravigny vous présente cette maison de 4 pièces de plain-pied de 98 m² et de 900 m² de terrain. Son intérieur compte trois chambres, une cuisine et une salle de bains.
Cette maison est neuve.
Cette maison est située dans un secteur prisé. Une école primaire y est implantée. Niveau transports, il y a trois gares (Conches-en-Ouche, La Bonneville-sur-Iton et Romilly-la-Puthenaye) à moins de 10 minutes en voiture. Les nationales N13 et N154 sont accessibles à moins de 18 km. On trouve un tennis à quelques minutes.
Elle est à vendre pour la somme de 198 600 €.
N'hésitez pas à prendre contact avec notre agence (SONMEZ Oumayma : (Numéro supprimé)) pour obtenir de plus amples renseignements sur la maison, sur les modalités de vente ou sur les démarches à suivre. Les Maisons Extraco Gravigny est là pour vous accompagner dans tous vos projets immobiliers.
Logement susceptibles de vous intéresser
Nous vous proposons de découvrir aussi cette sélection de logements situés à moins de 10km de Burey et qui seraient susceptibles de vous intéresser.
Aulnay-sur-Iton
TERRAIN ET MAISONVENTE d’une maison de 5 pièces (85 m²) à Aulnay-sur-ItonIDÉALEMENT SITUÉE – MAISON 5 PIÈCES NEUVEÀ quelques kilomètres d’Évreux, votre agence Les Maisons Extraco Gravigny est heureuse de vous proposer cette maison de 5 pièces de 85 m² et de 1 002 m² de terrain idéalement située dans Aulnay-sur-Iton (27180). Elle est composée de quatre chambres, d’une cuisine et de deux salles de bains.Il s’agit d’une maison de 2 niveaux. Elle est neuve.Le bien se trouve dans un quartier recherché. L’École Primaire Paul Vezain est implantée à moins de 10 minutes à pied. Niveau transports, on trouve les gares La Bonneville-sur-Iton, Évreux Normandie et Conches-en-Ouche à moins de 10 minutes en voiture. Les nationales N13 et N154 sont accessibles à moins de 10 km. Il y a deux tennis à quelques minutes du bien.Son prix de vente est de 190 500 €.Prenez contact avec Oumayma SONMEZ (tél : (Numéro supprimé)) pour plus de renseignements sur la maison. Les Maisons Extraco Gravigny vous accompagne à toutes les étapes de votre projet et dans toutes vos démarches.
Aulnay-sur-Iton
TERRAINVENTE d’un terrain de 1 002 m² à Aulnay-sur-ItonIDÉALEMENT SITUÉ – PROCHE D’ÉVREUXÀ Aulnay-sur-Iton (27180) à vendre à quelques kilomètres d’Évreux, découvrez ce terrain de 1 002 m². Ce terrain, avec vue sur espace vert, est exposé au sud-ouest. Dans un secteur attractif, le terrain idéalement situé est proche des écoles et des commerces. L’École Primaire Paul Vezain est implantée à moins de 10 minutes à pied. Niveau transports, il y a les gares La Bonneville-sur-Iton, Évreux Normandie et Conches-en-Ouche à moins de 10 minutes en voiture. Les nationales N13 et N154 sont accessibles à moins de 10 km. On trouve deux tennis à quelques minutes à peine.Ce terrain est à vendre pour la somme de 45 000 €. N’hésitez pas à prendre contact avec Oumayma SONMEZ (tél : (Numéro supprimé)) pour obtenir de plus amples renseignements sur le terrain. Concrétisez vos projets immobiliers avec Les Maisons Extraco Gravigny.
Burey
TERRAIN ET MAISONMaison de 5 pièces (105 m²) en vente à BureyIDÉALEMENT SITUÉE – MAISON 5 PIÈCES NEUVEÀ 15 km d’Évreux, en vente idéalement située dans Burey (27190), nous sommes heureux de vous présenter cette maison de 5 pièces de 105 m² et de 900 m² de terrain. Son intérieur inclut quatre chambres, une cuisine et deux salles de bains.Cette maison comporte 2 niveaux. Elle est neuve.Cette maison est située dans un secteur prisé. On y trouve une école primaire. Côté transports en commun, il y a les gares Conches-en-Ouche, La Bonneville-sur-Iton et Romilly-la-Puthenaye à moins de 10 minutes en voiture. Les nationales N13 et N154 sont accessibles à moins de 18 km. On trouve un tennis dans les environs.Son prix de vente est de 200 300 €.Contactez notre agence (SONMEZ Oumayma : (Numéro supprimé)) pour toute question sur la maison. Les Maisons Extraco Gravigny est là pour vous accompagner dans toutes vos démarches.
Aulnay-sur-Iton
TERRAIN ET MAISONMaison F4 (93 m²) à vendre à Aulnay-sur-ItonIDÉALEMENT SITUÉE – MAISON 4 PIÈCES NEUVEÀ vendre : localisée à deux pas d’Évreux, nous sommes heureux de vous présenter, idéalement située dans Aulnay-sur-Iton (27180), cette maison de 4 pièces de plain-pied de 93 m².Conçue de plain-pied, elle se divise en trois chambres, une cuisine et une salle de bains. Cette maison est neuve.Le terrain du bien s’étend sur 1 002 m².Cette maison se situe dans un quartier convoité. On trouve l’École Primaire Paul Vezain à moins de 10 minutes à pied. Côté transports en commun, il y a trois gares (La Bonneville-sur-Iton, Évreux Normandie et Conches-en-Ouche) à moins de 10 minutes en voiture. Les nationales N13 et N154 sont accessibles à moins de 10 km. On trouve deux tennis dans les environs.Son prix de vente est de 186 300 €.Contactez Oumayma SONMEZ ((Numéro supprimé)) pour plus de renseignements sur le bien ou sur les démarches à suivre. Les Maisons Extraco Gravigny vous accompagne dans tous vos projets immobiliers et à toutes les étapes de votre projet.
Burey
TERRAIN ET MAISONBurey : maison T4 (93 m²) en venteIDÉALEMENT SITUÉE – MAISON 4 PIÈCES NEUVEÀ vendre : située à quelques kilomètres d’Évreux, idéalement située dans Burey (27190), Les Maisons Extraco Gravigny vous présente cette maison de 4 pièces de plain-pied de 93 m². Son intérieur compte trois chambres, une cuisine et une salle de bains.Le terrain du bien est de 900 m².Cette maison est neuve.La maison se trouve dans un quartier recherché. Une école primaire y est implantée. Niveau transports en commun, il y a les gares Conches-en-Ouche, La Bonneville-sur-Iton et Romilly-la-Puthenaye à moins de 10 minutes en voiture. Les nationales N13 et N154 sont accessibles à moins de 18 km. On trouve un tennis à proximité.Son prix de vente est de 175 200 €.Prenez contact avec Oumayma SONMEZ (tél : (Numéro supprimé)) pour toute question sur la maison, sur les modalités de vente ou sur les démarches à suivre. Les Maisons Extraco Gravigny est là pour vous accompagner à toutes les étapes de votre projet.
Burey
TERRAIN ET MAISONMaison F4 (98 m²) à vendre à BureyIDÉALEMENT SITUÉE – MAISON 4 PIÈCES NEUVEEn vente : localisée à quelques kilomètres d’Évreux, idéalement située dans Burey (27190), Les Maisons Extraco Gravigny vous présente cette maison de 4 pièces de plain-pied de 98 m² et de 900 m² de terrain. Son intérieur compte trois chambres, une cuisine et une salle de bains.Cette maison est neuve.Cette maison est située dans un secteur prisé. Une école primaire y est implantée. Niveau transports, il y a trois gares (Conches-en-Ouche, La Bonneville-sur-Iton et Romilly-la-Puthenaye) à moins de 10 minutes en voiture. Les nationales N13 et N154 sont accessibles à moins de 18 km. On trouve un tennis à quelques minutes.Elle est à vendre pour la somme de 198 600 €.N’hésitez pas à prendre contact avec notre agence (SONMEZ Oumayma : (Numéro supprimé)) pour obtenir de plus amples renseignements sur la maison, sur les modalités de vente ou sur les démarches à suivre. Les Maisons Extraco Gravigny est là pour vous accompagner dans tous vos projets immobiliers.
Aulnay-sur-Iton
TERRAIN ET MAISONVENTE d’une maison de 6 pièces (114 m²) à Aulnay-sur-ItonIDÉALEMENT SITUÉE – MAISON 6 PIÈCES NEUVEÀ deux pas d’Évreux, ayez le coup de coeur pour cette maison de 6 pièces de 114 m² idéalement située dans Aulnay-sur-Iton (27180). Elle offre cinq chambres, une cuisine et deux salles de bains.Le terrain de cette maison est de 1 002 m².C’est une maison de 2 niveaux. Elle est neuve.Le bien se trouve dans un secteur prisé. Il y a l’École Primaire Paul Vezain à moins de 10 minutes à pied. Côté transports en commun, on trouve trois gares (La Bonneville-sur-Iton, Évreux Normandie et Conches-en-Ouche) à moins de 10 minutes en voiture. Les nationales N13 et N154 sont accessibles à moins de 10 km. Il y a deux tennis à proximité du bien.Il est proposé à l’achat pour 212 200 €.Prenez contact avec notre agence (Oumayma SONMEZ : (Numéro supprimé)) pour toute question sur la maison, sur les modalités de vente ou sur les démarches à suivre.
Burey
TERRAINTerrain de 900 m² à vendre à BureyIDÉALEMENT SITUÉ – VUE SUR PARCÀ quelques kilomètres d’Évreux à Burey (27190), grand terrain. Il donne sur un parc et est orienté au sud-ouest. Dans un secteur attractif, le terrain idéalement situé est proche des écoles et des commerces. On trouve une école primaire dans le quartier. Niveau transports en commun, il y a les gares Conches-en-Ouche, La Bonneville-sur-Iton et Romilly-la-Puthenaye à moins de 10 minutes en voiture. Les nationales N13 et N154 sont accessibles à moins de 18 km. On trouve un tennis à proximité.Son prix de vente est de 33 900 €. Contactez notre agence (Oumayma SONMEZ : (Numéro supprimé)) pour toute information sur le terrain. Concrétisez vos projets immobiliers avec Les Maisons Extraco Gravigny.
Aulnay-sur-Iton
TERRAIN ET MAISONAulnay-sur-Iton : maison de 5 pièces (105 m²) à vendreIDÉALEMENT SITUÉE – MAISON 5 PIÈCES NEUVEEn vente : située à quelques kilomètres d’Évreux, idéalement située dans Aulnay-sur-Iton (27180), nous sommes ravis de vous proposer cette maison de 5 pièces de plain-pied de 105 m².Elle dispose de quatre chambres, d’une cuisine et d’une salle de bains. Cette maison est neuve.Le terrain de la propriété s’étend sur 1 002 m².La maison se situe dans un quartier attractif. L’École Primaire Paul Vezain est implantée à moins de 10 minutes à pied. Niveau transports en commun, il y a trois gares (La Bonneville-sur-Iton, Évreux Normandie et Conches-en-Ouche) à moins de 10 minutes en voiture. Les nationales N13 et N154 sont accessibles à moins de 10 km. On trouve deux tennis à quelques minutes.Son prix de vente est de 196 800 €.Contactez Oumayma SONMEZ (tél : (Numéro supprimé)) pour toute information sur la maison, sur les démarches à suivre ou sur les modalités de vente.
L’actualité immobilière à Burey
27/11/2023
02/11/2023
30/10/2023
20/10/2023
16/10/2023
16/10/2023