Maison à construire à Courcelles-sur-Seine (27940)
Images
Description
VENTE : maison de 5 pièces (76 m²) à Courcelles-sur-Seine
PROCHE D'ÉVREUX - MAISON 5 PIÈCES NEUVE
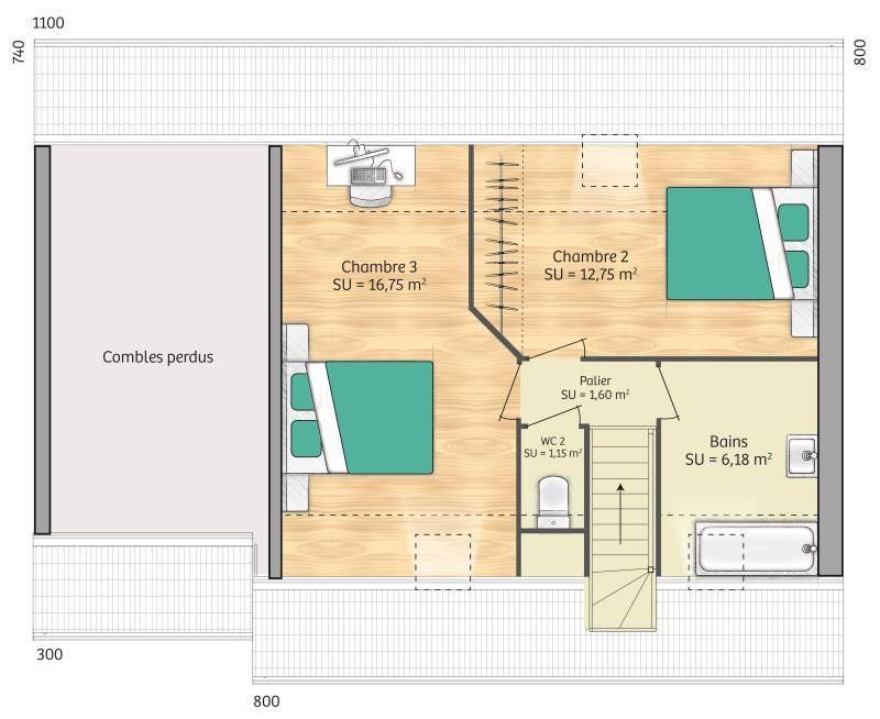
À vendre : à quelques kilomètres d'Évreux, à Courcelles-sur-Seine (27940), nous vous proposons cette maison de 5 pièces de 76 m².
C'est une maison de 2 niveaux. Elle inclut trois chambres, une cuisine et une salle de bains. La maison est neuve.
Le terrain de la propriété est de 530 m².
L'École Primaire Claude Monet se trouve à moins de 10 minutes à pied, tout comme une crèche. Niveau transports, il y a la gare Gaillon-Aubevoye à moins de 10 minutes en voiture. On trouve un accès à l'autoroute A13 à 7 km. On trouve deux commerces et une boulangerie dans les environs.
Elle est proposée à l'achat pour 187 409 €.
Prenez contact avec notre agence (DELELIS Karen : (Numéro supprimé)) pour toute information sur la maison, sur les modalités de vente et sur les démarches à suivre. Maisons Balency Gravigny vous accompagne dans tous vos projets immobiliers et à toutes les étapes de votre projet.
Annonce proposée par un Agent Commercial Partenaire.
Logement susceptibles de vous intéresser
Nous vous proposons de découvrir aussi cette sélection de logements situés à moins de 10km de Courcelles-sur-Seine et qui seraient susceptibles de vous intéresser.
Le Val d'Hazey
TERRAINAubevoye : terrain de 891 m² à vendreQUARTIER RECHERCHÉ À Aubevoye (27940) à quelques kilomètres d’Évreux, venez découvrir ce terrain de 891 m². Il se situe dans un secteur prisé. Des établissements scolaires du primaire et du secondaire se trouvent à moins de 10 minutes à pied, tout comme deux structures d’accueil pour la petite enfance. Niveau transports, il y a la gare Gaillon-Aubevoye à moins de 10 minutes en voiture. On trouve un accès à l’autoroute A13 à 5 km. On trouve une bibliothèque, des commerces, trois boulangeries, un supermarché et un bureau de poste à proximité.Il est proposé à l’achat pour 55 000 €. Contactez Gilles BOREAU (tél : (Numéro supprimé)) pour toute question sur ce terrain ou sur les modalités de vente. Donnez vie à vos projets immobiliers avec Les Maisons Extraco Les Andelys.
Le Val d'Hazey
TERRAIN ET MAISONVENTE d’une maison de 4 pièces (80 m²) à AubevoyeQUARTIER RECHERCHÉ – MAISON 4 PIÈCES NEUVEEn vente à deux pas d’Évreux, notre agence Les Maisons Extraco Les Andelys est ravie de vous présenter cette maison de 4 pièces de plain-pied de 80 m², nichée dans un quartier convoité d’Aubevoye (27940).Elle est composée de trois chambres, d’une cuisine et d’une salle de bains. La maison est neuve.Le terrain de la propriété est de 891 m².La maison se trouve dans un secteur recherché. Il y a des écoles de tous types à moins de 10 minutes à pied, tout comme deux structures d’accueil pour la petite enfance. Niveau transports en commun, on trouve la gare Gaillon-Aubevoye à moins de 10 minutes en voiture. Il y a un accès à l’autoroute A13 à 5 km. Il y a une bibliothèque, des commerces, trois boulangeries, un supermarché et un bureau de poste dans les environs.Elle est proposée à l’achat pour 225 500 €.Contactez notre constructeur (BOREAU Gilles : (Numéro supprimé)) pour obtenir de plus amples renseignements sur la maison ou sur les démarches à suivre. Les Maisons Extraco Les Andelys est là pour vous accompagner à toutes les étapes de l’achat.
Le Val d'Hazey
TERRAIN ET MAISONVENTE : maison de 4 pièces (90 m²) à AubevoyeQUARTIER RECHERCHÉ – MAISON 4 PIÈCES NEUVEÀ deux pas d’Évreux, Les Maisons Extraco Les Andelys vous présente cette maison de 4 pièces de 90 m² et de 891 m² de terrain en vente dans un quartier prisé d’Aubevoye (27940).C’est une maison de 2 niveaux. Son intérieur est composé de trois chambres, d’une cuisine et d’une salle de bains. Cette maison est neuve.La maison est située dans un secteur attractif. Des établissements scolaires (de la maternelle au lycée) se trouvent à moins de 10 minutes à pied, tout comme deux structures d’accueil pour les tout-petits. Côté transports en commun, il y a la gare Gaillon-Aubevoye à moins de 10 minutes en voiture. L’autoroute A13 est accessible à 5 km. On trouve une bibliothèque, des commerces, trois boulangeries, un supermarché et un bureau de poste à proximité.Elle est à vendre pour la somme de 231 500 €.Prenez contact avec Gilles BOREAU (tél : (Numéro supprimé)) pour toute question sur la propriété.
Le Val d'Hazey
TERRAIN ET MAISONVENTE : maison de 5 pièces (110 m²) à AubevoyeQUARTIER RECHERCHÉ – MAISON 5 PIÈCES NEUVEEn vente à deux pas d’Évreux, nous sommes heureux de vous proposer cette maison de 5 pièces de 110 m² et de 891 m² de terrain dans un secteur prisé d’Aubevoye (27940).C’est une maison de 2 niveaux. Elle se divise en quatre chambres, une cuisine et deux salles de bains. La maison est neuve.Cette propriété se trouve dans un quartier convoité. Des établissements scolaires du primaire et du secondaire sont implantés à moins de 10 minutes à pied, tout comme deux crèches. Niveau transports en commun, il y a la gare Gaillon-Aubevoye à moins de 10 minutes en voiture. L’autoroute A13 est accessible à 5 km. On trouve une bibliothèque, des commerces, trois boulangeries, un supermarché et un bureau de poste dans les environs.Son prix de vente est de 254 500 €.Contactez Gilles BOREAU (tél : (Numéro supprimé)) pour toute question sur la maison ou sur les modalités de vente. Les Maisons Extraco Les Andelys est là pour vous accompagner dans tous vos projets immobiliers.
Heudebouville
TERRAINTerrain de 573 m² en vente à HeudebouvilleEMPLACEMENT PRIVILÉGIÉ – PROCHE DE ROUENGrand terrain à quelques kilomètres de Rouen. De 573 m², ce terrain se situe bénéficiant d’un emplacement d’exception dans Heudebouville (27400). Ce terrain, avec vue sur jardin, est exposé au nord-est. Dans un quartier prisé, ce terrain est proche des commerces et des écoles.Il est à vendre pour la somme de 57 000 €. Prenez contact avec notre agence (Fanny GATINAULT : (Numéro supprimé)) pour tout renseignement sur le terrain ou sur les démarches à suivre. Maisons Balency Louviers vous accompagne à toutes les étapes de votre projet et dans tous vos projets immobiliers.Annonce proposée par un Agent Commercial Partenaire.
Heudebouville
TERRAIN ET MAISONMaison de 4 pièces (50 m²) à vendre à HeudebouvilleEMPLACEMENT PRIVILÉGIÉ – À vendre à deux pas de Rouen, votre agence Maisons Balency Louviers est heureuse de vous proposer cette maison de 4 pièces de plain-pied de 50 m² et de 573 m² de terrain, bénéficiant d’un emplacement privilégié dans Heudebouville (27400). Elle dispose de deux chambres, d’une cuisine ouverte sur l’espace de vie, d’un garage et d’une salle de bains.Cette maison est neuve.La maison se trouve dans un quartier recherché. L’École Primaire les Coteaux Fleuris est implantée à moins de 10 minutes à pied. Son prix de vente est de 161 299 €.Contactez Fanny GATINAULT (tél : (Numéro supprimé)) pour toute information sur la maison, sur les démarches à suivre ou sur les modalités de vente. Maisons Balency Louviers vous accompagne dans tous vos projets immobiliers et dans toutes vos démarches.Annonce proposée par un Agent Commercial Partenaire.
Heudebouville
TERRAINHeudebouville : terrain de 500 m² en venteIDÉALEMENT SITUÉ – PROCHE DE ROUENÀ Heudebouville (27400) à 30 km de Rouen, venez découvrir ce terrain de 500 m². Il donne sur un jardin et bénéficie d’une exposition nord. Dans un quartier attractif, le terrain idéalement situé est proche des commerces et des écoles. L’École Primaire les Coteaux Fleuris est implantée à moins de 10 minutes à pied.Son prix de vente est de 60 000 €. Contactez notre agence (Fanny GATINAULT : (Numéro supprimé)) pour toute information sur le terrain, sur les modalités de vente ou sur les démarches à suivre. Concrétisez vos projets immobiliers avec Maisons Balency Louviers.Annonce proposée par un Agent Commercial Partenaire.
Bouafles
TERRAINTerrain de 500 m² en vente à BouaflesIDÉALEMENT SITUÉ – PROCHE DE LES ANDELYSÀ vendre à deux pas de Les Andelys à Bouafles (27700), terrain de 500 m². Réalisez-y votre résidence principale ou secondaire. Une école primaire est implantée dans le quartier. Côté transports en commun, il y a la gare Gaillon-Aubevoye à moins de 10 minutes en voiture. On trouve un accès à l’autoroute A13 à 10 km.Il est à vendre pour la somme de 54 500 €. Contactez Gilles BOREAU ((Numéro supprimé)) pour plus de renseignements sur ce terrain ou sur les démarches à suivre. Les Maisons Extraco Les Andelys est là pour vous accompagner à toutes les étapes de l’achat.
Bouafles
TERRAIN ET MAISONBouafles : maison de 3 pièces (65 m²) à vendreIDÉALEMENT SITUÉE – MAISON 3 PIÈCES NEUVEÀ 27 km d’Évreux, laissez vous charmer par cette maison de 3 pièces de plain-pied de 65 m² et de 500 m² de terrain idéalement située dans Bouafles (27700).Elle offre deux chambres, une cuisine et une salle de bains. Cette maison est neuve.Cette maison se situe dans un secteur attractif. Une école primaire y est implantée. Niveau transports, il y a la gare Gaillon-Aubevoye à moins de 10 minutes en voiture. L’autoroute A13 est accessible à 10 km.Elle est à vendre pour la somme de 172 500 €.Prenez contact avec notre agence (Gilles BOREAU : (Numéro supprimé)) pour obtenir de plus amples renseignements sur la maison.
L’actualité immobilière à Courcelles-sur-Seine
27/11/2023
02/11/2023
30/10/2023
20/10/2023
16/10/2023
16/10/2023