Maison à construire à Crestot (27110)
Images
Description
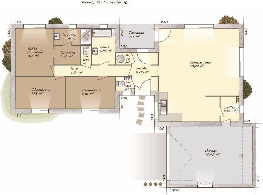
VENTE d'une maison T5 (120 m²) à Crestot
EMPLACEMENT PRIVILÉGIÉ -
Nous vous proposons cette maison de 5 pièces de plain-pied de 120 m² et de 1 800 m² de terrain bénéficiant d'un emplacement d'exception dans Crestot (27110).
Son intérieur est composé de trois chambres dont une suite parentale, d'une cuisine ouverte sur l'espace de vie et de deux salles de bains. La maison est neuve.
Elle est à vendre pour la somme de 346 522 €.
Prenez contact avec notre agence (Fanny GATINAULT : (Numéro supprimé)) pour toute question sur la propriété, sur les démarches à suivre ou sur les modalités de vente. Maisons Balency Louviers est là pour vous accompagner à toutes les étapes de l'achat.
Annonce proposée par un Agent Commercial Partenaire.
Logement susceptibles de vous intéresser
Nous vous proposons de découvrir aussi cette sélection de logements situés à moins de 10km de Crestot et qui seraient susceptibles de vous intéresser.
Saint-Pierre-lès-Elbeuf
TERRAINAccolé à la commune de SAINT PIERRE LES ELBEUF, sur la commune de MARTOT, dans un quartier résidentiel, terrain à bâtir prêt à accueillir votre future maison individuelle
Le Neubourg
TERRAINSur la commune du NEUBOURG, dans un quartier résidentiel, terrain à bâtir prêt à accueillir votre future maison individuelle
Saint-Pierre-lès-Elbeuf
TERRAIN ET MAISONVENTE d’une maison de 4 pièces (71 m²) accolée à Saint-Pierre-lès-ElbeufPROCHE DE ROUEN – MAISON 4 PIÈCES NEUVEEn vente : située à quelques kilomètres de Rouen, nous sommes ravis de vous proposer accolée à Saint-Pierre-lès-Elbeuf (76320), cette maison de 4 pièces de plain-pied de 71 m² et de 605 m² de terrain. Conçue de plain-pied, elle compte trois chambres, une cuisine et une salle de bains.Cette maison est neuve.Le Collège Jacques-Emile Blanche et le Groupe Scolaire Monod-Camus sont implantés à moins de 10 minutes à pied. Niveau transports, il y a quatre gares à moins de 10 minutes en voiture. Les autoroutes A13 et A139 et la nationale N138 sont accessibles à moins de 8 km. On trouve une bibliothèque, des commerces, quatre supermarchés, deux boulangeries, un bureau de poste et une boucherie-charcuterie à quelques minutes de la maison.Elle est à vendre pour la somme de 207 300 €.N’hésitez pas à prendre contact avec notre agence (MORIN Peter : (Numéro supprimé)) pour tout renseignement sur la maison. Faites de vos projets immobiliers une réalité avec Les Maisons Extraco Pont-de-l’Arche.
Saint-Pierre-lès-Elbeuf
TERRAIN ET MAISONMaison T5 (92 m²) en vente accolée à Saint-Pierre-lès-ElbeufPROCHE DE ROUEN – MAISON 5 PIÈCES NEUVEÀ vendre : à deux pas de Rouen, accolée à Saint-Pierre-lès-Elbeuf (76320), nous vous proposons cette maison de 5 pièces de plain-pied de 92 m² et de 605 m² de terrain.Conçue de plain-pied, elle inclut quatre chambres, une cuisine et une salle de bains. Cette maison est neuve.Il y a le Collège Jacques-Emile Blanche et le Groupe Scolaire Monod-Camus à moins de 10 minutes à pied. Niveau transports, on trouve quatre gares à moins de 10 minutes en voiture. Les autoroutes A13 et A139 et la nationale N138 sont accessibles à moins de 8 km. Il y a une bibliothèque, des commerces, quatre supermarchés, deux boulangeries, une boucherie-charcuterie et un bureau de poste à quelques minutes du logement.Elle est à vendre pour la somme de 241 300 €.Contactez notre agence (Peter MORIN : (Numéro supprimé)) pour tout renseignement sur la maison ou sur les modalités de vente. Les Maisons Extraco Pont-de-l’Arche vous accompagne à toutes les étapes de votre projet et dans tous vos projets immobiliers.
Saint-Pierre-lès-Elbeuf
TERRAIN ET MAISONVENTE : maison de 5 pièces (114 m²) accolée à Saint-Pierre-lès-ElbeufPROCHE DE ROUEN – MAISON 5 PIÈCES NEUVEÀ deux pas de Rouen, ayez le coup de coeur pour à vendre accolée à Saint-Pierre-lès-Elbeuf (76320), cette maison de 5 pièces de plain-pied de 114 m² et de 605 m² de terrain.Conçue de plain-pied, elle est composée de quatre chambres, d’une cuisine et d’une salle de bains. Cette maison est neuve.Le Collège Jacques-Emile Blanche et le Groupe Scolaire Monod-Camus se trouvent à moins de 10 minutes à pied. Côté transports en commun, il y a quatre gares à moins de 10 minutes en voiture. Les autoroutes A13 et A139 et la nationale N138 sont accessibles à moins de 8 km. On trouve une bibliothèque, des commerces, quatre supermarchés, deux boulangeries, un bureau de poste et une boucherie-charcuterie à proximité du logement.Son prix de vente est de 248 800 €.N’hésitez pas à prendre contact avec notre agence (MORIN Peter : (Numéro supprimé)) pour toute question sur la maison.
Le Neubourg
TERRAIN ET MAISONVENTE d’une maison de 4 pièces (84 m²) au NeubourgPROCHE D’ÉVREUX – MAISON 4 PIÈCES NEUVEÀ vendre : à deux pas d’Évreux, nous sommes heureux de vous proposer cette maison de 4 pièces de plain-pied de 84 m² au Neubourg (27110). Elle se divise en trois chambres, une cuisine et une salle de bains.Le terrain de la propriété s’étend sur 600 m².La maison est neuve.Il y a cinq établissements scolaires à moins de 10 minutes à pied. L’autoroute A28 et la nationale N13 sont accessibles à moins de 19 km. On trouve une bibliothèque, un tennis, un bassin de natation, un supermarché, des commerces, des boulangeries, quatre boucheries-charcuteries et quatre épiceries à proximité. Enfin, le marché Place du Chateau anime le quartier tous les mercredis matin.Elle est à vendre pour la somme de 200 400 €.N’hésitez pas à prendre contact avec Peter MORIN (tél : (Numéro supprimé)) pour toute information sur la maison, sur les démarches à suivre et sur les modalités de vente. Les Maisons Extraco Pont-de-l’Arche est là pour vous accompagner dans tous vos projets immobiliers.
Le Neubourg
TERRAIN ET MAISONMaison de 5 pièces (92 m²) à vendre au NeubourgPROCHE D’ÉVREUX – MAISON 5 PIÈCES NEUVEÀ quelques kilomètres d’Évreux, en vente au Neubourg (27110), laissez vous charmer par cette maison de 5 pièces de plain-pied de 92 m².Son intérieur comporte quatre chambres, une cuisine et une salle de bains. La maison est neuve.Le terrain du bien s’étend sur 600 m².Il y a cinq établissements scolaires à moins de 10 minutes à pied. L’autoroute A28 et la nationale N13 sont accessibles à moins de 19 km. On trouve une bibliothèque, un tennis, un bassin de natation, un supermarché, des commerces, des boulangeries, une poissonnerie et quatre boucheries-charcuteries à quelques minutes à peine. Ne manquez pas le marché Place du Chateau chaque mercredi matin.Elle est à vendre pour la somme de 211 400 €.Contactez Peter MORIN ((Numéro supprimé)) pour tout renseignement sur cette maison et sur les démarches à suivre.
Le Neubourg
TERRAIN ET MAISONLe Neubourg : maison de 4 pièces (93 m²) en venteMAISON 4 PIÈCES NEUVE – PROCHE D’ÉVREUXÀ vendre : à quelques kilomètres d’Évreux, au Neubourg (27110), votre agence Les Maisons Extraco Pont-de-l’Arche est heureuse de vous proposer cette maison de 4 pièces de plain-pied de 93 m².Elle propose trois chambres, une cuisine et une salle de bains. La maison est neuve.Le terrain du bien est de 600 m².Il y a cinq établissements scolaires à moins de 10 minutes à pied. L’autoroute A28 et la nationale N13 sont accessibles à moins de 19 km. On trouve une bibliothèque, un tennis, un bassin de natation, un supermarché, des commerces, des boulangeries, une poissonnerie et quatre boucheries-charcuteries à proximité. Ne manquez pas le marché Place du Chateau tous les mercredis matin.Elle est proposée à l’achat pour 199 400 €.Contactez Peter MORIN (tél : (Numéro supprimé)) pour tout renseignement sur la maison. Les Maisons Extraco Pont-de-l’Arche vous accompagne dans toutes vos démarches et dans tous vos projets immobiliers.
L’actualité immobilière à Crestot
27/11/2023
02/11/2023
30/10/2023
20/10/2023
16/10/2023
16/10/2023