Maison à construire à Criquebeuf-sur-Seine (27340)
Images
Description
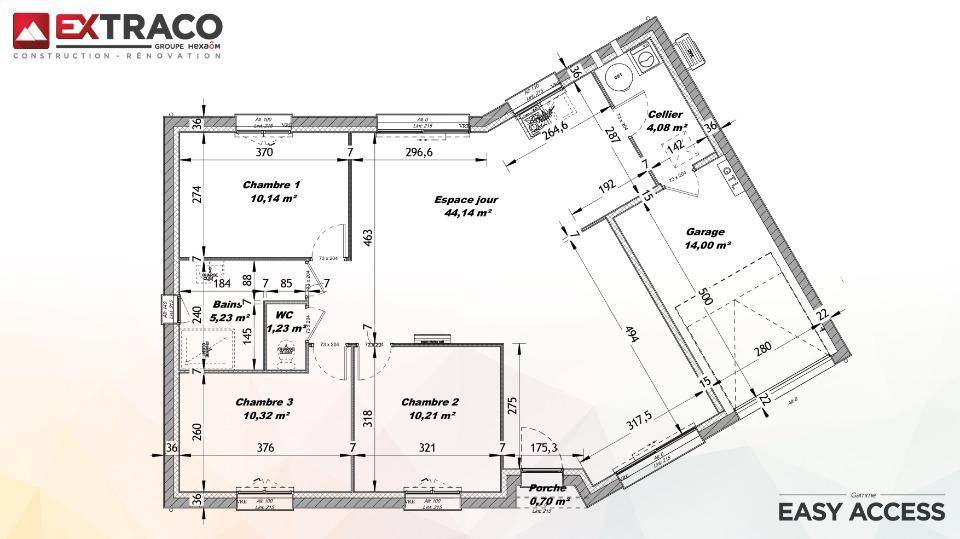
Proche Criquebeuf-sur-Seine : maison de 4 pièces (85 m²) à vendre sur la commune de Martot
Idéalement située - À Martot (27340), maison neuve à vendre de 4 pièces, 85 m² sur 604 m² de terrain. Elle compte trois chambres, une cuisine et une salle de bains.
Proche gares, École Primaire Simone Veil, boulangeries et boucherie-charcuterie. Autoroutes A13, A139 et A154 et nationale N138 à 10 km. Rouen à 17 km.
Cette maison de 4 pièces est proposée à l'achat pour 231 417 €.
N'hésitez pas à prendre contact avec notre agence (THOMAS Julien : (Numéro supprimé)) pour toute question sur la maison ou sur les modalités de vente. Les Maisons Extraco Pont-de-l'Arche vous accompagne à toutes les étapes de votre projet et dans toutes vos démarches.
Logement susceptibles de vous intéresser
Nous vous proposons de découvrir aussi cette sélection de logements situés à moins de 10km de Criquebeuf-sur-Seine et qui seraient susceptibles de vous intéresser.
Le Vaudreuil
TERRAIN ET MAISONMaison de 5 pièces (148 m²) en vente accolée au VaudreuilMAISON 5 PIÈCES NEUVE – PROCHE DE ROUENÀ vendre : à 22 km de Rouen, accolée au Vaudreuil (27100), votre agence Les Maisons Extraco Pont-de-l’Arche est heureuse de vous proposer cette maison de 5 pièces de 148 m². Son intérieur comporte quatre chambres, une cuisine et deux salles de bains.Le terrain de cette maison s’étend sur 2 090 m².C’est une maison de 2 niveaux. Elle est neuve.Il y a quatre établissements scolaires à moins de 10 minutes à pied et, comme l’École Maternelle les Tilleuls, le Collège Michel de Montaigne ou l’École Primaire Privée Saint Henri. Niveau transports en commun, on trouve les gares Val-de-Reuil, Saint-Pierre-du-Vauvray et Pont-de-l’Arche à moins de 10 minutes en voiture. Les autoroutes A13 et A154 et la nationale N154 sont accessibles à moins de 9 km. Il y a trois tennis, une bibliothèque, des commerces, une boulangerie, une boucherie-charcuterie, un bureau de poste et une épicerie dans les environs.Elle est proposée à l’achat pour 426 560 €.Prenez contact avec Peter MORIN (tél : (Numéro supprimé)) pour obtenir de plus amples renseignements sur la maison ou sur les démarches à suivre. Les Maisons Extraco Pont-de-l’Arche est là pour vous accompagner à toutes les étapes de l’achat.
Le Vaudreuil
TERRAIN ET MAISONMaison de 7 pièces (158 m²) en vente accolée au VaudreuilPROCHE DE ROUEN – MAISON 7 PIÈCES NEUVEÀ vendre : localisée à deux pas de Rouen, nous vous proposons cette maison de 7 pièces de 158 m² accolée au Vaudreuil (27100).Cette maison compte 2 niveaux. Elle offre quatre chambres, une cuisine et trois salles de bains. Cette maison est neuve.Le terrain de la propriété est de 2 090 m².Quatre établissements scolaires sont implantés à moins de 10 minutes à pied, tout comme dont l’École Maternelle les Tilleuls, le Collège Michel de Montaigne et l’École Primaire Privée Saint Henri. Niveau transports en commun, il y a les gares Val-de-Reuil, Saint-Pierre-du-Vauvray et Pont-de-l’Arche à moins de 10 minutes en voiture. Les autoroutes A13 et A154 et la nationale N154 sont accessibles à moins de 9 km. On trouve trois tennis, une bibliothèque, des commerces, une boulangerie, un bureau de poste, une épicerie et une boucherie-charcuterie à proximité du logement.Elle est à vendre pour la somme de 448 680 €.Contactez notre agence (MORIN Peter : (Numéro supprimé)) pour plus d’informations sur cette maison, sur les démarches à suivre et sur les modalités de vente. Concrétisez vos projets immobiliers avec Les Maisons Extraco Pont-de-l’Arche.
Elbeuf
TERRAIN ET MAISONVENTE : maison T5 (120 m²) à ElbeufMAISON 5 PIÈCES NEUVE – PROCHE DE ROUENÀ vendre à 19 km de Rouen, votre agence Maisons Balency Gravigny est ravie de vous proposer cette maison de 5 pièces de plain-pied de 120 m² à Elbeuf (76500). Elle inclut trois chambres, une cuisine et deux salles de bains.Le terrain de la maison s’étend sur 329 m².Cette maison est neuve.Des écoles du primaire et du secondaire sont implantées à moins de 10 minutes à pied, tout comme une crèche. Niveau transports, on trouve trois gares (Elbeuf-Saint-Aubin, Tourville-la-Rivière et Oissel) à moins de 10 minutes en voiture. Les autoroutes A13 et A139 et la nationale N138 sont accessibles à moins de 7 km. Il y a un tennis, un bassin de natation, des commerces, des boulangeries, deux supermarchés, des épiceries et deux bureaux de poste à proximité de la maison. Ne manquez pas le marché Place de la République chaque samedi matin.Son prix de vente est de 348 410 €.Prenez contact avec Karen DELELIS ((Numéro supprimé)) pour tout renseignement sur cette maison. Maisons Balency Gravigny est là pour vous accompagner dans tous vos projets immobiliers.Annonce proposée par un Agent Commercial Partenaire.
Les Damps
TERRAIN ET MAISONAccolée Les Damps : maison T4 (82 m²) en venteMAISON 4 PIÈCES NEUVE – PROCHE DE ROUENEn vente à deux pas de Rouen, accolée aux Damps (27340), notre agence Les Maisons Extraco Pont-de-l’Arche est ravie de vous proposer cette maison de 4 pièces de plain-pied de 82 m².Conçue de plain-pied, elle dispose de trois chambres, d’une cuisine et d’une salle de bains. Cette maison est neuve.Le terrain de la propriété est de 607 m².Il y a l’École Primaire Jules Verne à moins de 10 minutes à pied. Niveau transports en commun, on trouve six gares à moins de 10 minutes en voiture. Les autoroutes A13 et A154 sont accessibles à moins de 7 km. Il y a un supermarché à quelques minutes à peine.Elle est proposée à l’achat pour 223 900 €.N’hésitez pas à prendre contact avec Peter MORIN ((Numéro supprimé)) pour toute question sur la maison, sur les démarches à suivre ou sur les modalités de vente. Faites de vos projets immobiliers une réalité avec Les Maisons Extraco Pont-de-l’Arche.
Igoville
TERRAINVENTE : terrain de 546 m² à IgovilleEMPLACEMENT PRIVILÉGIÉ – PROCHE DE ROUENGrand terrain en vente à 14 km de Rouen. De 546 m², ce terrain se situe bénéficiant d’un emplacement d’exception dans Igoville (27460). Dans un secteur recherché, le terrain est proche des écoles et des commerces. Il y a des établissements scolaires maternelles et élémentaires dans le quartier. Côté transports en commun, on trouve cinq gares à moins de 10 minutes en voiture. Les autoroutes A13 et A154 sont accessibles à moins de 9 km. Il y a un tennis, un commerce, une boulangerie, un bureau de poste et une boucherie-charcuterie à proximité.Ce terrain est proposé à l’achat pour 92 500 €. N’hésitez pas à prendre contact avec notre agence (Julien THOMAS : (Numéro supprimé)) pour tout renseignement sur le terrain. Donnez vie à vos projets immobiliers avec Les Maisons Extraco Pont-de-l’Arche.
Criquebeuf-sur-Seine
TERRAIN ET MAISONProche Criquebeuf-sur-Seine : maison F5 (105 m²) à vendreIdéalement située – À découvrir à quelques minutes de Criquebeuf-sur-Seine (27340) : maison neuve 5 pièces à vendre, 2 niveaux, 105 m² de surface et 505 m² de terrain. Son intérieur offre quatre chambres, une cuisine et deux salles de bains.À proximité : gares, École Primaire Simone Veil, boulangeries et boucherie-charcuterie. Autoroutes A13, A139 et A154 et nationale N138 à 10 km. Rouen à 17 km.Cette maison de 5 pièces est à vendre pour la somme de 260 322 €.Contactez Julien THOMAS (tél : (Numéro supprimé)) pour obtenir de plus amples informations sur la maison ou sur les démarches à suivre. Les Maisons Extraco Pont-de-l’Arche est là pour vous accompagner dans tous vos projets immobiliers.
Igoville
TERRAINVENTE : terrain de 444 m² à IgovillePROCHE DE ROUENÀ Igoville (27460) en vente à quelques kilomètres de Rouen, projetez la maison de vos rêves sur ce terrain de 444 m². Des écoles maternelles et élémentaires sont implantées dans le quartier. Côté transports, il y a cinq gares à moins de 10 minutes en voiture. Les autoroutes A13 et A154 sont accessibles à moins de 9 km. On trouve un tennis, un commerce, une boulangerie, un bureau de poste et une boucherie-charcuterie à quelques minutes à peine.Il est à vendre pour la somme de 92 000 €. Prenez contact avec notre agence (Karen DELELIS : (Numéro supprimé)) pour plus d’informations sur le terrain. Maisons Balency Gravigny est là pour vous accompagner à toutes les étapes de votre projet.Annonce proposée par un Agent Commercial Partenaire.
Les Damps
TERRAIN ET MAISONaccolée Les Damps : maison T4 (85 m²) à vendrePROCHE DE ROUEN – MAISON 4 PIÈCES NEUVEEn vente à quelques kilomètres de Rouen, nous sommes ravis de vous présenter accolée aux Damps (27340), cette maison de 4 pièces de plain-pied de 85 m². Son intérieur inclut trois chambres, une cuisine et une salle de bains.Le terrain du bien est de 607 m².La maison est neuve.Il y a l’École Primaire Jules Verne à moins de 10 minutes à pied. Niveau transports en commun, on trouve six gares à moins de 10 minutes en voiture. Les autoroutes A13 et A154 sont accessibles à moins de 7 km. Il y a un supermarché à quelques minutes de la maison.Son prix de vente est de 244 910 €.Prenez contact avec Peter MORIN ((Numéro supprimé)) pour plus d’informations sur le bien ou sur les modalités de vente. Les Maisons Extraco Pont-de-l’Arche est là pour vous accompagner dans tous vos projets immobiliers.
Igoville
TERRAIN ET MAISONMaison de 5 pièces (120 m²) en vente à IgovilleMAISON 5 PIÈCES NEUVE – PROCHE DE ROUENEn vente à quelques kilomètres de Rouen, nous vous présentons cette maison de 5 pièces de plain-pied de 120 m² et de 444 m² de terrain à Igoville (27460).Elle offre trois chambres, une cuisine et deux salles de bains. La maison est neuve.Des écoles maternelles et élémentaires sont implantées dans le quartier. Niveau transports, il y a cinq gares à moins de 10 minutes en voiture. Les autoroutes A13 et A154 sont accessibles à moins de 9 km. On trouve un tennis, un commerce, une boulangerie, une boucherie-charcuterie et un bureau de poste à proximité.Elle est à vendre pour la somme de 363 410 €.Prenez contact avec notre agence (DELELIS Karen : (Numéro supprimé)) pour toute question sur la maison, sur les démarches à suivre ou sur les modalités de vente.Annonce proposée par un Agent Commercial Partenaire.
L’actualité immobilière à Criquebeuf-sur-Seine
27/11/2023
02/11/2023
30/10/2023
20/10/2023
16/10/2023
16/10/2023