Maison à construire à Crosville-la-Vieille (27110)
Images
Description
Crosville-la-Vieille : maison F6 (89 m²) en vente
MAISON 6 PIÈCES NEUVE - PROCHE D'ÉVREUX
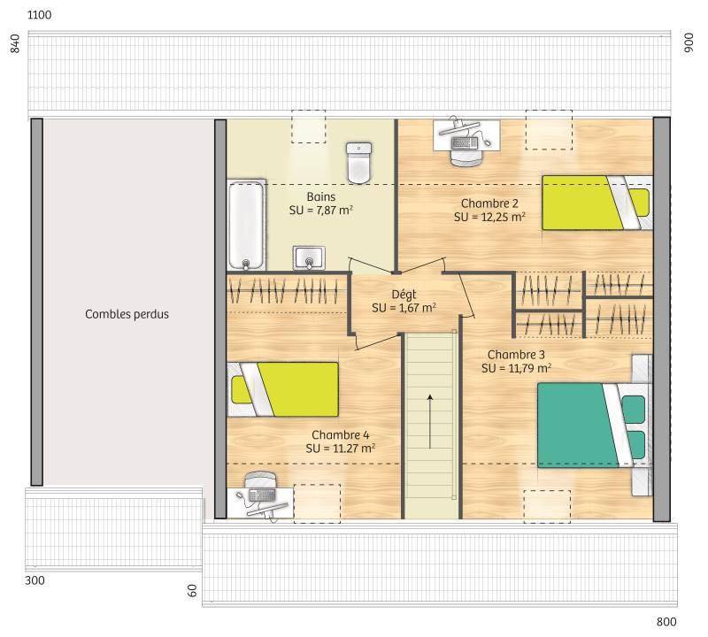
Maison au style contemporain qui offre quatre chambres, dont une au RDC. A l'étage, les 3 autres chambres accompagnées d'une salle de bain et de WC. Lorsque vous entrez dans la grande pièce de vie ouverte, vous découvrez sur un grand séjour lumineux avec ses baies coulissantes en alu, une cuisine donnant sur la salle a manger et un cellier en arrière cuisine. Cette construction dispose de prestations de qualité ; chauffage par pompe a chaleur, répondant aux normes RE2020 en vigueurs, menuiseries alu laquées ou en PVC avec volets roulant électriques, domotique et centralisation, carrelage design dans la gamme constructeur, choix des portes intérieures, des appuis de fenêtres, couverture en terre cuite ou en ardoise...
Les finitions de ce modèle seront une véritable source de fierté.
N'hésitez pas à prendre contact avec Karen GOHIER ((Numéro supprimé)) pour toute information sur la maison, sur les démarches à suivre ou sur les modalités de vente. Donnez vie à vos projets immobiliers avec Maisons Balency Louviers.
Annonce proposée par un Agent Commercial Partenaire.
Logement susceptibles de vous intéresser
Nous vous proposons de découvrir aussi cette sélection de logements situés à moins de 10km de Crosville-la-Vieille et qui seraient susceptibles de vous intéresser.
Le Neubourg
TERRAINSur la commune du NEUBOURG, dans un quartier résidentiel, terrain à bâtir prêt à accueillir votre future maison individuelle
Le Neubourg
TERRAIN ET MAISONVENTE d’une maison de 4 pièces (84 m²) au NeubourgPROCHE D’ÉVREUX – MAISON 4 PIÈCES NEUVEÀ vendre : à deux pas d’Évreux, nous sommes heureux de vous proposer cette maison de 4 pièces de plain-pied de 84 m² au Neubourg (27110). Elle se divise en trois chambres, une cuisine et une salle de bains.Le terrain de la propriété s’étend sur 600 m².La maison est neuve.Il y a cinq établissements scolaires à moins de 10 minutes à pied. L’autoroute A28 et la nationale N13 sont accessibles à moins de 19 km. On trouve une bibliothèque, un tennis, un bassin de natation, un supermarché, des commerces, des boulangeries, quatre boucheries-charcuteries et quatre épiceries à proximité. Enfin, le marché Place du Chateau anime le quartier tous les mercredis matin.Elle est à vendre pour la somme de 200 400 €.N’hésitez pas à prendre contact avec Peter MORIN (tél : (Numéro supprimé)) pour toute information sur la maison, sur les démarches à suivre et sur les modalités de vente. Les Maisons Extraco Pont-de-l’Arche est là pour vous accompagner dans tous vos projets immobiliers.
Le Neubourg
TERRAIN ET MAISONMaison de 5 pièces (92 m²) à vendre au NeubourgPROCHE D’ÉVREUX – MAISON 5 PIÈCES NEUVEÀ quelques kilomètres d’Évreux, en vente au Neubourg (27110), laissez vous charmer par cette maison de 5 pièces de plain-pied de 92 m².Son intérieur comporte quatre chambres, une cuisine et une salle de bains. La maison est neuve.Le terrain du bien s’étend sur 600 m².Il y a cinq établissements scolaires à moins de 10 minutes à pied. L’autoroute A28 et la nationale N13 sont accessibles à moins de 19 km. On trouve une bibliothèque, un tennis, un bassin de natation, un supermarché, des commerces, des boulangeries, une poissonnerie et quatre boucheries-charcuteries à quelques minutes à peine. Ne manquez pas le marché Place du Chateau chaque mercredi matin.Elle est à vendre pour la somme de 211 400 €.Contactez Peter MORIN ((Numéro supprimé)) pour tout renseignement sur cette maison et sur les démarches à suivre.
Le Neubourg
TERRAIN ET MAISONLe Neubourg : maison de 4 pièces (93 m²) en venteMAISON 4 PIÈCES NEUVE – PROCHE D’ÉVREUXÀ vendre : à quelques kilomètres d’Évreux, au Neubourg (27110), votre agence Les Maisons Extraco Pont-de-l’Arche est heureuse de vous proposer cette maison de 4 pièces de plain-pied de 93 m².Elle propose trois chambres, une cuisine et une salle de bains. La maison est neuve.Le terrain du bien est de 600 m².Il y a cinq établissements scolaires à moins de 10 minutes à pied. L’autoroute A28 et la nationale N13 sont accessibles à moins de 19 km. On trouve une bibliothèque, un tennis, un bassin de natation, un supermarché, des commerces, des boulangeries, une poissonnerie et quatre boucheries-charcuteries à proximité. Ne manquez pas le marché Place du Chateau tous les mercredis matin.Elle est proposée à l’achat pour 199 400 €.Contactez Peter MORIN (tél : (Numéro supprimé)) pour tout renseignement sur la maison. Les Maisons Extraco Pont-de-l’Arche vous accompagne dans toutes vos démarches et dans tous vos projets immobiliers.
Le Neubourg
TERRAINSur la commune du NEUBOURG, dans un quartier résidentiel, terrain à bâtir prêt à accueillir votre future maison individuelle
Le Neubourg
TERRAIN ET MAISONVENTE d’une maison de 4 pièces (109 m²) au NeubourgPROCHE D’ÉVREUX – MAISON 4 PIÈCES NEUVEÀ 23 km d’Évreux, votre agence Les Maisons Extraco Pont-de-l’Arche est heureuse de vous présenter cette maison de 4 pièces de plain-pied de 109 m² à vendre au Neubourg (27110).Son intérieur est composé de trois chambres, d’une cuisine et de deux salles de bains. Cette maison est neuve.Le terrain du bien s’étend sur 702 m².Cinq établissements scolaires sont implantés à moins de 10 minutes à pied. L’autoroute A28 et la nationale N13 sont accessibles à moins de 19 km. Il y a une bibliothèque, un tennis, un bassin de natation, un supermarché, des commerces, des boulangeries, une supérette et quatre épiceries à proximité. Enfin, le marché Place du Chateau a lieu tous les mercredis matin.Son prix de vente est de 264 800 €.Contactez Peter MORIN ((Numéro supprimé)) pour toute question sur la maison. Les Maisons Extraco Pont-de-l’Arche vous accompagne à toutes les étapes de l’achat et dans toutes vos démarches.
Le Neubourg
TERRAIN ET MAISONLe Neubourg : maison F4 (129 m²) à vendreMAISON 4 PIÈCES NEUVE – PROCHE D’ÉVREUXÀ quelques kilomètres d’Évreux, nous vous présentons à vendre au Neubourg (27110), cette maison de 4 pièces de plain-pied de 129 m² et de 702 m² de terrain.Son intérieur inclut trois chambres, une cuisine et une salle de bains. Cette maison est neuve.Cinq établissements scolaires sont implantés à moins de 10 minutes à pied. L’autoroute A28 et la nationale N13 sont accessibles à moins de 19 km. On trouve une bibliothèque, un tennis, un bassin de natation, un supermarché, des commerces, des boulangeries, une supérette et quatre épiceries dans les environs. Enfin, le marché Place du Chateau anime les environs tous les mercredis matin.Elle est proposée à l’achat pour 333 700 €.Contactez Peter MORIN ((Numéro supprimé)) pour tout renseignement sur la propriété. Les Maisons Extraco Pont-de-l’Arche vous accompagne dans tous vos projets immobiliers et à toutes les étapes de votre projet.
Le Neubourg
TERRAIN ET MAISONLe Neubourg : maison de 4 pièces (137 m²) à vendrePROCHE D’ÉVREUX – MAISON 4 PIÈCES NEUVEEn vente à quelques kilomètres d’Évreux, nous vous proposons cette maison de 4 pièces de plain-pied de 137 m² au Neubourg (27110). Conçue de plain-pied, elle offre trois chambres, une cuisine et deux salles de bains.Le terrain du bien est de 702 m².La maison est neuve.Il y a cinq établissements scolaires à moins de 10 minutes à pied. L’autoroute A28 et la nationale N13 sont accessibles à moins de 19 km. On trouve une bibliothèque, un tennis, un bassin de natation, un supermarché, des commerces, des boulangeries, quatre épiceries et une poissonnerie à quelques minutes à peine. Enfin, le marché Place du Chateau a lieu tous les mercredis matin.Elle est proposée à l’achat pour 348 000 €.Contactez Peter MORIN ((Numéro supprimé)) pour tout renseignement sur la maison. Les Maisons Extraco Pont-de-l’Arche vous accompagne dans toutes vos démarches et à toutes les étapes de votre projet.
Crestot
TERRAINVENTE d’un terrain de 1 339 m² à CrestotIDÉALEMENT SITUÉ – VUE DÉGAGÉEÀ Crestot (27110) en vente à 28 km de Rouen, découvrez ce terrain de 1 339 m². Il profite d’une vue dégagée. Il se trouve dans un quartier convoité. Des autoroutes et les nationales N154 et N138 sont accessibles à moins de 17 km. Il y a un commerce à proximité de la propriété.Son prix de vente est de 37 000 €. Contactez notre agence (THOMAS Julien : (Numéro supprimé)) pour plus d’informations sur le terrain et sur les démarches à suivre.
L’actualité immobilière à Crosville-la-Vieille
27/11/2023
02/11/2023
30/10/2023
20/10/2023
16/10/2023
16/10/2023