Maison à construire à Émalleville (27930)
Images
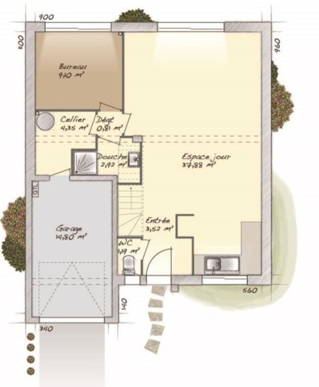
Description
VENTE : maison F6 (128 m²) à Émalleville
PROCHE D'ÉVREUX - MAISON 6 PIÈCES NEUVE
À vendre : à quelques kilomètres d'Évreux, nous sommes ravis de vous proposer cette maison de 6 pièces de 128 m² et de 732 m² de terrain à Émalleville (27930).
C'est une maison de 2 niveaux. Elle comporte quatre chambres, une cuisine et deux salles de bains. Cette maison est neuve.
Une école maternelle est implantée dans le quartier. Côté transports, il y a la gare Évreux Normandie à moins de 10 minutes en voiture. L'autoroute A154 et les nationales N154 et N13 sont accessibles à moins de 10 km.
Son prix de vente est de 278 981 €.
N'hésitez pas à prendre contact avec notre agence (DELELIS Karen : (Numéro supprimé)) pour tout renseignement sur la maison. Donnez vie à vos projets immobiliers avec Maisons Balency Gravigny.
Annonce proposée par un Agent Commercial Partenaire.
Logement susceptibles de vous intéresser
Nous vous proposons de découvrir aussi cette sélection de logements situés à moins de 10km de Émalleville et qui seraient susceptibles de vous intéresser.
Évreux
TERRAIN ET MAISONVENTE : maison F6 (120 m²) à ÉvreuxEMPLACEMENT PRIVILÉGIÉ – MAISON 6 PIÈCES NEUVENous sommes ravis de vous proposer cette maison de 6 pièces de 120 m² et de 512 m² de terrain en vente bénéficiant d’un emplacement d’exception dans Évreux (27000). Son intérieur compte quatre chambres, une cuisine et deux salles de bains.Il s’agit d’une maison de 2 niveaux. Elle est neuve.Cette maison est située dans un secteur attractif. Il y a plusieurs écoles (maternelle, élémentaire, primaire et collège) à moins de 10 minutes à pied, tout comme deux structures d’accueil pour la petite enfance. Côté transports en commun, on trouve la gare Évreux Normandie à quelques pas de la maison. Les nationales N13 et N154 sont accessibles à moins de 4 km. Il y a une bibliothèque, un bowling, des commerces, des boulangeries, un supermarché, une poissonnerie et deux supérettes à proximité de la maison. Enfin, 2 marchés animent les environs.Son prix de vente est de 267 800 €.Contactez notre agence (Oumayma SONMEZ : (Numéro supprimé)) pour toute question sur la maison.
Fauville
TERRAIN ET MAISONVENTE d’une maison F4 (84 m²) à FauvilleIDÉALEMENT SITUÉE – MAISON 4 PIÈCES NEUVEÀ vendre à quelques kilomètres d’Évreux, idéalement située dans Fauville (27930), Les Maisons Extraco Gravigny vous propose cette maison de 4 pièces de plain-pied de 84 m² et de 1 106 m² de terrain.Son intérieur inclut trois chambres, une cuisine et une salle de bains. La maison est neuve.Cette maison se situe dans un secteur attractif. Le lycée École de Production Education et Formation Usin’eure est implanté à moins de 10 minutes à pied. Côté transports en commun, on trouve la gare Évreux Normandie à moins de 10 minutes en voiture. La nationale N154 est accessible à 1 km.Elle est proposée à l’achat pour 210 200 €.N’hésitez pas à prendre contact avec notre agence (Oumayma SONMEZ : (Numéro supprimé)) pour plus d’informations sur la maison, sur les modalités de vente ou sur les démarches à suivre.
Fauville
TERRAIN ET MAISONVENTE : maison de 5 pièces (100 m²) à FauvilleIDÉALEMENT SITUÉE – MAISON 5 PIÈCES NEUVEÀ vendre : à deux pas d’Évreux, Les Maisons Extraco Gravigny vous propose cette maison de 5 pièces de 100 m² et de 1 106 m² de terrain idéalement située dans Fauville (27930). Elle comporte quatre chambres, une cuisine et une salle de bains.Cette maison compte 2 niveaux. Elle est neuve.Cette maison se situe dans un quartier attractif. Le lycée École de Production Education et Formation Usin’eure est implanté à moins de 10 minutes à pied. Niveau transports, il y a la gare Évreux Normandie à moins de 10 minutes en voiture. La nationale N154 est accessible à 1 km.Son prix de vente est de 234 400 €.Contactez Oumayma SONMEZ (tél : (Numéro supprimé)) pour obtenir de plus amples renseignements sur la maison ou sur les démarches à suivre.
Sacquenville
TERRAINVENTE d’un terrain de 825 m² à SacquenvilleEMPLACEMENT PRIVILÉGIÉ – VUE PANORAMIQUEÀ Sacquenville (27930) à deux pas d’Évreux, découvrez ce terrain de 825 m². Ce terrain, avec une exposition sud-ouest, profite d’une vue panoramique. Dans un quartier convoité, le terrain bénéficiant d’un emplacement privilégié est proche des commerces et des écoles. Il y a une école primaire dans le quartier. Niveau transports en commun, on trouve la gare Évreux Normandie à moins de 10 minutes en voiture. Les nationales N13 et N154 sont accessibles à moins de 8 km. Il y a deux épiceries à quelques minutes du bien.Ce terrain est proposé à l’achat pour 55 000 €. Contactez Oumayma SONMEZ (tél : (Numéro supprimé)) pour obtenir de plus amples informations sur le terrain, sur les démarches à suivre ou sur les modalités de vente. Les Maisons Extraco Gravigny est là pour vous accompagner dans tous vos projets immobiliers.
Évreux
TERRAIN ET MAISONVENTE d’une maison de 4 pièces (85 m²) à ÉvreuxEMPLACEMENT PRIVILÉGIÉ – MAISON 4 PIÈCES NEUVENous sommes ravis de vous proposer cette maison de 4 pièces de plain-pied de 85 m² et de 512 m² de terrain bénéficiant d’un emplacement privilégié dans Évreux (27000). Conçue de plain-pied, elle propose trois chambres, une cuisine et une salle de bains.La maison est neuve.Cette maison se trouve dans un secteur prisé. Il y a plusieurs établissements scolaires (maternelle, élémentaire, primaire et collège) à moins de 10 minutes à pied, tout comme deux structures d’accueil pour les tout-petits. Niveau transports en commun, on trouve la gare Évreux Normandie dans les alentours. Les nationales N13 et N154 sont accessibles à moins de 4 km. Il y a une bibliothèque, un bowling, des commerces, des boulangeries, un supermarché, des boucheries-charcuteries et deux supérettes à quelques minutes de la maison. Enfin, 2 marchés animent le quartier.Elle est à vendre pour la somme de 202 600 €.Contactez notre agence (Oumayma SONMEZ : (Numéro supprimé)) pour tout renseignement sur la propriété ou sur les démarches à suivre. Concrétisez vos projets immobiliers avec Les Maisons Extraco Gravigny.
Sacquenville
TERRAIN ET MAISONMaison T4 (112 m²) en vente à SacquenvilleEMPLACEMENT PRIVILÉGIÉ – MAISON 4 PIÈCES NEUVEEn vente : à 9 km d’Évreux, Les Maisons Extraco Gravigny vous présente, bénéficiant d’un emplacement d’exception dans Sacquenville (27930), cette maison de 4 pièces de 112 m². Son intérieur est composé de quatre chambres, d’une cuisine et de deux salles de bains.Le terrain de la propriété est de 825 m².C’est une maison de 2 niveaux. Elle est neuve.Cette maison se trouve dans un quartier recherché. Une école primaire y est implantée. Côté transports, il y a la gare Évreux Normandie à moins de 10 minutes en voiture. Les nationales N13 et N154 sont accessibles à moins de 8 km. On trouve deux épiceries à proximité de la maison.Elle est proposée à l’achat pour 259 600 €.Prenez contact avec Oumayma SONMEZ ((Numéro supprimé)) pour tout renseignement sur la maison, sur les démarches à suivre ou sur les modalités de vente. Concrétisez vos projets immobiliers avec Les Maisons Extraco Gravigny.
Sacquenville
TERRAIN ET MAISONVENTE d’une maison de 4 pièces (88 m²) à SacquenvilleEMPLACEMENT PRIVILÉGIÉ – MAISON 4 PIÈCES NEUVEEn vente : localisée à quelques kilomètres d’Évreux, bénéficiant d’un emplacement d’exception dans Sacquenville (27930), nous sommes ravis de vous proposer cette maison de 4 pièces de 88 m² et de 825 m² de terrain.C’est une maison de 2 niveaux. Son intérieur compte trois chambres, une cuisine et une salle de bains. Cette maison est neuve.La maison se situe dans un quartier attractif. On y trouve une école primaire. Côté transports, on trouve la gare Évreux Normandie à moins de 10 minutes en voiture. Les nationales N13 et N154 sont accessibles à moins de 8 km. Il y a deux épiceries à proximité.Son prix de vente est de 207 700 €.Prenez contact avec Oumayma SONMEZ (tél : (Numéro supprimé)) pour toute question sur la propriété ou sur les modalités de vente. Les Maisons Extraco Gravigny est là pour vous accompagner à toutes les étapes de votre projet.
Évreux
TERRAIN ET MAISONMaison F5 (114 m²) en vente à ÉvreuxMAISON 5 PIÈCES NEUVEÀ vendre à Évreux (27000), Les Maisons Extraco Gravigny vous propose cette maison de 5 pièces de plain-pied de 114 m² et de 869 m² de terrain. Elle offre quatre chambres, une cuisine ouverte sur le séjour et une salle de bains.Cette maison est neuve.Il y a plusieurs écoles (maternelle, élémentaire, primaire et collège) à moins de 10 minutes à pied, tout comme deux crèches. Niveau transports, on trouve la gare Évreux Normandie à proximité. Les nationales N13 et N154 sont accessibles à moins de 4 km. Il y a une bibliothèque, un bowling, des commerces, des boulangeries, un supermarché, une poissonnerie et un bureau de poste à quelques minutes du logement. Enfin, 2 marchés animent les environs.Son prix de vente est de 299 000 €.Prenez contact avec notre agence (KTARI Aurélie : (Numéro supprimé)) pour plus de renseignements sur le bien.
Évreux
TERRAINÉvreux : terrain de 512 m² en venteEMPLACEMENT PRIVILÉGIÉ – VUE SANS VIS-À-VISÀ Évreux (27000) bénéficiant d’un emplacement d’exception, projetez la maison de vos rêves sur ce terrain de 512 m². Ce terrain, orienté plein sud-ouest, profite d’une vue sans vis-à-vis. Dans un quartier convoité, le terrain est proche des commerces et des écoles. Plusieurs écoles (maternelle, élémentaire, primaire et collège) sont implantées à moins de 10 minutes à pied, tout comme deux crèches. Niveau transports, on trouve la gare Évreux Normandie à quelques pas du bien. Les nationales N13 et N154 sont accessibles à moins de 4 km. Il y a une bibliothèque, un bowling, des commerces, des boulangeries, un supermarché, des boucheries-charcuteries et deux supérettes à quelques minutes. Enfin, 2 marchés animent le quartier.Ce terrain est proposé à l’achat pour 49 900 €. N’hésitez pas à prendre contact avec Oumayma SONMEZ (tél : (Numéro supprimé)) pour plus de renseignements sur le terrain ou sur les modalités de vente. Les Maisons Extraco Gravigny est là pour vous accompagner dans tous vos projets immobiliers.
L’actualité immobilière à Émalleville
27/11/2023
02/11/2023
30/10/2023
20/10/2023
16/10/2023
16/10/2023