Maison à construire à Évreux (27000)
Images
Description
VENTE d'une maison de 4 pièces (71 m²) à Guichainville
MAISON 4 PIÈCES NEUVE - PROCHE D'ÉVREUX
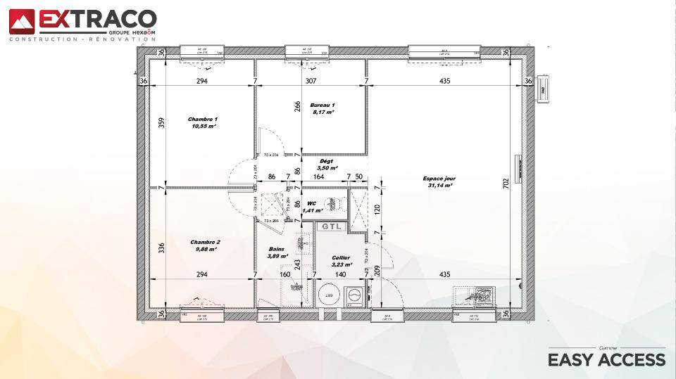
En vente : à deux pas d'Évreux, Les Maisons Extraco Gravigny vous présente à Guichainville (27930), cette maison de 4 pièces de plain-pied de 71 m² et de 404 m² de terrain.
Son intérieur inclut deux chambres, une cuisine ouverte sur le séjour et une salle de bains. La maison est neuve.
Des écoles primaires sont implantées dans le quartier. Niveau transports, il y a la gare Évreux Normandie à moins de 10 minutes en voiture. Les nationales N13 et N154 sont accessibles à moins de 3 km. On trouve un tennis, plusieurs commerces et une boulangerie à quelques minutes de la maison.
Elle est proposée à l'achat pour 182 900 €.
Contactez Aurélie KTARI (tél : (Numéro supprimé)) pour tout renseignement sur la propriété, sur les démarches à suivre ou sur les modalités de vente.
Logement susceptibles de vous intéresser
Nous vous proposons de découvrir aussi cette sélection de logements situés à moins de 10km de Évreux et qui seraient susceptibles de vous intéresser.
Tourneville
TERRAINVENTE : terrain de 1 300 m² à SacquenvilleIDÉALEMENT SITUÉ -À Sacquenville (27930) à quelques kilomètres d’Évreux, venez découvrir ce terrain de 1 300 m². Ce terrain, orienté à l’ouest, donne sur un jardin. Il se situe dans un environnement calme hors lotissement. Ce terrain est proposé à l’achat pour 52 000 €. Contactez notre agence (GATINAULT Fanny : (Numéro supprimé)) pour plus de renseignements sur ce terrain, sur les démarches à suivre et sur les modalités de vente. Maisons Balency Louviers vous accompagne dans tous vos projets immobiliers et à toutes les étapes de l’achat.Annonce proposée par un Agent Commercial Partenaire.
Grossœuvre
TERRAINVENTE : terrain de 1 025 m² à Bois-le-RoiEMPLACEMENT PRIVILÉGIÉ – VUE DÉGAGÉEGrand terrain à quelques kilomètres d’Évreux. De 1 025 m², ce terrain se situe bénéficiant d’un emplacement privilégié dans Bois-le-Roi (27220). Il profite d’une vue dégagée. Ce terrain se situe dans un quartier recherché. On y trouve une école primaire. Côté transports, il y a la gare Bueil à moins de 10 minutes en voiture. Les nationales N154, N12 et N13 sont accessibles à moins de 17 km. On trouve deux tennis, une boulangerie et un bureau de poste à proximité du terrain.Son prix de vente est de 50 000 €. Prenez contact avec notre agence (COURTONNE Romain : (Numéro supprimé)) pour tout renseignement sur ce terrain et sur les modalités de vente. Concrétisez vos projets immobiliers avec Maisons France Confort Gravigny.Annonce proposée par un Agent Commercial Partenaire.
Saint-Sébastien-de-Morsent
TERRAINTerrain de 785 m² à vendre à Saint-Sébastien-de-MorsentEMPLACEMENT PRIVILÉGIÉ – VUE PANORAMIQUEÀ Saint-Sébastien-de-Morsent (27180) à 5 km d’Évreux, donnez vie à votre résidence principale ou secondaire sur ce terrain de 785 m². Ce terrain, exposé sud-ouest, profite d’une vue panoramique. Dans un secteur attractif, ce terrain bénéficiant d’un emplacement privilégié est proche des commerces et des écoles. L’École Primaire Marie Laurencin, l’École Maternelle le Forestier et l’École Élémentaire le Forestier sont implantées à moins de 10 minutes à pied. Côté transports en commun, on trouve les gares La Bonneville-sur-Iton et Évreux Normandie à moins de 10 minutes en voiture. Les nationales N13 et N154 sont accessibles à moins de 8 km. Il y a deux tennis, deux boulangeries, trois commerces, un supermarché, un bureau de poste et une boucherie-charcuterie à quelques minutes à peine.Ce terrain est proposé à l’achat pour 84 000 €. Prenez contact avec notre agence (Oumayma SONMEZ : (Numéro supprimé)) pour toute information sur le terrain ou sur les modalités de vente. Les Maisons Extraco Gravigny est là pour vous accompagner dans tous vos projets immobiliers.
Cierrey
TERRAINCierrey : terrain de 1 425 m² en ventePROCHE GARE – VUE PANORAMIQUEGrand terrain à quelques kilomètres d’Évreux. De 1 425 m², ce terrain se situe proche de la gare de Cierrey (27930). Il profite d’une vue panoramique et bénéficie d’une exposition sud-ouest. Ce terrain est proche des écoles et des commerces. Une école primaire est implantée dans le quartier. Niveau transports, il y a la gare Évreux Normandie à moins de 10 minutes en voiture. Les nationales N13 et N154 sont accessibles à moins de 5 km.Il est à vendre pour la somme de 77 000 €. Contactez notre agence (SONMEZ Oumayma : (Numéro supprimé)) pour tout renseignement sur ce terrain ou sur les modalités de vente. Faites de vos projets immobiliers une réalité avec Les Maisons Extraco Gravigny.
Aviron
TERRAINAviron : terrain de 2 948 m² à vendreIDÉALEMENT SITUÉ – VUE SANS VIS-À-VISÀ deux pas d’Évreux à Aviron (27930), grand terrain. Ce terrain, sans vis-à-vis, est orienté plein sud. Dans un secteur convoité, le terrain idéalement situé est proche des commerces et des écoles. Une école primaire est implantée dans le quartier. Côté transports en commun, il y a les gares Évreux Normandie et La Bonneville-sur-Iton à moins de 10 minutes en voiture. Les nationales N13 et N154 sont accessibles à moins de 4 km.Ce terrain est à vendre pour la somme de 123 000 €. Prenez contact avec Oumayma SONMEZ ((Numéro supprimé)) pour obtenir de plus amples renseignements sur le terrain ou sur les modalités de vente. Les Maisons Extraco Gravigny vous accompagne dans toutes vos démarches et dans tous vos projets immobiliers.
Saint-Sébastien-de-Morsent
TERRAIN ET MAISONVENTE d’une maison F4 (74 m²) à Saint-Sébastien-de-MorsentEMPLACEMENT PRIVILÉGIÉ – MAISON 4 PIÈCES NEUVEÀ deux pas d’Évreux, notre agence Les Maisons Extraco Gravigny est heureuse de vous proposer cette maison de 4 pièces de plain-pied de 74 m² et de 785 m² de terrain en vente, bénéficiant d’un emplacement d’exception dans Saint-Sébastien-de-Morsent (27180).Elle compte trois chambres, une cuisine et une salle de bains. La maison est neuve.Cette maison se trouve dans un quartier attractif. Il y a l’École Primaire Marie Laurencin, l’École Maternelle le Forestier et l’École Élémentaire le Forestier à moins de 10 minutes à pied. Niveau transports en commun, on trouve les gares La Bonneville-sur-Iton et Évreux Normandie à moins de 10 minutes en voiture. Les nationales N13 et N154 sont accessibles à moins de 8 km. Il y a deux tennis, deux boulangeries, trois commerces, un supermarché, une boucherie-charcuterie et un bureau de poste dans les environs.Elle est proposée à l’achat pour 224 800 €.Contactez Oumayma SONMEZ ((Numéro supprimé)) pour tout renseignement sur la maison, sur les modalités de vente ou sur les démarches à suivre.
Saint-Sébastien-de-Morsent
TERRAIN ET MAISONVENTE d’une maison de 4 pièces (85 m²) à Saint-Sébastien-de-MorsentEMPLACEMENT PRIVILÉGIÉ – MAISON 4 PIÈCES NEUVEÀ vendre : localisée à quelques kilomètres d’Évreux, nous sommes ravis de vous proposer cette maison de 4 pièces de plain-pied de 85 m², bénéficiant d’un emplacement d’exception dans Saint-Sébastien-de-Morsent (27180).Son intérieur se divise en trois chambres, une cuisine et une salle de bains. Cette maison est neuve.Le terrain du bien est de 785 m².La maison se trouve dans un quartier recherché. L’École Primaire Marie Laurencin, l’École Maternelle le Forestier et l’École Élémentaire le Forestier sont implantées à moins de 10 minutes à pied. Niveau transports, il y a les gares La Bonneville-sur-Iton et Évreux Normandie à moins de 10 minutes en voiture. Les nationales N13 et N154 sont accessibles à moins de 8 km. On trouve deux tennis, deux boulangeries, trois commerces, un supermarché, un bureau de poste et une boucherie-charcuterie dans les environs.Elle est à vendre pour la somme de 230 000 €.Contactez Oumayma SONMEZ ((Numéro supprimé)) pour plus d’informations sur la maison. Faites de vos projets immobiliers une réalité avec Les Maisons Extraco Gravigny.
Saint-Sébastien-de-Morsent
TERRAIN ET MAISONMaison de 4 pièces (81 m²) à vendre à Saint-Sébastien-de-MorsentEMPLACEMENT PRIVILÉGIÉ – MAISON 4 PIÈCES NEUVEÀ vendre : localisée à 5 km d’Évreux, Les Maisons Extraco Gravigny vous propose cette maison de 4 pièces de 81 m² et de 785 m² de terrain bénéficiant d’un emplacement privilégié dans Saint-Sébastien-de-Morsent (27180). Son intérieur comporte deux chambres, une cuisine et une salle de bains.Cette maison possède 2 niveaux. Elle est neuve.La maison se situe dans un secteur convoité. Il y a l’École Primaire Marie Laurencin, l’École Maternelle le Forestier et l’École Élémentaire le Forestier à moins de 10 minutes à pied. Côté transports en commun, on trouve deux gares (La Bonneville-sur-Iton et Évreux Normandie) à moins de 10 minutes en voiture. Les nationales N13 et N154 sont accessibles à moins de 8 km. Il y a deux tennis, deux boulangeries, trois commerces, un supermarché, une boucherie-charcuterie et un bureau de poste à quelques minutes.Son prix de vente est de 229 000 €.Contactez notre agence (Oumayma SONMEZ : (Numéro supprimé)) pour tout renseignement sur la maison.
Saint-Sébastien-de-Morsent
TERRAIN ET MAISONVENTE : maison T5 (86 m²) à Saint-Sébastien-de-MorsentEMPLACEMENT PRIVILÉGIÉ – MAISON 5 PIÈCES NEUVEÀ vendre : située à 5 km d’Évreux, Les Maisons Extraco Gravigny vous propose cette maison de 5 pièces de 86 m² et de 785 m² de terrain bénéficiant d’un emplacement privilégié dans Saint-Sébastien-de-Morsent (27180). Son intérieur est composé de trois chambres, d’une cuisine et d’une salle de bains.Il s’agit d’une maison de 2 niveaux. Elle est neuve.La maison est située dans un secteur prisé. L’École Primaire Marie Laurencin, l’École Maternelle le Forestier et l’École Élémentaire le Forestier se trouvent à moins de 10 minutes à pied. Niveau transports, il y a deux gares (La Bonneville-sur-Iton et Évreux Normandie) à moins de 10 minutes en voiture. Les nationales N13 et N154 sont accessibles à moins de 8 km. On trouve deux tennis, deux boulangeries, trois commerces, un supermarché, une boucherie-charcuterie et un bureau de poste à quelques minutes.Elle est proposée à l’achat pour 220 600 €.Contactez Oumayma SONMEZ (tél : (Numéro supprimé)) pour plus de renseignements sur la maison, sur les démarches à suivre ou sur les modalités de vente. Les Maisons Extraco Gravigny est là pour vous accompagner dans tous vos projets immobiliers.
L’actualité immobilière à Évreux
27/11/2023
02/11/2023
30/10/2023
20/10/2023
16/10/2023
16/10/2023