Maison à construire à Ézy-sur-Eure (27530)
Images
Description
Ézy-sur-Eure : maison T6 (117 m²) en vente
IDÉALEMENT SITUÉE -
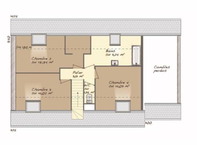
Ayez le coup de coeur pour cette maison de 6 pièces de 117 m² et de 630 m² de terrain idéalement située dans Ézy-sur-Eure (27530). Son intérieur dispose de quatre chambres dont une suite parentale, d'une cuisine ouverte sur l'espace de vie, d'un cellier, de deux salles de bains et d'un garage .
La maison est neuve.
Cette maison se situe dans un quartier convoité. Trois établissements scolaires y sont implantés .
Elle est proposée à l'achat pour 271 525 €.
Contactez notre agence (Fanny GATINAULT : (Numéro supprimé)) pour tout renseignement sur la maison ou sur les modalités de vente. Donnez vie à vos projets immobiliers avec Maisons Balency Louviers.
Annonce proposée par un Agent Commercial Partenaire.
Logement susceptibles de vous intéresser
Nous vous proposons de découvrir aussi cette sélection de logements situés à moins de 10km de Ézy-sur-Eure et qui seraient susceptibles de vous intéresser.
Ézy-sur-Eure
TERRAINTerrain de 630 m² en vente à Ézy-sur-EureIDÉALEMENT SITUÉ – À Ézy-sur-Eure (27530), donnez vie à la maison de vos rêves sur ce terrain de 630 m². Ce terrain, orienté au sud, donne sur un jardin. Dans un secteur recherché, le terrain idéalement situé est proche des écoles et des commerces. Il y a trois établissements scolaires dans la commune et dont l’École Élémentaire Jules Ferry et le Collège Claude Monet. Terrain viabilisé, assainissement individuel. Son prix de vente est de 55 000 €. N’hésitez pas à prendre contact avec notre agence (Fanny GATINAULT : (Numéro supprimé)) pour plus de renseignements sur le terrain.Annonce proposée par un Agent Commercial Partenaire.
Ézy-sur-Eure
TERRAIN ET MAISONÉzy-sur-Eure : maison T6 (117 m²) en venteIDÉALEMENT SITUÉE – Ayez le coup de coeur pour cette maison de 6 pièces de 117 m² et de 630 m² de terrain idéalement située dans Ézy-sur-Eure (27530). Son intérieur dispose de quatre chambres dont une suite parentale, d’une cuisine ouverte sur l’espace de vie, d’un cellier, de deux salles de bains et d’un garage .La maison est neuve.Cette maison se situe dans un quartier convoité. Trois établissements scolaires y sont implantés .Elle est proposée à l’achat pour 271 525 €.Contactez notre agence (Fanny GATINAULT : (Numéro supprimé)) pour tout renseignement sur la maison ou sur les modalités de vente. Donnez vie à vos projets immobiliers avec Maisons Balency Louviers.Annonce proposée par un Agent Commercial Partenaire.
Anet
TERRAIN28260 OULINS, Mathieu Conan vous propose en partenariat avec la SAEDEL, ce terrain de 420 m² clos et viabilisé avec place de parking goudronnée. Commerces à 1 km, D’autres lots disponible.Vous pensez avoir le profil pour acheter ce terrain. Contactez moi!Pour visiter et vous accompagner dans votre projet contacter Mathieu Conan au (Numéro supprimé) ou m.conan@proprietes-privées.com agissant sous le statut d’agent commercial RCS 487624777, RC Pro GALIAN N(Numéro supprimé). Au prix de 75 600 euros honoraires charge vendeur net vendeur Mandat N°427806MCN. Mathieu CONAN (EI) Agent Commercial – Numéro RSAC : CHARTRES 512108507 – .
Oulins
TERRAIN28260 OULINS, Mathieu Conan vous propose en partenariat avec la SAEDEL, ce terrain de 398 m² clos et viabilisé avec place de parking goudronnée. Commerces à 1 km, D’autres lots disponible.Vous pensez avoir le profil pour acheter ce terrain. Contactez moi!Pour visiter et vous accompagner dans votre projet contacter Mathieu Conan au (Numéro supprimé) ou m.conan@proprietes-privées.com agissant sous le statut d’agent commercial RCS 487624777, RC Pro GALIAN N(Numéro supprimé). Au prix de 71 640 euros honoraires charge vendeur net vendeur Mandat N°427807MCN. Mathieu CONAN (EI) Agent Commercial – Numéro RSAC : CHARTRES 512108507 – .
Anet
TERRAIN28260 OULINS, Mathieu Conan vous propose en partenariat avec la SAEDEL, ce terrain de 426 m² clos et viabilisé avec place de parking goudronnée. Commerces à 1 km, D’autres lots disponible.Vous pensez avoir le profil pour acheter ce terrain. Contactez moi!Pour visiter et vous accompagner dans votre projet contacter Mathieu Conan au (Numéro supprimé) ou m.conan@proprietes-privées.com agissant sous le statut d’agent commercial RCS 487624777, RC Pro GALIAN N(Numéro supprimé). Au prix de 76680 euros honoraires charge vendeur net vendeur Mandat N°427808MCN. Mathieu CONAN (EI) Agent Commercial – Numéro RSAC : CHARTRES 512108507 – .
Oulins
TERRAIN ET MAISONMaison F3 (65 m²) à vendre à OulinsMAISON 3 PIÈCES NEUVE – PROCHE BREVALEn vente à 31 km d’Évreux, nous vous proposons cette maison de 3 pièces de plain-pied de 65 m² et de 313 m² de terrain à Oulins (28260).Son intérieur inclut deux chambres, une cuisine ouverte sur le séjour et une salle de bains. Cette maison est neuve.L’École Primaire Michel Brunel est implantée à moins de 10 minutes à pied. Niveau transports, on trouve deux gares (Bueil et Bréval) à moins de 10 minutes en voiture. L’autoroute A13 et les nationales N12, N154 et N13 sont accessibles à moins de 18 km. Il y a une boulangerie et plusieurs commerces dans les environs.Elle est à vendre pour la somme de 191 900 €.Prenez contact avec Aurélie KTARI (tél : (Numéro supprimé)) pour tout renseignement sur la maison, sur les démarches à suivre ou sur les modalités de vente. Les Maisons Extraco Gravigny vous accompagne dans tous vos projets immobiliers et à toutes les étapes de l’achat.
Oulins
TERRAIN ET MAISONVENTE : maison F5 (105 m²) à OulinsPROCHE BREVAL – MAISON 5 PIÈCES NEUVEÀ vendre à 31 km d’Évreux, Les Maisons Extraco Gravigny vous propose à Oulins (28260), cette maison de 5 pièces de 105 m² et de 313 m² de terrain. Son intérieur inclut quatre chambres, une cuisine ouverte sur le séjour, deux salles de bains, un cellier et un garage.Cette maison possède 2 niveaux. Elle est neuve.Il y a l’École Primaire Michel Brunel à moins de 10 minutes à pied. Niveau transports en commun, on trouve les gares Bueil et Bréval à moins de 10 minutes en voiture. L’autoroute A13 et les nationales N12, N154 et N13 sont accessibles à moins de 18 km. Il y a une boulangerie et huit commerces dans les environs.Son prix de vente est de 245 900 €.Contactez notre agence (KTARI Aurélie : (Numéro supprimé)) pour plus de renseignements sur cette maison. Les Maisons Extraco Gravigny vous accompagne dans tous vos projets immobiliers et à toutes les étapes de l’achat.
Oulins
TERRAIN ET MAISONGAMME BOISVENTE : maison F5 (97 m²) à OulinsPROCHE BREVAL – MAISON 5 PIÈCES NEUVEEn vente : à deux pas d’Évreux, notre agence Les Maisons Extraco Gravigny est heureuse de vous présenter cette maison de 5 pièces de 97 m² à Oulins (28260). Son intérieur dispose de quatre chambres, d’une cuisine ouverte sur le séjour, deux salles de bains, un cellier et un garage.Le terrain de cette maison est de 313 m².C’est une maison de 2 niveaux. Elle est neuve.Il y a l’École Primaire Michel Brunel à moins de 10 minutes à pied. Niveau transports en commun, on trouve deux gares (Bueil et Bréval) à moins de 10 minutes en voiture. L’autoroute A13 et les nationales N12, N154 et N13 sont accessibles à moins de 18 km. Il y a une boulangerie et plusieurs commerces dans les environs.Elle est à vendre pour la somme de 299 000 €.N’hésitez pas à prendre contact avec notre constructeur (KTARI Aurélie : (Numéro supprimé)) pour toute question sur cette maison.
Oulins
TERRAIN ET MAISONMaison de 6 pièces (211 m²) en vente à OulinsMAISON 6 PIÈCES NEUVE – PROCHE BREVALÀ deux pas d’Évreux, nous sommes heureux de vous présenter en vente à Oulins (28260), cette maison de 6 pièces de 211 m². Son intérieur est composé de quatre chambres, d’une cuisine ouverte sur le séjour, trois salles de bains, un cellier et un garage.Le terrain de la maison s’étend sur 313 m².C’est une maison de 2 niveaux. Elle est neuve.L’École Primaire Michel Brunel est implantée à moins de 10 minutes à pied. Côté transports en commun, on trouve deux gares (Bueil et Bréval) à moins de 10 minutes en voiture. L’autoroute A13 et les nationales N12, N154 et N13 sont accessibles à moins de 18 km. Il y a une boulangerie et des commerces à proximité de la maison.Son prix de vente est de 529 000 €.N’hésitez pas à prendre contact avec Aurélie KTARI (tél : (Numéro supprimé)) pour plus de renseignements sur cette maison, sur les démarches à suivre ou sur les modalités de vente.
L’actualité immobilière à Ézy-sur-Eure
27/11/2023
02/11/2023
30/10/2023
20/10/2023
16/10/2023
16/10/2023