Maison à construire à Foulbec (27210)
Images
Description
Foulbec : maison de 3 pièces (65 m²) à vendre
IDÉALEMENT SITUÉE - MAISON 3 PIÈCES NEUVE
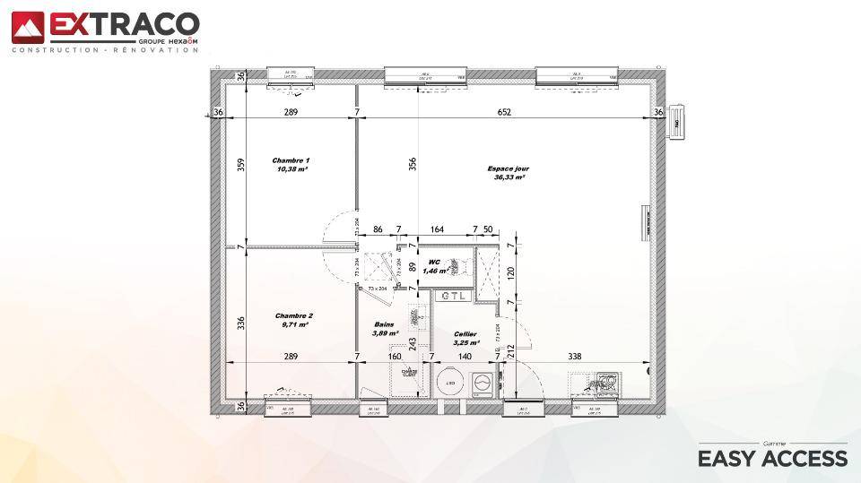
En vente : localisée à 6 km de la Manche et à 24 km du Havre, idéalement située dans Foulbec (27210), nous sommes ravis de vous présenter cette maison de 3 pièces de 65 m² avec vue sur espace vert.
Il s'agit d'une maison de plain-pied. Conçue de plain-pied, elle inclut deux chambres, une cuisine et une salle de bains. Cette maison est neuve.
Le terrain du bien est de 1 031 m².
La maison se situe dans un secteur attractif. On y trouve une école élémentaire. L'autoroute A13 et la nationale N182 sont accessibles à moins de 8 km.
Son prix de vente est de 182 000 €.
Contactez Juliette PETIT ((Numéro supprimé)) pour toute question sur la maison ou sur les démarches à suivre. Concrétisez vos projets immobiliers avec Les Maisons Extraco Pont-Audemer.
Logement susceptibles de vous intéresser
Nous vous proposons de découvrir aussi cette sélection de logements situés à moins de 10km de Foulbec et qui seraient susceptibles de vous intéresser.
Beuzeville
TERRAINTerrain de 718 m² en vente à BeuzevilleEn vente à 11 km de la Manche et à 23 km du Havre à Beuzeville (27210), grand terrain. Il est prêt à accueillir votre projet immobilier pour toute la famille. Il bénéficie d’une exposition sud. Le terrain est proche des écoles et des commerces. On trouve trois établissements scolaires à moins de 10 minutes à pied,, comme le Collège Jacques Brel ou l’École Élémentaire Pierre Mendès-France et une structure d’accueil pour les tout-petits. Les autoroutes A13 et A29 sont accessibles à moins de 9 km. Il y a un tennis, des boulangeries, des commerces, deux supermarchés, une épicerie et une supérette à quelques minutes.Il est proposé à l’achat pour 69 500 €. Prenez contact avec notre agence (RODRIGUEZ Alexandre : (Numéro supprimé)) pour toute information sur ce terrain ou sur les modalités de vente.
Beuzeville
TERRAINBeuzeville : terrain de 619 m² en venteIDÉALEMENT SITUÉ À vendre à 11 km de la Manche et à deux pas du Havre à Beuzeville (27210), grand terrain. Il est prêt à accueillir votre projet de construction pour toute la famille. Il est orienté au sud-ouest. Dans un quartier convoité, ce terrain idéalement situé est proche des écoles et des commerces. Trois établissements scolaires sont implantés à moins de 10 minutes à pied,, parmi lesquels le Collège Jacques Brel et l’École Élémentaire Pierre Mendès-France, tout comme une structure d’accueil pour la petite enfance. Les autoroutes A13 et A29 sont accessibles à moins de 9 km. Il y a un tennis, des boulangeries, des commerces, deux supermarchés, un bureau de poste et quatre boucheries-charcuteries dans les environs.Son prix de vente est de 67 900 €. Contactez notre agence (RODRIGUEZ Alexandre : (Numéro supprimé)) pour plus de renseignements sur ce terrain ou sur les modalités de vente. Donnez vie à vos projets immobiliers avec Maisons France Confort Deauville.
Beuzeville
TERRAIN ET MAISONMaison F5 (100 m²) à vendre à BeuzevillePROCHE DU HAVRE – MAISON 5 PIÈCES NEUVEÀ 11 km de la Manche et à 23 km du Havre, nous vous présentons cette maison de 5 pièces de 100 m² et de 718 m² de terrain en vente à Beuzeville (27210). Son intérieur propose trois chambres, une cuisine et une salle de bains.Cette maison compte 2 niveaux. Elle est neuve.Trois établissements scolaires se trouvent à moins de 10 minutes à pied,, parmi lesquels le Collège Jacques Brel et l’École Élémentaire Pierre Mendès-France, tout comme une structure d’accueil pour les tout-petits. Les autoroutes A13 et A29 sont accessibles à moins de 9 km. Il y a un tennis, des boulangeries, des commerces, deux supermarchés, quatre boucheries-charcuteries et un bureau de poste à quelques minutes à peine.Elle est proposée à l’achat pour 275 364 €.Contactez notre agence (RODRIGUEZ Alexandre : (Numéro supprimé)) pour toute information sur le bien, sur les démarches à suivre ou sur les modalités de vente.
Beuzeville
TERRAIN ET MAISONVENTE : maison F8 (155 m²) à BeuzevilleMAISON 8 PIÈCES NEUVE – PROCHE DU HAVREEn vente : située à 11 km de la Manche et à 23 km du Havre, à Beuzeville (27210), votre agence Maisons France Confort Deauville est heureuse de vous présenter cette maison de 8 pièces de 155 m² et de 718 m² de terrain.Cette maison compte 2 niveaux. Elle inclut cinq chambres, une cuisine et deux salles de bains. La maison est neuve.Il y a trois établissements scolaires à moins de 10 minutes à pied,, comme le Collège Jacques Brel ou l’École Élémentaire Pierre Mendès-France et une structure d’accueil pour la petite enfance. Les autoroutes A13 et A29 sont accessibles à moins de 9 km. On trouve un tennis, des boulangeries, des commerces, deux supermarchés, une supérette et une poissonnerie dans les environs.Son prix de vente est de 315 675 €.Prenez contact avec notre agence (RODRIGUEZ Alexandre : (Numéro supprimé)) pour toute question sur cette maison ou sur les démarches à suivre.
Beuzeville
TERRAIN ET MAISONVENTE : maison de 4 pièces (89 m²) à BeuzevillePROCHE DU HAVRE – MAISON 4 PIÈCES NEUVEÀ vendre à 11 km de la Manche et à 23 km du Havre, à Beuzeville (27210), nous vous proposons cette maison de 4 pièces de plain-pied de 89 m². Conçue de plain-pied, elle comporte trois chambres, une cuisine et une salle de bains.Le terrain de la propriété s’étend sur 718 m².La maison est neuve.Trois établissements scolaires sont implantés à moins de 10 minutes à pied,, comme le Collège Jacques Brel ou l’École Élémentaire Pierre Mendès-France, tout comme une crèche. Les autoroutes A13 et A29 sont accessibles à moins de 9 km. Il y a un tennis, des boulangeries, des commerces, deux supermarchés, une poissonnerie et quatre boucheries-charcuteries à proximité.Son prix de vente est de 239 934 €.N’hésitez pas à prendre contact avec notre agence (RODRIGUEZ Alexandre : (Numéro supprimé)) pour toute information sur cette maison et sur les modalités de vente.
Fatouville-Grestain
TERRAINVENTE : terrain de 672 m² à Fatouville-GrestainÀ Fatouville-Grestain (27210) en vente à 5 km de la Manche et à deux pas du Havre, découvrez ce terrain de 672 m². Il bénéficie d’une exposition sud-ouest. Il y a une école élémentaire dans le quartier. Les autoroutes A29, A13 et A131 sont accessibles à moins de 8 km.Il est proposé à l’achat pour 59 000 €. N’hésitez pas à prendre contact avec notre agence (Alexandre RODRIGUEZ : (Numéro supprimé)) pour tout renseignement sur ce terrain ou sur les démarches à suivre.
Fatouville-Grestain
TERRAIN ET MAISONMaison F7 (120 m²) en vente à Fatouville-GrestainMAISON 7 PIÈCES NEUVE – PROCHE DU HAVREEn vente : située à 5 km de la Manche et à quelques kilomètres du Havre, à Fatouville-Grestain (27210), votre agence Maisons France Confort Deauville est ravie de vous présenter cette maison de 7 pièces de 120 m². Son intérieur dispose de cinq chambres, d’une cuisine et de deux salles de bains.Le terrain de cette maison est de 672 m².C’est une maison de 2 niveaux. Elle est neuve.On trouve une école élémentaire dans le quartier. Les autoroutes A29, A13 et A131 sont accessibles à moins de 8 km.Elle est proposée à l’achat pour 293 674 €.Contactez Alexandre RODRIGUEZ (tél : (Numéro supprimé)) pour toute question sur le bien. Maisons France Confort Deauville vous accompagne dans toutes vos démarches et à toutes les étapes de votre projet.
Fatouville-Grestain
TERRAIN ET MAISONVENTE : maison F5 (89 m²) à Fatouville-GrestainMAISON 5 PIÈCES NEUVE – PROCHE DU HAVREEn vente : à 5 km de la Manche et à quelques kilomètres du Havre, ayez le coup de coeur pour cette maison de 5 pièces de plain-pied de 89 m² et de 672 m² de terrain à Fatouville-Grestain (27210). Elle propose trois chambres, une cuisine et une salle de bains.La maison est neuve.Une école élémentaire est implantée dans le quartier. Les autoroutes A29, A13 et A131 sont accessibles à moins de 8 km.Son prix de vente est de 266 435 €.Contactez notre agence (Alexandre RODRIGUEZ : (Numéro supprimé)) pour plus de renseignements sur la maison ou sur les modalités de vente. Maisons France Confort Deauville est là pour vous accompagner à toutes les étapes de l’achat.
Ablon
TERRAINVENTE : terrain de 800 m² à AblonPROCHE DU HAVREEn vente à 4 km de la Manche et à quelques kilomètres du Havre à Ablon (14600), grand terrain. Réalisez-y votre résidence principale ou secondaire. Il bénéficie d’une exposition sud-ouest. Le terrain est proche des écoles et des commerces. Il y a une école primaire dans le quartier et une structure d’accueil pour la petite enfance. Les autoroutes A29 et A13 sont accessibles à moins de 8 km.Son prix de vente est de 118 000 €. Contactez Alexandre RODRIGUEZ (tél : (Numéro supprimé)) (Numéro supprimé) pour toute information sur le terrain ou sur les modalités de vente. Maisons France Confort Deauville est là pour vous accompagner dans toutes vos démarches.
L’actualité immobilière à Foulbec
27/11/2023
02/11/2023
30/10/2023
20/10/2023
16/10/2023
16/10/2023