Maison à construire à Guerny (27720)
Images
Description
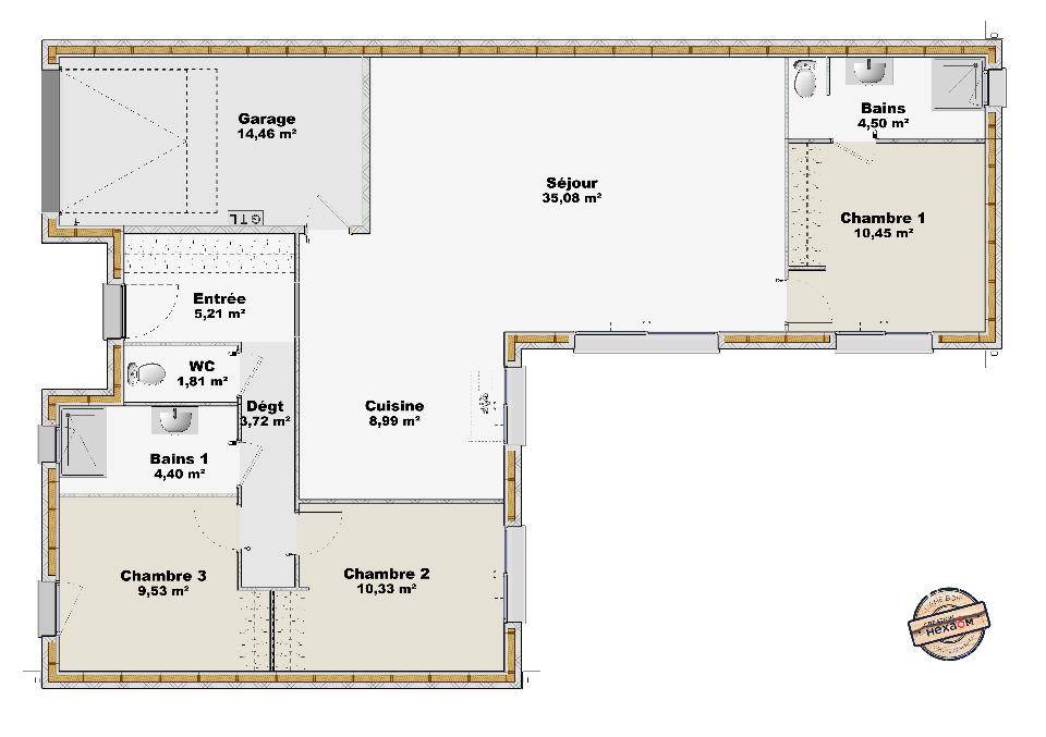
VENTE : maison F4 en structure bois (94 m²) à Guerny
EMPLACEMENT PRIVILÉGIÉ - MAISON 4 PIÈCES NEUVE
En vente : située à quelques kilomètres de Mantes-la-Jolie, nous vous présentons cette maison de 4 pièces de plain-pied de 94 m² bénéficiant d'un emplacement privilégié dans Guerny (27720).
Elle dispose de trois chambres, d'une cuisine et de deux salles de bains. La maison est neuve.
Le terrain du bien est de 8 600 m².
Cette maison se situe dans un secteur prisé. Plusieurs écoles (maternelle, élémentaire, primaire et collège) se trouvent à moins de 10 minutes en voiture, tout comme une crèche à moins de 10 minutes à pied. Il y a des tennis, des bibliothèques, des boulangeries, des commerces, des supermarchés, des boucheries-charcuteries et un bureau de poste à quelques minutes. Enfin, 2 marchés animent les environs.
Son prix de vente est de 327 000 €.
N'hésitez pas à prendre contact avec notre agence (Carole GOITA : (Numéro supprimé)) pour toute information sur le bien et sur les modalités de vente. Extraco Construction Rénovation Les Andelys vous accompagne à toutes les étapes de votre projet et dans tous vos projets immobiliers.
Logement susceptibles de vous intéresser
Nous vous proposons de découvrir aussi cette sélection de logements situés à moins de 10km de Guerny et qui seraient susceptibles de vous intéresser.
Vexin-sur-Epte
TERRAIN ET MAISONVENTE : maison de 5 pièces (113 m²) à Vexin-Sur-EpteEMPLACEMENT PRIVILÉGIÉ – MAISON 5 PIÈCES NEUVEÀ vendre : à 18 km de Mantes-la-Jolie, découvrez cette maison de 5 pièces de plain-pied de 113 m² bénéficiant d’un emplacement privilégié dans Vexin-Sur-Epte (27510).Son intérieur se divise en quatre chambres, une cuisine et deux salles de bains. Cette maison est neuve.Le terrain de la propriété s’étend sur 940 m².Cette maison est située dans un quartier prisé. On trouve des écoles de tous niveaux à moins de 10 minutes en voiture, tout comme deux crèches à moins de 10 minutes à pied. Il y a des tennis, des commerces, des boulangeries, trois supermarchés, quatre épiceries et des boucheries-charcuteries à proximité.Elle est à vendre pour la somme de 313 950 €.N’hésitez pas à prendre contact avec Carole GOITA ((Numéro supprimé)) pour obtenir de plus amples informations sur la maison, sur les démarches à suivre ou sur les modalités de vente. Extraco Construction Rénovation Les Andelys est là pour vous accompagner à toutes les étapes de votre projet.
Vexin-sur-Epte
TERRAINVENTE : terrain de 940 m² à Vexin-Sur-EpteEMPLACEMENT PRIVILÉGIÉ – PROCHE DE MANTES-LA-JOLIEGrand terrain en vente à deux pas de Mantes-la-Jolie. De 940 m², ce terrain se situe bénéficiant d’un emplacement d’exception dans Vexin-Sur-Epte (27510). Il donne sur un espace vert. Dans un quartier attractif, ce terrain est proche des écoles et des commerces. On trouve tous les types d’établissements scolaires (de la maternelle au lycée) à moins de 10 minutes en voiture, tout comme deux crèches à moins de 10 minutes à pied. Il y a des tennis, des commerces, des boulangeries, trois supermarchés, quatre épiceries et des boucheries-charcuteries dans les environs.Il est à vendre pour la somme de 81 750 €. Prenez contact avec Carole GOITA (tél : (Numéro supprimé)) pour toute information sur le terrain. Faites de vos projets immobiliers une réalité avec Extraco Construction Rénovation Les Andelys.
Saint-Clair-sur-Epte
TERRAIN ET MAISONVENTE d’une maison de 4 pièces (141 m²) à Saint-Clair-sur-EpteIDÉALEMENT SITUÉE – MAISON 4 PIÈCES NEUVEEn vente : située à 24 km de Mantes-la-Jolie, laissez vous charmer par cette maison de 4 pièces de 141 m² idéalement située dans Saint-Clair-sur-Epte (95770). Son intérieur offre quatre chambres, une cuisine et deux salles de bains.Le terrain de cette maison s’étend sur 500 m².Cette maison possède 2 niveaux. Elle est neuve.Cette maison est située dans un secteur prisé. On y trouve une école élémentaire.Elle est à vendre pour la somme de 356 100 €.Prenez contact avec notre agence (GOITA Carole : (Numéro supprimé)) pour obtenir de plus amples renseignements sur la maison, sur les modalités de vente ou sur les démarches à suivre.
Gisors
TERRAIN ET MAISONMaison T4 (81 m²) à vendre à GisorsEMPLACEMENT PRIVILÉGIÉ – MAISON 4 PIÈCES NEUVEEn vente : proche du Transilien J (1 h de Paris), venez découvrir, bénéficiant d’un emplacement privilégié dans Gisors (27140), cette maison de 4 pièces de 81 m² et de 530 m² de terrain. Son intérieur comporte deux chambres, une cuisine et une salle de bains.C’est une maison de 2 niveaux. Elle est neuve.Cette maison est située dans un quartier prisé. Des établissements scolaires de tous niveaux sont implantés à moins de 10 minutes à pied. Niveau transports en commun, il y a la gare Gisors à quelques pas de la maison. On trouve un tennis, une bibliothèque, des commerces, des boulangeries, trois supermarchés, des épiceries et un bureau de poste à proximité du logement. 2 marchés animent le quartier.Son prix de vente est de 239 600 €.Contactez notre agence (Carole GOITA : (Numéro supprimé)) pour toute information sur la maison ou sur les démarches à suivre.
Gisors
TERRAIN ET MAISONGisors : maison T5 (92 m²) à vendreEMPLACEMENT PRIVILÉGIÉ – MAISON 5 PIÈCES NEUVEÀ quelques minutes du Transilien J (1 h de Paris), en vente bénéficiant d’un emplacement privilégié dans Gisors (27140), nous sommes ravis de vous proposer cette maison de 5 pièces de plain-pied de 92 m² et de 530 m² de terrain. Conçue de plain-pied, elle dispose de quatre chambres, d’une cuisine et d’une salle de bains.Cette maison est neuve.La maison est située dans un quartier attractif. Il y a des établissements scolaires de tous types à moins de 10 minutes à pied. Niveau transports, on trouve la gare Gisors juste à côté. Il y a un tennis, une bibliothèque, des commerces, des boulangeries, trois supermarchés, un bureau de poste et des épiceries dans les environs. 2 marchés animent le quartier.Son prix de vente est de 246 600 €.N’hésitez pas à prendre contact avec notre agence (Carole GOITA : (Numéro supprimé)) pour toute question sur la maison. Extraco Construction Rénovation Les Andelys vous accompagne à toutes les étapes de l’achat et dans toutes vos démarches.
Vexin-sur-Epte
TERRAIN ET MAISONVENTE : maison F4 (135 m²) à Vexin-Sur-EpteIDÉALEMENT SITUÉE – MAISON 4 PIÈCES NEUVEEn vente : à quelques kilomètres de Mantes-la-Jolie, idéalement située dans Vexin-Sur-Epte (27510), notre agence Les Maisons Extraco Les Andelys est ravie de vous proposer cette maison de 4 pièces de 135 m².Il s’agit d’une maison de 2 niveaux. Elle comporte cinq chambres, une cuisine et deux salles de bains. La maison est neuve.Le terrain du bien s’étend sur 1 000 m².La maison se situe dans un quartier prisé. On trouve tous les types d’établissements scolaires (de la maternelle au lycée) à moins de 10 minutes en voiture, tout comme deux crèches à moins de 10 minutes à pied. Il y a des tennis, des commerces, des boulangeries, trois supermarchés, des boucheries-charcuteries et quatre épiceries dans les environs.Elle est à vendre pour la somme de 317 500 €.Contactez notre agence (Carole GOITA : (Numéro supprimé)) pour toute question sur la propriété. Extraco Construction Rénovation Les Andelys vous accompagne dans tous vos projets immobiliers et à toutes les étapes de l’achat.
Vexin-sur-Epte
TERRAIN ET MAISONVENTE d’une maison T4 (71 m²) à Vexin-Sur-EpteIDÉALEMENT SITUÉE – MAISON 4 PIÈCES NEUVEEn vente à quelques kilomètres de Mantes-la-Jolie, Extraco Construction Rénovation Les Andelys vous propose cette maison de 4 pièces de plain-pied de 71 m² et de 1 000 m² de terrain idéalement située dans Vexin-Sur-Epte (27510).Son intérieur offre deux chambres, une cuisine et une salle de bains. La maison est neuve.Ce bien est situé dans un quartier prisé. Tous les types d’écoles (maternelle, élémentaire et secondaire) sont implantés à moins de 10 minutes en voiture, tout comme deux crèches à moins de 10 minutes à pied. On trouve des tennis, des commerces, des boulangeries, trois supermarchés, quatre épiceries et des boucheries-charcuteries dans les environs.Il est proposé à l’achat pour 222 500 €.Prenez contact avec Carole GOITA ((Numéro supprimé)) pour obtenir de plus amples renseignements sur la maison, sur les démarches à suivre ou sur les modalités de vente.
Gisors
TERRAINGisors : terrain de 530 m² en venteEMPLACEMENT PRIVILÉGIÉ – PROCHE DE BEAUVAISÀ proximité de la gare (Paris à 1 h avec le Transilien J) à Gisors (27140), grand terrain. Il est prêt à accueillir votre résidence principale ou secondaire pour toute la famille. Il donne sur un espace vert. Dans un quartier convoité, le terrain bénéficiant d’un emplacement d’exception est proche des écoles et des commerces. Il y a tous les types d’établissements scolaires à moins de 10 minutes à pied. Côté transports en commun, on trouve la gare Gisors à proximité. Il y a un tennis, une bibliothèque, des commerces, des boulangeries, trois supermarchés, des boucheries-charcuteries et un bureau de poste à quelques minutes à peine. Enfin, 2 marchés animent les environs.Il est à vendre pour la somme de 76 000 €. Contactez Carole GOITA ((Numéro supprimé)) pour plus d’informations sur ce terrain ou sur les démarches à suivre. Faites de vos projets immobiliers une réalité avec Extraco Construction Rénovation Les Andelys.
Gisors
TERRAIN ET MAISONVENTE d’une maison de 4 pièces (75 m²) à GisorsEMPLACEMENT PRIVILÉGIÉ – MAISON 4 PIÈCES NEUVEEn vente : proche du Transilien J (1 h de Paris), bénéficiant d’un emplacement privilégié dans Gisors (27140), nous vous présentons cette maison de 4 pièces de plain-pied de 75 m² et de 530 m² de terrain. Son intérieur inclut trois chambres, une cuisine et une salle de bains.Cette maison est neuve.Cette propriété se situe dans un secteur attractif. On trouve des écoles de tous types à moins de 10 minutes à pied. Côté transports en commun, il y a la gare Gisors à quelques pas de la maison. Il y a un tennis, une bibliothèque, des commerces, des boulangeries, trois supermarchés, des boucheries-charcuteries et des épiceries dans les environs. 2 marchés animent les environs.Elle est proposée à l’achat pour 241 600 €.Contactez notre agence (Carole GOITA : (Numéro supprimé)) pour tout renseignement sur la maison. Faites de vos projets immobiliers une réalité avec Extraco Construction Rénovation Les Andelys.
L’actualité immobilière à Guerny
27/11/2023
02/11/2023
30/10/2023
20/10/2023
16/10/2023
16/10/2023