Maison à construire à Hauville (27350)
Images
Description
Hauville : maison de 7 pièces (150 m²) à vendre
IDÉALEMENT SITUÉE - MAISON 7 PIÈCES NEUVE
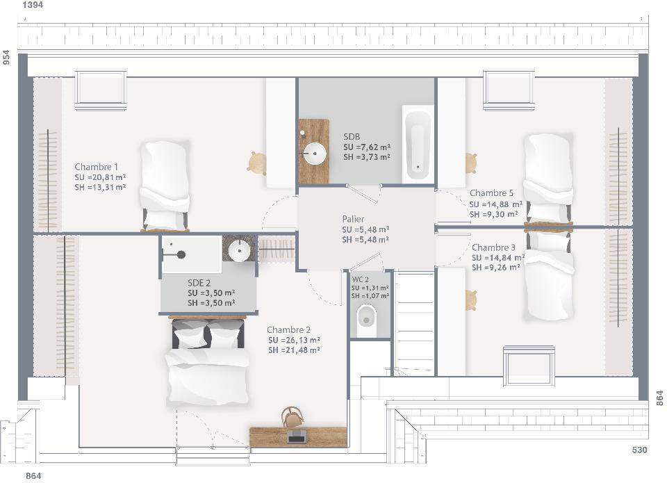
À 33 km de la Manche et à deux pas de Rouen, ayez le coup de coeur pour cette maison de 7 pièces de 150 m² en vente idéalement située dans Hauville (27350). Elle est composée de cinq chambres, d'une cuisine et de deux salles de bains.
Le terrain du bien est de 1 000 m².
Il s'agit d'une maison de 2 niveaux. Elle est neuve.
La maison se trouve dans un secteur attractif. Il y a l'École Primaire Alphonse Daudet à moins de 10 minutes à pied. L'autoroute A13 est accessible à 5 km. On trouve une boulangerie à quelques minutes de la maison.
Elle est proposée à l'achat pour 313 500 €.
Contactez notre agence (Noemie DEMEILLERS : (Numéro supprimé)) pour toute information sur la propriété ou sur les démarches à suivre.
Logement susceptibles de vous intéresser
Nous vous proposons de découvrir aussi cette sélection de logements situés à moins de 10km de Hauville et qui seraient susceptibles de vous intéresser.
Routot
TERRAIN ET MAISONMaison idéalement située à ROUTOT sur un terrain de 770 m². À proximité, dans le bourg : école, boulangerie, parc pour enfants, bus vert. Cette maison contemporaine bénéficie d’un agencement agréable : – Salon/séjour avec cuisine ouverte de 45 m², avec une grande baie coulissante de 2,20 m en alu, – cellier, – 3 chambres avec placards, – suite parentale avec dressing et douche à l’italienne, – salle de bains avec baignoire et douche, – garage de 15 m². Isolation renforcée avec système de chauffage très économique par pompe à chaleur. Maison certifiée RE20. DPE : A / GSE : B.Venez nous rencontrer et visiter notre showroom : Maisons Extraco – 3 Rue de la Scierie – 76530 LES ESSARTS Personnalisée sur les secteurs de votre choix. Étude gratuite auprès de votre conseiller : Alexis RINGOT ((Numéro supprimé) / a.ringot at extraco.fr). (Premier échange par SMS possible)
Routot
TERRAIN ET MAISONMaison idéalement située à ROUTOT sur un terrain de 770 m². À proximité, dans le bourg : école, boulangerie, parc pour enfants, bus vert. Cette maison contemporaine bénéficie d’un agencement agréable : – Salon/séjour avec cuisine ouverte de 45 m², avec une grande baie coulissante de 2,20 m en alu, – cellier, – 3 chambres avec placards, – suite parentale avec dressing et douche à l’italienne, – salle de bains avec baignoire et douche, – garage de 15 m². Isolation renforcée avec système de chauffage très économique par pompe à chaleur. Maison certifiée RE20. DPE : A / GSE : B.Venez nous rencontrer et visiter notre showroom : Maisons Extraco – 3 Rue de la Scierie – 76530 LES ESSARTS Personnalisée sur les secteurs de votre choix. Étude gratuite auprès de votre conseiller : Alexis RINGOT ((Numéro supprimé) / a.ringot at extraco.fr). (Premier échange par SMS possible)
Routot
TERRAIN ET MAISONMaison idéalement située à ROUTOT sur un terrain de 770 m². À proximité, dans le bourg : école, boulangerie, parc pour enfants, bus vert. Cette maison contemporaine bénéficie d’un agencement agréable : – Salon/séjour avec cuisine ouverte de 45 m², avec une grande baie coulissante de 2,20 m en alu, – cellier, – 3 chambres avec placards, – suite parentale avec dressing et douche à l’italienne, – salle de bains avec baignoire et douche, – garage de 15 m². Isolation renforcée avec système de chauffage très économique par pompe à chaleur. Maison certifiée RE20. DPE : A / GSE : B.Venez nous rencontrer et visiter notre showroom : Maisons Extraco – 3 Rue de la Scierie – 76530 LES ESSARTS Personnalisée sur les secteurs de votre choix. Étude gratuite auprès de votre conseiller : Alexis RINGOT ((Numéro supprimé) / a.ringot at extraco.fr). (Premier échange par SMS possible)
Routot
TERRAIN ET MAISONMaison idéalement située à ROUTOT sur un terrain de 770 m². À proximité, dans le bourg : école, boulangerie, parc pour enfants, bus vert. Cette maison contemporaine bénéficie d’un agencement agréable : – Salon/séjour avec cuisine ouverte de 45 m², avec une grande baie coulissante de 2,20 m en alu, – cellier, – 3 chambres avec placards, – suite parentale avec dressing et douche à l’italienne, – salle de bains avec baignoire et douche, – garage de 15 m². Isolation renforcée avec système de chauffage très économique par pompe à chaleur. Maison certifiée RE20. DPE : A / GSE : B.Venez nous rencontrer et visiter notre showroom : Maisons Extraco – 3 Rue de la Scierie – 76530 LES ESSARTS Personnalisée sur les secteurs de votre choix. Étude gratuite auprès de votre conseiller : Alexis RINGOT ((Numéro supprimé) / a.ringot at extraco.fr). (Premier échange par SMS possible)
Routot
TERRAIN ET MAISONMaison idéalement située à ROUTOT sur un terrain de 770 m². À proximité, dans le bourg : école, boulangerie, parc pour enfants, bus vert. Cette maison contemporaine bénéficie d’un agencement agréable : – Salon/séjour avec cuisine ouverte de 45 m², avec une grande baie coulissante de 2,20 m en alu, – cellier, – 3 chambres avec placards, – suite parentale avec dressing et douche à l’italienne, – salle de bains avec baignoire et douche, – garage de 15 m². Isolation renforcée avec système de chauffage très économique par pompe à chaleur. Maison certifiée RE20. DPE : A / GSE : B.Venez nous rencontrer et visiter notre showroom : Maisons Extraco – 3 Rue de la Scierie – 76530 LES ESSARTS Personnalisée sur les secteurs de votre choix. Étude gratuite auprès de votre conseiller : Alexis RINGOT ((Numéro supprimé) / a.ringot at extraco.fr). (Premier échange par SMS possible)
Routot
TERRAIN ET MAISONMaison idéalement située à ROUTOT sur un terrain de 650 m². À proximité, dans le bourg : école, boulangerie, parc pour enfants, bus vert. Cette maison contemporaine bénéficie d’un agencement agréable : – Salon/séjour avec cuisine ouverte de 45 m², avec une grande baie coulissante de 2,20 m en alu, – cellier, – 3 chambres avec placards, – suite parentale avec dressing et douche à l’italienne, – salle de bains avec baignoire et douche, – garage de 15 m². Isolation renforcée avec système de chauffage très économique par pompe à chaleur. Maison certifiée RE20. DPE : A / GSE : B.Venez nous rencontrer et visiter notre showroom : Maisons Extraco – 3 Rue de la Scierie – 76530 LES ESSARTS Personnalisée sur les secteurs de votre choix. Étude gratuite auprès de votre conseiller : Alexis RINGOT ((Numéro supprimé) / a.ringot at extraco.fr). (Premier échange par SMS possible)
Routot
TERRAIN ET MAISONMaison idéalement située à ROUTOT sur un terrain de 770 m². À proximité, dans le bourg : école, boulangerie, parc pour enfants, bus vert. Cette maison contemporaine bénéficie d’un agencement agréable : – Salon/séjour avec cuisine ouverte de 45 m², avec une grande baie coulissante de 2,20 m en alu, – cellier, – 3 chambres avec placards, – suite parentale avec dressing et douche à l’italienne, – salle de bains avec baignoire et douche, – garage de 15 m². Isolation renforcée avec système de chauffage très économique par pompe à chaleur. Maison certifiée RE20. DPE : A / GSE : B.Venez nous rencontrer et visiter notre showroom : Maisons Extraco – 3 Rue de la Scierie – 76530 LES ESSARTS Personnalisée sur les secteurs de votre choix. Étude gratuite auprès de votre conseiller : Alexis RINGOT ((Numéro supprimé) / a.ringot at extraco.fr). (Premier échange par SMS possible)
Routot
TERRAIN ET MAISONMaison idéalement située à ROUTOT sur un terrain de 770 m². À proximité, dans le bourg : école, boulangerie, parc pour enfants, bus vert. Cette maison contemporaine bénéficie d’un agencement agréable : – Salon/séjour avec cuisine ouverte de 45 m², avec une grande baie coulissante de 2,20 m en alu, – cellier, – 3 chambres avec placards, – suite parentale avec dressing et douche à l’italienne, – salle de bains avec baignoire et douche, – garage de 15 m². Isolation renforcée avec système de chauffage très économique par pompe à chaleur. Maison certifiée RE20. DPE : A / GSE : B.Venez nous rencontrer et visiter notre showroom : Maisons Extraco – 3 Rue de la Scierie – 76530 LES ESSARTS Personnalisée sur les secteurs de votre choix. Étude gratuite auprès de votre conseiller : Alexis RINGOT ((Numéro supprimé) / a.ringot at extraco.fr). (Premier échange par SMS possible)
Routot
TERRAIN ET MAISONMaison idéalement située à ROUTOT sur un terrain de 770 m². À proximité, dans le bourg : école, boulangerie, parc pour enfants, bus vert. Cette maison contemporaine bénéficie d’un agencement agréable : – Salon/séjour avec cuisine ouverte de 45 m², avec une grande baie coulissante de 2,20 m en alu, – cellier, – 3 chambres avec placards, – suite parentale avec dressing et douche à l’italienne, – salle de bains avec baignoire et douche, – garage de 15 m². Isolation renforcée avec système de chauffage très économique par pompe à chaleur. Maison certifiée RE20. DPE : A / GSE : B.Venez nous rencontrer et visiter notre showroom : Maisons Extraco – 3 Rue de la Scierie – 76530 LES ESSARTS Personnalisée sur les secteurs de votre choix. Étude gratuite auprès de votre conseiller : Alexis RINGOT ((Numéro supprimé) / a.ringot at extraco.fr). (Premier échange par SMS possible)
L’actualité immobilière à Hauville
27/11/2023
02/11/2023
30/10/2023
20/10/2023
16/10/2023
16/10/2023