Maison à construire à Hébécourt (27150)
Images
Description
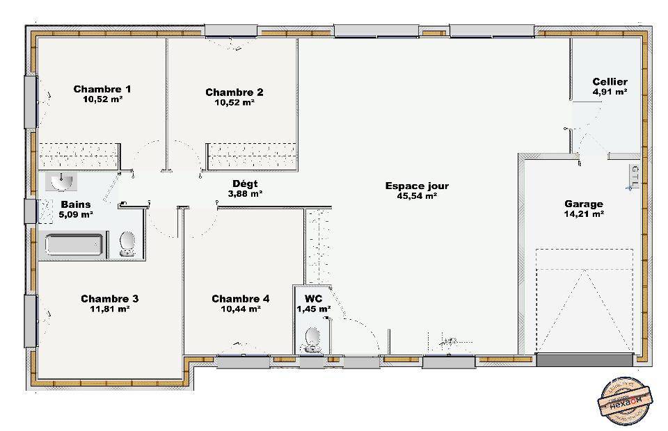
Hébécourt : maison de 5 pièces en structure bois (104 m²) en vente
IDÉALEMENT SITUÉE - MAISON 5 PIÈCES NEUVE
À vendre : à côté du Transilien J (gare de Gisors, 1 h de Paris), votre agence Extraco Construction Rénovation Les Andelys est heureuse de vous présenter, idéalement située dans Hébécourt (27150), cette maison de 5 pièces de plain-pied de 104 m². Elle propose quatre chambres, une cuisine et deux salles de bains.
Le terrain du bien est de 1 000 m².
La maison est neuve.
Cette maison est située dans un secteur recherché. L'École Maternelle la Lévrière est implantée à moins de 10 minutes à pied. Niveau transports en commun, on trouve les gares Sérifontaine et Gisors à moins de 10 minutes en voiture. Il y a un commerce et une boulangerie à proximité de la maison.
Elle est à vendre pour la somme de 310 000 €.
Contactez Carole GOITA ((Numéro supprimé)) pour toute question sur la maison ou sur les démarches à suivre. Faites de vos projets immobiliers une réalité avec Extraco Construction Rénovation Les Andelys.
Logement susceptibles de vous intéresser
Nous vous proposons de découvrir aussi cette sélection de logements situés à moins de 10km de Hébécourt et qui seraient susceptibles de vous intéresser.
Éragny-sur-Epte
TERRAINÀ Vendre : Terrain Exceptionnel de 479 m² – Idéal pour Votre Future Maison ! ??Situé dans un environnement prisé, ce magnifique terrain de 479 m² offre un cadre naturel rare et recherché. Parfait pour les personnes souhaitant construire une maison confortable et entièrement sur mesure.- Projet de construction avec notre partenaireLa vente inclut la possibilité de construire votre future maison avec notre partenaire, entreprise reconnue pour la qualité de ses réalisations, son accompagnement sur mesure et son expertise dans l’habitat durable.Vous pourrez bénéficier :- D’un accompagnement complet (plans, permis, construction)- D’une maison personnalisée selon vos goûts et besoins- D’un projet clé en main en toute sérénité- Localisation :Environnement paisible, proche des commodités, écoles, commerces, axes routiers, tout en restant à l’écart de la foule.- Viabilités :Le terrain dispose des viabilités TAE déjà raccordéEau / Electricité / Telecom prêt à être raccordés? Une opportunité rare pour concrétiser votre projet de vie !Contactez Gérald AFONSO au 06 / 98 / 03 / 84 /87 dès maintenant pour plus d’informations, une visite ou une étude personnalisée. Les honoraires sont à la charge du vendeur.Les informations sur les risques auxquels ce bien est exposé sont disponibles sur le site Géorisques : www. georisques. gouv. fr.Contactez Gérald AFONSO Entrepreneur Individuel, Agent commercial OptimHome (RSAC N(Numéro supprimé) Greffe de COMPIEGNE) (Numéro supprimé) (réf. 598317 )
Hébécourt
TERRAIN ET MAISONVENTE : maison F4 (141 m²) à HébécourtIDÉALEMENT SITUÉE – MAISON 4 PIÈCES NEUVEEn vente : à quelques minutes du Transilien J (gare de Gisors, 1 h de Paris), idéalement située dans Hébécourt (27150), nous vous présentons cette maison de 4 pièces de 141 m² et de 1 000 m² de terrain.Il s’agit d’une maison de 2 niveaux. Elle compte quatre chambres, une cuisine et deux salles de bains. Cette maison est neuve.Cette maison se situe dans un secteur convoité. L’École Maternelle la Lévrière est implantée à moins de 10 minutes à pied. Niveau transports en commun, on trouve les gares Sérifontaine et Gisors à moins de 10 minutes en voiture. Il y a un commerce et une boulangerie à quelques minutes.Elle est à vendre pour la somme de 370 000 €.Prenez contact avec notre agence (GOITA Carole : (Numéro supprimé)) pour toute question sur la maison, sur les démarches à suivre ou sur les modalités de vente. Faites de vos projets immobiliers une réalité avec Extraco Construction Rénovation Les Andelys.
Éragny-sur-Epte
TERRAIN ET MAISONMaison de 5 pièces (120 m²) en vente à Éragny-sur-EptePROCHE DE BEAUVAIS – MAISON 5 PIÈCES NEUVEÀ vendre : à quelques minutes du Transilien J (gare de Gisors, 1 h de Paris), votre agence Maisons Balency Gravigny est ravie de vous présenter cette maison de 5 pièces de plain-pied de 120 m² et de 463 m² de terrain à Éragny-sur-Epte (60590). Elle se divise en trois chambres, une cuisine et deux salles de bains.La maison est neuve.L’École Primaire Jean Mermoz est implantée à moins de 10 minutes à pied. Niveau transports en commun, il y a quatre gares à moins de 10 minutes en voiture. Il y a un accès à la nationale N31 à 19 km et Beauvais est située à 26 km. On trouve un tennis et une bibliothèque dans les environs.Son prix de vente est de 271 477 €.Contactez notre agence (DELELIS Karen : (Numéro supprimé)) pour plus d’informations sur la propriété ou sur les modalités de vente.Annonce proposée par un Agent Commercial Partenaire.
Éragny-sur-Epte
TERRAIN ET MAISONMaison T5 (76 m²) à vendre à Éragny-sur-EpteMAISON 5 PIÈCES NEUVE – PROCHE DE BEAUVAISEn vente : à côté du Transilien J (gare de Gisors, 1 h de Paris), à Éragny-sur-Epte (60590), venez découvrir cette maison de 5 pièces de 76 m².Cette maison possède 2 niveaux. Son intérieur compte trois chambres, une cuisine et une salle de bains. Cette maison est neuve.Le terrain du bien est de 463 m².L’École Primaire Jean Mermoz est implantée à moins de 10 minutes à pied. Niveau transports en commun, il y a quatre gares à moins de 10 minutes en voiture. La nationale N31 est accessible à 19 km et Beauvais est située à 26 km. On trouve un tennis et une bibliothèque à quelques minutes du logement.Son prix de vente est de 201 440 €.Contactez Karen DELELIS (tél : (Numéro supprimé)) pour plus de renseignements sur cette propriété ou sur les démarches à suivre.Annonce proposée par un Agent Commercial Partenaire.
Hébécourt
TERRAIN ET MAISONVENTE d’une maison de 4 pièces (82 m²) à HébécourtIDÉALEMENT SITUÉE – MAISON 4 PIÈCES NEUVEAu pied du Transilien J (gare de Gisors, 1 h de Paris), Extraco Construction Rénovation Les Andelys vous présente cette maison de 4 pièces de plain-pied de 82 m² et de 1 000 m² de terrain à vendre, idéalement située dans Hébécourt (27150).Conçue de plain-pied, elle est composée de trois chambres, d’une cuisine et d’une salle de bains. La maison est neuve.La maison se situe dans un quartier convoité. On trouve l’École Maternelle la Lévrière à moins de 10 minutes à pied. Niveau transports en commun, il y a les gares Sérifontaine et Gisors à moins de 10 minutes en voiture. Il y a un commerce et une boulangerie dans les environs.Elle est à vendre pour la somme de 268 000 €.Prenez contact avec Carole GOITA ((Numéro supprimé)) pour obtenir de plus amples informations sur la maison ou sur les démarches à suivre. Faites de vos projets immobiliers une réalité avec Extraco Construction Rénovation Les Andelys.
Étrépagny
TERRAIN ET MAISONMaison T5 (110 m²) à vendre à Frenelles-en-VexinIDÉALEMENT SITUÉE – MAISON 5 PIÈCES NEUVEÀ vendre : localisée à 31 km de Saint-Étienne-du-Rouvray, idéalement située dans Frenelles-en-Vexin (27150), Les Maisons Extraco Les Andelys vous propose cette maison de 5 pièces de 110 m² et de 800 m² de terrain.C’est une maison de 2 niveaux. Elle comporte quatre chambres, une cuisine et deux salles de bains. Cette maison est neuve.Cette maison est située dans un secteur prisé. On y trouve l’École Primaire Marcel Sédille. Il y a un commerce à quelques minutes à peine.Elle est à vendre pour la somme de 222 400 €.N’hésitez pas à prendre contact avec notre agence (BOREAU Gilles : (Numéro supprimé)) pour obtenir de plus amples renseignements sur la maison, sur les modalités de vente ou sur les démarches à suivre. Les Maisons Extraco Les Andelys est là pour vous accompagner dans tous vos projets immobiliers.
Hébécourt
TERRAIN ET MAISONHébécourt : maison de 5 pièces en structure bois (104 m²) en venteIDÉALEMENT SITUÉE – MAISON 5 PIÈCES NEUVEÀ vendre : à côté du Transilien J (gare de Gisors, 1 h de Paris), votre agence Extraco Construction Rénovation Les Andelys est heureuse de vous présenter, idéalement située dans Hébécourt (27150), cette maison de 5 pièces de plain-pied de 104 m². Elle propose quatre chambres, une cuisine et deux salles de bains.Le terrain du bien est de 1 000 m².La maison est neuve.Cette maison est située dans un secteur recherché. L’École Maternelle la Lévrière est implantée à moins de 10 minutes à pied. Niveau transports en commun, on trouve les gares Sérifontaine et Gisors à moins de 10 minutes en voiture. Il y a un commerce et une boulangerie à proximité de la maison.Elle est à vendre pour la somme de 310 000 €.Contactez Carole GOITA ((Numéro supprimé)) pour toute question sur la maison ou sur les démarches à suivre. Faites de vos projets immobiliers une réalité avec Extraco Construction Rénovation Les Andelys.
Étrépagny
TERRAIN ET MAISONFrenelles-en-Vexin : maison de 5 pièces (137 m²) en venteIDÉALEMENT SITUÉE – MAISON 5 PIÈCES NEUVEÀ vendre : située à quelques kilomètres de Saint-Étienne-du-Rouvray, nous sommes heureux de vous proposer cette maison de 5 pièces de 137 m² et de 800 m² de terrain idéalement située dans Frenelles-en-Vexin (27150).Cette maison compte 2 niveaux. Elle offre quatre chambres, une cuisine et une salle de bains. La maison est neuve.La maison se situe dans un secteur prisé. L’École Primaire Marcel Sédille y est implantée. On trouve un commerce dans les environs.Elle est proposée à l’achat pour 267 300 €.N’hésitez pas à prendre contact avec Gilles BOREAU ((Numéro supprimé)) pour tout renseignement sur la maison ou sur les démarches à suivre. Les Maisons Extraco Les Andelys est là pour vous accompagner dans tous vos projets immobiliers.
Hébécourt
TERRAIN ET MAISONVENTE : maison F4 (84 m²) à HébécourtIDÉALEMENT SITUÉE – MAISON 4 PIÈCES NEUVEEn vente : à quelques minutes du Transilien J (gare de Gisors, 1 h de Paris), Extraco Construction Rénovation Les Andelys vous présente, idéalement située dans Hébécourt (27150), cette maison de 4 pièces de plain-pied de 84 m². Elle propose trois chambres, une cuisine et une salle de bains.Le terrain de la maison est de 1 000 m².La maison est neuve.Cette maison se situe dans un quartier convoité. L’École Maternelle la Lévrière se trouve à moins de 10 minutes à pied. Côté transports en commun, il y a les gares Sérifontaine et Gisors à moins de 10 minutes en voiture. Il y a un commerce et une boulangerie à quelques minutes du logement.Son prix de vente est de 270 000 €.Contactez Carole GOITA ((Numéro supprimé)) pour toute question sur le bien.
L’actualité immobilière à Hébécourt
27/11/2023
02/11/2023
30/10/2023
20/10/2023
16/10/2023
16/10/2023