Maison à construire à Heudebouville (27600)
Images
Description
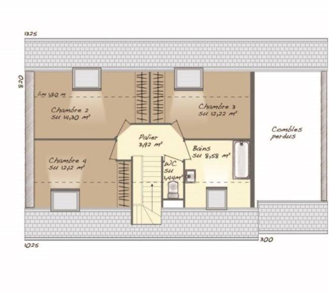
VENTE : maison F6 (100 m²) à Heudebouville
PROCHE DE ROUEN - MAISON 6 PIÈCES NEUVE
En vente : à deux pas de Rouen, Maisons Balency Gravigny vous propose à Heudebouville (27600), cette maison de 6 pièces de 100 m² et de 573 m² de terrain.
Cette maison comporte 2 niveaux. Son intérieur offre quatre chambres, une cuisine et deux salles de bains. La maison est neuve.
On trouve l'École Primaire les Coteaux Fleuris à moins de 10 minutes à pied. Côté transports, il y a les gares Saint-Pierre-du-Vauvray, Gaillon-Aubevoye et Val-de-Reuil à moins de 10 minutes en voiture. On trouve un accès à l'autoroute A13 à 1 km. On trouve un tennis, une boulangerie et une boucherie-charcuterie dans les environs.
Elle est proposée à l'achat pour 258 650 €.
Prenez contact avec Karen DELELIS (tél : (Numéro supprimé)) pour plus de renseignements sur ce bien, sur les démarches à suivre ou sur les modalités de vente. Maisons Balency Gravigny vous accompagne à toutes les étapes de votre projet et dans tous vos projets immobiliers.
Annonce proposée par un Agent Commercial Partenaire.
Logement susceptibles de vous intéresser
Nous vous proposons de découvrir aussi cette sélection de logements situés à moins de 10km de Heudebouville et qui seraient susceptibles de vous intéresser.
Heudebouville
TERRAINVENTE d’un terrain de 589 m² à HeudebouvillePROCHE DE ROUENEn vente à deux pas de Rouen à Heudebouville (27600), grand terrain. Réalisez-y votre résidence principale ou secondaire. L’École Primaire les Coteaux Fleuris se trouve à moins de 10 minutes à pied. Niveau transports en commun, il y a trois gares (Saint-Pierre-du-Vauvray, Gaillon-Aubevoye et Val-de-Reuil) à moins de 10 minutes en voiture. L’autoroute A13 est accessible à 1 km. On trouve un tennis, une boulangerie et une boucherie-charcuterie à proximité du bien.Il est à vendre pour la somme de 73 500 €. Prenez contact avec notre agence (Karen DELELIS : (Numéro supprimé)) pour tout renseignement sur ce terrain et sur les modalités de vente.Annonce proposée par un Agent Commercial Partenaire.
Le Vaudreuil
TERRAIN ET MAISONMaison de 5 pièces (148 m²) en vente accolée au VaudreuilMAISON 5 PIÈCES NEUVE – PROCHE DE ROUENÀ vendre : à 22 km de Rouen, accolée au Vaudreuil (27100), votre agence Les Maisons Extraco Pont-de-l’Arche est heureuse de vous proposer cette maison de 5 pièces de 148 m². Son intérieur comporte quatre chambres, une cuisine et deux salles de bains.Le terrain de cette maison s’étend sur 2 090 m².C’est une maison de 2 niveaux. Elle est neuve.Il y a quatre établissements scolaires à moins de 10 minutes à pied et, comme l’École Maternelle les Tilleuls, le Collège Michel de Montaigne ou l’École Primaire Privée Saint Henri. Niveau transports en commun, on trouve les gares Val-de-Reuil, Saint-Pierre-du-Vauvray et Pont-de-l’Arche à moins de 10 minutes en voiture. Les autoroutes A13 et A154 et la nationale N154 sont accessibles à moins de 9 km. Il y a trois tennis, une bibliothèque, des commerces, une boulangerie, une boucherie-charcuterie, un bureau de poste et une épicerie dans les environs.Elle est proposée à l’achat pour 426 560 €.Prenez contact avec Peter MORIN (tél : (Numéro supprimé)) pour obtenir de plus amples renseignements sur la maison ou sur les démarches à suivre. Les Maisons Extraco Pont-de-l’Arche est là pour vous accompagner à toutes les étapes de l’achat.
Le Vaudreuil
TERRAIN ET MAISONMaison de 7 pièces (158 m²) en vente accolée au VaudreuilPROCHE DE ROUEN – MAISON 7 PIÈCES NEUVEÀ vendre : localisée à deux pas de Rouen, nous vous proposons cette maison de 7 pièces de 158 m² accolée au Vaudreuil (27100).Cette maison compte 2 niveaux. Elle offre quatre chambres, une cuisine et trois salles de bains. Cette maison est neuve.Le terrain de la propriété est de 2 090 m².Quatre établissements scolaires sont implantés à moins de 10 minutes à pied, tout comme dont l’École Maternelle les Tilleuls, le Collège Michel de Montaigne et l’École Primaire Privée Saint Henri. Niveau transports en commun, il y a les gares Val-de-Reuil, Saint-Pierre-du-Vauvray et Pont-de-l’Arche à moins de 10 minutes en voiture. Les autoroutes A13 et A154 et la nationale N154 sont accessibles à moins de 9 km. On trouve trois tennis, une bibliothèque, des commerces, une boulangerie, un bureau de poste, une épicerie et une boucherie-charcuterie à proximité du logement.Elle est à vendre pour la somme de 448 680 €.Contactez notre agence (MORIN Peter : (Numéro supprimé)) pour plus d’informations sur cette maison, sur les démarches à suivre et sur les modalités de vente. Concrétisez vos projets immobiliers avec Les Maisons Extraco Pont-de-l’Arche.
Heudebouville
TERRAIN ET MAISONHeudebouville : maison T5 (120 m²) à vendreMAISON 5 PIÈCES NEUVE – PROCHE DE ROUENÀ vendre à deux pas de Rouen, nous vous proposons à Heudebouville (27600), cette maison de 5 pièces de plain-pied de 120 m². Conçue de plain-pied, elle compte trois chambres, une cuisine et deux salles de bains.Le terrain de la propriété s’étend sur 589 m².Cette maison est neuve.Il y a l’École Primaire les Coteaux Fleuris à moins de 10 minutes à pied. Niveau transports en commun, on trouve trois gares (Saint-Pierre-du-Vauvray, Gaillon-Aubevoye et Val-de-Reuil) à moins de 10 minutes en voiture. L’autoroute A13 est accessible à 1 km. Il y a un tennis, une boulangerie et une boucherie-charcuterie dans les environs.Elle est proposée à l’achat pour 344 910 €.Prenez contact avec Karen DELELIS ((Numéro supprimé)) pour tout renseignement sur la propriété ou sur les modalités de vente.Annonce proposée par un Agent Commercial Partenaire.
Heudebouville
TERRAIN ET MAISONVENTE : maison F6 (100 m²) à HeudebouvillePROCHE DE ROUEN – MAISON 6 PIÈCES NEUVEEn vente : à deux pas de Rouen, Maisons Balency Gravigny vous propose à Heudebouville (27600), cette maison de 6 pièces de 100 m² et de 573 m² de terrain.Cette maison comporte 2 niveaux. Son intérieur offre quatre chambres, une cuisine et deux salles de bains. La maison est neuve.On trouve l’École Primaire les Coteaux Fleuris à moins de 10 minutes à pied. Côté transports, il y a les gares Saint-Pierre-du-Vauvray, Gaillon-Aubevoye et Val-de-Reuil à moins de 10 minutes en voiture. On trouve un accès à l’autoroute A13 à 1 km. On trouve un tennis, une boulangerie et une boucherie-charcuterie dans les environs.Elle est proposée à l’achat pour 258 650 €.Prenez contact avec Karen DELELIS (tél : (Numéro supprimé)) pour plus de renseignements sur ce bien, sur les démarches à suivre ou sur les modalités de vente. Maisons Balency Gravigny vous accompagne à toutes les étapes de votre projet et dans tous vos projets immobiliers.Annonce proposée par un Agent Commercial Partenaire.
Le Vaudreuil
TERRAINAccolé à la commune du VAUDREUIL et ses nombreux commerces, terrain à bâtir prêt à accueillir votre future maison individuelle
Heudebouville
TERRAIN ET MAISONVENTE : maison de 6 pièces (100 m²) à HeudebouvillePROCHE DE ROUEN – MAISON 6 PIÈCES NEUVEÀ vendre : à 30 km de Rouen, votre agence Maisons Balency Gravigny est ravie de vous présenter cette maison de 6 pièces de 100 m² et de 589 m² de terrain à Heudebouville (27600). Elle dispose de quatre chambres, d’une cuisine et de deux salles de bains.Cette maison compte 2 niveaux. Elle est neuve.Il y a l’École Primaire les Coteaux Fleuris à moins de 10 minutes à pied. Côté transports, on trouve les gares Saint-Pierre-du-Vauvray, Gaillon-Aubevoye et Val-de-Reuil à moins de 10 minutes en voiture. L’autoroute A13 est accessible à 1 km. Il y a un tennis, une boulangerie et une boucherie-charcuterie à proximité.Son prix de vente est de 275 150 €.Contactez notre constructeur (DELELIS Karen : (Numéro supprimé)) pour toute information sur cette maison.Annonce proposée par un Agent Commercial Partenaire.
Le Vaudreuil
TERRAIN ET MAISONMaison de 6 pièces (174 m²) en vente accolée au VaudreuilMAISON 6 PIÈCES NEUVE – PROCHE DE ROUENÀ vendre à quelques kilomètres de Rouen, laissez vous charmer par cette maison de 6 pièces de 174 m² et de 2 090 m² de terrain accolée au Vaudreuil (27100). Elle comporte quatre chambres, une cuisine et deux salles de bains.Il s’agit d’une maison de 2 niveaux. Elle est neuve.Il y a quatre établissements scolaires à moins de 10 minutes à pied et dont l’École Maternelle les Tilleuls, le Collège Michel de Montaigne et l’École Primaire Privée Saint Henri. Niveau transports en commun, on trouve les gares Val-de-Reuil, Saint-Pierre-du-Vauvray et Pont-de-l’Arche à moins de 10 minutes en voiture. Les autoroutes A13 et A154 et la nationale N154 sont accessibles à moins de 9 km. Il y a trois tennis, une bibliothèque, des commerces, une boulangerie, une épicerie, une boucherie-charcuterie et un bureau de poste à proximité de la maison.Elle est à vendre pour la somme de 405 280 €.Prenez contact avec notre agence (Peter MORIN : (Numéro supprimé)) pour toute question sur cette maison ou sur les démarches à suivre. Les Maisons Extraco Pont-de-l’Arche vous accompagne dans tous vos projets immobiliers et à toutes les étapes de l’achat.
Heudebouville
TERRAIN ET MAISONHeudebouville : maison T5 (120 m²) à vendrePROCHE DE ROUEN – MAISON 5 PIÈCES NEUVEEn vente à quelques kilomètres de Rouen, nous vous présentons cette maison de 5 pièces de plain-pied de 120 m² à Heudebouville (27600).Elle se divise en trois chambres, une cuisine et deux salles de bains. Cette maison est neuve.Le terrain de la propriété s’étend sur 573 m².Il y a l’École Primaire les Coteaux Fleuris à moins de 10 minutes à pied. Niveau transports, on trouve trois gares (Saint-Pierre-du-Vauvray, Gaillon-Aubevoye et Val-de-Reuil) à moins de 10 minutes en voiture. L’autoroute A13 est accessible à 1 km. Il y a un tennis, une boulangerie et une boucherie-charcuterie à quelques minutes.Elle est à vendre pour la somme de 328 410 €.Contactez notre agence (Karen DELELIS : (Numéro supprimé)) pour toute question sur la propriété ou sur les modalités de vente.Annonce proposée par un Agent Commercial Partenaire.
L’actualité immobilière à Heudebouville
27/11/2023
02/11/2023
30/10/2023
20/10/2023
16/10/2023
16/10/2023