Maison à construire à Heudreville-sur-Eure (27400)
Images
Description
VENTE : maison de 5 pièces (80 m²) à Heudreville-sur-Eure
PROCHE D'ÉVREUX - MAISON 5 PIÈCES NEUVE
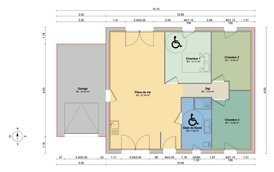
En vente : à deux pas d'Évreux, Maisons Balency Boos vous présente cette maison de 5 pièces de plain-pied de 80 m² et de 800 m² de terrain à Heudreville-sur-Eure (27400). Conçue de plain-pied, elle compte trois chambres, une cuisine et une salle de bains.
Cette maison est neuve.
Une école primaire est implantée dans le quartier. Les autoroutes A154 et A13 et la nationale N154 sont accessibles à moins de 7 km. On trouve une bibliothèque et une boulangerie à proximité.
Elle est à vendre pour la somme de 199 000 €.
Prenez contact avec notre agence (Sébastien MASSON : (Numéro supprimé)) pour tout renseignement sur la maison ou sur les modalités de vente. Donnez vie à vos projets immobiliers avec Maisons Balency Boos.
Annonce proposée par un Agent Commercial Partenaire.
Logement susceptibles de vous intéresser
Nous vous proposons de découvrir aussi cette sélection de logements situés à moins de 10km de Heudreville-sur-Eure et qui seraient susceptibles de vous intéresser.
Gravigny
TERRAINVENTE : terrain de 520 m² au Boulay-MorinPROCHE D’ÉVREUXAu Boulay-Morin (27930) à quelques kilomètres d’Évreux, imaginez la maison de vos rêves sur ce terrain de 520 m². Il y a des écoles primaires dans le quartier. Niveau transports en commun, on trouve la gare Évreux Normandie à moins de 10 minutes en voiture. Les nationales N154 et N13 sont accessibles à moins de 8 km.Son prix de vente est de 60 000 €. Contactez Aurélie KTARI ((Numéro supprimé)) pour plus de renseignements sur le terrain, sur les démarches à suivre ou sur les modalités de vente. Les Maisons Extraco Gravigny vous accompagne dans tous vos projets immobiliers et à toutes les étapes de votre projet.
Le Boulay-Morin
TERRAINTerrain de 525 m² à vendre au Boulay-MorinPROCHE D’ÉVREUXGrand terrain à quelques kilomètres d’Évreux. De 525 m², ce terrain se situe dans Le Boulay-Morin (27930). Il y a des écoles primaires dans le quartier. Niveau transports, on trouve la gare Évreux Normandie à moins de 10 minutes en voiture. Les nationales N154 et N13 sont accessibles à moins de 8 km.Il est à vendre pour la somme de 59 000 €. Prenez contact avec Karen DELELIS (tél : (Numéro supprimé)) pour obtenir de plus amples informations sur ce terrain ou sur les modalités de vente. Concrétisez vos projets immobiliers avec Maisons Balency Gravigny.Annonce proposée par un Agent Commercial Partenaire.
Le Boulay-Morin
TERRAINVENTE : terrain de 525 m² au Boulay-MorinPROCHE D’ÉVREUXÀ deux pas d’Évreux au Boulay-Morin (27930), grand terrain. Réalisez-y votre résidence principale ou secondaire. Des établissements scolaires maternelles et élémentaires sont implantés dans le quartier. Niveau transports, il y a la gare Évreux Normandie à moins de 10 minutes en voiture. Les nationales N154 et N13 sont accessibles à moins de 8 km.Il est proposé à l’achat pour 59 000 €. Prenez contact avec Karen DELELIS ((Numéro supprimé)) pour toute information sur ce terrain, sur les modalités de vente ou sur les démarches à suivre.Annonce proposée par un Agent Commercial Partenaire.
Le Boulay-Morin
TERRAINVENTE : terrain de 897 m² au Boulay-MorinPROCHE D’ÉVREUXÀ vendre à quelques kilomètres d’Évreux au Boulay-Morin (27930), grand terrain. Réalisez-y la maison de vos rêves. Des écoles maternelles et élémentaires sont implantées dans le quartier. Côté transports en commun, on trouve la gare Évreux Normandie à moins de 10 minutes en voiture. Les nationales N154 et N13 sont accessibles à moins de 8 km.Il est à vendre pour la somme de 71 000 €. N’hésitez pas à prendre contact avec notre agence (Karen DELELIS : (Numéro supprimé)) pour toute information sur le terrain ou sur les démarches à suivre. Concrétisez vos projets immobiliers avec Maisons Balency Gravigny.Annonce proposée par un Agent Commercial Partenaire.
Le Boulay-Morin
TERRAINVENTE : terrain de 897 m² au Boulay-MorinPROCHE D’ÉVREUXAu Boulay-Morin (27930) à vendre à deux pas d’Évreux, découvrez ce terrain de 897 m². Des établissements scolaires primaires sont implantés dans le quartier. Côté transports en commun, il y a la gare Évreux Normandie à moins de 10 minutes en voiture. Les nationales N154 et N13 sont accessibles à moins de 8 km.Son prix de vente est de 71 000 €. Contactez Karen DELELIS ((Numéro supprimé)) pour plus d’informations sur le terrain ou sur les modalités de vente. Maisons Balency Gravigny est là pour vous accompagner dans toutes vos démarches.Annonce proposée par un Agent Commercial Partenaire.
Saint-Vigor
TERRAINSaint-Vigor : terrain de 2 160 m² à vendrePROCHE D’ÉVREUXGrand terrain à vendre à deux pas d’Évreux. De 2 160 m², ce terrain se situe dans Saint-Vigor (27930). Il y a des établissements scolaires (de la maternelle au lycée) à moins de 10 minutes en voiture, tout comme deux structures d’accueil pour les enfants en bas âge à moins de 10 minutes à pied. L’autoroute A13 et les nationales N154 et N13 sont accessibles à moins de 10 km. On trouve des tennis, deux bibliothèques, des boulangeries, des commerces, trois supermarchés, quatre supérettes et des épiceries dans les environs. Enfin, le marché Rue de Gaulle anime le quartier tous les mardis matin.Il est à vendre pour la somme de 168 000 €. Contactez notre agence (DELELIS Karen : (Numéro supprimé)) pour tout renseignement sur ce terrain, sur les démarches à suivre et sur les modalités de vente. Donnez vie à vos projets immobiliers avec Maisons Balency Gravigny.Annonce proposée par un Agent Commercial Partenaire.
Saint-Vigor
TERRAINVENTE : terrain de 2 160 m² à Saint-VigorPROCHE D’ÉVREUXÀ Saint-Vigor (27930) à 11 km d’Évreux, découvrez ce terrain de 2 160 m². Tous les types d’écoles (de la maternelle au lycée) sont implantés à moins de 10 minutes en voiture, tout comme deux structures d’accueil pour la petite enfance à moins de 10 minutes à pied. L’autoroute A13 et les nationales N154 et N13 sont accessibles à moins de 10 km. On trouve des tennis, deux bibliothèques, des boulangeries, des commerces, trois supermarchés, des épiceries et des bureaux de poste dans les environs. Le marché Rue de Gaulle anime les environs tous les mardis matin.Il est à vendre pour la somme de 168 000 €. N’hésitez pas à prendre contact avec Karen DELELIS (tél : (Numéro supprimé)) pour plus d’informations sur le terrain, sur les démarches à suivre ou sur les modalités de vente.Annonce proposée par un Agent Commercial Partenaire.
Le Boulay-Morin
TERRAIN ET MAISONMaison de 5 pièces (76 m²) à vendre au Boulay-MorinPROCHE D’ÉVREUX – MAISON 5 PIÈCES NEUVEEn vente à quelques kilomètres d’Évreux, votre agence Maisons Balency Gravigny est heureuse de vous présenter cette maison de 5 pièces de 76 m² et de 525 m² de terrain au Boulay-Morin (27930). Elle se divise en trois chambres, une cuisine et une salle de bains.C’est une maison de 2 niveaux. Elle est neuve.Des écoles maternelles et élémentaires sont implantées dans le quartier. Niveau transports en commun, il y a la gare Évreux Normandie à moins de 10 minutes en voiture. Les nationales N154 et N13 sont accessibles à moins de 8 km.Elle est proposée à l’achat pour 192 540 €.Contactez notre agence (DELELIS Karen : (Numéro supprimé)) pour tout renseignement sur cette maison, sur les démarches à suivre ou sur les modalités de vente.Annonce proposée par un Agent Commercial Partenaire.
Le Boulay-Morin
TERRAIN ET MAISONVENTE d’une maison de 5 pièces (120 m²) au Boulay-MorinPROCHE D’ÉVREUX – MAISON 5 PIÈCES NEUVEÀ deux pas d’Évreux, en vente au Boulay-Morin (27930), notre agence Maisons Balency Gravigny est heureuse de vous présenter cette maison de 5 pièces de plain-pied de 120 m² et de 525 m² de terrain.Son intérieur se divise en trois chambres, une cuisine et deux salles de bains. Cette maison est neuve.Des établissements scolaires maternelles et élémentaires sont implantés dans le quartier. Niveau transports en commun, il y a la gare Évreux Normandie à moins de 10 minutes en voiture. Les nationales N154 et N13 sont accessibles à moins de 8 km.Elle est à vendre pour la somme de 330 410 €.N’hésitez pas à prendre contact avec notre constructeur (Karen DELELIS : (Numéro supprimé)) pour tout renseignement sur la maison. Maisons Balency Gravigny vous accompagne à toutes les étapes de votre projet et dans toutes vos démarches.Annonce proposée par un Agent Commercial Partenaire.
L’actualité immobilière à Heudreville-sur-Eure
27/11/2023
02/11/2023
30/10/2023
20/10/2023
16/10/2023
16/10/2023