Maison à construire à Heuqueville (27700)
Images
Description
VENTE : maison de 4 pièces (94 m²) à Heuqueville
EMPLACEMENT PRIVILÉGIÉ - MAISON 4 PIÈCES NEUVE
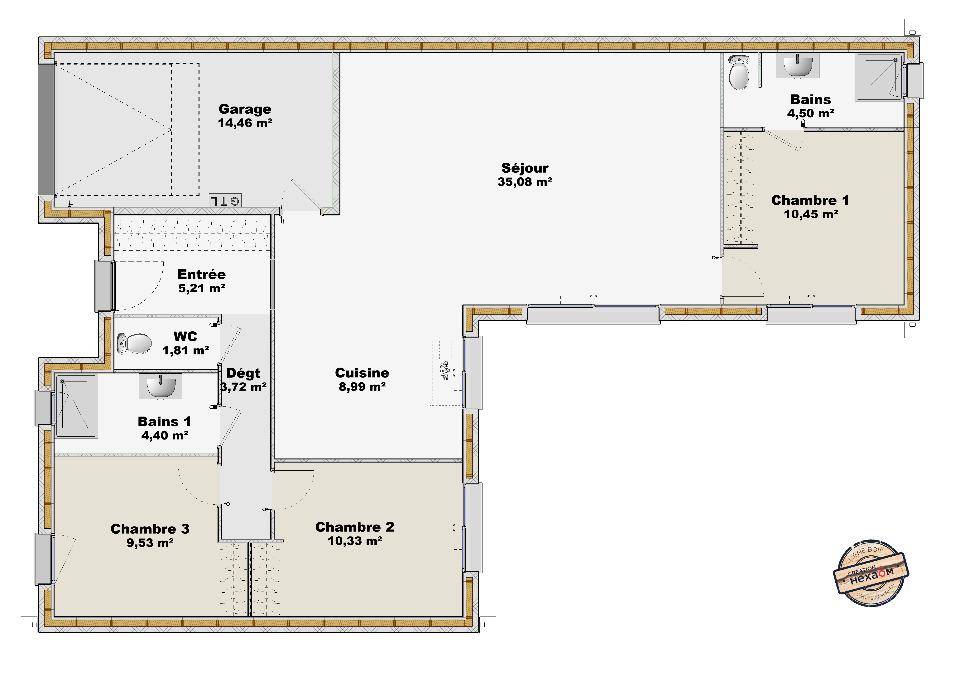
À quelques kilomètres de Rouen, votre agence Les Maisons Extraco Les Andelys est ravie de vous proposer cette maison de 4 pièces de plain-pied de 94 m² en vente, bénéficiant d'un emplacement privilégié dans Heuqueville (27700). Son intérieur est composé de trois chambres, d'une cuisine et de deux salles de bains.
Le terrain de la propriété est de 800 m².
La maison est neuve.
La maison est située dans un secteur prisé. On y trouve une école primaire. Niveau transports, on trouve la gare Val-de-Reuil à moins de 10 minutes en voiture. Les autoroutes A13 et A154 et la nationale N154 sont accessibles à moins de 18 km.
Son prix de vente est de 250 000 €.
Prenez contact avec notre agence (Gilles BOREAU : (Numéro supprimé)) pour plus de renseignements sur la maison et sur les démarches à suivre. Les Maisons Extraco Les Andelys est là pour vous accompagner dans tous vos projets immobiliers.
Logement susceptibles de vous intéresser
Nous vous proposons de découvrir aussi cette sélection de logements situés à moins de 10km de Heuqueville et qui seraient susceptibles de vous intéresser.
Le Vaudreuil
TERRAINAccolé à la commune du VAUDREUIL, sur la commune de SAINT ETIENNE DU VAUVRAY, dans un quartier résidentiel, terrain à bâtir prêt à accueillir votre future maison individuelle
Le Vaudreuil
TERRAIN ET MAISONVENTE d’une maison de 4 pièces (135 m²) accolée au VaudreuilPROCHE DE ROUEN – MAISON 4 PIÈCES NEUVEEn vente à 22 km de Rouen, nous vous présentons cette maison de 4 pièces de 135 m² accolée au Vaudreuil (27100).Cette maison possède 2 niveaux. Elle propose cinq chambres, une cuisine et deux salles de bains. La maison est neuve.Le terrain du bien est de 1 723 m².Quatre établissements scolaires se trouvent à moins de 10 minutes à pied, tout comme dont l’École Maternelle les Tilleuls, le Collège Michel de Montaigne et l’École Primaire Privée Saint Henri. Côté transports en commun, il y a trois gares (Val-de-Reuil, Saint-Pierre-du-Vauvray et Pont-de-l’Arche) à moins de 10 minutes en voiture. Les autoroutes A13 et A154 et la nationale N154 sont accessibles à moins de 9 km. On trouve trois tennis, une bibliothèque, des commerces, une boulangerie, une boucherie-charcuterie, une épicerie et un bureau de poste à quelques minutes.Elle est à vendre pour la somme de 317 900 €.Contactez notre agence (MORIN Peter : (Numéro supprimé)) pour plus de renseignements sur cette maison ou sur les modalités de vente. Les Maisons Extraco Pont-de-l’Arche est là pour vous accompagner à toutes les étapes de votre projet.
Le Vaudreuil
TERRAIN ET MAISONVENTE d’une maison T4 (141 m²) accolée au VaudreuilMAISON 4 PIÈCES NEUVE – PROCHE DE ROUENÀ vendre : située à deux pas de Rouen, Les Maisons Extraco Pont-de-l’Arche vous présente cette maison de 4 pièces de 141 m² accolée au Vaudreuil (27100).Il s’agit d’une maison de 2 niveaux. Son intérieur se divise en quatre chambres, une cuisine et deux salles de bains. La maison est neuve.Le terrain de la propriété est de 1 723 m².Il y a quatre établissements scolaires à moins de 10 minutes à pied et dont l’École Maternelle les Tilleuls, le Collège Michel de Montaigne et l’École Primaire Privée Saint Henri. Côté transports, on trouve trois gares (Val-de-Reuil, Saint-Pierre-du-Vauvray et Pont-de-l’Arche) à moins de 10 minutes en voiture. Les autoroutes A13 et A154 et la nationale N154 sont accessibles à moins de 9 km. Il y a trois tennis, une bibliothèque, des commerces, une boulangerie, un bureau de poste, une boucherie-charcuterie et une épicerie dans les environs.Son prix de vente est de 351 700 €.Prenez contact avec notre agence (MORIN Peter : (Numéro supprimé)) pour toute question sur cette propriété ou sur les modalités de vente.
Le Vaudreuil
TERRAIN ET MAISONMaison T5 (183 m²) à vendre accolée au VaudreuilMAISON 5 PIÈCES NEUVE – PROCHE DE ROUENÀ vendre : à deux pas de Rouen, Les Maisons Extraco Pont-de-l’Arche vous présente cette maison de 5 pièces de 183 m² et de 1 723 m² de terrain accolée au Vaudreuil (27100).Cette maison compte 2 niveaux. Son intérieur se divise en trois chambres, une cuisine et trois salles de bains. La maison est neuve.Il y a quatre établissements scolaires à moins de 10 minutes à pied et, parmi lesquels l’École Maternelle les Tilleuls, le Collège Michel de Montaigne et l’École Primaire Privée Saint Henri. Niveau transports en commun, on trouve trois gares (Val-de-Reuil, Saint-Pierre-du-Vauvray et Pont-de-l’Arche) à moins de 10 minutes en voiture. Les autoroutes A13 et A154 et la nationale N154 sont accessibles à moins de 9 km. Il y a trois tennis, une bibliothèque, des commerces, une boulangerie, une épicerie, un bureau de poste et une boucherie-charcuterie à proximité du bien.Elle est à vendre pour la somme de 431 200 €.Contactez notre agence (MORIN Peter : (Numéro supprimé)) pour obtenir de plus amples informations sur la maison, sur les démarches à suivre ou sur les modalités de vente.
Le Manoir
TERRAINSur la commune du MANOIR, dans un quartier résidentiel, terrain à bâtir prêt à accueillir votre future maison individuelle
Le Manoir
TERRAIN ET MAISONVENTE : maison de 3 pièces (50 m²) au ManoirPROCHE DE ROUEN – MAISON 3 PIÈCES NEUVEEn vente : à deux pas de Rouen, ayez le coup de coeur pour cette maison de 3 pièces de plain-pied de 50 m² au Manoir (27460). Elle comporte deux chambres, une cuisine et une salle de bains.Le terrain de la propriété s’étend sur 454 m².Cette maison est neuve.On trouve l’École Maternelle Yannick Bayart et l’École Élémentaire Albert Becquart à moins de 10 minutes à pied. Niveau transports en commun, il y a six gares à moins de 10 minutes en voiture. Les autoroutes A13 et A154 sont accessibles à moins de 8 km. On trouve une boulangerie, une boucherie-charcuterie et une épicerie à quelques minutes à peine.Elle est à vendre pour la somme de 159 500 €.N’hésitez pas à prendre contact avec Peter MORIN (tél : (Numéro supprimé)) pour toute information sur la maison, sur les démarches à suivre ou sur les modalités de vente. Faites de vos projets immobiliers une réalité avec Les Maisons Extraco Pont-de-l’Arche.
Le Manoir
TERRAIN ET MAISONVENTE d’une maison de 3 pièces (65 m²) au ManoirPROCHE DE ROUEN – MAISON 3 PIÈCES NEUVEÀ vendre : à 15 km de Rouen, nous sommes ravis de vous proposer au Manoir (27460), cette maison de 3 pièces de plain-pied de 65 m². Elle compte deux chambres, une cuisine et une salle de bains.Le terrain de la propriété s’étend sur 454 m².La maison est neuve.Il y a l’École Maternelle Yannick Bayart et l’École Élémentaire Albert Becquart à moins de 10 minutes à pied. Niveau transports en commun, on trouve six gares à moins de 10 minutes en voiture. Les autoroutes A13 et A154 sont accessibles à moins de 8 km. Il y a une boulangerie, une épicerie et une boucherie-charcuterie à proximité.Elle est proposée à l’achat pour 171 100 €.N’hésitez pas à prendre contact avec notre agence (Peter MORIN : (Numéro supprimé)) pour plus d’informations sur cette maison. Donnez vie à vos projets immobiliers avec Les Maisons Extraco Pont-de-l’Arche.
Le Manoir
TERRAIN ET MAISONVENTE : maison T4 (80 m²) au ManoirPROCHE DE ROUEN – MAISON 4 PIÈCES NEUVEEn vente : à deux pas de Rouen, nous sommes heureux de vous proposer au Manoir (27460), cette maison de 4 pièces de plain-pied de 80 m² et de 454 m² de terrain. Son intérieur comporte trois chambres, une cuisine et une salle de bains.Cette maison est neuve.L’École Maternelle Yannick Bayart et l’École Élémentaire Albert Becquart sont implantées à moins de 10 minutes à pied. Niveau transports en commun, on trouve six gares à moins de 10 minutes en voiture. Les autoroutes A13 et A154 sont accessibles à moins de 8 km. Il y a une boulangerie, une boucherie-charcuterie et une épicerie dans les environs.Son prix de vente est de 186 000 €.Contactez notre agence (Peter MORIN : (Numéro supprimé)) pour obtenir de plus amples informations sur la maison ou sur les démarches à suivre.
Val d'Orger
TERRAINVENTE d’un terrain de 980 m² à Gaillardbois-CressenvilleEMPLACEMENT PRIVILÉGIÉ – PROCHE DE ROUENGrand terrain à deux pas de Rouen. De 980 m², ce terrain se situe bénéficiant d’un emplacement privilégié dans Gaillardbois-Cressenville (27440). Il donne sur un espace vert. Dans un quartier convoité, ce terrain est proche des écoles et des commerces. Plusieurs écoles (maternelle, élémentaire, primaire et collège) sont implantées à moins de 10 minutes en voiture. Il y a trois bibliothèques, des tennis, deux bassins de natation, des commerces, des supermarchés, des boulangeries, quatre épiceries et quatre boucheries-charcuteries à quelques minutes à peine. Enfin, le marché Place de la République anime les environs tous les mardis matin.Il est à vendre pour la somme de 57 000 €. Prenez contact avec notre agence (GOITA Carole : (Numéro supprimé)) pour toute question sur le terrain ou sur les modalités de vente. Extraco Construction Rénovation Les Andelys vous accompagne dans toutes vos démarches et à toutes les étapes de votre projet.
L’actualité immobilière à Heuqueville
27/11/2023
02/11/2023
30/10/2023
20/10/2023
16/10/2023
16/10/2023