Maison à construire à Incarville (27400)
Images
Description
VENTE d'une maison de 5 pièces (76 m²) à Incarville
PROCHE DE ROUEN - MAISON 5 PIÈCES NEUVE
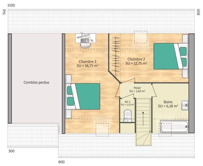
Maison au style contemporain qui offre quatre chambres, dont une au RDC. A l'étage, les 3 autres chambres accompagnées d'une salle de bain et de WC. Lorsque vous entrez dans la grande pièce de vie ouverte, vous découvrez sur un grand séjour lumineux avec ses baies coulissantes en alu, une cuisine donnant sur la salle a manger et un cellier en arrière cuisine. Cette construction dispose de prestations de qualité ; chauffage par pompe a chaleur, répondant aux normes RE2020 en vigueurs, menuiseries alu laquées ou en PVC avec volets roulant électriques, domotique et centralisation, carrelage design dans la gamme constructeur, choix des portes intérieures, des appuis de fenêtres, couverture en terre cuite ou en ardoise...
Les finitions de ce modèle seront une véritable source de fierté.
N'hésitez pas à prendre contact avec Karen GOHIER ((Numéro supprimé)) pour toute information sur la maison, sur les démarches à suivre ou sur les modalités de vente. Donnez vie à vos projets immobiliers avec Maisons Balency Louviers.
Annonce proposée par un Agent Commercial Partenaire.
Logement susceptibles de vous intéresser
Nous vous proposons de découvrir aussi cette sélection de logements situés à moins de 10km de Incarville et qui seraient susceptibles de vous intéresser.
Saint-Pierre-lès-Elbeuf
TERRAINAccolé à la commune de SAINT PIERRE LES ELBEUF, sur la commune de MARTOT, dans un quartier résidentiel, terrain à bâtir prêt à accueillir votre future maison individuelle
Le Vaudreuil
TERRAINAccolé à la commune du VAUDREUIL, sur la commune de SAINT ETIENNE DU VAUVRAY, dans un quartier résidentiel, terrain à bâtir prêt à accueillir votre future maison individuelle
Incarville
TERRAINSur la commune de INCARVILLE, dans un quartier résidentiel, terrain à bâtir prêt à accueillir votre future maison individuelle
Saint-Pierre-lès-Elbeuf
TERRAIN ET MAISONVENTE d’une maison de 4 pièces (71 m²) accolée à Saint-Pierre-lès-ElbeufPROCHE DE ROUEN – MAISON 4 PIÈCES NEUVEEn vente : située à quelques kilomètres de Rouen, nous sommes ravis de vous proposer accolée à Saint-Pierre-lès-Elbeuf (76320), cette maison de 4 pièces de plain-pied de 71 m² et de 605 m² de terrain. Conçue de plain-pied, elle compte trois chambres, une cuisine et une salle de bains.Cette maison est neuve.Le Collège Jacques-Emile Blanche et le Groupe Scolaire Monod-Camus sont implantés à moins de 10 minutes à pied. Niveau transports, il y a quatre gares à moins de 10 minutes en voiture. Les autoroutes A13 et A139 et la nationale N138 sont accessibles à moins de 8 km. On trouve une bibliothèque, des commerces, quatre supermarchés, deux boulangeries, un bureau de poste et une boucherie-charcuterie à quelques minutes de la maison.Elle est à vendre pour la somme de 207 300 €.N’hésitez pas à prendre contact avec notre agence (MORIN Peter : (Numéro supprimé)) pour tout renseignement sur la maison. Faites de vos projets immobiliers une réalité avec Les Maisons Extraco Pont-de-l’Arche.
Saint-Pierre-lès-Elbeuf
TERRAIN ET MAISONMaison T5 (92 m²) en vente accolée à Saint-Pierre-lès-ElbeufPROCHE DE ROUEN – MAISON 5 PIÈCES NEUVEÀ vendre : à deux pas de Rouen, accolée à Saint-Pierre-lès-Elbeuf (76320), nous vous proposons cette maison de 5 pièces de plain-pied de 92 m² et de 605 m² de terrain.Conçue de plain-pied, elle inclut quatre chambres, une cuisine et une salle de bains. Cette maison est neuve.Il y a le Collège Jacques-Emile Blanche et le Groupe Scolaire Monod-Camus à moins de 10 minutes à pied. Niveau transports, on trouve quatre gares à moins de 10 minutes en voiture. Les autoroutes A13 et A139 et la nationale N138 sont accessibles à moins de 8 km. Il y a une bibliothèque, des commerces, quatre supermarchés, deux boulangeries, une boucherie-charcuterie et un bureau de poste à quelques minutes du logement.Elle est à vendre pour la somme de 241 300 €.Contactez notre agence (Peter MORIN : (Numéro supprimé)) pour tout renseignement sur la maison ou sur les modalités de vente. Les Maisons Extraco Pont-de-l’Arche vous accompagne à toutes les étapes de votre projet et dans tous vos projets immobiliers.
Saint-Pierre-lès-Elbeuf
TERRAIN ET MAISONVENTE : maison de 5 pièces (114 m²) accolée à Saint-Pierre-lès-ElbeufPROCHE DE ROUEN – MAISON 5 PIÈCES NEUVEÀ deux pas de Rouen, ayez le coup de coeur pour à vendre accolée à Saint-Pierre-lès-Elbeuf (76320), cette maison de 5 pièces de plain-pied de 114 m² et de 605 m² de terrain.Conçue de plain-pied, elle est composée de quatre chambres, d’une cuisine et d’une salle de bains. Cette maison est neuve.Le Collège Jacques-Emile Blanche et le Groupe Scolaire Monod-Camus se trouvent à moins de 10 minutes à pied. Côté transports en commun, il y a quatre gares à moins de 10 minutes en voiture. Les autoroutes A13 et A139 et la nationale N138 sont accessibles à moins de 8 km. On trouve une bibliothèque, des commerces, quatre supermarchés, deux boulangeries, un bureau de poste et une boucherie-charcuterie à proximité du logement.Son prix de vente est de 248 800 €.N’hésitez pas à prendre contact avec notre agence (MORIN Peter : (Numéro supprimé)) pour toute question sur la maison.
Le Vaudreuil
TERRAIN ET MAISONVENTE d’une maison de 4 pièces (135 m²) accolée au VaudreuilPROCHE DE ROUEN – MAISON 4 PIÈCES NEUVEEn vente à 22 km de Rouen, nous vous présentons cette maison de 4 pièces de 135 m² accolée au Vaudreuil (27100).Cette maison possède 2 niveaux. Elle propose cinq chambres, une cuisine et deux salles de bains. La maison est neuve.Le terrain du bien est de 1 723 m².Quatre établissements scolaires se trouvent à moins de 10 minutes à pied, tout comme dont l’École Maternelle les Tilleuls, le Collège Michel de Montaigne et l’École Primaire Privée Saint Henri. Côté transports en commun, il y a trois gares (Val-de-Reuil, Saint-Pierre-du-Vauvray et Pont-de-l’Arche) à moins de 10 minutes en voiture. Les autoroutes A13 et A154 et la nationale N154 sont accessibles à moins de 9 km. On trouve trois tennis, une bibliothèque, des commerces, une boulangerie, une boucherie-charcuterie, une épicerie et un bureau de poste à quelques minutes.Elle est à vendre pour la somme de 317 900 €.Contactez notre agence (MORIN Peter : (Numéro supprimé)) pour plus de renseignements sur cette maison ou sur les modalités de vente. Les Maisons Extraco Pont-de-l’Arche est là pour vous accompagner à toutes les étapes de votre projet.
Le Vaudreuil
TERRAIN ET MAISONVENTE d’une maison T4 (141 m²) accolée au VaudreuilMAISON 4 PIÈCES NEUVE – PROCHE DE ROUENÀ vendre : située à deux pas de Rouen, Les Maisons Extraco Pont-de-l’Arche vous présente cette maison de 4 pièces de 141 m² accolée au Vaudreuil (27100).Il s’agit d’une maison de 2 niveaux. Son intérieur se divise en quatre chambres, une cuisine et deux salles de bains. La maison est neuve.Le terrain de la propriété est de 1 723 m².Il y a quatre établissements scolaires à moins de 10 minutes à pied et dont l’École Maternelle les Tilleuls, le Collège Michel de Montaigne et l’École Primaire Privée Saint Henri. Côté transports, on trouve trois gares (Val-de-Reuil, Saint-Pierre-du-Vauvray et Pont-de-l’Arche) à moins de 10 minutes en voiture. Les autoroutes A13 et A154 et la nationale N154 sont accessibles à moins de 9 km. Il y a trois tennis, une bibliothèque, des commerces, une boulangerie, un bureau de poste, une boucherie-charcuterie et une épicerie dans les environs.Son prix de vente est de 351 700 €.Prenez contact avec notre agence (MORIN Peter : (Numéro supprimé)) pour toute question sur cette propriété ou sur les modalités de vente.
Le Vaudreuil
TERRAIN ET MAISONMaison T5 (183 m²) à vendre accolée au VaudreuilMAISON 5 PIÈCES NEUVE – PROCHE DE ROUENÀ vendre : à deux pas de Rouen, Les Maisons Extraco Pont-de-l’Arche vous présente cette maison de 5 pièces de 183 m² et de 1 723 m² de terrain accolée au Vaudreuil (27100).Cette maison compte 2 niveaux. Son intérieur se divise en trois chambres, une cuisine et trois salles de bains. La maison est neuve.Il y a quatre établissements scolaires à moins de 10 minutes à pied et, parmi lesquels l’École Maternelle les Tilleuls, le Collège Michel de Montaigne et l’École Primaire Privée Saint Henri. Niveau transports en commun, on trouve trois gares (Val-de-Reuil, Saint-Pierre-du-Vauvray et Pont-de-l’Arche) à moins de 10 minutes en voiture. Les autoroutes A13 et A154 et la nationale N154 sont accessibles à moins de 9 km. Il y a trois tennis, une bibliothèque, des commerces, une boulangerie, une épicerie, un bureau de poste et une boucherie-charcuterie à proximité du bien.Elle est à vendre pour la somme de 431 200 €.Contactez notre agence (MORIN Peter : (Numéro supprimé)) pour obtenir de plus amples informations sur la maison, sur les démarches à suivre ou sur les modalités de vente.
L’actualité immobilière à Incarville
27/11/2023
02/11/2023
30/10/2023
20/10/2023
16/10/2023
16/10/2023