Maison à construire à Jumelles (27220)
Images
Description
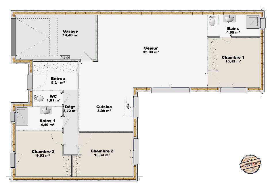
Maison T4 (94 m²) en vente à Jumelles
EMPLACEMENT PRIVILÉGIÉ - MAISON 4 PIÈCES NEUVE
À vendre : à deux pas d'Évreux, notre agence Maisons Balency Louviers est heureuse de vous proposer cette maison de 4 pièces de plain-pied de 94 m², bénéficiant d'un emplacement privilégié dans Jumelles (27220). Conçue de plain-pied, elle comporte trois chambres, une cuisine et deux salles de bains.
Le terrain de la propriété s'étend sur 764 m².
Cette maison est neuve.
Cette maison est située dans un secteur prisé. Plusieurs écoles (maternelle, élémentaire, primaire et collège) sont implantées à moins de 10 minutes en voiture. Les nationales N154 et N13 sont accessibles à moins de 10 km. Il y a des tennis, une bibliothèque, des commerces, trois supermarchés, des boulangeries, trois boucheries-charcuteries et trois supérettes à quelques minutes de la maison. Enfin, le marché Place Gambetta a lieu chaque vendredi matin.
Elle est proposée à l'achat pour 2 570 000 €.
Prenez contact avec Sébastien HOTTE (tél : (Numéro supprimé)) pour toute information sur le bien. Maisons Balency Louviers est là pour vous accompagner à toutes les étapes de votre projet.
Annonce proposée par un Agent Commercial Partenaire.
Logement susceptibles de vous intéresser
Nous vous proposons de découvrir aussi cette sélection de logements situés à moins de 10km de Jumelles et qui seraient susceptibles de vous intéresser.
Le Plessis-Grohan
TERRAIN ET MAISONVENTE d’une maison de 4 pièces (84 m²) au Plessis-GrohanIDÉALEMENT SITUÉE – MAISON 4 PIÈCES NEUVEÀ 8 km d’Évreux, découvrez cette maison de 4 pièces de plain-pied de 84 m² à vendre, idéalement située dans Le Plessis-Grohan (27180).Conçue de plain-pied, elle compte trois chambres, une cuisine et une salle de bains. Cette maison est neuve.Le terrain du bien est de 544 m².Le bien est situé dans un secteur recherché. Une école élémentaire y est implantée. Côté transports en commun, on trouve les gares Évreux Normandie et La Bonneville-sur-Iton à moins de 10 minutes en voiture. Les nationales N154 et N13 sont accessibles à moins de 7 km.Il est à vendre pour la somme de 183 200 €.N’hésitez pas à prendre contact avec notre agence (SONMEZ Oumayma : (Numéro supprimé)) pour toute question sur la maison, sur les modalités de vente ou sur les démarches à suivre. Concrétisez vos projets immobiliers avec Les Maisons Extraco Gravigny.
Guichainville
TERRAIN ET MAISONVENTE d’une maison F5 (86 m²) à GuichainvilleQUARTIER RECHERCHÉ – MAISON 5 PIÈCES NEUVEEn vente : localisée à deux pas d’Évreux, située dans un secteur convoité de Guichainville (27930), nous sommes heureux de vous présenter cette maison de 5 pièces de 86 m² et de 524 m² de terrain.Cette maison possède 2 niveaux. Elle comporte trois chambres, une cuisine et une salle de bains. Cette maison est neuve.Cette propriété se situe dans un quartier attractif. On y trouve des établissements scolaires maternelles et élémentaires. Côté transports, on trouve la gare Évreux Normandie à moins de 10 minutes en voiture. Les nationales N13 et N154 sont accessibles à moins de 3 km. Il y a un tennis, cinq commerces et une boulangerie dans les environs.Son prix de vente est de 199 600 €.Prenez contact avec Oumayma SONMEZ ((Numéro supprimé)) pour toute information sur la maison, sur les modalités de vente ou sur les démarches à suivre. Les Maisons Extraco Gravigny vous accompagne à toutes les étapes de votre projet et dans tous vos projets immobiliers.
Guichainville
TERRAIN ET MAISONVENTE : maison T4 (82 m²) à GuichainvilleQUARTIER RECHERCHÉ – MAISON 4 PIÈCES NEUVEÀ vendre à deux pas d’Évreux, nous sommes heureux de vous proposer cette maison de 4 pièces de plain-pied de 82 m² située dans un quartier prisé de Guichainville (27930).Elle se divise en trois chambres, une cuisine et une salle de bains. La maison est neuve.Le terrain du bien est de 524 m².Cette maison est située dans un secteur convoité. On y trouve des établissements scolaires primaires. Côté transports en commun, il y a la gare Évreux Normandie à moins de 10 minutes en voiture. Les nationales N13 et N154 sont accessibles à moins de 3 km. On trouve un tennis, cinq commerces et une boulangerie à proximité.Elle est à vendre pour la somme de 204 800 €.N’hésitez pas à prendre contact avec notre agence (Oumayma SONMEZ : (Numéro supprimé)) pour plus d’informations sur la maison, sur les démarches à suivre ou sur les modalités de vente.
Jumelles
TERRAIN ET MAISONVENTE : maison de 5 pièces (92 m²) à JumellesEMPLACEMENT PRIVILÉGIÉ – MAISON 5 PIÈCES NEUVEEn vente à quelques kilomètres d’Évreux, laissez vous charmer par, bénéficiant d’un emplacement d’exception dans Jumelles (27220), cette maison de 5 pièces de plain-pied de 92 m². Elle propose quatre chambres, une cuisine et une salle de bains.Le terrain de la maison s’étend sur 565 m².Cette maison est neuve.La maison est située dans un secteur recherché. Plusieurs écoles (maternelle, élémentaire, primaire et collège) se trouvent à moins de 10 minutes en voiture. Les nationales N154 et N13 sont accessibles à moins de 10 km. Il y a des tennis, une bibliothèque, des commerces, trois supermarchés, des boulangeries, trois supérettes et un bureau de poste à proximité du logement. Enfin, le marché Place Gambetta anime le quartier tous les vendredis matin.Son prix de vente est de 202 800 €.Contactez Oumayma SONMEZ ((Numéro supprimé)) pour plus d’informations sur la propriété. Donnez vie à vos projets immobiliers avec Les Maisons Extraco Gravigny.
Saint-André-de-l'Eure
TERRAINSaint-André-de-l’Eure : terrain de 1 400 m² en venteEMPLACEMENT PRIVILÉGIÉ – PROCHE D’ÉVREUXGrand terrain à quelques kilomètres d’Évreux. De 1 400 m², ce terrain se situe bénéficiant d’un emplacement d’exception dans Saint-André-de-l’Eure (27220). Ce terrain, avec une exposition sud-ouest, donne sur un espace vert. Dans un quartier attractif, ce terrain est proche des écoles et des commerces. Quatre établissements scolaires sont implantés à moins de 10 minutes à pied. Il y a un accès à la nationale N154 à 8 km. Il y a une bibliothèque, un tennis, des commerces, trois boulangeries, un supermarché, une épicerie et un bureau de poste à proximité du terrain. Enfin, le marché Place Gambetta anime le quartier tous les vendredis matin.Il est à vendre pour la somme de 67 000 €. Contactez Oumayma SONMEZ (tél : (Numéro supprimé)) pour obtenir de plus amples renseignements sur le terrain, sur les modalités de vente ou sur les démarches à suivre.
Jumelles
TERRAINTerrain de 565 m² à vendre à JumellesEMPLACEMENT PRIVILÉGIÉ – PROCHE D’ÉVREUXÀ Jumelles (27220) à quelques kilomètres d’Évreux, projetez la maison de vos rêves sur ce terrain de 565 m². Il donne sur un espace vert et bénéficie d’une exposition sud-ouest. Dans un secteur attractif, ce terrain bénéficiant d’un emplacement d’exception est proche des écoles et des commerces. Plusieurs établissements scolaires (maternelle, élémentaire, primaire et collège) sont implantés à moins de 10 minutes en voiture. Les nationales N154 et N13 sont accessibles à moins de 10 km. On trouve des tennis, une bibliothèque, des commerces, trois supermarchés, des boulangeries, un bureau de poste et deux épiceries dans les environs. Le marché Place Gambetta a lieu tous les vendredis matin.Son prix de vente est de 49 900 €. Contactez notre agence (Oumayma SONMEZ : (Numéro supprimé)) pour plus d’informations sur le terrain, sur les modalités de vente ou sur les démarches à suivre. Les Maisons Extraco Gravigny vous accompagne à toutes les étapes de l’achat et dans tous vos projets immobiliers.
Jumelles
TERRAIN ET MAISONJumelles : maison de 5 pièces (100 m²) en venteEMPLACEMENT PRIVILÉGIÉ – MAISON 5 PIÈCES NEUVEÀ vendre : localisée à 12 km d’Évreux, bénéficiant d’un emplacement privilégié dans Jumelles (27220), votre agence Les Maisons Extraco Gravigny est heureuse de vous proposer cette maison de 5 pièces de 100 m². Son intérieur est composé de quatre chambres, d’une cuisine et d’une salle de bains.Le terrain du bien s’étend sur 565 m².Il s’agit d’une maison de 2 niveaux. Elle est neuve.La maison est située dans un quartier recherché. Plusieurs établissements scolaires (maternelle, élémentaire, primaire et collège) sont implantés à moins de 10 minutes en voiture. Les nationales N154 et N13 sont accessibles à moins de 10 km. On trouve des tennis, une bibliothèque, des commerces, trois supermarchés, des boulangeries, trois boucheries-charcuteries et deux épiceries à quelques minutes. Ne manquez pas le marché Place Gambetta chaque vendredi matin.Elle est à vendre pour la somme de 217 100 €.Contactez notre constructeur (SONMEZ Oumayma : (Numéro supprimé)) pour toute information sur la maison, sur les modalités de vente ou sur les démarches à suivre. Les Maisons Extraco Gravigny vous accompagne dans tous vos projets immobiliers et à toutes les étapes de l’achat.
Angerville-la-Campagne
TERRAIN ET MAISONVENTE d’une maison F5 (105 m²) à Angerville-la-CampagneEMPLACEMENT PRIVILÉGIÉ – MAISON 5 PIÈCES NEUVEEn vente à deux pas d’Évreux, venez découvrir cette maison de 5 pièces de plain-pied de 105 m² et de 542 m² de terrain, bénéficiant d’un emplacement privilégié dans Angerville-la-Campagne (27930). Son intérieur dispose de quatre chambres, d’une cuisine et d’une salle de bains.La maison est neuve.La maison se situe dans un secteur convoité. Il y a l’École Primaire Alphonse Cosme à moins de 10 minutes à pied. Côté transports en commun, on trouve deux gares (Évreux Normandie et La Bonneville-sur-Iton) à moins de 10 minutes en voiture. Les nationales N13 et N154 sont accessibles à moins de 4 km. Il y a un commerce dans les environs.Son prix de vente est de 206 800 €.Prenez contact avec notre agence (SONMEZ Oumayma : (Numéro supprimé)) pour toute question sur la maison. Les Maisons Extraco Gravigny vous accompagne à toutes les étapes de l’achat et dans toutes vos démarches.
Grossœuvre
TERRAIN ET MAISONGrossoeuvre : maison de 4 pièces (88 m²) à vendreEMPLACEMENT PRIVILÉGIÉ – MAISON 4 PIÈCES NEUVEÀ vendre : localisée à deux pas d’Évreux, bénéficiant d’un emplacement d’exception dans Grossoeuvre (27220), venez découvrir cette maison de 4 pièces de 88 m².Il s’agit d’une maison de 2 niveaux. Elle est composée de trois chambres, d’une cuisine et d’une salle de bains. La maison est neuve.Le terrain du bien s’étend sur 857 m².La maison se situe dans un secteur prisé. Une école primaire y est implantée. Côté transports, il y a la gare Évreux Normandie à moins de 10 minutes en voiture. Les nationales N154 et N13 sont accessibles à moins de 8 km. On trouve un tennis à quelques minutes.Elle est à vendre pour la somme de 192 200 €.Contactez notre agence (Oumayma SONMEZ : (Numéro supprimé)) pour toute question sur le bien. Donnez vie à vos projets immobiliers avec Les Maisons Extraco Gravigny.
L’actualité immobilière à Jumelles
27/11/2023
02/11/2023
30/10/2023
20/10/2023
16/10/2023
16/10/2023