Maison à construire à Jumelles (27220)
Images
Description
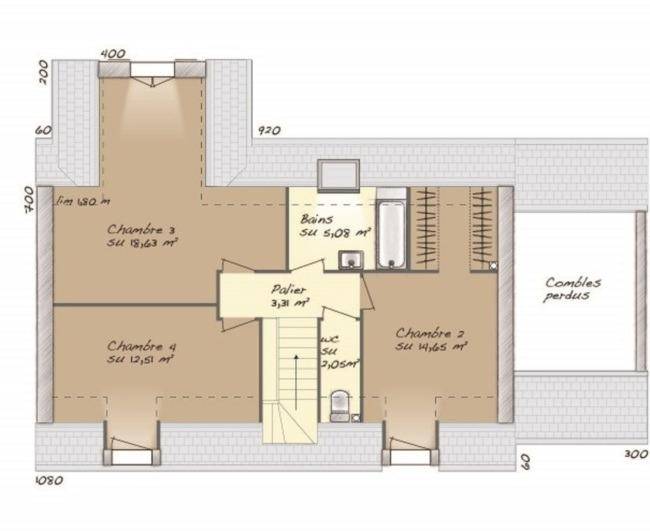
Jumelles : maison F6 (114 m²) à vendre
EMPLACEMENT PRIVILÉGIÉ - MAISON 6 PIÈCES NEUVE
À quelques kilomètres d'Évreux, nous sommes ravis de vous proposer cette maison de 6 pièces de 114 m² et de 764 m² de terrain bénéficiant d'un emplacement d'exception dans Jumelles (27220).
Cette maison possède 2 niveaux. Son intérieur inclut quatre chambres, une cuisine et deux salles de bains. Cette maison est neuve.
La maison est située dans un secteur attractif. Plusieurs écoles (maternelle, élémentaire, primaire et collège) se trouvent à moins de 10 minutes en voiture. Les nationales N154 et N13 sont accessibles à moins de 10 km. Il y a des tennis, une bibliothèque, des commerces, trois supermarchés, des boulangeries, un bureau de poste et trois supérettes à quelques minutes à peine. Ne manquez pas le marché Place Gambetta tous les vendredis matin.
Son prix de vente est de 285 000 €.
Contactez Sébastien HOTTE (tél : (Numéro supprimé)) pour toute question sur la maison ou sur les démarches à suivre. Maisons Balency Louviers est là pour vous accompagner dans tous vos projets immobiliers.
Annonce proposée par un Agent Commercial Partenaire.
Logement susceptibles de vous intéresser
Nous vous proposons de découvrir aussi cette sélection de logements situés à moins de 10km de Jumelles et qui seraient susceptibles de vous intéresser.
Le Plessis-Grohan
TERRAIN ET MAISONVENTE d’une maison de 4 pièces (84 m²) au Plessis-GrohanIDÉALEMENT SITUÉE – MAISON 4 PIÈCES NEUVEÀ 8 km d’Évreux, découvrez cette maison de 4 pièces de plain-pied de 84 m² à vendre, idéalement située dans Le Plessis-Grohan (27180).Conçue de plain-pied, elle compte trois chambres, une cuisine et une salle de bains. Cette maison est neuve.Le terrain du bien est de 544 m².Le bien est situé dans un secteur recherché. Une école élémentaire y est implantée. Côté transports en commun, on trouve les gares Évreux Normandie et La Bonneville-sur-Iton à moins de 10 minutes en voiture. Les nationales N154 et N13 sont accessibles à moins de 7 km.Il est à vendre pour la somme de 183 200 €.N’hésitez pas à prendre contact avec notre agence (SONMEZ Oumayma : (Numéro supprimé)) pour toute question sur la maison, sur les modalités de vente ou sur les démarches à suivre. Concrétisez vos projets immobiliers avec Les Maisons Extraco Gravigny.
Guichainville
TERRAIN ET MAISONVENTE d’une maison F5 (86 m²) à GuichainvilleQUARTIER RECHERCHÉ – MAISON 5 PIÈCES NEUVEEn vente : localisée à deux pas d’Évreux, située dans un secteur convoité de Guichainville (27930), nous sommes heureux de vous présenter cette maison de 5 pièces de 86 m² et de 524 m² de terrain.Cette maison possède 2 niveaux. Elle comporte trois chambres, une cuisine et une salle de bains. Cette maison est neuve.Cette propriété se situe dans un quartier attractif. On y trouve des établissements scolaires maternelles et élémentaires. Côté transports, on trouve la gare Évreux Normandie à moins de 10 minutes en voiture. Les nationales N13 et N154 sont accessibles à moins de 3 km. Il y a un tennis, cinq commerces et une boulangerie dans les environs.Son prix de vente est de 199 600 €.Prenez contact avec Oumayma SONMEZ ((Numéro supprimé)) pour toute information sur la maison, sur les modalités de vente ou sur les démarches à suivre. Les Maisons Extraco Gravigny vous accompagne à toutes les étapes de votre projet et dans tous vos projets immobiliers.
Guichainville
TERRAIN ET MAISONVENTE : maison T4 (82 m²) à GuichainvilleQUARTIER RECHERCHÉ – MAISON 4 PIÈCES NEUVEÀ vendre à deux pas d’Évreux, nous sommes heureux de vous proposer cette maison de 4 pièces de plain-pied de 82 m² située dans un quartier prisé de Guichainville (27930).Elle se divise en trois chambres, une cuisine et une salle de bains. La maison est neuve.Le terrain du bien est de 524 m².Cette maison est située dans un secteur convoité. On y trouve des établissements scolaires primaires. Côté transports en commun, il y a la gare Évreux Normandie à moins de 10 minutes en voiture. Les nationales N13 et N154 sont accessibles à moins de 3 km. On trouve un tennis, cinq commerces et une boulangerie à proximité.Elle est à vendre pour la somme de 204 800 €.N’hésitez pas à prendre contact avec notre agence (Oumayma SONMEZ : (Numéro supprimé)) pour plus d’informations sur la maison, sur les démarches à suivre ou sur les modalités de vente.
Jumelles
TERRAIN ET MAISONVENTE : maison de 5 pièces (92 m²) à JumellesEMPLACEMENT PRIVILÉGIÉ – MAISON 5 PIÈCES NEUVEEn vente à quelques kilomètres d’Évreux, laissez vous charmer par, bénéficiant d’un emplacement d’exception dans Jumelles (27220), cette maison de 5 pièces de plain-pied de 92 m². Elle propose quatre chambres, une cuisine et une salle de bains.Le terrain de la maison s’étend sur 565 m².Cette maison est neuve.La maison est située dans un secteur recherché. Plusieurs écoles (maternelle, élémentaire, primaire et collège) se trouvent à moins de 10 minutes en voiture. Les nationales N154 et N13 sont accessibles à moins de 10 km. Il y a des tennis, une bibliothèque, des commerces, trois supermarchés, des boulangeries, trois supérettes et un bureau de poste à proximité du logement. Enfin, le marché Place Gambetta anime le quartier tous les vendredis matin.Son prix de vente est de 202 800 €.Contactez Oumayma SONMEZ ((Numéro supprimé)) pour plus d’informations sur la propriété. Donnez vie à vos projets immobiliers avec Les Maisons Extraco Gravigny.
Saint-André-de-l'Eure
TERRAINSaint-André-de-l’Eure : terrain de 1 400 m² en venteEMPLACEMENT PRIVILÉGIÉ – PROCHE D’ÉVREUXGrand terrain à quelques kilomètres d’Évreux. De 1 400 m², ce terrain se situe bénéficiant d’un emplacement d’exception dans Saint-André-de-l’Eure (27220). Ce terrain, avec une exposition sud-ouest, donne sur un espace vert. Dans un quartier attractif, ce terrain est proche des écoles et des commerces. Quatre établissements scolaires sont implantés à moins de 10 minutes à pied. Il y a un accès à la nationale N154 à 8 km. Il y a une bibliothèque, un tennis, des commerces, trois boulangeries, un supermarché, une épicerie et un bureau de poste à proximité du terrain. Enfin, le marché Place Gambetta anime le quartier tous les vendredis matin.Il est à vendre pour la somme de 67 000 €. Contactez Oumayma SONMEZ (tél : (Numéro supprimé)) pour obtenir de plus amples renseignements sur le terrain, sur les modalités de vente ou sur les démarches à suivre.
Jumelles
TERRAINTerrain de 565 m² à vendre à JumellesEMPLACEMENT PRIVILÉGIÉ – PROCHE D’ÉVREUXÀ Jumelles (27220) à quelques kilomètres d’Évreux, projetez la maison de vos rêves sur ce terrain de 565 m². Il donne sur un espace vert et bénéficie d’une exposition sud-ouest. Dans un secteur attractif, ce terrain bénéficiant d’un emplacement d’exception est proche des écoles et des commerces. Plusieurs établissements scolaires (maternelle, élémentaire, primaire et collège) sont implantés à moins de 10 minutes en voiture. Les nationales N154 et N13 sont accessibles à moins de 10 km. On trouve des tennis, une bibliothèque, des commerces, trois supermarchés, des boulangeries, un bureau de poste et deux épiceries dans les environs. Le marché Place Gambetta a lieu tous les vendredis matin.Son prix de vente est de 49 900 €. Contactez notre agence (Oumayma SONMEZ : (Numéro supprimé)) pour plus d’informations sur le terrain, sur les modalités de vente ou sur les démarches à suivre. Les Maisons Extraco Gravigny vous accompagne à toutes les étapes de l’achat et dans tous vos projets immobiliers.
Jumelles
TERRAIN ET MAISONJumelles : maison de 5 pièces (100 m²) en venteEMPLACEMENT PRIVILÉGIÉ – MAISON 5 PIÈCES NEUVEÀ vendre : localisée à 12 km d’Évreux, bénéficiant d’un emplacement privilégié dans Jumelles (27220), votre agence Les Maisons Extraco Gravigny est heureuse de vous proposer cette maison de 5 pièces de 100 m². Son intérieur est composé de quatre chambres, d’une cuisine et d’une salle de bains.Le terrain du bien s’étend sur 565 m².Il s’agit d’une maison de 2 niveaux. Elle est neuve.La maison est située dans un quartier recherché. Plusieurs établissements scolaires (maternelle, élémentaire, primaire et collège) sont implantés à moins de 10 minutes en voiture. Les nationales N154 et N13 sont accessibles à moins de 10 km. On trouve des tennis, une bibliothèque, des commerces, trois supermarchés, des boulangeries, trois boucheries-charcuteries et deux épiceries à quelques minutes. Ne manquez pas le marché Place Gambetta chaque vendredi matin.Elle est à vendre pour la somme de 217 100 €.Contactez notre constructeur (SONMEZ Oumayma : (Numéro supprimé)) pour toute information sur la maison, sur les modalités de vente ou sur les démarches à suivre. Les Maisons Extraco Gravigny vous accompagne dans tous vos projets immobiliers et à toutes les étapes de l’achat.
Angerville-la-Campagne
TERRAIN ET MAISONVENTE d’une maison F5 (105 m²) à Angerville-la-CampagneEMPLACEMENT PRIVILÉGIÉ – MAISON 5 PIÈCES NEUVEEn vente à deux pas d’Évreux, venez découvrir cette maison de 5 pièces de plain-pied de 105 m² et de 542 m² de terrain, bénéficiant d’un emplacement privilégié dans Angerville-la-Campagne (27930). Son intérieur dispose de quatre chambres, d’une cuisine et d’une salle de bains.La maison est neuve.La maison se situe dans un secteur convoité. Il y a l’École Primaire Alphonse Cosme à moins de 10 minutes à pied. Côté transports en commun, on trouve deux gares (Évreux Normandie et La Bonneville-sur-Iton) à moins de 10 minutes en voiture. Les nationales N13 et N154 sont accessibles à moins de 4 km. Il y a un commerce dans les environs.Son prix de vente est de 206 800 €.Prenez contact avec notre agence (SONMEZ Oumayma : (Numéro supprimé)) pour toute question sur la maison. Les Maisons Extraco Gravigny vous accompagne à toutes les étapes de l’achat et dans toutes vos démarches.
Grossœuvre
TERRAIN ET MAISONGrossoeuvre : maison de 4 pièces (88 m²) à vendreEMPLACEMENT PRIVILÉGIÉ – MAISON 4 PIÈCES NEUVEÀ vendre : localisée à deux pas d’Évreux, bénéficiant d’un emplacement d’exception dans Grossoeuvre (27220), venez découvrir cette maison de 4 pièces de 88 m².Il s’agit d’une maison de 2 niveaux. Elle est composée de trois chambres, d’une cuisine et d’une salle de bains. La maison est neuve.Le terrain du bien s’étend sur 857 m².La maison se situe dans un secteur prisé. Une école primaire y est implantée. Côté transports, il y a la gare Évreux Normandie à moins de 10 minutes en voiture. Les nationales N154 et N13 sont accessibles à moins de 8 km. On trouve un tennis à quelques minutes.Elle est à vendre pour la somme de 192 200 €.Contactez notre agence (Oumayma SONMEZ : (Numéro supprimé)) pour toute question sur le bien. Donnez vie à vos projets immobiliers avec Les Maisons Extraco Gravigny.
L’actualité immobilière à Jumelles
27/11/2023
02/11/2023
30/10/2023
20/10/2023
16/10/2023
16/10/2023