Maison à construire à La Haye-Malherbe (27400)
Images
Description
VENTE : maison de 7 pièces (170 m²) à La Haye-Malherbe
MAISON 7 PIÈCES NEUVE - PROCHE DE ROUEN
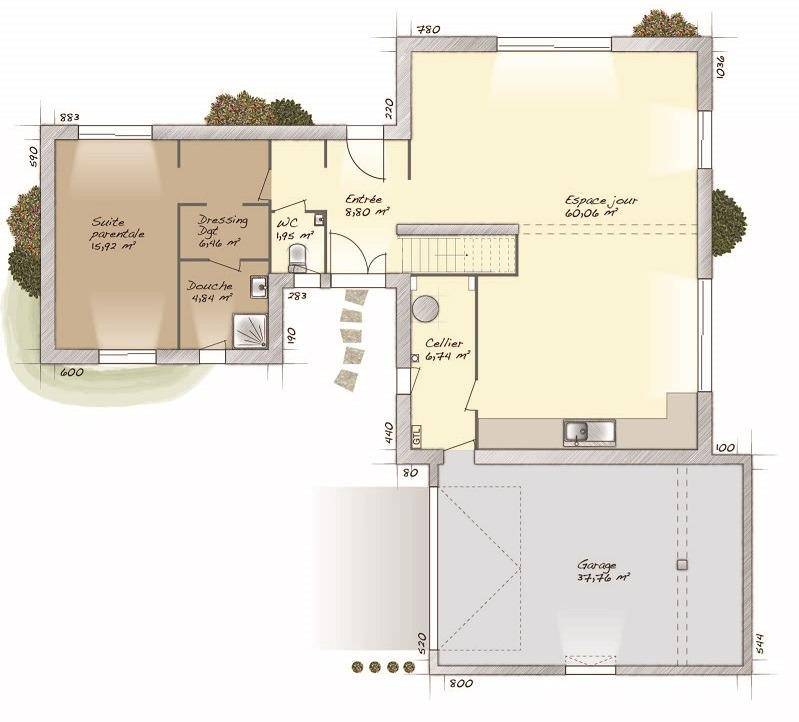
En vente : située à quelques kilomètres de Rouen, à La Haye-Malherbe (27400), nous sommes heureux de vous présenter cette maison de 7 pièces de plain-pied de 170 m². Conçue de plain-pied, elle inclut cinq chambres, une cuisine et trois salles de bains.
Le terrain de la propriété s'étend sur 500 m².
La maison est neuve.
On trouve l'École Primaire le Village à moins de 10 minutes à pied. Niveau transports en commun, il y a la gare Elbeuf-Saint-Aubin à moins de 10 minutes en voiture. Les autoroutes A13 et A154 et la nationale N154 sont accessibles à moins de 9 km. On trouve trois commerces, une boulangerie, une épicerie, une boucherie-charcuterie et un bureau de poste à proximité du logement.
Elle est à vendre pour la somme de 389 000 €.
N'hésitez pas à prendre contact avec Sébastien MASSON (tél : (Numéro supprimé)) pour tout renseignement sur cette maison ou sur les démarches à suivre.
Annonce proposée par un Agent Commercial Partenaire.
Logement susceptibles de vous intéresser
Nous vous proposons de découvrir aussi cette sélection de logements situés à moins de 10km de La Haye-Malherbe et qui seraient susceptibles de vous intéresser.
Saint-Pierre-lès-Elbeuf
TERRAINAccolé à la commune de SAINT PIERRE LES ELBEUF, sur la commune de MARTOT, dans un quartier résidentiel, terrain à bâtir prêt à accueillir votre future maison individuelle
Le Vaudreuil
TERRAINAccolé à la commune du VAUDREUIL, sur la commune de SAINT ETIENNE DU VAUVRAY, dans un quartier résidentiel, terrain à bâtir prêt à accueillir votre future maison individuelle
Incarville
TERRAINSur la commune de INCARVILLE, dans un quartier résidentiel, terrain à bâtir prêt à accueillir votre future maison individuelle
Saint-Pierre-lès-Elbeuf
TERRAIN ET MAISONVENTE d’une maison de 4 pièces (71 m²) accolée à Saint-Pierre-lès-ElbeufPROCHE DE ROUEN – MAISON 4 PIÈCES NEUVEEn vente : située à quelques kilomètres de Rouen, nous sommes ravis de vous proposer accolée à Saint-Pierre-lès-Elbeuf (76320), cette maison de 4 pièces de plain-pied de 71 m² et de 605 m² de terrain. Conçue de plain-pied, elle compte trois chambres, une cuisine et une salle de bains.Cette maison est neuve.Le Collège Jacques-Emile Blanche et le Groupe Scolaire Monod-Camus sont implantés à moins de 10 minutes à pied. Niveau transports, il y a quatre gares à moins de 10 minutes en voiture. Les autoroutes A13 et A139 et la nationale N138 sont accessibles à moins de 8 km. On trouve une bibliothèque, des commerces, quatre supermarchés, deux boulangeries, un bureau de poste et une boucherie-charcuterie à quelques minutes de la maison.Elle est à vendre pour la somme de 207 300 €.N’hésitez pas à prendre contact avec notre agence (MORIN Peter : (Numéro supprimé)) pour tout renseignement sur la maison. Faites de vos projets immobiliers une réalité avec Les Maisons Extraco Pont-de-l’Arche.
Saint-Pierre-lès-Elbeuf
TERRAIN ET MAISONMaison T5 (92 m²) en vente accolée à Saint-Pierre-lès-ElbeufPROCHE DE ROUEN – MAISON 5 PIÈCES NEUVEÀ vendre : à deux pas de Rouen, accolée à Saint-Pierre-lès-Elbeuf (76320), nous vous proposons cette maison de 5 pièces de plain-pied de 92 m² et de 605 m² de terrain.Conçue de plain-pied, elle inclut quatre chambres, une cuisine et une salle de bains. Cette maison est neuve.Il y a le Collège Jacques-Emile Blanche et le Groupe Scolaire Monod-Camus à moins de 10 minutes à pied. Niveau transports, on trouve quatre gares à moins de 10 minutes en voiture. Les autoroutes A13 et A139 et la nationale N138 sont accessibles à moins de 8 km. Il y a une bibliothèque, des commerces, quatre supermarchés, deux boulangeries, une boucherie-charcuterie et un bureau de poste à quelques minutes du logement.Elle est à vendre pour la somme de 241 300 €.Contactez notre agence (Peter MORIN : (Numéro supprimé)) pour tout renseignement sur la maison ou sur les modalités de vente. Les Maisons Extraco Pont-de-l’Arche vous accompagne à toutes les étapes de votre projet et dans tous vos projets immobiliers.
Saint-Pierre-lès-Elbeuf
TERRAIN ET MAISONVENTE : maison de 5 pièces (114 m²) accolée à Saint-Pierre-lès-ElbeufPROCHE DE ROUEN – MAISON 5 PIÈCES NEUVEÀ deux pas de Rouen, ayez le coup de coeur pour à vendre accolée à Saint-Pierre-lès-Elbeuf (76320), cette maison de 5 pièces de plain-pied de 114 m² et de 605 m² de terrain.Conçue de plain-pied, elle est composée de quatre chambres, d’une cuisine et d’une salle de bains. Cette maison est neuve.Le Collège Jacques-Emile Blanche et le Groupe Scolaire Monod-Camus se trouvent à moins de 10 minutes à pied. Côté transports en commun, il y a quatre gares à moins de 10 minutes en voiture. Les autoroutes A13 et A139 et la nationale N138 sont accessibles à moins de 8 km. On trouve une bibliothèque, des commerces, quatre supermarchés, deux boulangeries, un bureau de poste et une boucherie-charcuterie à proximité du logement.Son prix de vente est de 248 800 €.N’hésitez pas à prendre contact avec notre agence (MORIN Peter : (Numéro supprimé)) pour toute question sur la maison.
Le Vaudreuil
TERRAIN ET MAISONVENTE d’une maison de 4 pièces (135 m²) accolée au VaudreuilPROCHE DE ROUEN – MAISON 4 PIÈCES NEUVEEn vente à 22 km de Rouen, nous vous présentons cette maison de 4 pièces de 135 m² accolée au Vaudreuil (27100).Cette maison possède 2 niveaux. Elle propose cinq chambres, une cuisine et deux salles de bains. La maison est neuve.Le terrain du bien est de 1 723 m².Quatre établissements scolaires se trouvent à moins de 10 minutes à pied, tout comme dont l’École Maternelle les Tilleuls, le Collège Michel de Montaigne et l’École Primaire Privée Saint Henri. Côté transports en commun, il y a trois gares (Val-de-Reuil, Saint-Pierre-du-Vauvray et Pont-de-l’Arche) à moins de 10 minutes en voiture. Les autoroutes A13 et A154 et la nationale N154 sont accessibles à moins de 9 km. On trouve trois tennis, une bibliothèque, des commerces, une boulangerie, une boucherie-charcuterie, une épicerie et un bureau de poste à quelques minutes.Elle est à vendre pour la somme de 317 900 €.Contactez notre agence (MORIN Peter : (Numéro supprimé)) pour plus de renseignements sur cette maison ou sur les modalités de vente. Les Maisons Extraco Pont-de-l’Arche est là pour vous accompagner à toutes les étapes de votre projet.
Le Vaudreuil
TERRAIN ET MAISONVENTE d’une maison T4 (141 m²) accolée au VaudreuilMAISON 4 PIÈCES NEUVE – PROCHE DE ROUENÀ vendre : située à deux pas de Rouen, Les Maisons Extraco Pont-de-l’Arche vous présente cette maison de 4 pièces de 141 m² accolée au Vaudreuil (27100).Il s’agit d’une maison de 2 niveaux. Son intérieur se divise en quatre chambres, une cuisine et deux salles de bains. La maison est neuve.Le terrain de la propriété est de 1 723 m².Il y a quatre établissements scolaires à moins de 10 minutes à pied et dont l’École Maternelle les Tilleuls, le Collège Michel de Montaigne et l’École Primaire Privée Saint Henri. Côté transports, on trouve trois gares (Val-de-Reuil, Saint-Pierre-du-Vauvray et Pont-de-l’Arche) à moins de 10 minutes en voiture. Les autoroutes A13 et A154 et la nationale N154 sont accessibles à moins de 9 km. Il y a trois tennis, une bibliothèque, des commerces, une boulangerie, un bureau de poste, une boucherie-charcuterie et une épicerie dans les environs.Son prix de vente est de 351 700 €.Prenez contact avec notre agence (MORIN Peter : (Numéro supprimé)) pour toute question sur cette propriété ou sur les modalités de vente.
Le Vaudreuil
TERRAIN ET MAISONMaison T5 (183 m²) à vendre accolée au VaudreuilMAISON 5 PIÈCES NEUVE – PROCHE DE ROUENÀ vendre : à deux pas de Rouen, Les Maisons Extraco Pont-de-l’Arche vous présente cette maison de 5 pièces de 183 m² et de 1 723 m² de terrain accolée au Vaudreuil (27100).Cette maison compte 2 niveaux. Son intérieur se divise en trois chambres, une cuisine et trois salles de bains. La maison est neuve.Il y a quatre établissements scolaires à moins de 10 minutes à pied et, parmi lesquels l’École Maternelle les Tilleuls, le Collège Michel de Montaigne et l’École Primaire Privée Saint Henri. Niveau transports en commun, on trouve trois gares (Val-de-Reuil, Saint-Pierre-du-Vauvray et Pont-de-l’Arche) à moins de 10 minutes en voiture. Les autoroutes A13 et A154 et la nationale N154 sont accessibles à moins de 9 km. Il y a trois tennis, une bibliothèque, des commerces, une boulangerie, une épicerie, un bureau de poste et une boucherie-charcuterie à proximité du bien.Elle est à vendre pour la somme de 431 200 €.Contactez notre agence (MORIN Peter : (Numéro supprimé)) pour obtenir de plus amples informations sur la maison, sur les démarches à suivre ou sur les modalités de vente.
L’actualité immobilière à La Haye-Malherbe
27/11/2023
02/11/2023
30/10/2023
20/10/2023
16/10/2023
16/10/2023