Maison à construire à La Saussaye (27370)
Images
Description
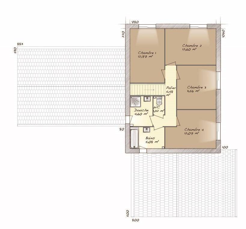
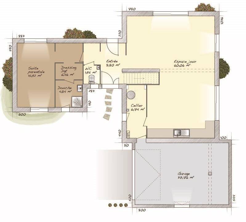
VENTE d'une maison F7 (170 m²) à La Saussaye
IDÉALEMENT SITUÉE - MAISON 7 PIÈCES NEUVE
En vente à quelques kilomètres de Rouen, laissez vous charmer par cette maison de 7 pièces de plain-pied de 170 m² et de 520 m² de terrain idéalement située dans La Saussaye (27370). Elle offre cinq chambres, une cuisine et trois salles de bains.
Cette maison est neuve.
La maison est située dans un secteur attractif. L'École Élémentaire Fleming, l'École Maternelle Louis Pasteur et le Collège André Maurois sont implantés à moins de 10 minutes à pied, tout comme une crèche. Niveau transports en commun, il y a la gare Elbeuf-Saint-Aubin à moins de 10 minutes en voiture. L'autoroute A13 et la nationale N138 sont accessibles à moins de 10 km. On trouve deux boulangeries et une boucherie-charcuterie dans les environs.
Elle est à vendre pour la somme de 340 000 €.
Contactez notre agence (Kamel BAZIZ : (Numéro supprimé)) pour toute information sur la maison. Donnez vie à vos projets immobiliers avec Maisons Balency Boos.
Annonce proposée par un Agent Commercial Partenaire.
Logement susceptibles de vous intéresser
Nous vous proposons de découvrir aussi cette sélection de logements situés à moins de 10km de La Saussaye et qui seraient susceptibles de vous intéresser.
Saint-Pierre-lès-Elbeuf
TERRAINAccolé à la commune de SAINT PIERRE LES ELBEUF, sur la commune de MARTOT, dans un quartier résidentiel, terrain à bâtir prêt à accueillir votre future maison individuelle
Saint-Pierre-lès-Elbeuf
TERRAIN ET MAISONVENTE d’une maison de 4 pièces (71 m²) accolée à Saint-Pierre-lès-ElbeufPROCHE DE ROUEN – MAISON 4 PIÈCES NEUVEEn vente : située à quelques kilomètres de Rouen, nous sommes ravis de vous proposer accolée à Saint-Pierre-lès-Elbeuf (76320), cette maison de 4 pièces de plain-pied de 71 m² et de 605 m² de terrain. Conçue de plain-pied, elle compte trois chambres, une cuisine et une salle de bains.Cette maison est neuve.Le Collège Jacques-Emile Blanche et le Groupe Scolaire Monod-Camus sont implantés à moins de 10 minutes à pied. Niveau transports, il y a quatre gares à moins de 10 minutes en voiture. Les autoroutes A13 et A139 et la nationale N138 sont accessibles à moins de 8 km. On trouve une bibliothèque, des commerces, quatre supermarchés, deux boulangeries, un bureau de poste et une boucherie-charcuterie à quelques minutes de la maison.Elle est à vendre pour la somme de 207 300 €.N’hésitez pas à prendre contact avec notre agence (MORIN Peter : (Numéro supprimé)) pour tout renseignement sur la maison. Faites de vos projets immobiliers une réalité avec Les Maisons Extraco Pont-de-l’Arche.
Saint-Pierre-lès-Elbeuf
TERRAIN ET MAISONMaison T5 (92 m²) en vente accolée à Saint-Pierre-lès-ElbeufPROCHE DE ROUEN – MAISON 5 PIÈCES NEUVEÀ vendre : à deux pas de Rouen, accolée à Saint-Pierre-lès-Elbeuf (76320), nous vous proposons cette maison de 5 pièces de plain-pied de 92 m² et de 605 m² de terrain.Conçue de plain-pied, elle inclut quatre chambres, une cuisine et une salle de bains. Cette maison est neuve.Il y a le Collège Jacques-Emile Blanche et le Groupe Scolaire Monod-Camus à moins de 10 minutes à pied. Niveau transports, on trouve quatre gares à moins de 10 minutes en voiture. Les autoroutes A13 et A139 et la nationale N138 sont accessibles à moins de 8 km. Il y a une bibliothèque, des commerces, quatre supermarchés, deux boulangeries, une boucherie-charcuterie et un bureau de poste à quelques minutes du logement.Elle est à vendre pour la somme de 241 300 €.Contactez notre agence (Peter MORIN : (Numéro supprimé)) pour tout renseignement sur la maison ou sur les modalités de vente. Les Maisons Extraco Pont-de-l’Arche vous accompagne à toutes les étapes de votre projet et dans tous vos projets immobiliers.
Saint-Pierre-lès-Elbeuf
TERRAIN ET MAISONVENTE : maison de 5 pièces (114 m²) accolée à Saint-Pierre-lès-ElbeufPROCHE DE ROUEN – MAISON 5 PIÈCES NEUVEÀ deux pas de Rouen, ayez le coup de coeur pour à vendre accolée à Saint-Pierre-lès-Elbeuf (76320), cette maison de 5 pièces de plain-pied de 114 m² et de 605 m² de terrain.Conçue de plain-pied, elle est composée de quatre chambres, d’une cuisine et d’une salle de bains. Cette maison est neuve.Le Collège Jacques-Emile Blanche et le Groupe Scolaire Monod-Camus se trouvent à moins de 10 minutes à pied. Côté transports en commun, il y a quatre gares à moins de 10 minutes en voiture. Les autoroutes A13 et A139 et la nationale N138 sont accessibles à moins de 8 km. On trouve une bibliothèque, des commerces, quatre supermarchés, deux boulangeries, un bureau de poste et une boucherie-charcuterie à proximité du logement.Son prix de vente est de 248 800 €.N’hésitez pas à prendre contact avec notre agence (MORIN Peter : (Numéro supprimé)) pour toute question sur la maison.
Terres de Bord
TERRAINA proximité de la commune de MONTAURE, sur la commune de VRAIVILLE, dans un quartier uniquement résidentiel, terrain à bâtir prêt à accueillir votre future maison individuelle
Terres de Bord
TERRAIN ET MAISONVENTE : maison de 6 pièces (120 m²) à proximité de MontaureMAISON 6 PIÈCES NEUVE – PROCHE DE ROUENÀ deux pas de Rouen, nous sommes heureux de vous présenter cette maison de 6 pièces de 120 m² à vendre à proximité de Montaure (27400).Cette maison comporte 2 niveaux. Elle offre quatre chambres, une cuisine et deux salles de bains. Cette maison est neuve.Le terrain de la propriété s’étend sur 986 m².Il y a l’École Primaire Montaure à moins de 10 minutes à pied et une crèche. Côté transports en commun, on trouve la gare Elbeuf-Saint-Aubin à moins de 10 minutes en voiture. Les autoroutes A13 et A154 et la nationale N154 sont accessibles à moins de 9 km. Il y a un tennis et une boulangerie dans les environs.Son prix de vente est de 276 700 €.N’hésitez pas à prendre contact avec Peter MORIN (tél : (Numéro supprimé)) pour toute information sur ce bien ou sur les démarches à suivre.
Terres de Bord
TERRAIN ET MAISONproximité de Montaure : maison F6 (125 m²) à vendrePROCHE DE ROUEN – MAISON 6 PIÈCES NEUVEEn vente : localisée à 23 km de Rouen, nous sommes ravis de vous proposer cette maison de 6 pièces de 125 m² et de 986 m² de terrain à proximité de Montaure (27400). Elle comporte quatre chambres, une cuisine et deux salles de bains.Il s’agit d’une maison de 2 niveaux. Elle est neuve.On trouve l’École Primaire Montaure à moins de 10 minutes à pied et une crèche. Niveau transports en commun, il y a la gare Elbeuf-Saint-Aubin à moins de 10 minutes en voiture. Les autoroutes A13 et A154 et la nationale N154 sont accessibles à moins de 9 km. On trouve un tennis et une boulangerie dans les environs.Elle est à vendre pour la somme de 299 700 €.Prenez contact avec Peter MORIN ((Numéro supprimé)) pour plus d’informations sur la maison. Faites de vos projets immobiliers une réalité avec Les Maisons Extraco Pont-de-l’Arche.
Terres de Bord
TERRAIN ET MAISONVENTE d’une maison de 6 pièces (134 m²) à proximité de MontaurePROCHE DE ROUEN – MAISON 6 PIÈCES NEUVEÀ vendre à quelques kilomètres de Rouen, venez découvrir cette maison de 6 pièces de 134 m² et de 986 m² de terrain à proximité de Montaure (27400).Cette maison possède 2 niveaux. Elle dispose de quatre chambres, d’une cuisine et de deux salles de bains. La maison est neuve.Il y a l’École Primaire Montaure à moins de 10 minutes à pied et une structure d’accueil pour les tout-petits. Niveau transports, on trouve la gare Elbeuf-Saint-Aubin à moins de 10 minutes en voiture. Les autoroutes A13 et A154 et la nationale N154 sont accessibles à moins de 9 km. Il y a un tennis et une boulangerie à quelques minutes à peine.Son prix de vente est de 297 400 €.Prenez contact avec Peter MORIN (tél : (Numéro supprimé)) pour toute question sur cette maison ou sur les démarches à suivre.
Martot
TERRAINMartot : terrain de 604 m² à vendreEMPLACEMENT PRIVILÉGIÉ – PROCHE DE ROUENEn vente à deux pas de Rouen à Martot (27340), grand terrain. Dans un secteur prisé, ce terrain bénéficiant d’un emplacement d’exception est proche des écoles et des commerces. Une école primaire est implantée dans le quartier. Niveau transports, il y a cinq gares à moins de 10 minutes en voiture. Les autoroutes A13 et A139 et la nationale N138 sont accessibles à moins de 7 km. On trouve un tennis et un commerce dans les environs.Son prix de vente est de 86 000 €. Contactez notre agence (Julien THOMAS : (Numéro supprimé)) pour toute question sur ce terrain.
L’actualité immobilière à La Saussaye
27/11/2023
02/11/2023
30/10/2023
20/10/2023
16/10/2023
16/10/2023