Maison à construire à Le Bec-Thomas (27370)
Images
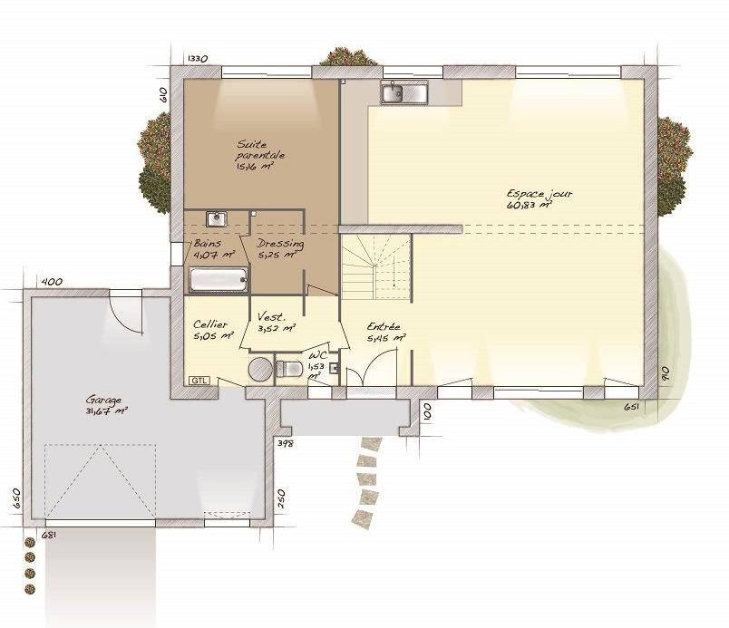
Description
Le Bec-Thomas : maison de 8 pièces (200 m²) en vente
PROCHE DE ROUEN - MAISON 8 PIÈCES NEUVE
En vente : localisée à 24 km de Rouen, nous vous proposons cette maison de 8 pièces de 200 m² et de 1 507 m² de terrain au Bec-Thomas (27370).
C'est une maison de 2 niveaux. Elle offre cinq chambres, une cuisine et deux salles de bains. Cette maison est neuve.
Des écoles (de la maternelle au lycée) sont implantées à moins de 10 minutes en voiture, tout comme quatre structures d'accueil pour la petite enfance à moins de 10 minutes à pied. Côté transports en commun, on trouve la gare Elbeuf-Saint-Aubin à moins de 10 minutes en voiture. Il y a des bibliothèques, des tennis, deux bassins de natation, des commerces, des supermarchés, des boulangeries, deux poissonneries et des bureaux de poste dans les environs. 2 marchés animent les environs.
Son prix de vente est de 419 000 €.
Contactez Kévin XAVIER ALVES (tél : (Numéro supprimé)) pour toute information sur cette propriété, sur les démarches à suivre ou sur les modalités de vente.
Annonce proposée par un Agent Commercial Partenaire.
Logement susceptibles de vous intéresser
Nous vous proposons de découvrir aussi cette sélection de logements situés à moins de 10km de Le Bec-Thomas et qui seraient susceptibles de vous intéresser.
Elbeuf
TERRAIN ET MAISONVENTE : maison T5 (120 m²) à ElbeufMAISON 5 PIÈCES NEUVE – PROCHE DE ROUENÀ vendre à 19 km de Rouen, votre agence Maisons Balency Gravigny est ravie de vous proposer cette maison de 5 pièces de plain-pied de 120 m² à Elbeuf (76500). Elle inclut trois chambres, une cuisine et deux salles de bains.Le terrain de la maison s’étend sur 329 m².Cette maison est neuve.Des écoles du primaire et du secondaire sont implantées à moins de 10 minutes à pied, tout comme une crèche. Niveau transports, on trouve trois gares (Elbeuf-Saint-Aubin, Tourville-la-Rivière et Oissel) à moins de 10 minutes en voiture. Les autoroutes A13 et A139 et la nationale N138 sont accessibles à moins de 7 km. Il y a un tennis, un bassin de natation, des commerces, des boulangeries, deux supermarchés, des épiceries et deux bureaux de poste à proximité de la maison. Ne manquez pas le marché Place de la République chaque samedi matin.Son prix de vente est de 348 410 €.Prenez contact avec Karen DELELIS ((Numéro supprimé)) pour tout renseignement sur cette maison. Maisons Balency Gravigny est là pour vous accompagner dans tous vos projets immobiliers.Annonce proposée par un Agent Commercial Partenaire.
La Haye-Malherbe
TERRAIN ET MAISONLa Haye-Malherbe : maison de 5 pièces (92 m²) à vendreIDÉALEMENT SITUÉE – MAISON 5 PIÈCES NEUVEEn vente à 23 km de Rouen, venez découvrir, idéalement située dans La Haye-Malherbe (27400), cette maison de 5 pièces de plain-pied de 92 m² et de 485 m² de terrain.Elle compte quatre chambres, une cuisine et une salle de bains. Cette maison est neuve.Cette maison se trouve dans un quartier recherché. L’École Primaire le Village est implantée à moins de 10 minutes à pied. Niveau transports en commun, on trouve la gare Elbeuf-Saint-Aubin à moins de 10 minutes en voiture. Les autoroutes A13 et A154 et la nationale N154 sont accessibles à moins de 9 km. Il y a trois commerces, une boulangerie, un bureau de poste, une boucherie-charcuterie et une épicerie dans les environs.Son prix de vente est de 207 990 €.Prenez contact avec notre agence (Julien THOMAS : (Numéro supprimé)) pour plus de renseignements sur la maison, sur les modalités de vente ou sur les démarches à suivre. Faites de vos projets immobiliers une réalité avec Les Maisons Extraco Pont-de-l’Arche.
Elbeuf
TERRAINVENTE : terrain de 329 m² à ElbeufPROCHE DE ROUENTerrain de 329 m² à vendre à quelques kilomètres de Rouen. Ce terrain se situe dans Elbeuf (76500). Tous les types d’écoles sont implantés à moins de 10 minutes à pied, tout comme une structure d’accueil pour les tout-petits. Côté transports, on trouve trois gares (Elbeuf-Saint-Aubin, Tourville-la-Rivière et Oissel) à moins de 10 minutes en voiture. Les autoroutes A13 et A139 et la nationale N138 sont accessibles à moins de 7 km. Il y a un tennis, un bassin de natation, des commerces, des boulangeries, deux supermarchés, une poissonnerie et des épiceries dans les environs. Ne manquez pas le marché Place de la République tous les samedis matin.Il est à vendre pour la somme de 77 000 €. Prenez contact avec notre agence (DELELIS Karen : (Numéro supprimé)) pour obtenir de plus amples renseignements sur ce terrain ou sur les modalités de vente.Annonce proposée par un Agent Commercial Partenaire.
Elbeuf
TERRAIN ET MAISONElbeuf : maison de 6 pièces (100 m²) à vendrePROCHE DE ROUEN – MAISON 6 PIÈCES NEUVEÀ vendre à quelques kilomètres de Rouen, à Elbeuf (76500), nous vous proposons cette maison de 6 pièces de 100 m² et de 329 m² de terrain.C’est une maison de 2 niveaux. Son intérieur se divise en quatre chambres, une cuisine et deux salles de bains. La maison est neuve.Tous les types d’écoles (maternelle, élémentaire et secondaire) se trouvent à moins de 10 minutes à pied, tout comme une crèche. Côté transports en commun, il y a les gares Elbeuf-Saint-Aubin, Tourville-la-Rivière et Oissel à moins de 10 minutes en voiture. Les autoroutes A13 et A139 et la nationale N138 sont accessibles à moins de 7 km. On trouve un tennis, un bassin de natation, des commerces, des boulangeries, deux supermarchés, des boucheries-charcuteries et deux bureaux de poste à quelques minutes de la maison. Le marché Place de la République anime le quartier tous les samedis matin.Elle est proposée à l’achat pour 278 650 €.Contactez Karen DELELIS (tél : (Numéro supprimé)) pour obtenir de plus amples informations sur cette maison ou sur les modalités de vente. Maisons Balency Gravigny est là pour vous accompagner dans tous vos projets immobiliers.Annonce proposée par un Agent Commercial Partenaire.
La Haye-Malherbe
TERRAIN ET MAISONLa Haye-Malherbe : maison F4 (82 m²) en venteIDÉALEMENT SITUÉE – MAISON 4 PIÈCES NEUVEEn vente à deux pas de Rouen, Les Maisons Extraco Pont-de-l’Arche vous présente cette maison de 4 pièces de plain-pied de 82 m² idéalement située dans La Haye-Malherbe (27400).Son intérieur compte trois chambres, une cuisine et une salle de bains. Cette maison est neuve.Le terrain du bien est de 485 m².La maison se trouve dans un secteur recherché. Il y a l’École Primaire le Village à moins de 10 minutes à pied. Niveau transports en commun, on trouve la gare Elbeuf-Saint-Aubin à moins de 10 minutes en voiture. Les autoroutes A13 et A154 et la nationale N154 sont accessibles à moins de 9 km. Il y a trois commerces, une boulangerie, une boucherie-charcuterie, un bureau de poste et une épicerie dans les environs.Elle est proposée à l’achat pour 197 780 €.Contactez Julien THOMAS (tél : (Numéro supprimé)) pour toute question sur la maison, sur les démarches à suivre ou sur les modalités de vente.
Elbeuf
TERRAINVENTE : terrain de 329 m² à ElbeufPROCHE DE ROUENTerrain de 329 m² à quelques kilomètres de Rouen. Ce terrain se situe dans Elbeuf (76500). On trouve des écoles de tous niveaux (de la maternelle au lycée) à moins de 10 minutes à pied, tout comme une structure d’accueil pour les tout-petits. Côté transports en commun, il y a les gares Elbeuf-Saint-Aubin, Tourville-la-Rivière et Oissel à moins de 10 minutes en voiture. Les autoroutes A13 et A139 et la nationale N138 sont accessibles à moins de 7 km. On trouve un tennis, un bassin de natation, des commerces, des boulangeries, deux supermarchés, des boucheries-charcuteries et deux supérettes dans les environs. Enfin, le marché Place de la République anime les environs chaque samedi matin.Il est proposé à l’achat pour 77 000 €. Contactez Karen DELELIS (tél : (Numéro supprimé)) pour toute information sur ce terrain ou sur les modalités de vente.Annonce proposée par un Agent Commercial Partenaire.
La Haye-Malherbe
TERRAINTerrain de 485 m² en vente à La Haye-MalherbeIDÉALEMENT SITUÉ – PROCHE DE ROUENÀ La Haye-Malherbe (27400) à deux pas de Rouen, découvrez ce terrain de 485 m². Dans un quartier convoité, le terrain idéalement situé est proche des écoles et des commerces. On trouve l’École Primaire le Village à moins de 10 minutes à pied. Niveau transports, il y a la gare Elbeuf-Saint-Aubin à moins de 10 minutes en voiture. Les autoroutes A13 et A154 et la nationale N154 sont accessibles à moins de 9 km. On trouve trois commerces, une boulangerie, un bureau de poste, une boucherie-charcuterie et une épicerie à proximité de la propriété.Il est à vendre pour la somme de 58 000 €. N’hésitez pas à prendre contact avec notre agence (Julien THOMAS : (Numéro supprimé)) pour plus de renseignements sur ce terrain ou sur les modalités de vente. Les Maisons Extraco Pont-de-l’Arche vous accompagne dans tous vos projets immobiliers et dans toutes vos démarches.
La Haye-Malherbe
TERRAIN ET MAISONVENTE : maison de 4 pièces (85 m²) à La Haye-MalherbeIDÉALEMENT SITUÉE – MAISON 4 PIÈCES NEUVEÀ quelques kilomètres de Rouen, Les Maisons Extraco Pont-de-l’Arche vous propose en vente, idéalement située dans La Haye-Malherbe (27400), cette maison de 4 pièces de plain-pied de 85 m². Son intérieur est composé de trois chambres, d’une cuisine et d’une salle de bains.Le terrain de cette maison s’étend sur 485 m².La maison est neuve.Cette maison se situe dans un secteur attractif. On trouve l’École Primaire le Village à moins de 10 minutes à pied. Côté transports en commun, il y a la gare Elbeuf-Saint-Aubin à moins de 10 minutes en voiture. Les autoroutes A13 et A154 et la nationale N154 sont accessibles à moins de 9 km. On trouve trois commerces, une boulangerie, une boucherie-charcuterie, un bureau de poste et une épicerie à proximité du bien.Elle est proposée à l’achat pour 218 790 €.N’hésitez pas à prendre contact avec Julien THOMAS ((Numéro supprimé)) pour toute question sur le bien. Donnez vie à vos projets immobiliers avec Les Maisons Extraco Pont-de-l’Arche.
Saint-Pierre-lès-Elbeuf
TERRAIN ET MAISONAccolée à Saint-Pierre-lès-Elbeuf : maison de 4 pièces (74 m²) en ventePROCHE DE ROUEN – MAISON 4 PIÈCES NEUVEEn vente : à quelques kilomètres de Rouen, nous sommes heureux de vous présenter cette maison de 4 pièces de plain-pied de 74 m² accolée à Saint-Pierre-lès-Elbeuf (76320).Conçue de plain-pied, elle propose trois chambres, une cuisine et une salle de bains. Cette maison est neuve.Le terrain de la propriété s’étend sur 604 m².Le Collège Jacques-Emile Blanche et le Groupe Scolaire Monod-Camus sont implantés à moins de 10 minutes à pied. Niveau transports en commun, il y a quatre gares à moins de 10 minutes en voiture. Les autoroutes A13 et A139 et la nationale N138 sont accessibles à moins de 8 km. On trouve une bibliothèque, des commerces, quatre supermarchés, deux boulangeries, un bureau de poste et une boucherie-charcuterie dans les environs.Elle est proposée à l’achat pour 223 600 €.Contactez Peter MORIN ((Numéro supprimé)) pour plus de renseignements sur cette maison, sur les modalités de vente et sur les démarches à suivre. Les Maisons Extraco Pont-de-l’Arche vous accompagne dans tous vos projets immobiliers et dans toutes vos démarches.
L’actualité immobilière à Le Bec-Thomas
27/11/2023
02/11/2023
30/10/2023
20/10/2023
16/10/2023
16/10/2023