Maison à construire à Fourmetot (27500)
Images
Description
VENTE : maison de 4 pièces (80 m²) à Fourmetot
MAISON 4 PIÈCES NEUVE
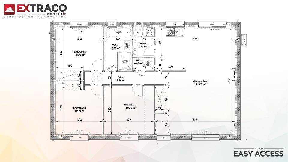
À vendre : à 15 km de la Manche, à Fourmetot (27500), Les Maisons Extraco Pont-Audemer vous présente cette maison de 4 pièces de plain-pied de 80 m² et de 1 322 m² de terrain.
Elle se divise en trois chambres, une cuisine et une salle de bains. Cette maison est neuve.
L'École Primaire Fourmetot se trouve à moins de 10 minutes à pied. Les autoroutes A13 et A131 sont accessibles à moins de 3 km.
Elle est proposée à l'achat pour 196 500 €.
Contactez notre agence (PETIT Juliette : (Numéro supprimé)) pour plus de renseignements sur cette maison, sur les démarches à suivre ou sur les modalités de vente. Les Maisons Extraco Pont-Audemer est là pour vous accompagner dans tous vos projets immobiliers.
Logement susceptibles de vous intéresser
Nous vous proposons de découvrir aussi cette sélection de logements situés à moins de 10km de Le Perrey et qui seraient susceptibles de vous intéresser.
Petiville
TERRAINVENTE : terrain de 670 m² à PetivilleÀ Petiville (76330) à vendre à 11 km de la Manche, donnez vie à votre résidence principale ou secondaire sur ce terrain de 670 m². Il y a l’École Primaire Antoine de Saint-Exupéry à moins de 10 minutes à pied. Les autoroutes A131 et A13 et la nationale N182 sont accessibles à moins de 10 km. On trouve un tennis et une boucherie-charcuterie à proximité.Il est à vendre pour la somme de 59 000 €. N’hésitez pas à prendre contact avec Barbara PELLETER ((Numéro supprimé)) pour toute information sur ce terrain, sur les démarches à suivre et sur les modalités de vente. Les Maisons Extraco Le Havre vous accompagne dans tous vos projets immobiliers et à toutes les étapes de votre projet.
Petiville
TERRAIN ET MAISONVENTE d’une maison T4 (81 m²) à PetivilleMAISON 4 PIÈCES NEUVEÀ vendre : située à 11 km de la Manche, à Petiville (76330), nous vous proposons cette maison de 4 pièces de 81 m² et de 670 m² de terrain.Il s’agit d’une maison de 2 niveaux. Elle compte deux chambres, une cuisine et une salle de bains. La maison est neuve.On trouve l’École Primaire Antoine de Saint-Exupéry à moins de 10 minutes à pied. Les autoroutes A131 et A13 et la nationale N182 sont accessibles à moins de 10 km. Il y a un tennis et une boucherie-charcuterie dans les environs.Elle est proposée à l’achat pour 199 000 €.Contactez Barbara PELLETER (tél : (Numéro supprimé)) pour toute question sur la maison, sur les modalités de vente ou sur les démarches à suivre. Les Maisons Extraco Le Havre vous accompagne à toutes les étapes de l’achat et dans tous vos projets immobiliers.
Petiville
TERRAIN ET MAISONVENTE d’une maison de 5 pièces (100 m²) à PetivilleMAISON 5 PIÈCES NEUVEÀ 11 km de la Manche, à vendre à Petiville (76330), nous vous proposons cette maison de 5 pièces de 100 m² et de 670 m² de terrain.C’est une maison de 2 niveaux. Son intérieur inclut quatre chambres, une cuisine et une salle de bains. Cette maison est neuve.Il y a l’École Primaire Antoine de Saint-Exupéry à moins de 10 minutes à pied. Les autoroutes A131 et A13 et la nationale N182 sont accessibles à moins de 10 km. On trouve un tennis et une boucherie-charcuterie à proximité.Elle est proposée à l’achat pour 239 000 €.Contactez notre agence (Barbara PELLETER : (Numéro supprimé)) pour toute question sur la maison, sur les démarches à suivre ou sur les modalités de vente. Les Maisons Extraco Le Havre vous accompagne dans tous vos projets immobiliers et dans toutes vos démarches.
Petiville
TERRAIN ET MAISONVENTE : maison T5 (86 m²) à PetivilleMAISON 5 PIÈCES NEUVEÀ 11 km de la Manche, Les Maisons Extraco Le Havre vous présente cette maison de 5 pièces de 86 m² à vendre à Petiville (76330). Son intérieur compte trois chambres, une cuisine et une salle de bains.Le terrain de la propriété s’étend sur 670 m².Il s’agit d’une maison de 2 niveaux. Elle est neuve.L’École Primaire Antoine de Saint-Exupéry est implantée à moins de 10 minutes à pied. Les autoroutes A131 et A13 et la nationale N182 sont accessibles à moins de 10 km. On trouve un tennis et une boucherie-charcuterie à proximité du bien.Son prix de vente est de 195 000 €.Contactez Barbara PELLETER (tél : (Numéro supprimé)) pour obtenir de plus amples renseignements sur cette maison, sur les modalités de vente ou sur les démarches à suivre. Les Maisons Extraco Le Havre vous accompagne dans tous vos projets immobiliers et à toutes les étapes de l’achat.
Petiville
TERRAIN ET MAISONVENTE d’une maison de 4 pièces (75 m²) à PetivilleMAISON 4 PIÈCES NEUVEÀ vendre : à 11 km de la Manche, Les Maisons Extraco Le Havre vous présente cette maison de 4 pièces de plain-pied de 75 m² et de 670 m² de terrain à Petiville (76330). Conçue de plain-pied, elle compte trois chambres, une cuisine et une salle de bains.Cette maison est neuve.Il y a l’École Primaire Antoine de Saint-Exupéry à moins de 10 minutes à pied. Les autoroutes A131 et A13 et la nationale N182 sont accessibles à moins de 10 km. On trouve un tennis et une boucherie-charcuterie à quelques minutes du logement.Son prix de vente est de 192 000 €.N’hésitez pas à prendre contact avec Barbara PELLETER (tél : (Numéro supprimé)) pour obtenir de plus amples renseignements sur cette maison, sur les démarches à suivre ou sur les modalités de vente. Les Maisons Extraco Le Havre est là pour vous accompagner dans tous vos projets immobiliers.
Petiville
TERRAINTerrain de 649 m² à vendre à PetivilleEn vente à 11 km de la Manche à Petiville (76330), grand terrain. Il est prêt à accueillir votre résidence principale ou secondaire pour toute la famille. L’École Primaire Antoine de Saint-Exupéry est implantée à moins de 10 minutes à pied. Les autoroutes A131 et A13 et la nationale N182 sont accessibles à moins de 10 km. Il y a un tennis et une boucherie-charcuterie dans les environs.Il est proposé à l’achat pour 63 500 €. N’hésitez pas à prendre contact avec notre agence (PELLETER Barbara : (Numéro supprimé)) pour tout renseignement sur ce terrain.
Petiville
TERRAINVENTE : terrain de 722 m² à PetivilleÀ Petiville (76330) à 11 km de la Manche, projetez la maison de vos rêves sur ce terrain de 722 m². Il y a l’École Primaire Antoine de Saint-Exupéry à moins de 10 minutes à pied. Les autoroutes A131 et A13 et la nationale N182 sont accessibles à moins de 10 km. On trouve un tennis et une boucherie-charcuterie dans les environs.Il est proposé à l’achat pour 67 500 €. Prenez contact avec notre agence (PELLETER Barbara : (Numéro supprimé)) pour tout renseignement sur le terrain.
Petiville
TERRAIN ET MAISONVENTE : maison F4 (93 m²) à PetivilleMAISON 4 PIÈCES NEUVEÀ 11 km de la Manche, à vendre à Petiville (76330), notre agence Les Maisons Extraco Le Havre est heureuse de vous proposer cette maison de 4 pièces de plain-pied de 93 m² et de 649 m² de terrain.Son intérieur propose trois chambres, une cuisine et une salle de bains. La maison est neuve.On trouve l’École Primaire Antoine de Saint-Exupéry à moins de 10 minutes à pied. Les autoroutes A131 et A13 et la nationale N182 sont accessibles à moins de 10 km. Il y a un tennis et une boucherie-charcuterie à proximité du bien.Elle est à vendre pour la somme de 222 500 €.N’hésitez pas à prendre contact avec notre agence (PELLETER Barbara : (Numéro supprimé)) pour tout renseignement sur cette maison. Les Maisons Extraco Le Havre vous accompagne dans tous vos projets immobiliers et dans toutes vos démarches.
Petiville
TERRAIN ET MAISONPetiville : maison de 4 pièces (82 m²) à vendreMAISON 4 PIÈCES NEUVEÀ vendre : à 11 km de la Manche, votre agence Les Maisons Extraco Le Havre est ravie de vous présenter à Petiville (76330), cette maison de 4 pièces de plain-pied de 82 m².Elle propose trois chambres, une cuisine et une salle de bains. Cette maison est neuve.Le terrain de la propriété est de 649 m².Il y a l’École Primaire Antoine de Saint-Exupéry à moins de 10 minutes à pied. Les autoroutes A131 et A13 et la nationale N182 sont accessibles à moins de 10 km. On trouve un tennis et une boucherie-charcuterie dans les environs.Son prix de vente est de 205 000 €.Contactez notre constructeur (PELLETER Barbara : (Numéro supprimé)) pour toute question sur cette maison ou sur les modalités de vente.
L’actualité immobilière à Le Perrey
27/11/2023
02/11/2023
30/10/2023
20/10/2023
16/10/2023
16/10/2023