Maison à construire à Vieux-Villez (27600)
Images
Description
Maison de 5 pièces (120 m²) en vente à Vieux-Villez
IDÉALEMENT SITUÉE - MAISON 5 PIÈCES NEUVE
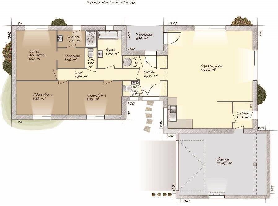
En vente : localisée à quelques kilomètres d'Évreux, laissez vous charmer par, idéalement située dans Vieux-Villez (27600), cette maison de 5 pièces de plain-pied de 120 m².
Conçue de plain-pied, elle se divise en trois chambres, une cuisine et deux salles de bains. Cette maison est neuve.
Le terrain de la propriété est de 1 379 m².
La maison se trouve dans un quartier attractif. Côté transports en commun, il y a les gares Gaillon-Aubevoye et Saint-Pierre-du-Vauvray à moins de 10 minutes en voiture. Les autoroutes A13 et A154 et la nationale N154 sont accessibles à moins de 9 km. On trouve un commerce à quelques minutes à peine.
Elle est proposée à l'achat pour 336 900 €.
Contactez Aurélien LEOVANT (tél : (Numéro supprimé)) pour toute question sur la propriété, sur les démarches à suivre ou sur les modalités de vente.
Annonce proposée par un Agent Commercial Partenaire.
Logement susceptibles de vous intéresser
Nous vous proposons de découvrir aussi cette sélection de logements situés à moins de 10km de Le Val d'Hazey et qui seraient susceptibles de vous intéresser.
Le Val d'Hazey
TERRAINVENTE : terrain de 2 500 m² au Val d’HazeyPROCHE D’ÉVREUXAu Val d’Hazey (27940) en vente à 23 km d’Évreux, projetez la maison de vos rêves sur ce terrain de 2 500 m². environnement d’exception, terrain déjà viabilisé et boisé. Vue sur les bois alentours. N’hésitez pas à prendre contact avec Karen GOHIER (tél : (Numéro supprimé)) pour toute information sur le terrain, sur les modalités de vente ou sur les démarches à suivre. Maisons Balency Louviers vous accompagne dans tous vos projets immobiliers et à toutes les étapes de votre projet.Annonce proposée par un Agent Commercial Partenaire.
Le Val d'Hazey
TERRAINTerrain de 600 m² en vente au Val d’HazeyPROCHE GARE – PROCHE D’ÉVREUXGrand terrain à quelques kilomètres d’Évreux. De 600 m², ce terrain se situe dans Le Val d’Hazey (27940), proche de la gare. Il donne sur un jardin. Ce terrain est proche des écoles et des commerces. Il y a des écoles de tous niveaux à moins de 10 minutes en voiture, tout comme cinq crèches à moins de 10 minutes à pied. Niveau transports, on trouve deux gares (Gaillon-Aubevoye et Saint-Pierre-du-Vauvray) à moins de 10 minutes en voiture. L’autoroute A13 et la nationale N154 sont accessibles à moins de 10 km. Il y a trois bibliothèques, des tennis, un bassin de natation, des commerces, des boulangeries, quatre supermarchés, une épicerie et des bureaux de poste à proximité du bien. Enfin, le marché Rue de Gaulle anime le quartier chaque mardi matin.Il est à vendre pour la somme de 70 000 €. Prenez contact avec Carole GOITA (tél : (Numéro supprimé)) pour obtenir de plus amples renseignements sur ce terrain, sur les démarches à suivre ou sur les modalités de vente.
Le Val d'Hazey
TERRAIN ET MAISONLe Val d’Hazey : maison de 4 pièces (81 m²) en ventePROCHE GARE – MAISON 4 PIÈCES NEUVEÀ vendre : à quelques kilomètres d’Évreux, proche de la gare du Val d’Hazey (27940), Les Maisons Extraco Les Andelys vous présente cette maison de 4 pièces de 81 m² et de 600 m² de terrain. Elle compte deux chambres, une cuisine et une salle de bains.Il s’agit d’une maison de 2 niveaux. Elle est neuve.Il y a des établissements scolaires (de la maternelle au lycée) à moins de 10 minutes en voiture, tout comme cinq structures d’accueil pour la petite enfance à moins de 10 minutes à pied. Niveau transports, on trouve deux gares (Gaillon-Aubevoye et Saint-Pierre-du-Vauvray) à moins de 10 minutes en voiture. L’autoroute A13 et la nationale N154 sont accessibles à moins de 10 km. Il y a trois bibliothèques, des tennis, un bassin de natation, des commerces, des boulangeries, quatre supermarchés, des bureaux de poste et trois supérettes à proximité du bien. Enfin, le marché Rue de Gaulle a lieu tous les mardis matin.Elle est à vendre pour la somme de 246 000 €.Contactez Carole GOITA ((Numéro supprimé)) pour tout renseignement sur la maison ou sur les démarches à suivre. Faites de vos projets immobiliers une réalité avec Extraco Construction Rénovation Les Andelys.
Le Val d'Hazey
TERRAIN ET MAISONMaison T5 (92 m²) à vendre au Val d’HazeyPROCHE GARE – MAISON 5 PIÈCES NEUVEEn vente à quelques kilomètres d’Évreux, dans Le Val d’Hazey (27940), proche de la gare, ayez le coup de coeur pour cette maison de 5 pièces de plain-pied de 92 m² et de 600 m² de terrain. Conçue de plain-pied, elle se divise en quatre chambres, une cuisine et une salle de bains.Cette maison est neuve.On trouve des établissements scolaires du primaire et du secondaire à moins de 10 minutes en voiture, tout comme cinq crèches à moins de 10 minutes à pied. Niveau transports, il y a deux gares (Gaillon-Aubevoye et Saint-Pierre-du-Vauvray) à moins de 10 minutes en voiture. L’autoroute A13 et la nationale N154 sont accessibles à moins de 10 km. On trouve trois bibliothèques, des tennis, un bassin de natation, des commerces, des boulangeries, quatre supermarchés, une épicerie et des bureaux de poste à proximité de la maison. Enfin, le marché Rue de Gaulle anime les environs chaque mardi matin.Elle est à vendre pour la somme de 251 000 €.Prenez contact avec Carole GOITA ((Numéro supprimé)) pour plus d’informations sur la propriété.
Le Val d'Hazey
TERRAIN ET MAISONVENTE d’une maison T5 (95 m²) au Val d’HazeyPROCHE GARE – MAISON 5 PIÈCES NEUVEÀ 23 km d’Évreux, en vente dans Le Val d’Hazey (27940), proche de la gare, Extraco Construction Rénovation Les Andelys vous propose cette maison de 5 pièces de plain-pied de 95 m² et de 600 m² de terrain.Son intérieur dispose de quatre chambres, d’une cuisine et d’une salle de bains. La maison est neuve.Des écoles de tous types sont implantées à moins de 10 minutes en voiture, tout comme cinq crèches à moins de 10 minutes à pied. Côté transports en commun, on trouve les gares Gaillon-Aubevoye et Saint-Pierre-du-Vauvray à moins de 10 minutes en voiture. L’autoroute A13 et la nationale N154 sont accessibles à moins de 10 km. Il y a trois bibliothèques, des tennis, un bassin de natation, des commerces, des boulangeries, quatre supermarchés, trois supérettes et des bureaux de poste dans les environs. Le marché Rue de Gaulle anime le quartier tous les mardis matin.Il est proposé à l’achat pour 241 000 €.Prenez contact avec Carole GOITA ((Numéro supprimé)) pour plus de renseignements sur la maison. Extraco Construction Rénovation Les Andelys est là pour vous accompagner dans toutes vos démarches.
Le Val d'Hazey
TERRAIN ET MAISONLe Val d’Hazey : maison T4 (85 m²) à vendrePROCHE GARE – MAISON 4 PIÈCES NEUVEEn vente : située à deux pas d’Évreux, ayez le coup de coeur pour cette maison de 4 pièces de plain-pied de 85 m² et de 600 m² de terrain dans Le Val d’Hazey (27940), proche de la gare.Son intérieur se divise en trois chambres, une cuisine et une salle de bains. La maison est neuve.Des établissements scolaires de tous types se trouvent à moins de 10 minutes en voiture, tout comme cinq crèches à moins de 10 minutes à pied. Niveau transports, il y a deux gares (Gaillon-Aubevoye et Saint-Pierre-du-Vauvray) à moins de 10 minutes en voiture. L’autoroute A13 et la nationale N154 sont accessibles à moins de 10 km. On trouve trois bibliothèques, des tennis, un bassin de natation, des commerces, des boulangeries, quatre supermarchés, des bureaux de poste et une épicerie à quelques minutes. Ne manquez pas le marché Rue de Gaulle tous les mardis matin.Elle est proposée à l’achat pour 243 000 €.N’hésitez pas à prendre contact avec Carole GOITA ((Numéro supprimé)) pour tout renseignement sur le bien ou sur les modalités de vente. Extraco Construction Rénovation Les Andelys vous accompagne dans toutes vos démarches et dans tous vos projets immobiliers.
Le Val d'Hazey
TERRAIN ET MAISONMaison F5 en structure bois (113 m²) à vendre au Val d’HazeyPROCHE GARE – MAISON 5 PIÈCES NEUVEÀ vendre : localisée à deux pas d’Évreux, ayez le coup de coeur pour cette maison de 5 pièces de plain-pied de 113 m² et de 600 m² de terrain, proche de la gare du Val d’Hazey (27940).Elle se divise en quatre chambres, une cuisine et deux salles de bains. La maison est neuve.Il y a des écoles de tous niveaux à moins de 10 minutes en voiture, tout comme cinq crèches à moins de 10 minutes à pied. Niveau transports en commun, on trouve les gares Gaillon-Aubevoye et Saint-Pierre-du-Vauvray à moins de 10 minutes en voiture. L’autoroute A13 et la nationale N154 sont accessibles à moins de 10 km. Il y a trois bibliothèques, des tennis, un bassin de natation, des commerces, des boulangeries, quatre supermarchés, une épicerie et des bureaux de poste à proximité du bien. Enfin, le marché Rue de Gaulle a lieu tous les mardis matin.Elle est proposée à l’achat pour 301 000 €.Contactez notre agence (Carole GOITA : (Numéro supprimé)) pour obtenir de plus amples renseignements sur la maison. Concrétisez vos projets immobiliers avec Extraco Construction Rénovation Les Andelys.
Le Val d'Hazey
TERRAIN ET MAISONLe Val d’Hazey : maison F7 (164 m²) en ventePROCHE GARE – MAISON 7 PIÈCES NEUVEÀ vendre : à 23 km d’Évreux, nous vous proposons cette maison de 7 pièces de 164 m² et de 600 m² de terrain proche de la gare du Val d’Hazey (27940).Cette maison comporte 2 niveaux. Son intérieur compte quatre chambres, une cuisine et deux salles de bains. Cette maison est neuve.On trouve des écoles de tous types à moins de 10 minutes en voiture, tout comme cinq structures d’accueil pour les enfants en bas âge à moins de 10 minutes à pied. Niveau transports, il y a deux gares (Gaillon-Aubevoye et Saint-Pierre-du-Vauvray) à moins de 10 minutes en voiture. L’autoroute A13 et la nationale N154 sont accessibles à moins de 10 km. On trouve trois bibliothèques, des tennis, un bassin de natation, des commerces, des boulangeries, quatre supermarchés, une épicerie et trois supérettes dans les environs. Le marché Rue de Gaulle a lieu chaque mardi matin.Elle est à vendre pour la somme de 396 000 €.Contactez Carole GOITA (tél : (Numéro supprimé)) pour obtenir de plus amples renseignements sur la propriété, sur les démarches à suivre ou sur les modalités de vente. Concrétisez vos projets immobiliers avec Extraco Construction Rénovation Les Andelys.
Le Val d'Hazey
TERRAIN ET MAISONLe Val d’Hazey : maison F3 (65 m²) à vendrePROCHE GARE – MAISON 3 PIÈCES NEUVEEn vente : située à deux pas d’Évreux, découvrez, dans Le Val d’Hazey (27940), proche de la gare, cette maison de 3 pièces de plain-pied de 65 m². Son intérieur comporte deux chambres, une cuisine et une salle de bains.Le terrain de cette maison est de 600 m².La maison est neuve.On trouve des établissements scolaires (de la maternelle au lycée) à moins de 10 minutes en voiture, tout comme cinq structures d’accueil pour les enfants en bas âge à moins de 10 minutes à pied. Niveau transports en commun, il y a les gares Gaillon-Aubevoye et Saint-Pierre-du-Vauvray à moins de 10 minutes en voiture. L’autoroute A13 et la nationale N154 sont accessibles à moins de 10 km. On trouve trois bibliothèques, des tennis, un bassin de natation, des commerces, des boulangeries, quatre supermarchés, trois supérettes et des boucheries-charcuteries dans les environs. Le marché Rue de Gaulle a lieu chaque mardi matin.Son prix de vente est de 211 000 €.Contactez notre agence (GOITA Carole : (Numéro supprimé)) pour tout renseignement sur la maison, sur les démarches à suivre ou sur les modalités de vente.
L’actualité immobilière à Le Val d'Hazey
27/11/2023
02/11/2023
30/10/2023
20/10/2023
16/10/2023
16/10/2023