Maison à construire à Les Thilliers-en-Vexin (27420)
Images
Description
VENTE : maison T5 (80 m²) aux Thilliers-en-Vexin
IDÉALEMENT SITUÉE - MAISON 5 PIÈCES NEUVE
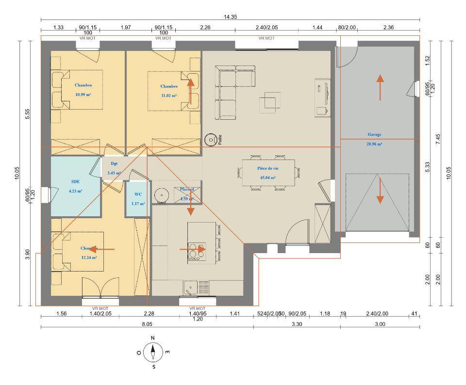
En vente : localisée à 28 km de Mantes-la-Jolie, idéalement située dans Les Thilliers-en-Vexin (27420), Maisons France Confort Vernon vous propose cette maison de 5 pièces de plain-pied de 80 m².
Elle propose trois chambres, une cuisine et une salle de bains. La maison est neuve.
Le terrain du bien est de 979 m².
Cette maison se situe dans un quartier prisé. Il y a une boulangerie, un commerce et un supermarché dans les environs.
Elle est proposée à l'achat pour 220 700 €.
Contactez Murielle DEBART ((Numéro supprimé)) pour toute question sur la maison. Donnez vie à vos projets immobiliers avec Maisons France Confort Vernon.
Logement susceptibles de vous intéresser
Nous vous proposons de découvrir aussi cette sélection de logements situés à moins de 10km de Les Thilliers-en-Vexin et qui seraient susceptibles de vous intéresser.
Vexin-sur-Epte
TERRAINVENTE : terrain de 1 200 m² à Vexin-Sur-EpteEMPLACEMENT PRIVILÉGIÉ – PROCHE DE VERNONÀ Vexin-Sur-Epte (27510) en vente à quelques kilomètres de Mantes-la-Jolie, donnez vie à votre résidence principale ou secondaire sur ce terrain de 1 200 m². Il donne sur un espace vert. Dans un quartier recherché, le terrain bénéficiant d’un emplacement d’exception est proche des écoles et des commerces. On trouve des établissements scolaires de tous types (de la maternelle au lycée) à moins de 10 minutes en voiture, tout comme deux crèches à moins de 10 minutes à pied. Il y a des tennis, des commerces, des boulangeries, trois supermarchés, quatre épiceries et des boucheries-charcuteries à quelques minutes.Ce terrain est proposé à l’achat pour 96 000 €. N’hésitez pas à prendre contact avec Carole GOITA ((Numéro supprimé)) pour tout renseignement sur le terrain ou sur les démarches à suivre. Extraco Construction Rénovation Les Andelys est là pour vous accompagner à toutes les étapes de l’achat.
Vexin-sur-Epte
TERRAIN ET MAISONVexin-Sur-Epte : maison de 5 pièces (86 m²) en venteEMPLACEMENT PRIVILÉGIÉ – MAISON 5 PIÈCES NEUVEÀ quelques kilomètres de vernon, venez découvrir cette maison de 5 pièces de 86 m² bénéficiant d’un emplacement privilégié dans Vexin-Sur-Epte (27510). Son intérieur compte trois chambres, une cuisine et une salle de bains.Le terrain du bien s’étend sur 1 200 m².Cette maison possède 2 niveaux. Elle est neuve.La maison se situe dans un secteur prisé. On trouve des écoles du primaire et du secondaire à moins de 10 minutes en voiture, tout comme deux structures d’accueil pour la petite enfance à moins de 10 minutes à pied. Il y a des tennis, des commerces, des boulangeries, trois supermarchés, quatre épiceries et des boucheries-charcuteries dans les environs.Elle est proposée à l’achat pour 269 600 €.N’hésitez pas à prendre contact avec Carole GOITA (tél : (Numéro supprimé)) pour plus de renseignements sur la maison ou sur les modalités de vente.
Vexin-sur-Epte
TERRAIN ET MAISONMaison de 4 pièces (98 m²) à vendre à Vexin-Sur-EpteEMPLACEMENT PRIVILÉGIÉ – MAISON 4 PIÈCES NEUVEÀ vendre : située à 18 km de Mantes-la-Jolie, bénéficiant d’un emplacement d’exception dans Vexin-Sur-Epte (27510), Extraco Construction Rénovation Les Andelys vous propose cette maison de 4 pièces de plain-pied de 98 m².Son intérieur propose trois chambres, une cuisine et une salle de bains. Cette maison est neuve.Le terrain de la propriété est de 1 200 m².La maison se trouve dans un secteur convoité. Des établissements scolaires de tous niveaux (de la maternelle au lycée) sont implantés à moins de 10 minutes en voiture, tout comme deux structures d’accueil pour les enfants en bas âge à moins de 10 minutes à pied. Il y a des tennis, des commerces, des boulangeries, trois supermarchés, quatre épiceries et des boucheries-charcuteries à proximité.Son prix de vente est de 294 600 €.Contactez notre agence (Carole GOITA : (Numéro supprimé)) pour toute information sur la maison, sur les modalités de vente et sur les démarches à suivre. Concrétisez vos projets immobiliers avec Extraco Construction Rénovation Les Andelys.
Vexin-sur-Epte
TERRAIN ET MAISONVENTE : maison T4 en structure bois (94 m²) à Vexin-Sur-EpteEMPLACEMENT PRIVILÉGIÉ – MAISON 4 PIÈCES NEUVEÀ 18 km de Mantes-la-Jolie, Extraco Construction Rénovation Les Andelys vous présente cette maison de 4 pièces de plain-pied de 94 m² et de 1 200 m² de terrain bénéficiant d’un emplacement d’exception dans Vexin-Sur-Epte (27510).Son intérieur comporte trois chambres, une cuisine et deux salles de bains. Cette maison est neuve.La maison se situe dans un secteur recherché. Des établissements scolaires de tous niveaux se trouvent à moins de 10 minutes en voiture, tout comme deux crèches à moins de 10 minutes à pied. Il y a des tennis, des commerces, des boulangeries, trois supermarchés, des boucheries-charcuteries et quatre épiceries dans les environs.Son prix de vente est de 324 600 €.N’hésitez pas à prendre contact avec notre agence (GOITA Carole : (Numéro supprimé)) pour tout renseignement sur le bien ou sur les modalités de vente. Concrétisez vos projets immobiliers avec Extraco Construction Rénovation Les Andelys.
Vexin-sur-Epte
TERRAIN ET MAISONVENTE d’une maison de 4 pièces (135 m²) à Vexin-Sur-EpteEMPLACEMENT PRIVILÉGIÉ – MAISON 4 PIÈCES NEUVEEn vente : localisée à deux pas de Mantes-la-Jolie, bénéficiant d’un emplacement d’exception dans Vexin-Sur-Epte (27510), nous sommes ravis de vous proposer cette maison de 4 pièces de 135 m².Il s’agit d’une maison de 2 niveaux. Son intérieur est composé de cinq chambres, d’une cuisine et de deux salles de bains. Cette maison est neuve.Le terrain du bien est de 1 200 m².La maison est située dans un secteur recherché. On trouve des écoles (de la maternelle au lycée) à moins de 10 minutes en voiture, tout comme deux crèches à moins de 10 minutes à pied. Il y a des tennis, des commerces, des boulangeries, trois supermarchés, des boucheries-charcuteries et quatre épiceries dans les environs.Son prix de vente est de 344 600 €.Prenez contact avec Carole GOITA ((Numéro supprimé)) pour obtenir de plus amples informations sur la propriété. Extraco Construction Rénovation Les Andelys est là pour vous accompagner à toutes les étapes de votre projet.
Vexin-sur-Epte
TERRAIN ET MAISONVENTE : maison de 4 pièces (80 m²) à Vexin-Sur-EpteEMPLACEMENT PRIVILÉGIÉ – MAISON 4 PIÈCES NEUVEEn vente : à deux pas de Mantes-la-Jolie, bénéficiant d’un emplacement d’exception dans Vexin-Sur-Epte (27510), nous vous présentons cette maison de 4 pièces de plain-pied de 80 m². Elle se divise en trois chambres, une cuisine et une salle de bains.Le terrain du bien est de 1 200 m².La maison est neuve.Cette maison se situe dans un secteur prisé. Il y a tous les types d’établissements scolaires à moins de 10 minutes en voiture, tout comme deux crèches à moins de 10 minutes à pied. On trouve des tennis, des commerces, des boulangeries, trois supermarchés, quatre épiceries et des boucheries-charcuteries à proximité.Son prix de vente est de 259 600 €.Contactez Carole GOITA (tél : (Numéro supprimé)) pour obtenir de plus amples renseignements sur la maison ou sur les modalités de vente. Extraco Construction Rénovation Les Andelys vous accompagne dans toutes vos démarches et dans tous vos projets immobiliers.
Vexin-sur-Epte
TERRAIN ET MAISONMaison de 4 pièces (81 m²) en vente à Vexin-Sur-EpteEMPLACEMENT PRIVILÉGIÉ – MAISON 4 PIÈCES NEUVEÀ vendre à 18 km de Mantes-la-Jolie, votre agence Extraco Construction Rénovation Les Andelys est ravie de vous proposer cette maison de 4 pièces de 81 m² bénéficiant d’un emplacement privilégié dans Vexin-Sur-Epte (27510). Elle offre deux chambres, une cuisine et une salle de bains.Le terrain de la maison s’étend sur 1 200 m².Cette maison compte 2 niveaux. Elle est neuve.Cette maison se situe dans un quartier prisé. Tous les types d’écoles (de la maternelle au lycée) se trouvent à moins de 10 minutes en voiture, tout comme deux structures d’accueil pour les enfants en bas âge à moins de 10 minutes à pied. Il y a des tennis, des commerces, des boulangeries, trois supermarchés, des boucheries-charcuteries et quatre épiceries à quelques minutes à peine.Elle est proposée à l’achat pour 274 600 €.Contactez notre agence (GOITA Carole : (Numéro supprimé)) pour obtenir de plus amples informations sur la maison.
Vexin-sur-Epte
TERRAINVENTE : terrain de 1 000 m² à Vexin-Sur-EpteIDÉALEMENT SITUÉ – Eligible au prêt à taux zéroÀ Vexin-Sur-Epte (27510) à deux pas de Mantes-la-Jolie, donnez vie à votre projet immobilier sur ce terrain de 1 000 m². Pour les tout-petits, les environs proposent deux crèches à moins de 10 minutes à pied. Il y a des tennis, des commerces, des boulangeries, trois supermarchés, des boucheries-charcuteries et quatre épiceries à proximité du bien.Il est à vendre pour la somme de 54 000 €. Prenez contact avec notre agence (Gilles BOREAU : (Numéro supprimé)) pour toute information sur le terrain ou sur les modalités de vente.
Vexin-sur-Epte
TERRAIN ET MAISONMaison de 4 pièces (80 m²) en vente à Vexin-Sur-EpteIDÉALEMENT SITUÉE – MAISON 4 PIÈCES NEUVEÀ vendre : à deux pas de Mantes-la-Jolie, nous vous présentons cette maison de 4 pièces de plain-pied de 80 m², idéalement située dans Vexin-Sur-Epte (27510).Conçue de plain-pied, elle offre trois chambres, une cuisine et une salle de bains. Cette maison est neuve.Le terrain du bien est de 1 000 m².La maison se situe dans un secteur convoité. Il y a des écoles de tous types à moins de 10 minutes en voiture, tout comme deux crèches à moins de 10 minutes à pied. On trouve des tennis, des commerces, des boulangeries, trois supermarchés, quatre épiceries et des boucheries-charcuteries dans les environs.Son prix de vente est de 185 500 €.N’hésitez pas à prendre contact avec Gilles BOREAU (tél : (Numéro supprimé)) pour toute information sur la maison et sur les démarches à suivre. Concrétisez vos projets immobiliers avec Les Maisons Extraco Les Andelys.
L’actualité immobilière à Les Thilliers-en-Vexin
27/11/2023
02/11/2023
30/10/2023
20/10/2023
16/10/2023
16/10/2023